Porfir 2 (CE)
                
                    Dodaj do porównania
                
                
                    Usuń z porównania
                
            
            
        
                
                    Dodaj do ulubionych
                
                
                    Usuń z ulubionych
                
            
            
        
        Pow. użytkowa:
    
    
        84.51m2
    
        Pow. zabudowy:
    
    
        69.47m2
    
        Koszt budowy:
    
    
        330000zł
    
        Liczba pokoi:
    
    
        4
    
        Liczba łazienek:
    
    
        2
    
        Rzuty
    
        
                                                         
                        
                        Lustrzane odbicie
                    
                    
                                    Rzut parteru
                                
                                
                                    45.29 m2
                                
                            
                                            wiatrołap
                                        
                                        
                                            7.4 m2
                                        
                                    
                                            salon/jadalnia
                                        
                                        
                                            23.66 m2
                                        
                                    
                                            kuchnia
                                        
                                        
                                            7.07 m2
                                        
                                    
                                            łazienka
                                        
                                        
                                            3.05 m2
                                        
                                    
                                            kotłownia
                                        
                                        
                                            4.11 m2
                                        
                                    
                            
                            Pobierz rysunki szczegółowe
                        
                        
                            
                            Zapytaj, co możesz zmienić
                        
                     
                        
                        Lustrzane odbicie
                    
                    
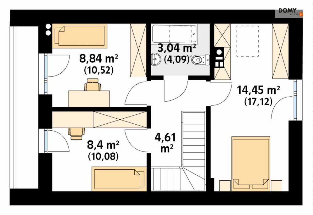
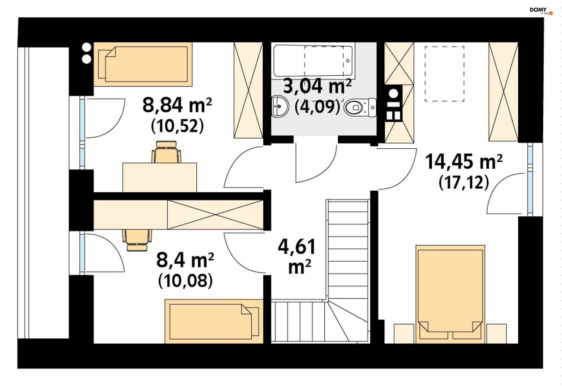
                                    Rzut poddasza
                                
                                
                                    39.34 m2
                                
                            
                                            korytarz/komunikacja
                                        
                                        
                                            4.61 m2
                                        
                                    
                                            sypialnia
                                        
                                        
                                            8.4 m2
                                        
                                    
                                            sypialnia
                                        
                                        
                                            8.84 m2
                                        
                                    
                                            łazienka
                                        
                                        
                                            3.04 m2
                                        
                                    
                                            sypialnia
                                        
                                        
                                            14.45 m2
                                        
                                    
                            
                            Pobierz rysunki szczegółowe
                        
                        
                            
                            Zapytaj, co możesz zmienić
                        
                     
                        
                        Lustrzane odbicie
                    
                    
                            
                            Pobierz rysunki szczegółowe
                        
                        
                            
                            Zapytaj, co możesz zmienić
                        
                    
            Zamów rysunki szczegółowe
        
        
            Zapoznaj się ze szczegółowymi rysunkami rzutów kondygnacji w PDF dla tego projektu.
        
        
            ZAMAWIAM
        
     
    
                    Elewacje
                
             
                                Frontowa
                            
                                                             
                                Ogrodowa
                            
                                                             
                                Lewa
                            
                                                             
                                Prawa
                            
                                                            
        Specyfikacja techniczna
    
    
        Główne parametry
    
    
                            Powierzchnia użytkowa
                        
                        
                                                            
                                                                                                                                                                                        84,51 m2
                                
                                                    
                                                    
                                Łączna powierzchnia tzw. pomieszczeń użytkowych. Przede wszystkim nie zalicza się do niej powierzchni garażu, nieużytkowego strychu, piwnicy, kotłowni.
                            
                                            
                            Liczba pokoi
                        
                        
                                                            
                                                                                                                                                                                        4 
                                
                                                    
                                            
                            Liczba łazienek
                        
                        
                                                            
                                                                                                                                                                                        2 
                                
                                                    
                                            
                            Powierzchnia zabudowy
                        
                        
                                                            
                                                                                                                                                                                        69,47 m2
                                
                                                    
                                                    
                                Powierzchnia zajmowana przez budynek na działce. W praktyce tzw. powierzchnia rzutu budynku wyznaczana po obrysie ścian zewnętrznych.
                            
                                            
        Pełna specyfikacja
    
    
                            Maksymalna wysokość budynku
                        
                        
                                                            
                                                                                                                                                                                        7,91 m
                                
                                                    
                                                    
                                Wysokość wyznaczona od poziomu terenu do najwyżej położonej części dachu (np. kalenicy), zwykle bez uwzględnienia kominów.
                            
                                            
                            Kąt nachylenia dachu
                        
                        
                                                            
                                                                                                                                                                                        40,00°
                                
                                                    
                                                    
                                Nachylenie połaci dachu podane w stopniach.
                            
                                            
                            Minimalne wymiary działki (szerokość)
                        
                        
                                                            
                                                                                                                                                                                        18,63 m
                                
                                                    
                                                    
                                Szerokość działki wyznaczona przy założeniu, że minimalna odległość budynku od granic działki wynosi przynajmniej 3 m w przypadku ścian bez otworów okiennych lub drzwiowych, albo 4 m w przypadku ścian budynku z takimi otworami.
                            
                                            
                            Minimalne wymiary działki (długość)
                        
                        
                                                            
                                                                                                                                                                                        16,07 m
                                
                                                    
                                                    
                                Długość działki wyznaczona przy założeniu, że minimalna odległość budynku od granic działki wynosi przynajmniej 3 m w przypadku ścian bez otworów okiennych lub drzwiowych, albo 4 m w przypadku ścian budynku z takimi otworami.
                            
                                            
                            Technologia budowy
                        
                        
                                                            
                                                                            Murowany
                                                                    
                                                    
                                            
                            Typ dachu
                        
                        
                                                            
                                                                            Dwuspadowy
                                                                    
                                                    
                                                    
                                Kształt dachu – płaski, jednospadowy (jedna skośna połać), dwuspadowy (dwie połacie), wielospadowy (w praktyce o przynajmniej czterech połaciach).
                            
                                            
                            Energooszczędność
                        
                        
                                                            
                                                                            Energooszczędny
                                                                    
                                                    
                                                    
                                Energooszczędny – dom o zapotrzebowaniu na tzw. nieodnawialna energię pierwotną (EP) niższym, niż wymagana przepisami maksymalna wartość.
                            
                                            
                            Typ zabudowy
                        
                        
                                                            
                                                                            Jednorodzinny
                                                                    
                                                    
                                            
                            Kubatura budynku
                        
                        
                                                            
                                                                                                                                                                                        343,88 m3
                                
                                                    
                                                    
                                Objętość budynku, zwykle wraz z elementami konstrukcyjnymi (ścianami, stropami itd.).
                            
                                            
                            Szerokość budynku
                        
                        
                                                            
                                                                                                                                                                                        10,63 m
                                
                                                    
                                                    
                                Maksymalna szerokość budynku wraz z grubością izolacji cieplnej oraz okładzin ściennych.
                            
                                            
                            Długość budynku
                        
                        
                                                            
                                                                                                                                                                                        7,07 m
                                
                                                    
                                                    
                                Maksymalna długość budynku wraz z grubością izolacji cieplnej oraz okładzin ściennych.
                            
                                            
                            EK (energia końcowa)
                        
                        
                                                            
                                                                                                                                                                                        59,25 kWh/m2 rok
                                
                                                    
                                            
                            EUCO (energia użytkowa)
                        
                        
                                                            
                                                                                                                                                                                        30,31 kWh/m2 rok
                                
                                                    
                                            
                            W stylu
                        
                        
                                                            
                                                                            Nowoczesnym
                                                                    
                                                    
                                            
                            Liczba kondygnacji
                        
                        
                                                            
                                                                            Z poddaszem użytkowym
                                                                    
                                                    
                                                    
                                Za kondygnacje uznawane są również poddasza użytkowe oraz piwnice. Kondygnacją nie jest natomiast poddasze nieużytkowe ani antresola.
                            
                                            
                    Koszty
                
            
                            Koszty budowy
                        
                        
                                        330 000 zł
                                    
                                    
                                        Koszt: Stan pod klucz
                                    
                                                                            
                                            Obejmuje koszt wszystkich robót stanu surowego, wykonania instalacji wewnętrznych oraz robót wykończeniowych.
                                        
                                                                    
                                        192 000 zł
                                    
                                                                            
                                            Koszt: Stan surowy zamknięty
                                        
                                                                                                                
                                            Koszt wzniesienia budynku wraz z pokryciem dachu i stolarką zewnętrzną (okna i drzwi). Bez instalacji, ocieplenia i robót wykończeniowych.
                                        
                                                                    
                            Koszty utrzymania
                        
                        
                            EP = 68,74  kWh/m2 rok
                        
                        
                            Oznacza ilość energii nieodnawialnej, jaką budynek może pozyskiwać z nieodnawialnych surowców energetycznych, czyli energii zawartej w paliwach i nośnikach takich jak węgiel, gaz czy ropa naftowa.
                        
                    
            Opis
        
        
            Porfir 2 to projekt domu z użytkowym poddaszem o powierzchni użytkowej 85 m2.  Projekt posiada prostą bryłę przykrytą dwuspadowym dachem.  Biała elewacja wzbogacona została drewnianą szalówką,  Na dachu pojawiła się blacha na rąbek stojący w szarym kolorze.  Projekt posiada otwartą część dzienną, którą tworzy: salon, jadalnia oraz kuchnia.  Program parteru uzupełnia łazienka, kotłownia oraz wiatrołap z pojemną szafą.  Na poddaszu zaprojektowano trzy sypialnie.  Największa sypialnia posiada własną garderobę, która podnosi komfort jej użytkowania.  Projekt posiada powierzchnię zabudowy mniejszą niż 70 m2, dlatego można go zrealizować na zgłoszenie zgodnie z programem Nowy Polski Ład.
        
                     
                            Porfir 2 (CE)
                        
                        
                            BD38175
                        
                    
                            Powierzchnia użytkowa
                                                            
                                    
                                
                                
                        
                                    Łączna powierzchnia tzw. pomieszczeń użytkowych. Przede wszystkim nie zalicza się do niej powierzchni garażu, nieużytkowego strychu, piwnicy, kotłowni.
                                
                                                    
                            84,51 m2
                        
                    
                            Liczba pokoi
                                                    
                        
                            4 
                        
                    
                            Liczba łazienek
                                                    
                        
                            2 
                        
                    
                            Powierzchnia zabudowy
                                                            
                                    
                                
                                
                        
                                    Powierzchnia zajmowana przez budynek na działce. W praktyce tzw. powierzchnia rzutu budynku wyznaczana po obrysie ścian zewnętrznych.
                                
                                                    
                            69,47 m2
                        
                    
            Inne wersje projektu
        
        
    
            PODOBNE PROJEKTY
        
        
     
             
 
 
 
 
 
 
 
 
 
 
 
 
 
 
 
 
 
 
 
 
 
 
 
 
 
 
 
 
 
 
 
 
 
 
 
                                         
 
                                         
 
                                         
                         
                         
                     
                         
                        