Aksamit 7 (CE)
Dodaj do porównania
Usuń z porównania
Dodaj do ulubionych
Usuń z ulubionych
Pow. użytkowa:
165.77m2
Pow. zabudowy:
263.64m2
Koszt budowy:
880000zł
Liczba pokoi:
5
Liczba łazienek:
3
Garaż:
1
Rzuty

Lustrzane odbicie
Rzut piwnica
118.68 m2
korytarz/komunikacja
13.32 m2
pomieszczenie gospodarcze
18.75 m2
pomieszczenie gospodarcze
11.65 m2
pomieszczenie gospodarcze
61.3 m2
kotłownia
13.66 m2
Pobierz rysunki szczegółowe
Zapytaj, co możesz zmienić

Lustrzane odbicie
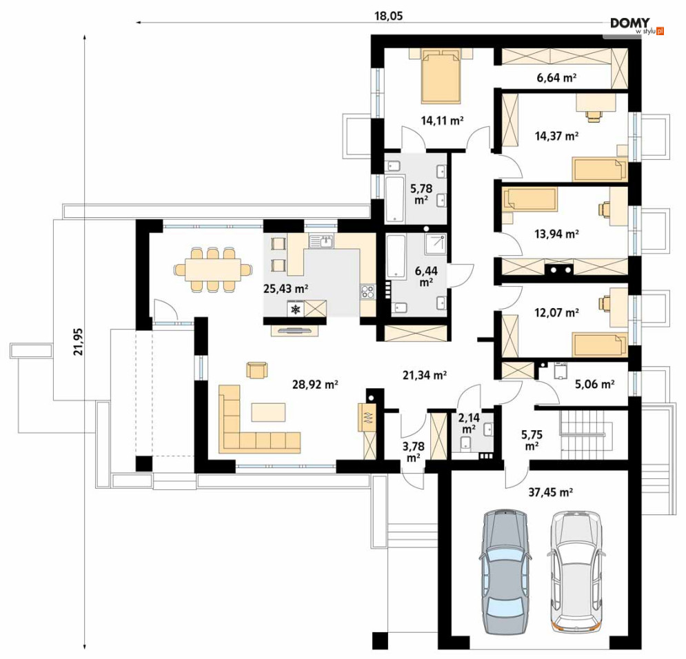
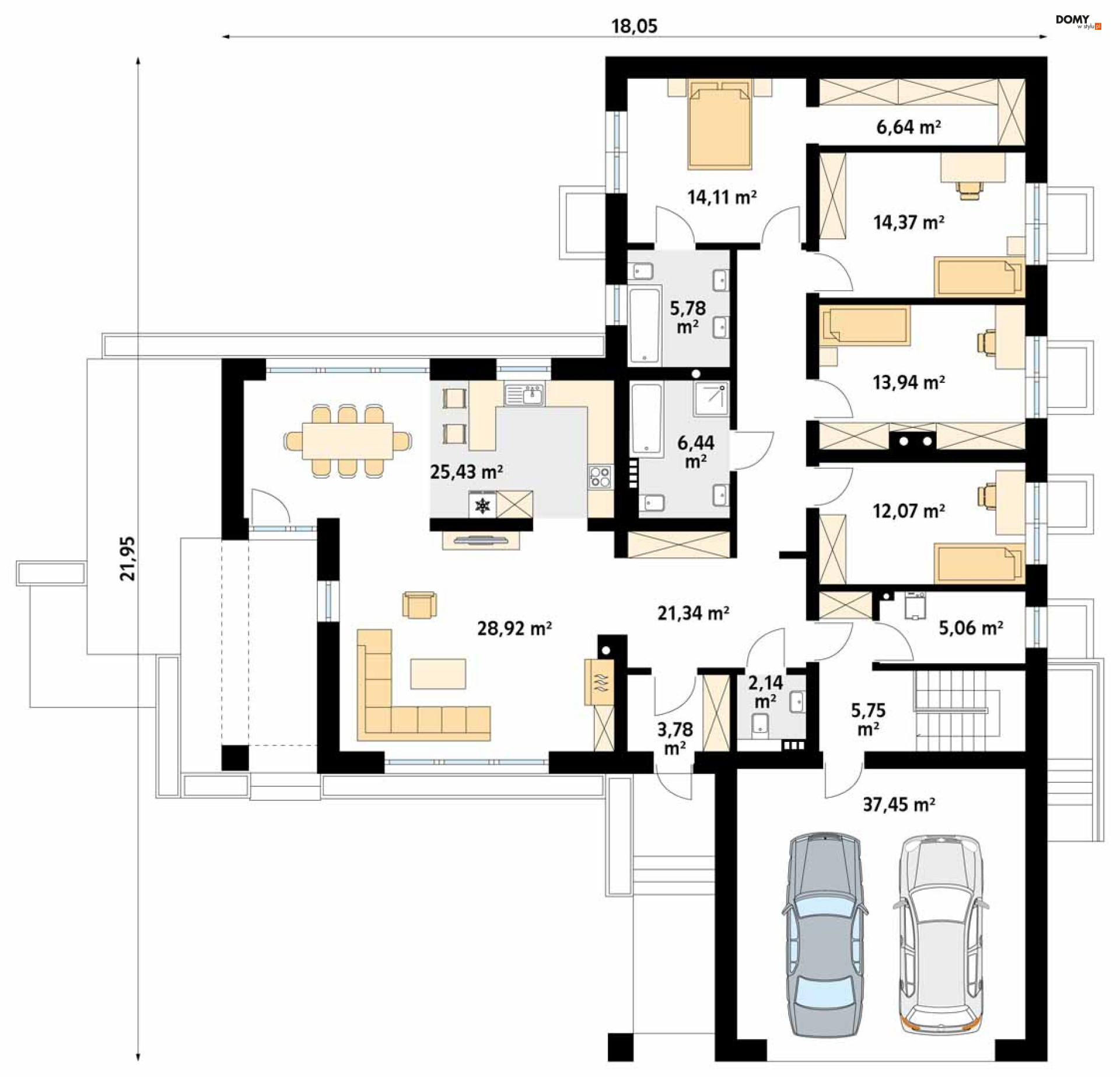
Rzut parteru
203.22 m2
wiatrołap
3.78 m2
korytarz/komunikacja
21.34 m2
salon
28.92 m2
kuchnia/jadalnia
25.43 m2
łazienka
6.44 m2
łazienka
5.78 m2
sypialnia
14.11 m2
garderoba
6.64 m2
sypialnia
14.37 m2
sypialnia
13.94 m2
sypialnia
12.07 m2
pralnia
5.06 m2
WC
2.14 m2
korytarz/komunikacja
5.75 m2
garaż
37.45 m2
Pobierz rysunki szczegółowe
Zapytaj, co możesz zmienić

Lustrzane odbicie
Pobierz rysunki szczegółowe
Zapytaj, co możesz zmienić
Zamów rysunki szczegółowe
Zapoznaj się ze szczegółowymi rysunkami rzutów kondygnacji w PDF dla tego projektu.
ZAMAWIAM

Specyfikacja techniczna
Główne parametry
Powierzchnia użytkowa
165,77 m2
Łączna powierzchnia tzw. pomieszczeń użytkowych. Przede wszystkim nie zalicza się do niej powierzchni garażu, nieużytkowego strychu, piwnicy, kotłowni.
Liczba pokoi
5
Liczba łazienek
3
Garaż
1
Powierzchnia zabudowy
263,64 m2
Powierzchnia zajmowana przez budynek na działce. W praktyce tzw. powierzchnia rzutu budynku wyznaczana po obrysie ścian zewnętrznych.
Pełna specyfikacja
Maksymalna wysokość budynku
7,01 m
Wysokość wyznaczona od poziomu terenu do najwyżej położonej części dachu (np. kalenicy), zwykle bez uwzględnienia kominów.
Kąt nachylenia dachu
30,00°
Nachylenie połaci dachu podane w stopniach.
Minimalne wymiary działki (szerokość)
26,05 m
Szerokość działki wyznaczona przy założeniu, że minimalna odległość budynku od granic działki wynosi przynajmniej 3 m w przypadku ścian bez otworów okiennych lub drzwiowych, albo 4 m w przypadku ścian budynku z takimi otworami.
Minimalne wymiary działki (długość)
30,95 m
Długość działki wyznaczona przy założeniu, że minimalna odległość budynku od granic działki wynosi przynajmniej 3 m w przypadku ścian bez otworów okiennych lub drzwiowych, albo 4 m w przypadku ścian budynku z takimi otworami.
Technologia budowy
Murowany
Typ dachu
Wielospadowy
Kształt dachu – płaski, jednospadowy (jedna skośna połać), dwuspadowy (dwie połacie), wielospadowy (w praktyce o przynajmniej czterech połaciach).
Energooszczędność
Energooszczędny
Energooszczędny – dom o zapotrzebowaniu na tzw. nieodnawialna energię pierwotną (EP) niższym, niż wymagana przepisami maksymalna wartość.
Przystosowany pod instalacje
kotła na paliwa stałe
Typ zabudowy
Jednorodzinny
Koszt: Wykoczńenie
91 997 zł
Powierzchnia garażu
37,45 m2
Kubatura budynku
1 846,43 m3
Objętość budynku, zwykle wraz z elementami konstrukcyjnymi (ścianami, stropami itd.).
Szerokość budynku
18,05 m
Maksymalna szerokość budynku wraz z grubością izolacji cieplnej oraz okładzin ściennych.
Długość budynku
21,95 m
Maksymalna długość budynku wraz z grubością izolacji cieplnej oraz okładzin ściennych.
EK (energia końcowa)
59,83 kWh/m2 rok
EUCO (energia użytkowa)
31,60 kWh/m2 rok
W stylu
Nowoczesnym
Liczba kondygnacji
Parterowe
Za kondygnacje uznawane są również poddasza użytkowe oraz piwnice. Kondygnacją nie jest natomiast poddasze nieużytkowe ani antresola.
Koszty
Koszty budowy
880 000 zł
Koszt: Stan pod klucz
Obejmuje koszt wszystkich robót stanu surowego, wykonania instalacji wewnętrznych oraz robót wykończeniowych.
577 000 zł
Koszt: Stan surowy zamknięty
Koszt wzniesienia budynku wraz z pokryciem dachu i stolarką zewnętrzną (okna i drzwi). Bez instalacji, ocieplenia i robót wykończeniowych.
Koszty utrzymania
EP = 18,86 kWh/m2 rok
Oznacza ilość energii nieodnawialnej, jaką budynek może pozyskiwać z nieodnawialnych surowców energetycznych, czyli energii zawartej w paliwach i nośnikach takich jak węgiel, gaz czy ropa naftowa.
Opis
Aksamit 7 to projekt domu parterowego, podpiwniczonego z wjazdem od południa. Układ funkcjonalny zaprojektowano tak, aby wyraźnie podzielić go na przestronną strefę dzienną i przytulną część prywatną. Część dzienna to przestronny salon z kominkiem, jadalnia otwarta na ogród dużymi przeszkleniami oraz funkcjonalna kuchnia. Strefa nocna to cztery sypialnie, ogólnodostępna łazienka i wc. Jedna z sypialni zaadaptowana została na apartament gospodarzy, który posiada prywatną łazienką oraz garderobą. W projekcie przewidziano również część gospodarczą ulokowaną w piwnicy oraz dwustanowiskowy garaż. Część gospodarczą tworzą kotłownia oraz trzy pomieszczenia gospodarcze.

Aksamit 7 (CE)
BD39226
Powierzchnia użytkowa
Łączna powierzchnia tzw. pomieszczeń użytkowych. Przede wszystkim nie zalicza się do niej powierzchni garażu, nieużytkowego strychu, piwnicy, kotłowni.
165,77 m2
Liczba pokoi
5
Liczba łazienek
3
Garaż
1
Powierzchnia zabudowy
Powierzchnia zajmowana przez budynek na działce. W praktyce tzw. powierzchnia rzutu budynku wyznaczana po obrysie ścian zewnętrznych.
263,64 m2
Inne wersje projektu
PODOBNE PROJEKTY
