Promyk (SI)
Dodaj do porównania
Usuń z porównania
Dodaj do ulubionych
Usuń z ulubionych
Pow. użytkowa:
151.84m2
Pow. zabudowy:
118.03m2
Koszt budowy:
692000zł
Liczba pokoi:
5
Liczba łazienek:
2
Rzuty

Lustrzane odbicie
Rzut parteru
84.05 m2
wiatrołap
4.52 m2
korytarz/komunikacja
17.44 m2
spiżarnia
2.86 m2
kuchnia
11.57 m2
salon/jadalnia
24.5 m2
pokój
11.93 m2
kotłownia
7.48 m2
łazienka
3.75 m2
Pobierz rysunki szczegółowe
Zapytaj, co możesz zmienić

Lustrzane odbicie
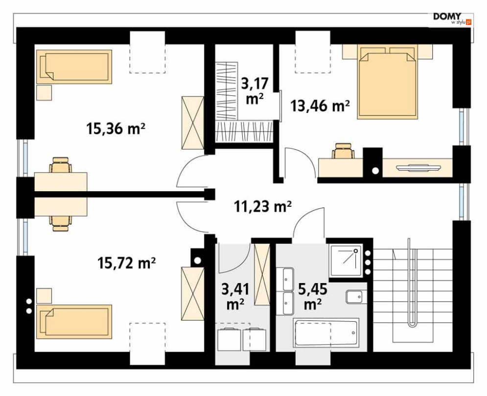
Rzut poddasza
67.8 m2
korytarz/komunikacja
11.23 m2
łazienka
5.45 m2
pomieszczenie gospodarcze
3.41 m2
pokój
15.72 m2
pokój
15.36 m2
garderoba
3.17 m2
sypialnia
13.46 m2
Pobierz rysunki szczegółowe
Zapytaj, co możesz zmienić

Lustrzane odbicie
Pobierz rysunki szczegółowe
Zapytaj, co możesz zmienić
Zamów rysunki szczegółowe
Zapoznaj się ze szczegółowymi rysunkami rzutów kondygnacji w PDF dla tego projektu.
ZAMAWIAM

Elewacje

Frontowa

Ogrodowa

Lewa

Prawa
Specyfikacja techniczna
Główne parametry
Powierzchnia użytkowa
151,84 m2
Łączna powierzchnia tzw. pomieszczeń użytkowych. Przede wszystkim nie zalicza się do niej powierzchni garażu, nieużytkowego strychu, piwnicy, kotłowni.
Liczba pokoi
5
Liczba łazienek
2
Powierzchnia zabudowy
118,03 m2
Powierzchnia zajmowana przez budynek na działce. W praktyce tzw. powierzchnia rzutu budynku wyznaczana po obrysie ścian zewnętrznych.
Pełna specyfikacja
Maksymalna wysokość budynku
8,71 m
Wysokość wyznaczona od poziomu terenu do najwyżej położonej części dachu (np. kalenicy), zwykle bez uwzględnienia kominów.
Kąt nachylenia dachu
42,00°
Nachylenie połaci dachu podane w stopniach.
Minimalne wymiary działki (szerokość)
20,13 m
Szerokość działki wyznaczona przy założeniu, że minimalna odległość budynku od granic działki wynosi przynajmniej 3 m w przypadku ścian bez otworów okiennych lub drzwiowych, albo 4 m w przypadku ścian budynku z takimi otworami.
Minimalne wymiary działki (długość)
18,73 m
Długość działki wyznaczona przy założeniu, że minimalna odległość budynku od granic działki wynosi przynajmniej 3 m w przypadku ścian bez otworów okiennych lub drzwiowych, albo 4 m w przypadku ścian budynku z takimi otworami.
Technologia budowy
Murowany
Typ dachu
Dwuspadowy
Kształt dachu – płaski, jednospadowy (jedna skośna połać), dwuspadowy (dwie połacie), wielospadowy (w praktyce o przynajmniej czterech połaciach).
Energooszczędność
Energooszczędny
Energooszczędny – dom o zapotrzebowaniu na tzw. nieodnawialna energię pierwotną (EP) niższym, niż wymagana przepisami maksymalna wartość.
Typ zabudowy
Jednorodzinny
Koszt: Wykoczńenie
75 300 zł
Kubatura budynku
673,20 m3
Objętość budynku, zwykle wraz z elementami konstrukcyjnymi (ścianami, stropami itd.).
Szerokość budynku
9,73 m
Maksymalna szerokość budynku wraz z grubością izolacji cieplnej oraz okładzin ściennych.
Długość budynku
12,13 m
Maksymalna długość budynku wraz z grubością izolacji cieplnej oraz okładzin ściennych.
EK (energia końcowa)
77,45 kWh/m2 rok
EUCO (energia użytkowa)
33,29 kWh/m2 rok
W stylu
Nowoczesnym
Liczba kondygnacji
Z poddaszem użytkowym
Za kondygnacje uznawane są również poddasza użytkowe oraz piwnice. Kondygnacją nie jest natomiast poddasze nieużytkowe ani antresola.
Koszty
Koszty budowy
692 000 zł
Koszt: Stan pod klucz
Obejmuje koszt wszystkich robót stanu surowego, wykonania instalacji wewnętrznych oraz robót wykończeniowych.
440 000 zł
Koszt: Stan surowy zamknięty
Koszt wzniesienia budynku wraz z pokryciem dachu i stolarką zewnętrzną (okna i drzwi). Bez instalacji, ocieplenia i robót wykończeniowych.
Koszty utrzymania
EP = 69,91 kWh/m2 rok
Oznacza ilość energii nieodnawialnej, jaką budynek może pozyskiwać z nieodnawialnych surowców energetycznych, czyli energii zawartej w paliwach i nośnikach takich jak węgiel, gaz czy ropa naftowa.
Opis
Promyk to interesujący projekt domu o nowoczesnej formie i funkcjonalnym programie wewnętrznym. Współczesny wygląd budynku podkreślają zaprojektowane na elewacji ogrodowej przeszklenia, które wizualnie dodają lekkości i doskonale doświetlają wnętrze domu. Naturalna okładzina w parterze, portfenetry na poddaszu oraz duże przeszklenia podkreślają nowoczesny charakter domu. Na parterze zaprojektowano strefę dzienną, w skład której wchodzi kuchnia z wydzieloną spiżarnią, jadalnia oraz przestronny salon. Na parterze znajduje się także ustawny, dobrze doświetlony pokój gościnny. Warto również zwrócić uwagę na duże pomieszczenie gospodarcze, pełniące funkcję kotłowni oraz łazienkę z pełnym programem funkcjonalnym. W strefie nocnej na poddaszu zaprojektowano trzy obszerne sypialnie, garderobę, pralnię oraz rodzinną łazienkę.
CZYTAJ WIĘCEJ

Promyk (SI)
BD40437
Powierzchnia użytkowa
Łączna powierzchnia tzw. pomieszczeń użytkowych. Przede wszystkim nie zalicza się do niej powierzchni garażu, nieużytkowego strychu, piwnicy, kotłowni.
151,84 m2
Liczba pokoi
5
Liczba łazienek
2
Powierzchnia zabudowy
Powierzchnia zajmowana przez budynek na działce. W praktyce tzw. powierzchnia rzutu budynku wyznaczana po obrysie ścian zewnętrznych.
118,03 m2
Inne wersje projektu
PODOBNE PROJEKTY
