Malutki dr-S (DR-S)
Dodaj do porównania
Usuń z porównania
Dodaj do ulubionych
Usuń z ulubionych
Pow. użytkowa:
79.48m2
Pow. zabudowy:
60.25m2
Koszt budowy:
310000zł
Liczba pokoi:
4
Liczba łazienek:
1
Rzuty

Lustrzane odbicie
Rzut parteru
39.04 m2
wiatrołap
2.87 m2
hol
3.36 m2
salon/jadalnia
21.43 m2
pomieszczenie pomocnicze
1.56 m2
kuchnia
7.38 m2
pomieszczenie techniczne
2.44 m2
Pobierz rysunki szczegółowe
Zapytaj, co możesz zmienić

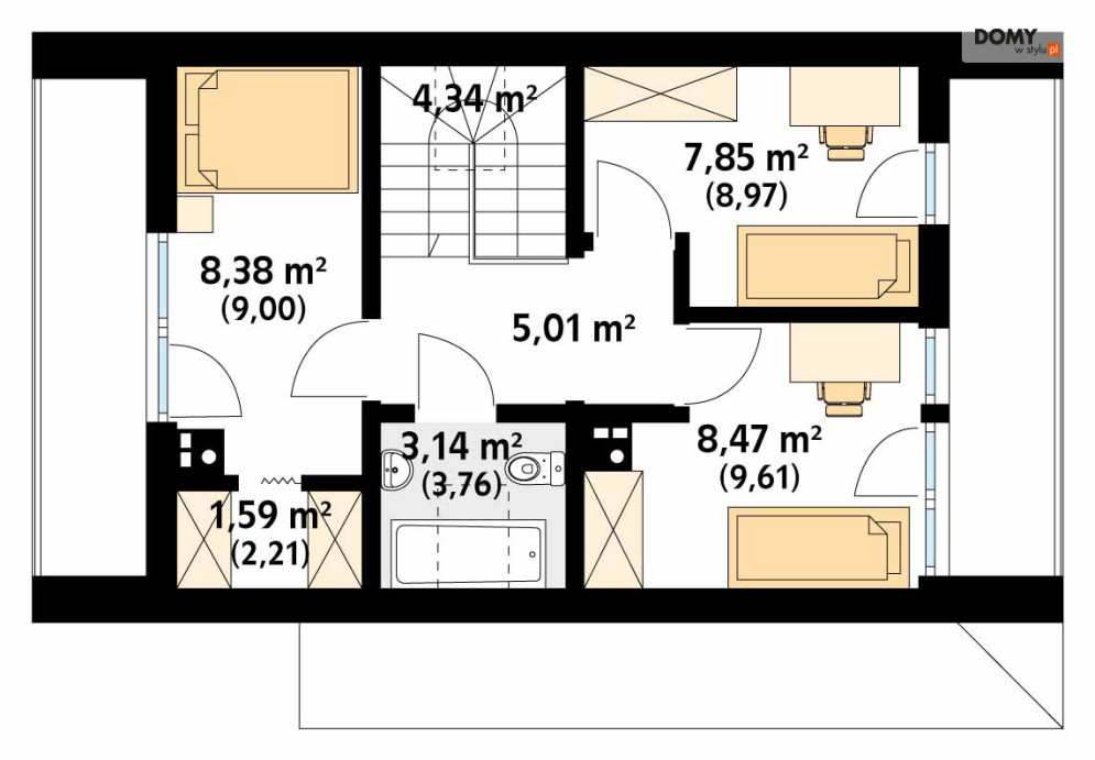
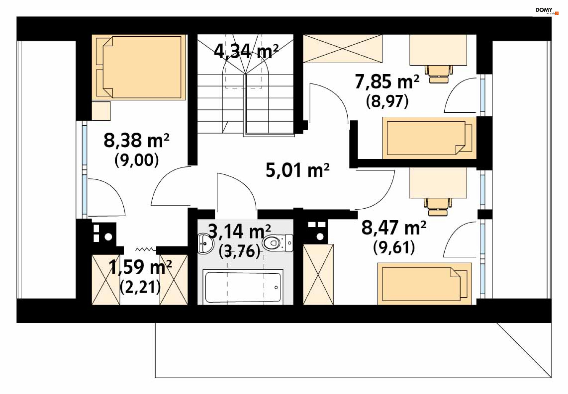
Lustrzane odbicie
Rzut poddasza
38.78 m2
hol
5.01 m2
sypialnia
8.38 m2
garderoba
1.59 m2
łazienka
3.14 m2
sypialnia
8.47 m2
sypialnia
7.85 m2
schody
4.34 m2
Pobierz rysunki szczegółowe
Zapytaj, co możesz zmienić

Lustrzane odbicie
Pobierz rysunki szczegółowe
Zapytaj, co możesz zmienić
Zamów rysunki szczegółowe
Zapoznaj się ze szczegółowymi rysunkami rzutów kondygnacji w PDF dla tego projektu.
ZAMAWIAM

Elewacje

Frontowa

Ogrodowa

Lewa

Prawa
Specyfikacja techniczna
Główne parametry
Powierzchnia użytkowa
79,48 m2
Łączna powierzchnia tzw. pomieszczeń użytkowych. Przede wszystkim nie zalicza się do niej powierzchni garażu, nieużytkowego strychu, piwnicy, kotłowni.
Liczba pokoi
4
Liczba łazienek
1
Powierzchnia zabudowy
60,25 m2
Powierzchnia zajmowana przez budynek na działce. W praktyce tzw. powierzchnia rzutu budynku wyznaczana po obrysie ścian zewnętrznych.
Pełna specyfikacja
Maksymalna wysokość budynku
8,57 m
Wysokość wyznaczona od poziomu terenu do najwyżej położonej części dachu (np. kalenicy), zwykle bez uwzględnienia kominów.
Kąt nachylenia dachu
45,00°
Nachylenie połaci dachu podane w stopniach.
Minimalne wymiary działki (szerokość)
23,34 m
Szerokość działki wyznaczona przy założeniu, że minimalna odległość budynku od granic działki wynosi przynajmniej 3 m w przypadku ścian bez otworów okiennych lub drzwiowych, albo 4 m w przypadku ścian budynku z takimi otworami.
Minimalne wymiary działki (długość)
17,60 m
Długość działki wyznaczona przy założeniu, że minimalna odległość budynku od granic działki wynosi przynajmniej 3 m w przypadku ścian bez otworów okiennych lub drzwiowych, albo 4 m w przypadku ścian budynku z takimi otworami.
Technologia budowy
Szkieletowy
Typ dachu
Dwuspadowy
Kształt dachu – płaski, jednospadowy (jedna skośna połać), dwuspadowy (dwie połacie), wielospadowy (w praktyce o przynajmniej czterech połaciach).
Energooszczędność
Energooszczędny
Energooszczędny – dom o zapotrzebowaniu na tzw. nieodnawialna energię pierwotną (EP) niższym, niż wymagana przepisami maksymalna wartość.
Typ zabudowy
Jednorodzinny
Koszt: Wykoczńenie
49 625 zł
Kubatura budynku
395,00 m3
Objętość budynku, zwykle wraz z elementami konstrukcyjnymi (ścianami, stropami itd.).
Szerokość budynku
11,34 m
Maksymalna szerokość budynku wraz z grubością izolacji cieplnej oraz okładzin ściennych.
Długość budynku
6,40 m
Maksymalna długość budynku wraz z grubością izolacji cieplnej oraz okładzin ściennych.
EK (energia końcowa)
65,26 kWh/m2 rok
EUCO (energia użytkowa)
25,41 kWh/m2 rok
W stylu
Nowoczesnym
Liczba kondygnacji
Z poddaszem użytkowym
Za kondygnacje uznawane są również poddasza użytkowe oraz piwnice. Kondygnacją nie jest natomiast poddasze nieużytkowe ani antresola.
Koszty
Koszty budowy
310 000 zł
Koszt: Stan pod klucz
Obejmuje koszt wszystkich robót stanu surowego, wykonania instalacji wewnętrznych oraz robót wykończeniowych.
180 000 zł
Koszt: Stan surowy zamknięty
Koszt wzniesienia budynku wraz z pokryciem dachu i stolarką zewnętrzną (okna i drzwi). Bez instalacji, ocieplenia i robót wykończeniowych.
Koszty utrzymania
EP = 68,35 kWh/m2 rok
Oznacza ilość energii nieodnawialnej, jaką budynek może pozyskiwać z nieodnawialnych surowców energetycznych, czyli energii zawartej w paliwach i nośnikach takich jak węgiel, gaz czy ropa naftowa.
Opis
Malutki dr-S to projekt domu z użytkowym poddaszem, charakteryzujący się oryginalną bryłą oraz funkcjonalnym, jak na niewielką powierzchnię, układem pomieszczeń. Prosta i zwarta bryła prezentuje się bardzo nowocześnie. Wykończono ją drewnianą szalówką oraz blachą na rąbek stojący. Dodatkowego uroku dodają jej duże przeszklenia. Starannie dopracowane proporcje, stonowana kolorystyka oraz naturalne materiały wykończeniowe sprawiają, że dom prezentuje się efektownie i minimalistycznie. Na parterze centralne miejsce zajmuje salon z jadalnią z dużymi przeszkleniami. W drugiej części budynku zaprojektowano kuchnię oraz toaletę. Na poddaszu znajdują się trzy sypialnie oraz łazienka. Wszystkie pokoje posiadają dostęp do balkonów, zaprojektowanych po obu stronach budynku.
Dodatki do projektu
Opieka konsultacyjna
0zł
599 zł
Prenumerata 12 tytułów
0zł
599 zł
-
Bioz0 zł
-
Charakterystyka energetyczna0 zł
-
Dziennik budowy0 zł
-
Rekuperacja0 zł
-
Rzut w skali 1 5000 zł
Prenumerata 12 tytułów
0zł
599 zł
-
Zgoda na zmiany0 zł
-
Dodatkowy egzemplarz projektu1 725 zł
-
Elektroniczna wersja projektu863 zł
-
Kosztorys500 zł
-
Schemat szamba60 zł

Malutki dr-S (DR-S)
BD41004
Powierzchnia użytkowa
Łączna powierzchnia tzw. pomieszczeń użytkowych. Przede wszystkim nie zalicza się do niej powierzchni garażu, nieużytkowego strychu, piwnicy, kotłowni.
79,48 m2
Liczba pokoi
4
Liczba łazienek
1
Powierzchnia zabudowy
Powierzchnia zajmowana przez budynek na działce. W praktyce tzw. powierzchnia rzutu budynku wyznaczana po obrysie ścian zewnętrznych.
60,25 m2
Kup projekt
5 749 zł
Projekt + opieka konsultacyjna
Tylko u nas
kupujesz projekt wraz z
opieką konsultacyjną w trakcie budowy domu
opieką konsultacyjną w trakcie budowy domu
Kup projekt
5 749 zł
Masz pytania?
Zadzwoń!
22 257 84 76
pon-pt: 9-17
Inne wersje projektu
PODOBNE PROJEKTY
