Arion (CE)
Dodaj do porównania
Usuń z porównania
Dodaj do ulubionych
Usuń z ulubionych
Pow. użytkowa:
134.22m2
Pow. zabudowy:
108.39m2
Koszt budowy:
612000zł
Liczba pokoi:
5
Liczba łazienek:
2
Rzuty

Lustrzane odbicie
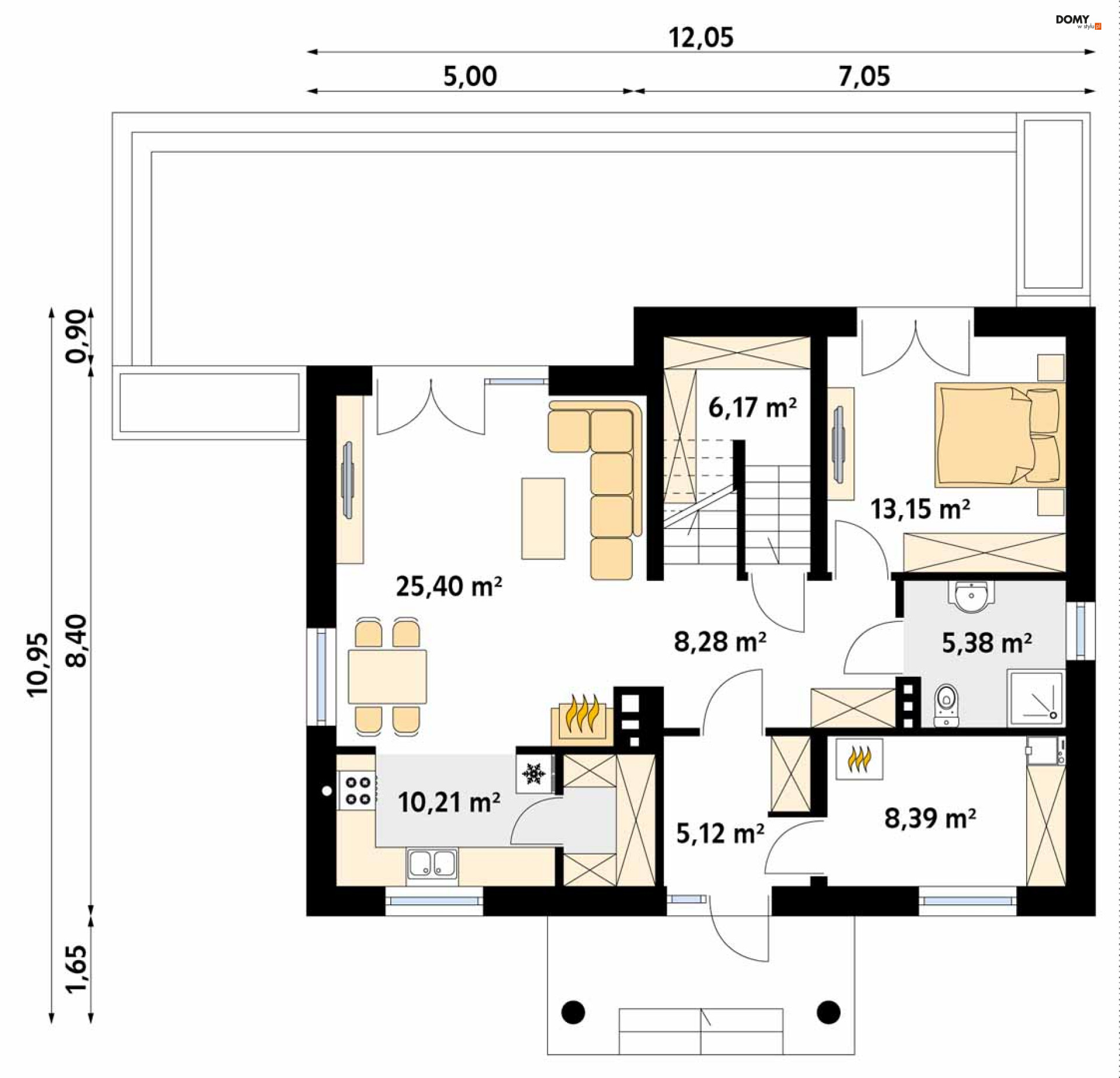
Rzut parteru
82.1 m2
wiatrołap
5.12 m2
korytarz/komunikacja
8.28 m2
kuchnia
10.21 m2
salon/jadalnia
25.4 m2
pomieszczenie gospodarcze
6.17 m2
pokój
13.15 m2
łazienka
5.38 m2
kotłownia
8.39 m2
Pobierz rysunki szczegółowe
Zapytaj, co możesz zmienić

Lustrzane odbicie
Rzut poddasza
60.72 m2
schody
7.81 m2
korytarz/komunikacja
4.39 m2
pokój
13.72 m2
garderoba
3.65 m2
łazienka
5.9 m2
pokój
12 m2
pokój
13.25 m2
Pobierz rysunki szczegółowe
Zapytaj, co możesz zmienić

Lustrzane odbicie
Pobierz rysunki szczegółowe
Zapytaj, co możesz zmienić
Zamów rysunki szczegółowe
Zapoznaj się ze szczegółowymi rysunkami rzutów kondygnacji w PDF dla tego projektu.
ZAMAWIAM

Elewacje

Frontowa

Ogrodowa

Lewa

Prawa
Specyfikacja techniczna
Główne parametry
Powierzchnia użytkowa
134,22 m2
Łączna powierzchnia tzw. pomieszczeń użytkowych. Przede wszystkim nie zalicza się do niej powierzchni garażu, nieużytkowego strychu, piwnicy, kotłowni.
Liczba pokoi
5
Liczba łazienek
2
Powierzchnia zabudowy
108,39 m2
Powierzchnia zajmowana przez budynek na działce. W praktyce tzw. powierzchnia rzutu budynku wyznaczana po obrysie ścian zewnętrznych.
Pełna specyfikacja
Maksymalna wysokość budynku
8,08 m
Wysokość wyznaczona od poziomu terenu do najwyżej położonej części dachu (np. kalenicy), zwykle bez uwzględnienia kominów.
Kąt nachylenia dachu
40,00°
Nachylenie połaci dachu podane w stopniach.
Minimalne wymiary działki (szerokość)
20,52 m
Szerokość działki wyznaczona przy założeniu, że minimalna odległość budynku od granic działki wynosi przynajmniej 3 m w przypadku ścian bez otworów okiennych lub drzwiowych, albo 4 m w przypadku ścian budynku z takimi otworami.
Minimalne wymiary działki (długość)
20,42 m
Długość działki wyznaczona przy założeniu, że minimalna odległość budynku od granic działki wynosi przynajmniej 3 m w przypadku ścian bez otworów okiennych lub drzwiowych, albo 4 m w przypadku ścian budynku z takimi otworami.
Technologia budowy
Murowany
Typ dachu
Dwuspadowy
Kształt dachu – płaski, jednospadowy (jedna skośna połać), dwuspadowy (dwie połacie), wielospadowy (w praktyce o przynajmniej czterech połaciach).
Energooszczędność
Energooszczędny
Energooszczędny – dom o zapotrzebowaniu na tzw. nieodnawialna energię pierwotną (EP) niższym, niż wymagana przepisami maksymalna wartość.
Typ zabudowy
Jednorodzinny
Kubatura budynku
550,00 m3
Objętość budynku, zwykle wraz z elementami konstrukcyjnymi (ścianami, stropami itd.).
Szerokość budynku
12,05 m
Maksymalna szerokość budynku wraz z grubością izolacji cieplnej oraz okładzin ściennych.
Długość budynku
10,95 m
Maksymalna długość budynku wraz z grubością izolacji cieplnej oraz okładzin ściennych.
EK (energia końcowa)
74,37 kWh/m2 rok
EUCO (energia użytkowa)
31,29 kWh/m2 rok
W stylu
Tradycyjnym,
Dworkowym
Liczba kondygnacji
Z poddaszem użytkowym
Za kondygnacje uznawane są również poddasza użytkowe oraz piwnice. Kondygnacją nie jest natomiast poddasze nieużytkowe ani antresola.
Koszty
Koszty budowy
612 000 zł
Koszt: Stan pod klucz
Obejmuje koszt wszystkich robót stanu surowego, wykonania instalacji wewnętrznych oraz robót wykończeniowych.
354 000 zł
Koszt: Stan surowy zamknięty
Koszt wzniesienia budynku wraz z pokryciem dachu i stolarką zewnętrzną (okna i drzwi). Bez instalacji, ocieplenia i robót wykończeniowych.
Koszty utrzymania
EP = 68,44 kWh/m2 rok
Oznacza ilość energii nieodnawialnej, jaką budynek może pozyskiwać z nieodnawialnych surowców energetycznych, czyli energii zawartej w paliwach i nośnikach takich jak węgiel, gaz czy ropa naftowa.
Opis
Tradycyjny dom mieszkalny. Ponadczasowa architektura domu nawiązująca do dobrych klasycznych wzorców polskiego domu mieszkalnego. Atutami projektu są przestronne wnętrza z dodatkową sypialnia i łazienką na parterze oraz trzy wygodne sypialnie na poddaszu. Pod schodami zaprojektowano pomieszczenie gospodarcze-spiżarnię.

Arion (CE)
BD41645
Powierzchnia użytkowa
Łączna powierzchnia tzw. pomieszczeń użytkowych. Przede wszystkim nie zalicza się do niej powierzchni garażu, nieużytkowego strychu, piwnicy, kotłowni.
134,22 m2
Liczba pokoi
5
Liczba łazienek
2
Powierzchnia zabudowy
Powierzchnia zajmowana przez budynek na działce. W praktyce tzw. powierzchnia rzutu budynku wyznaczana po obrysie ścian zewnętrznych.
108,39 m2
Inne wersje projektu
PODOBNE PROJEKTY
