Hania Duo
Dodaj do porównania
Usuń z porównania
Dodaj do ulubionych
Usuń z ulubionych
Pow. użytkowa:
124.9m2
Pow. zabudowy:
96.4m2
Koszt budowy:
682000zł
Liczba pokoi:
4
Liczba łazienek:
2
Garaż:
1
Rzuty

Lustrzane odbicie
Pobierz rysunki szczegółowe
Zapytaj, co możesz zmienić

Lustrzane odbicie
Pobierz rysunki szczegółowe
Zapytaj, co możesz zmienić
Zamów rysunki szczegółowe
Zapoznaj się ze szczegółowymi rysunkami rzutów kondygnacji w PDF dla tego projektu.
ZAMAWIAM

Specyfikacja techniczna
Główne parametry
Powierzchnia użytkowa
124,90 m2
Łączna powierzchnia tzw. pomieszczeń użytkowych. Przede wszystkim nie zalicza się do niej powierzchni garażu, nieużytkowego strychu, piwnicy, kotłowni.
Liczba pokoi
4
Liczba łazienek
2
Garaż
1
Powierzchnia zabudowy
96,40 m2
Powierzchnia zajmowana przez budynek na działce. W praktyce tzw. powierzchnia rzutu budynku wyznaczana po obrysie ścian zewnętrznych.
Pełna specyfikacja
Kąt nachylenia dachu
40,00°
Nachylenie połaci dachu podane w stopniach.
Minimalne wymiary działki (szerokość)
11,20 m
Szerokość działki wyznaczona przy założeniu, że minimalna odległość budynku od granic działki wynosi przynajmniej 3 m w przypadku ścian bez otworów okiennych lub drzwiowych, albo 4 m w przypadku ścian budynku z takimi otworami.
Minimalne wymiary działki (długość)
21,10 m
Długość działki wyznaczona przy założeniu, że minimalna odległość budynku od granic działki wynosi przynajmniej 3 m w przypadku ścian bez otworów okiennych lub drzwiowych, albo 4 m w przypadku ścian budynku z takimi otworami.
Piwnica
Tak
Technologia budowy
Murowany
Energooszczędność
Standardowy
Energooszczędny – dom o zapotrzebowaniu na tzw. nieodnawialna energię pierwotną (EP) niższym, niż wymagana przepisami maksymalna wartość.
Typ zabudowy
Jednorodzinny
Powierzchnia garażu
16,50 m2
Powierzchnia netto budynku
153,70 m2
Łączna powierzchnia wszystkich kondygnacjach obliczana z pominięciem elementów
konstrukcyjnych (ściany nośne, słupy itp.) ale wraz z powierzchnią zajmowaną przez ścianki działowe lub inne elementy, które można potencjalnie zdemontować.
Powierzchnia całkowita budynku
191,00 m2
Łączna powierzchnia wszystkich kondygnacjach obliczana po obrysie ścian zewnętrznych, wraz z powierzchnią zajmowaną przez ściany wewnętrzne.
Kubatura budynku
693,70 m3
Objętość budynku, zwykle wraz z elementami konstrukcyjnymi (ścianami, stropami itd.).
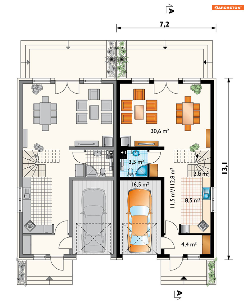
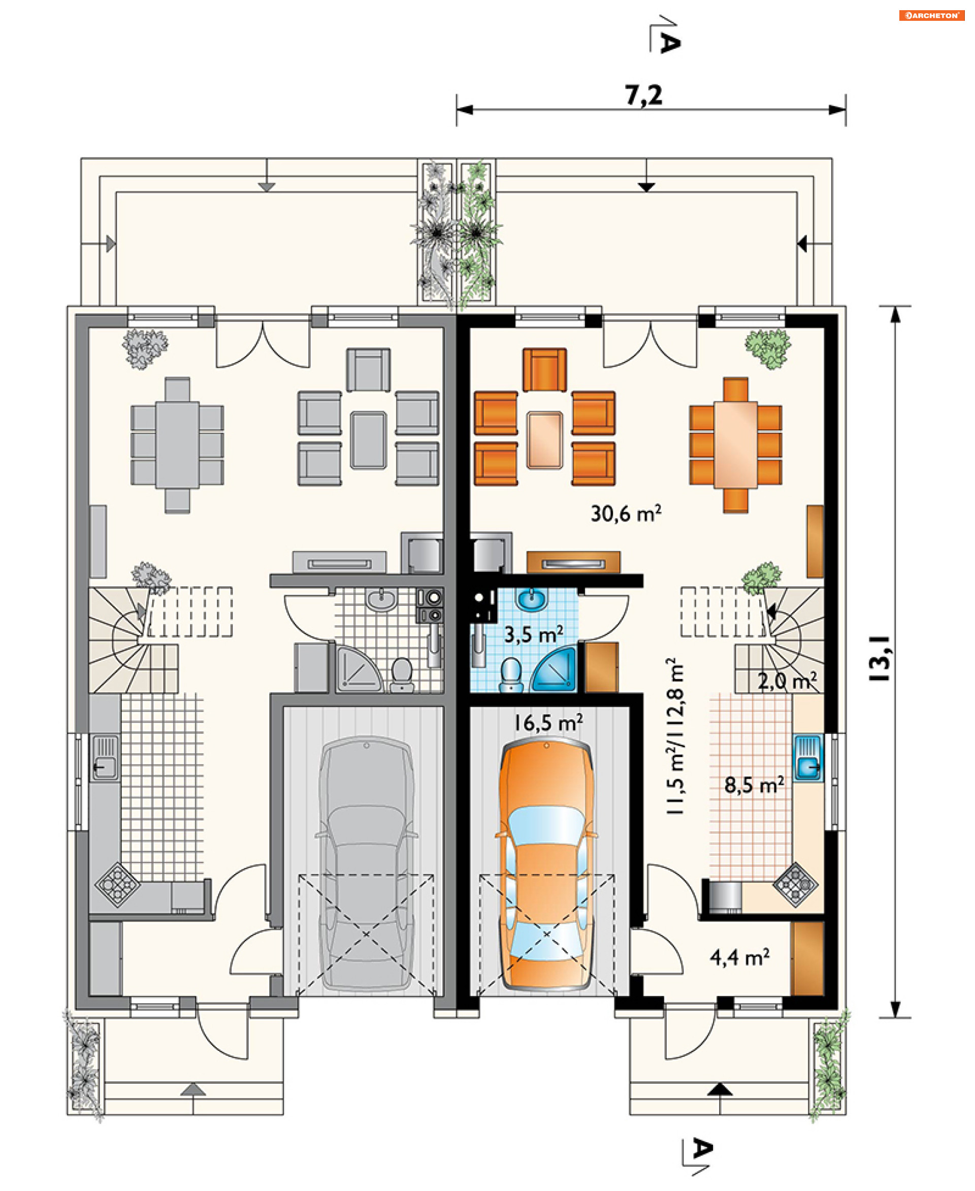
Szerokość budynku
7,20 m
Maksymalna szerokość budynku wraz z grubością izolacji cieplnej oraz okładzin ściennych.
Długość budynku
13,10 m
Maksymalna długość budynku wraz z grubością izolacji cieplnej oraz okładzin ściennych.
Ściany zewnętrzne (materiały)
Bloczki z białego betonu komórkowego H+H gr. 24 cm gęstość 500 + docieplenie płyty styropianowe gr. 15 cm
Strop
lekki strop panelowy Smart firmy Konbet
Ściany działowe
konstrukcyjne: Bloczki z białego betonu komórkowego H+H gr. 24 cm gęstość 500
• działowe: Bloczki z białego betonu komórkowego H+H gr. 11,5 cm
Sposób ogrzewania
Kocioł na gaz
W stylu
Tradycyjnym
Liczba kondygnacji
Z poddaszem użytkowym
Za kondygnacje uznawane są również poddasza użytkowe oraz piwnice. Kondygnacją nie jest natomiast poddasze nieużytkowe ani antresola.
Koszty
Koszty budowy
682 000 zł
Koszt: Stan pod klucz
Obejmuje koszt wszystkich robót stanu surowego, wykonania instalacji wewnętrznych oraz robót wykończeniowych.
409 000 zł
Koszt: Stan surowy zamknięty
Koszt wzniesienia budynku wraz z pokryciem dachu i stolarką zewnętrzną (okna i drzwi). Bez instalacji, ocieplenia i robót wykończeniowych.
Koszty utrzymania
EP = 59,74 kWh/m2 rok
Oznacza ilość energii nieodnawialnej, jaką budynek może pozyskiwać z nieodnawialnych surowców energetycznych, czyli energii zawartej w paliwach i nośnikach takich jak węgiel, gaz czy ropa naftowa.
Opis
Projekty domów w zabudowie bliźniaczej przewidują taki kształt dachu oraz doświetlenie pomieszczeń, aby segment jedną ze ścian bocznych mógł stanąć na granicy działki. W terenie przeznaczonym pod zabudowę jednorodzinną o wysokiej intensywności projekt domu Hania Duo nadaje się szczególnie na wąską działkę i oferuje przy tym stosunkowo dużą powierzchnię użytkową. Rzut parteru jest mocno wydłużonym prostokątem z otwartą strefą dzienną i z wbudowanym garażem. Ulokowaną od frontu kuchnię oddziela częściowo od salonu klatka schodowa. Głównym źródłem doświetlenia wnętrz Hani są wysokie, efektowne okna w salonie, otwartym na ogród. Wyście na taras osłania wysunięty wykusz lukarny, należącej do głównej sypialni z garderobą. Na poddaszu przewidziano ponadto dwa mniejsze pokoje, tworząc wygodną strefę nocną łącznie dla 4 osób, z dużą łazienką i z pralnią.
Znaczna głębokość traktu i smukłe lukarny nad wjazdem do garażu sprawiają, że projekt domu Hania Duo, w sylwetce złożonej z obu bliźniaczych segmentów, ma charakter miejskiej kamieniczki. W wizualizacji podkreśla to dodatkowo klinkierowa faktura wykończenia elewacji wejściowej.
CZYTAJ WIĘCEJ

Hania Duo
BD42311
Powierzchnia użytkowa
Łączna powierzchnia tzw. pomieszczeń użytkowych. Przede wszystkim nie zalicza się do niej powierzchni garażu, nieużytkowego strychu, piwnicy, kotłowni.
124,90 m2
Liczba pokoi
4
Liczba łazienek
2
Garaż
1
Powierzchnia zabudowy
Powierzchnia zajmowana przez budynek na działce. W praktyce tzw. powierzchnia rzutu budynku wyznaczana po obrysie ścian zewnętrznych.
96,40 m2