Miłosz Duo
Dodaj do porównania
Usuń z porównania
Dodaj do ulubionych
Usuń z ulubionych
Pow. użytkowa:
87.2m2
Pow. zabudowy:
79.2m2
Koszt budowy:
407000zł
Liczba pokoi:
5
Liczba łazienek:
1
Garaż:
1
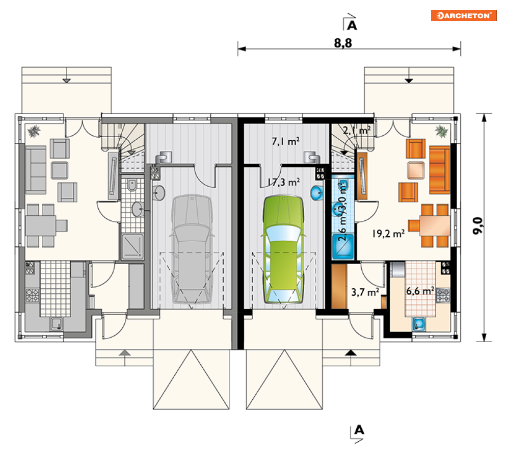
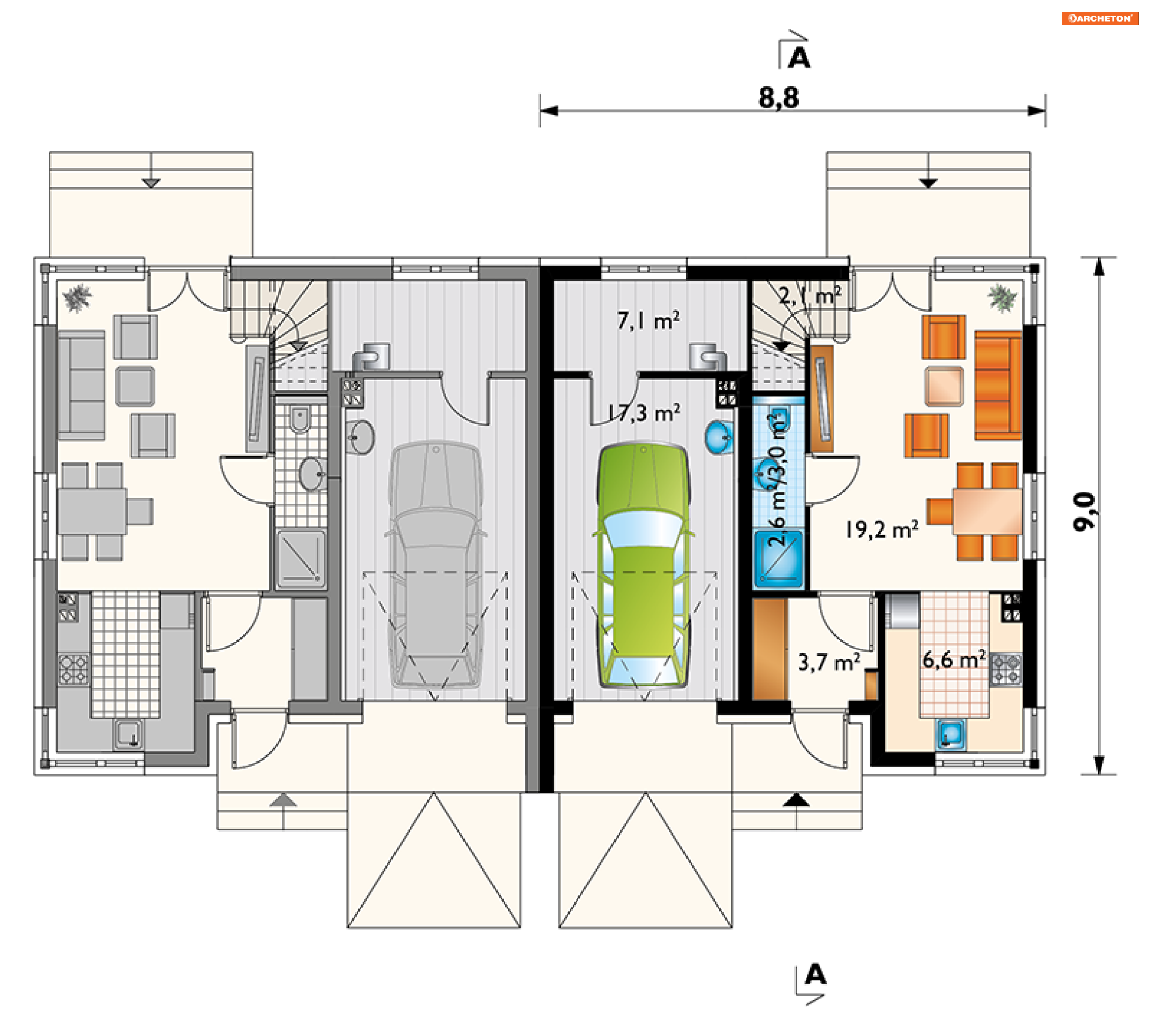
Rzuty

Lustrzane odbicie
Pobierz rysunki szczegółowe
Zapytaj, co możesz zmienić

Lustrzane odbicie
Pobierz rysunki szczegółowe
Zapytaj, co możesz zmienić
Zamów rysunki szczegółowe
Zapoznaj się ze szczegółowymi rysunkami rzutów kondygnacji w PDF dla tego projektu.
ZAMAWIAM

Specyfikacja techniczna
Główne parametry
Powierzchnia użytkowa
87,20 m2
Łączna powierzchnia tzw. pomieszczeń użytkowych. Przede wszystkim nie zalicza się do niej powierzchni garażu, nieużytkowego strychu, piwnicy, kotłowni.
Liczba pokoi
5
Liczba łazienek
1
Garaż
1
Powierzchnia zabudowy
79,20 m2
Powierzchnia zajmowana przez budynek na działce. W praktyce tzw. powierzchnia rzutu budynku wyznaczana po obrysie ścian zewnętrznych.
Pełna specyfikacja
Kąt nachylenia dachu
39,00°
Nachylenie połaci dachu podane w stopniach.
Minimalne wymiary działki (szerokość)
12,80 m
Szerokość działki wyznaczona przy założeniu, że minimalna odległość budynku od granic działki wynosi przynajmniej 3 m w przypadku ścian bez otworów okiennych lub drzwiowych, albo 4 m w przypadku ścian budynku z takimi otworami.
Minimalne wymiary działki (długość)
17,00 m
Długość działki wyznaczona przy założeniu, że minimalna odległość budynku od granic działki wynosi przynajmniej 3 m w przypadku ścian bez otworów okiennych lub drzwiowych, albo 4 m w przypadku ścian budynku z takimi otworami.
Piwnica
Tak
Technologia budowy
Murowany
Energooszczędność
Standardowy
Energooszczędny – dom o zapotrzebowaniu na tzw. nieodnawialna energię pierwotną (EP) niższym, niż wymagana przepisami maksymalna wartość.
Typ zabudowy
Jednorodzinny
Powierzchnia garażu
17,30 m2
Powierzchnia netto budynku
119,80 m2
Łączna powierzchnia wszystkich kondygnacjach obliczana z pominięciem elementów
konstrukcyjnych (ściany nośne, słupy itp.) ale wraz z powierzchnią zajmowaną przez ścianki działowe lub inne elementy, które można potencjalnie zdemontować.
Powierzchnia całkowita budynku
153,40 m2
Łączna powierzchnia wszystkich kondygnacjach obliczana po obrysie ścian zewnętrznych, wraz z powierzchnią zajmowaną przez ściany wewnętrzne.
Kubatura budynku
470,00 m3
Objętość budynku, zwykle wraz z elementami konstrukcyjnymi (ścianami, stropami itd.).
Szerokość budynku
8,80 m
Maksymalna szerokość budynku wraz z grubością izolacji cieplnej oraz okładzin ściennych.
Długość budynku
9,00 m
Maksymalna długość budynku wraz z grubością izolacji cieplnej oraz okładzin ściennych.
Ściany zewnętrzne (materiały)
dwuwarstwowe z bloczków z betonu komórkowego Termalica 500 gr. 24 cm + docieplenie płyty styropianowe gr. 15 cm.
Strop
żelbetowy monolityczny
Ściany działowe
konstrukcyjne: z bloczków z betonu komórkowego Termalica 500 gr. 24 cm.
działowe: z betonu komórkowego gr. 12 cm.
Sposób ogrzewania
Kocioł na gaz
W stylu
Tradycyjnym
Liczba kondygnacji
Z poddaszem użytkowym
Za kondygnacje uznawane są również poddasza użytkowe oraz piwnice. Kondygnacją nie jest natomiast poddasze nieużytkowe ani antresola.
Koszty
Koszty budowy
407 000 zł
Koszt: Stan pod klucz
Obejmuje koszt wszystkich robót stanu surowego, wykonania instalacji wewnętrznych oraz robót wykończeniowych.
245 000 zł
Koszt: Stan surowy zamknięty
Koszt wzniesienia budynku wraz z pokryciem dachu i stolarką zewnętrzną (okna i drzwi). Bez instalacji, ocieplenia i robót wykończeniowych.
Koszty utrzymania
EP = 69,72 kWh/m2 rok
Oznacza ilość energii nieodnawialnej, jaką budynek może pozyskiwać z nieodnawialnych surowców energetycznych, czyli energii zawartej w paliwach i nośnikach takich jak węgiel, gaz czy ropa naftowa.
Opis
Projekt domu Miłosz Duo ma najbardziej zwartą formę wśród najmniejszych propozycji domów szeregowych Archetonu. Garaż z kotłownią na tyłach jest całkowicie wbudowany w bryłę, a pozostałą część parteru zajmuje otwarta, kompaktowa przestrzeń dzienna. Zespolono ją z holem i schodami na poddasze, które zabudowują niewielką łazienkę. Poszerzenie tej przestrzeni według potrzeb w adaptacji nie jest skomplikowane i skutkuje również powiększeniem czterech skromnych sypialni dla pięciu osób na wyższej kondygnacji. Ekonomiczna sylwetka z dachem dwuspadowym o kalenicy równoległej do drogi dojazdowej ma elewacje bez balkonów. W projekcie domu Miłosz Duo zastosowano okna balkonowe w lukarnach, a od ogrodu także nowoczesne połaciowe okna kolankowe. Akcenty w postaci płytkiej wnęki z drzwiami wejściowymi i bramą garażową oraz rytmu prostopadłościennych lukarn rysują się efektownie w sylwetce, która ma bardzo zwarty charakter. Podkreślają to gładkie ściany boczne i gzyms, szeroko ofasowany blachą wzdłuż fasady frontowej i ogrodowej. Jego zadaniem jest krycie odwodnienia oraz osłona okien przed nadmiarem światła i opadami.
CZYTAJ WIĘCEJ

Miłosz Duo
BD42382
Powierzchnia użytkowa
Łączna powierzchnia tzw. pomieszczeń użytkowych. Przede wszystkim nie zalicza się do niej powierzchni garażu, nieużytkowego strychu, piwnicy, kotłowni.
87,20 m2
Liczba pokoi
5
Liczba łazienek
1
Garaż
1
Powierzchnia zabudowy
Powierzchnia zajmowana przez budynek na działce. W praktyce tzw. powierzchnia rzutu budynku wyznaczana po obrysie ścian zewnętrznych.
79,20 m2