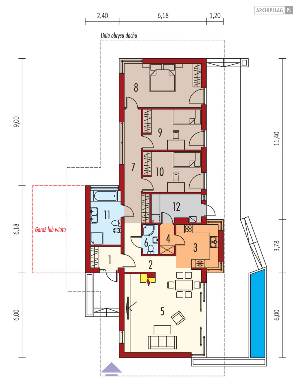
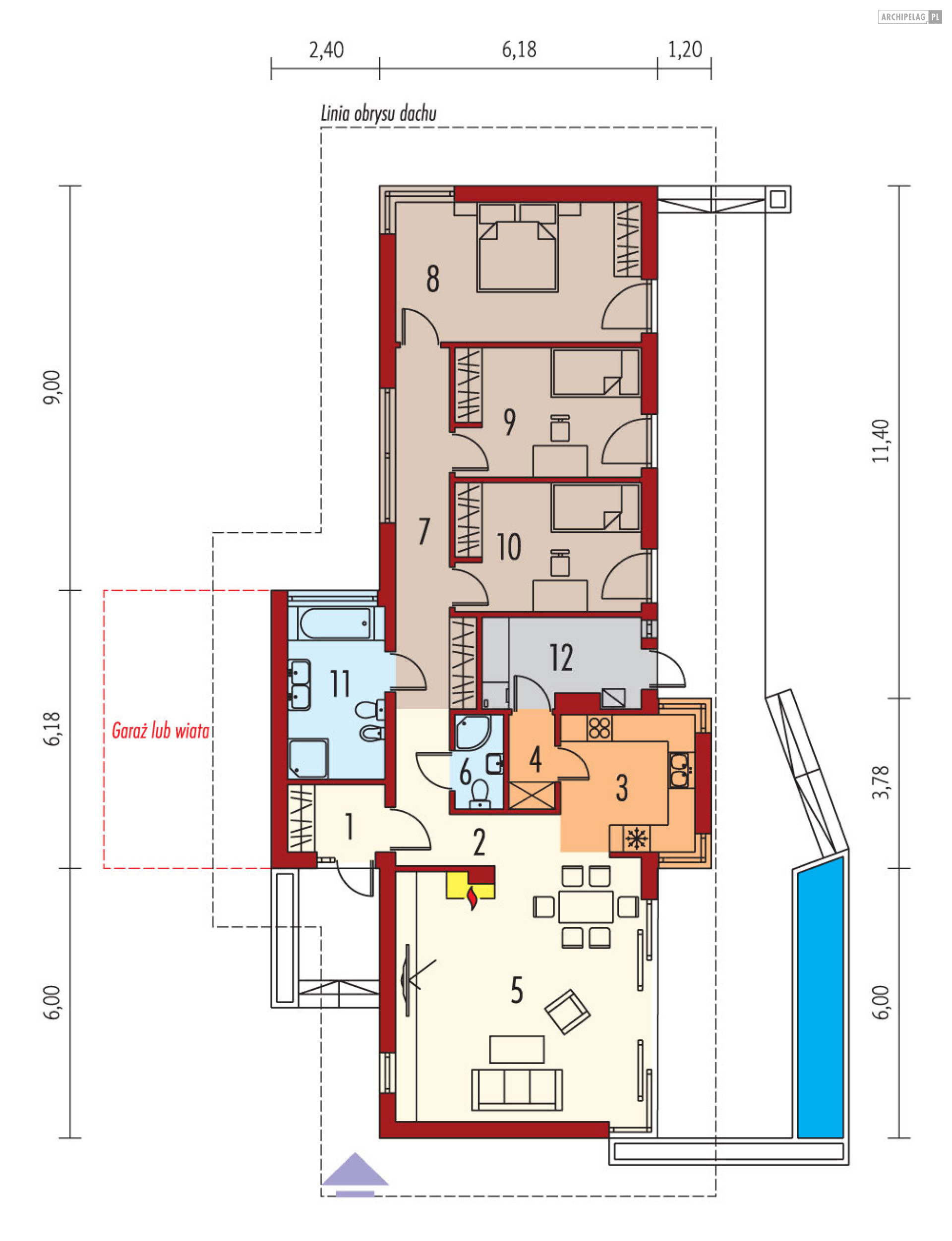
Bil II (z wejściem od południa)







Charakterystyka: Dom parterowy, niepodpiwniczony
Przeznaczenie: Dom dla 2-4-osobowej
rodziny
Technologia i
konstrukcja:
Ściany zewnętrzne: murowane,
dwuwarstwowe, beton komórkowy 24
cm, ocieplenie wełna mineralna 12 cm
Ściany wewnętrzne: nośne i działowe
murowane, cegła wapienno-piaskowa 24
cm i 12 cm
Strop: drewniany, ocieplenie wełna
mineralna 25 cm
Dach: konstrukcja drewniana,
dachówka ceramiczna lub cementowa, więźba dachowa dostępna również w systemie
prefabrykacji drewnianej
Rozwiązania
instalacyjne:
Ogrzewanie: kocioł gazowy
kondensacyjny, rozprowadzenie ciepła: grzejniki
Wentylacja: grawitacyjna
OZE: kolektory słoneczne
Wykończenie:
Elewacje: tynk cienkowarstwowy
mineralny, okładzina drewniana
Stolarka: drewniana, PVC lub
aluminiowa
Wersje - zapytaj o dostępność:
- Bil II – w wiatą, garażem jedno- lub
dwustanowiskowym
- Bil – podobny układ funkcjonalny, wejście od
północy, różne wersje garaży
- odbicie lustrzane do każdej wersji
Istnieje
techniczna możliwość:
- podpiwniczenia budynku
- wykonania budynku w technologii szkieletowej
