Benedykt







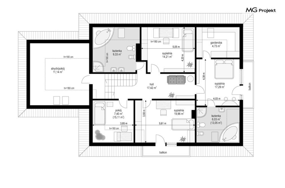
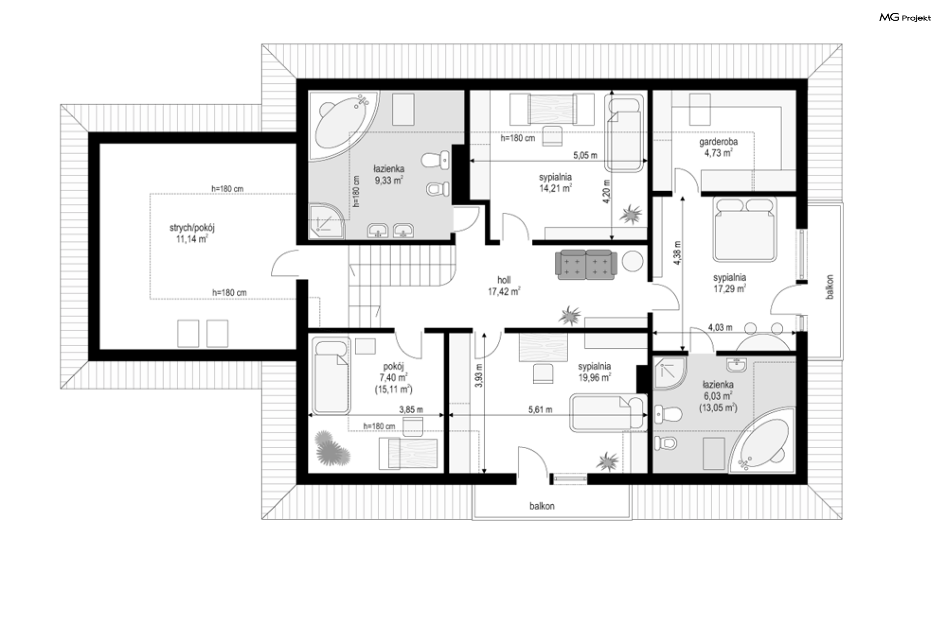
Projekt domu Benedykt to duży, reprezentacyjny dom jednorodzinny nawiązujący do architektury dworkowej - jednak w bardziej nowoczesnym ujęciu. Szerokie, centralnie umieszczone wejście domu akcentuje osiowy podział elewacji frontowej. Bryła została przykryta dużym, wielospadowym dachem, poprzecinanym ciekawymi lukarnami z balkonami. We wnętrzu domu Benedykt zaplanowano obszerny hol z salonem, wydzieloną jadalnią i dużą zamykaną kuchnię. Na parterze zaprojektowano gabinet i pomieszczenia techniczne oraz dwustanowiskowy garaż. Na poddaszu - sypialnię rodziców z własną garderobą i łazienką oraz trzy sypialnie dzieci i łazienkę. W projekcie domu Benedykt strych nad garażem może zostać zaadoptowany na dodatkowe pomieszczenie gospodarcze. Zapraszamy do zapoznania się z pełną ofertą pracowni MG Projekt: projekt domu Benedykt, projekt domu Benedykt 2, projekt domu Benedykt 3, projekt domu Benedykt 4, projekt domu Benedykt 5, projekt domu Benedykt Bliźniak.
-
Projekt szamba szczelnego0 zł399 zł
-
Charakterystyka energetyczna0 zł200 zł
-
Pakiet energooszczędny0 zł150 zł
-
Dziennik budowy0 zł60 zł
-
Tablica budowy0 zł120 zł
-
Wersja elektroniczna projektu550 zł
-
Pakiet kosztorys inwestorski550 zł
-
Pakiet ogrzewanie podłogowe470 zł
-
Powietrzna pompa ciepła470 zł
-
Pakiet wentylacja mechaniczna i kominek DGP470 zł
-
Dodatkowy egzemplarz projektu500 zł
-
Pakiet kotłownia na paliwo stałe470 zł
-
Pakiet instalacja fotowoltaiczna470 zł
-
Pakiet klimatyzacja w domu470 zł
-
Pakiet gruntowa pompa ciepła470 zł
-
Pakiet odkurzacz centralny470 zł
-
Pakiet płaszcz wodny470 zł
-
Pakiet kominek DGP399 zł
-
Projekty altan i grillów ogrodowych650 zł
-
Pakiet instalacja solarna470 zł

opieką konsultacyjną w trakcie budowy domu