22 257 84 76 pon-pt: 9-17
Menu

Czaruś

Dodaj do porównania Usuń z porównania
Dodaj do ulubionych Usuń z ulubionych
Code icon
Lustrzane odbicie
Pow. użytkowa:
87.51m2
Pow. zabudowy:
132.19m2
Koszt budowy:
395000zł
Liczba pokoi:
4
Liczba łazienek:
2
Garaż:
1
Rzuty Elewacja Specyfikacja techniczna Koszty Opis
Share icon
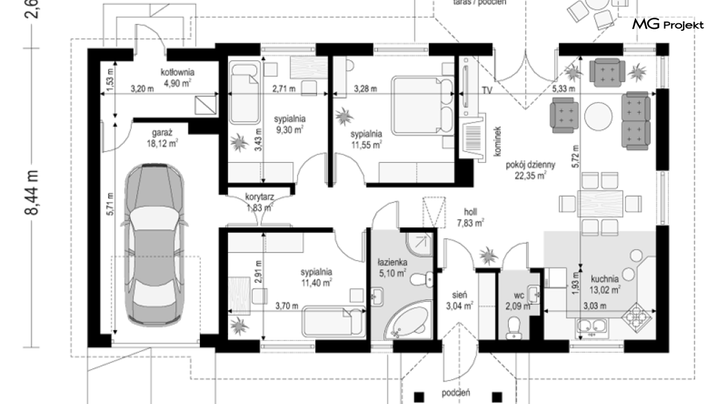
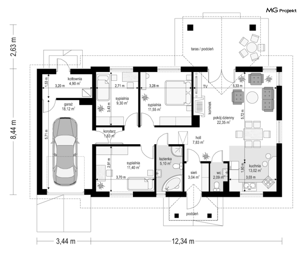
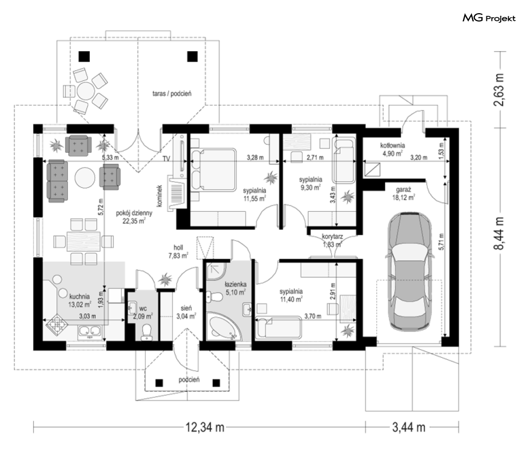
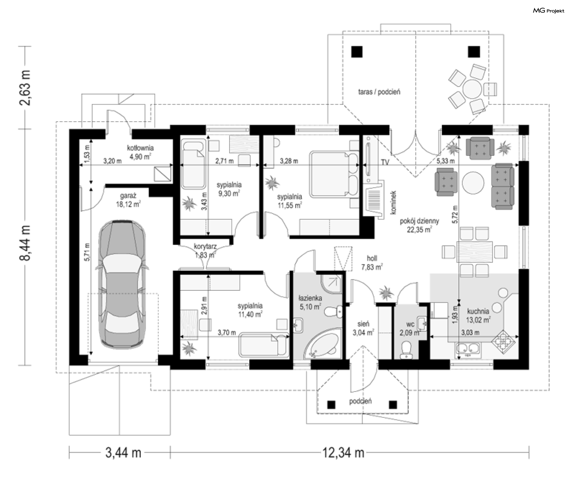
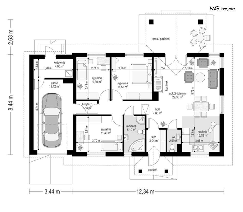
Rzuty
Czaruś
Lustrzane odbicie
Pobierz rysunki szczegółowe
Zapytaj, co możesz zmienić
Zamów rysunki szczegółowe
Zapoznaj się ze szczegółowymi rysunkami rzutów kondygnacji w PDF dla tego projektu.
ZAMAWIAM
Order drawings image
Elewacje
Czaruś
Frontowa
Czaruś
Ogrodowa
Czaruś
Lewa
Czaruś
Prawa
Specyfikacja techniczna
Główne parametry
Powierzchnia użytkowa
87,51 m2
Łączna powierzchnia tzw. pomieszczeń użytkowych. Przede wszystkim nie zalicza się do niej powierzchni garażu, nieużytkowego strychu, piwnicy, kotłowni.
Liczba pokoi
4
Liczba łazienek
2
Garaż
1
Powierzchnia zabudowy
132,19 m2
Powierzchnia zajmowana przez budynek na działce. W praktyce tzw. powierzchnia rzutu budynku wyznaczana po obrysie ścian zewnętrznych.
Pełna specyfikacja
Maksymalna wysokość budynku
5,38 m
Wysokość wyznaczona od poziomu terenu do najwyżej położonej części dachu (np. kalenicy), zwykle bez uwzględnienia kominów.
Kąt nachylenia dachu
24,00°
Nachylenie połaci dachu podane w stopniach.
Minimalne wymiary działki (szerokość)
22,78 m
Szerokość działki wyznaczona przy założeniu, że minimalna odległość budynku od granic działki wynosi przynajmniej 3 m w przypadku ścian bez otworów okiennych lub drzwiowych, albo 4 m w przypadku ścian budynku z takimi otworami.
Minimalne wymiary działki (długość)
18,35 m
Długość działki wyznaczona przy założeniu, że minimalna odległość budynku od granic działki wynosi przynajmniej 3 m w przypadku ścian bez otworów okiennych lub drzwiowych, albo 4 m w przypadku ścian budynku z takimi otworami.
Technologia budowy
Murowany
Typ dachu
Wielospadowy
Kształt dachu – płaski, jednospadowy (jedna skośna połać), dwuspadowy (dwie połacie), wielospadowy (w praktyce o przynajmniej czterech połaciach).
Energooszczędność
Standardowy
Energooszczędny – dom o zapotrzebowaniu na tzw. nieodnawialna energię pierwotną (EP) niższym, niż wymagana przepisami maksymalna wartość.
Typ zabudowy
Jednorodzinny
Koszt: Instalacje
69 426
Łączny koszt wykonania wszystkich niezbędnych instalacji wewnętrznych – grzewczej, wentylacyjnej, wodno-kanalizacyjnej, elektrycznej itd.
Koszt: Wykoczńenie
187 275
Powierzchnia garażu
18,12 m2
Powierzchnia netto budynku
92,41 m2
Łączna powierzchnia wszystkich kondygnacjach obliczana z pominięciem elementów konstrukcyjnych (ściany nośne, słupy itp.) ale wraz z powierzchnią zajmowaną przez ścianki działowe lub inne elementy, które można potencjalnie zdemontować.
Powierzchnia całkowita budynku
132,19 m2
Łączna powierzchnia wszystkich kondygnacjach obliczana po obrysie ścian zewnętrznych, wraz z powierzchnią zajmowaną przez ściany wewnętrzne.
Kubatura budynku
530,00 m3
Objętość budynku, zwykle wraz z elementami konstrukcyjnymi (ścianami, stropami itd.).
Szerokość budynku
15,78 m
Maksymalna szerokość budynku wraz z grubością izolacji cieplnej oraz okładzin ściennych.
Długość budynku
8,44 m
Maksymalna długość budynku wraz z grubością izolacji cieplnej oraz okładzin ściennych.
Liczba kondygnacji
Parterowe
Za kondygnacje uznawane są również poddasza użytkowe oraz piwnice. Kondygnacją nie jest natomiast poddasze nieużytkowe ani antresola.
Koszty
Koszty budowy
395 000 zł
Koszt: Stan pod klucz
Obejmuje koszt wszystkich robót stanu surowego, wykonania instalacji wewnętrznych oraz robót wykończeniowych.
238 000 zł
Koszt: Stan surowy zamknięty
Koszt wzniesienia budynku wraz z pokryciem dachu i stolarką zewnętrzną (okna i drzwi). Bez instalacji, ocieplenia i robót wykończeniowych.
Koszty utrzymania
EP = 69,50 kWh/m2 rok
Oznacza ilość energii nieodnawialnej, jaką budynek może pozyskiwać z nieodnawialnych surowców energetycznych, czyli energii zawartej w paliwach i nośnikach takich jak węgiel, gaz czy ropa naftowa.
Opis

Projekt domu Czaruś to budynek jednorodzinny, parterowy, przykryty czterospadowym dachem, z dobudowanym garażem. Projekt domu Czaruś został zaprojektowany z myślą o 4-5 osobowej rodzinie. Prosta, nieskomplikowana w budowie bryła budynku, oraz bezpretensjonalna architektura, dają czytelny efekt współczesnego domu nawiązującego do tradycji dworkowej, ale z wykorzystaniem nowych materiałów i detali. Elewację frontową domu ozdabia - i jednocześnie akcentuje wejście - centralnie wkomponowany ganek wejściowy, wsparty na dwóch kolumnach. Od strony ogrodu urozmaiceniem bryły jest duży podcień, przekrywający częściowo taras. Wnętrze podzielono na część dzienną - z obszernym salonem, holem i kuchnią, oraz nocną - z trzema sypialniami i łazienką. W projekcie domu Czaruś garaż połączono z wnętrzem korytarzem - garderobą. Za garażem umieszczono kotłownię z wyjściem ogrodowym. Pracownia posiada wersję odbicia lustrzanego projektu.

CZYTAJ WIĘCEJ
Czaruś
BD42765
Powierzchnia użytkowa
Łączna powierzchnia tzw. pomieszczeń użytkowych. Przede wszystkim nie zalicza się do niej powierzchni garażu, nieużytkowego strychu, piwnicy, kotłowni.
87,51 m2
Liczba pokoi
4
Liczba łazienek
2
Garaż
1
Powierzchnia zabudowy
Powierzchnia zajmowana przez budynek na działce. W praktyce tzw. powierzchnia rzutu budynku wyznaczana po obrysie ścian zewnętrznych.
132,19 m2
Inne wersje projektu
Projekt domu Czaruś
Pobierz rysunki szczegółowe tego domu i sprawdź dokładne wymiary pomieszczeń! Wypełnij wszystkie pola, aby dostać rysunki
Administratorem Twoich danych jest AVT-Korporacja sp. z o.o. z siedzibą ul. Leszczynowa 11, 03-197 Warszawa. Chodzi o dane osobowe, które zbieramy, aby móc wysłać Ci nasze produkty (czasopisma w formie drukowanej lub elektronicznej i inne towary) oraz faktury za ich zakup. ... Chcemy przetwarzać Twoje dane osobowe w celach opisanych w naszej polityce prywatności, a w szczególności: w celu realizacji usług świadczonych w naszym sklepie internetowym oraz w innych prawnie usprawiedliwionych celach, w tym marketingu bezpośredniego naszych produktów i usług (tzw. uzasadniony interes administratora). Bez Twojej zgody nie przekażemy i nie będziemy dokonywać obrotu (nie użyczymy, nie sprzedamy) Twoich danych osobowych innym osobom lub instytucjom. Twoje dane osobowe możemy przekazać jedynie podmiotom uprawnionym do ich uzyskania na podstawie obowiązującego prawa (np. sądy lub organy ścigania) – ale tylko na ich żądanie w oparciu o stosowną podstawę prawną. Będziemy przetwarzać Twoje dane osobowe tak długo, jak będzie to niezbędne do wykonania umowy, a po tym czasie – przez okres odpowiadający okresowi przedawnienia roszczeń, jakie może podnosić administrator danych i jakie mogą być podnoszone wobec administratora danych. Masz prawo do żądania od administratora dostępu do Twoich danych, ich sprostowania, usunięcia, ograniczenia ich przetwarzania, wniesienia sprzeciwu wobec przetwarzania Twoich danych lub ich przenoszenia. W każdej chwili możesz odwołać zgodę na przetwarzanie Twoich danych osobowych oraz możesz zażądać, by Twoje wszystkie dane zostały przez nas usunięte. Podstawy prawne przetwarzania Twoich danych osobowych: art. 5, 6, art. 12, art. 13 Ogólnego rozporządzenia o ochronie danych osobowych (RODO), art. 10 Ustawy o świadczeniu usług drogą elektroniczną, Rozporządzenie Ministra Finansów w sprawie przesyłania faktur w formie elektronicznej, zasad ich przechowywania oraz trybu udostępniania organowi podatkowemu lub organowi kontroli skarbowej z dnia 20 grudnia 2012 r. (Dz.U. z 2012 r. poz. 1528) oraz zasadami wystawiania, przesyłania i przechowywania faktury elektronicznej. Czytaj dalej Zwiń
Close icon
Projekt domu Czaruś
Pobierz rysunki szczegółowe tego domu i sprawdź dokładne wymiary pomieszczeń! Wypełnij wszystkie pola, aby dostać rysunki
Administrator danych osobowych: AVT-Korporacja sp. z o.o. z siedzibą: ul. Leszczynowa 11, 03-197 Warszawa. Cel przetwarzania danych: realizacja wysyłki newslettera ...
Przez 27 lata
z nami zbudowano 500 000 domów
Nawet, jeśli nie kupisz u nas projektu, skorzystaj z naszej wiedzy.
Przeczytaj porady zebrane w naszych publikacjach. Zamów bezpłatnie:
Prenumeratę (3 numery) magazynu Budujemy Dom
Zamów bezpłatnie
3 tomy Praktyczna Szkoła Budowania
Zamów bezpłatnie
Zapisz się do Klubu Budujących Dom by kontynuować dowolnie długą bezpłatną prenumeratę magazynu Budujemy Dom
Ostatnio oglądane
Projekt domu Czaruś
Administratorem Twoich danych jest AVT-Korporacja sp. z o.o. z siedzibą ul. Leszczynowa 11, 03-197 Warszawa. Chodzi o dane osobowe, które zbieramy, aby móc wysłać Ci nasze produkty (czasopisma w formie drukowanej lub elektronicznej i inne towary) oraz faktury za ich zakup. ... Chcemy przetwarzać Twoje dane osobowe w celach opisanych w naszej polityce prywatności, a w szczególności: w celu realizacji usług świadczonych w naszym sklepie internetowym oraz w innych prawnie usprawiedliwionych celach, w tym marketingu bezpośredniego naszych produktów i usług (tzw. uzasadniony interes administratora). Bez Twojej zgody nie przekażemy i nie będziemy dokonywać obrotu (nie użyczymy, nie sprzedamy) Twoich danych osobowych innym osobom lub instytucjom. Twoje dane osobowe możemy przekazać jedynie podmiotom uprawnionym do ich uzyskania na podstawie obowiązującego prawa (np. sądy lub organy ścigania) – ale tylko na ich żądanie w oparciu o stosowną podstawę prawną. Będziemy przetwarzać Twoje dane osobowe tak długo, jak będzie to niezbędne do wykonania umowy, a po tym czasie – przez okres odpowiadający okresowi przedawnienia roszczeń, jakie może podnosić administrator danych i jakie mogą być podnoszone wobec administratora danych. Masz prawo do żądania od administratora dostępu do Twoich danych, ich sprostowania, usunięcia, ograniczenia ich przetwarzania, wniesienia sprzeciwu wobec przetwarzania Twoich danych lub ich przenoszenia. W każdej chwili możesz odwołać zgodę na przetwarzanie Twoich danych osobowych oraz możesz zażądać, by Twoje wszystkie dane zostały przez nas usunięte. Podstawy prawne przetwarzania Twoich danych osobowych: art. 5, 6, art. 12, art. 13 Ogólnego rozporządzenia o ochronie danych osobowych (RODO), art. 10 Ustawy o świadczeniu usług drogą elektroniczną, Rozporządzenie Ministra Finansów w sprawie przesyłania faktur w formie elektronicznej, zasad ich przechowywania oraz trybu udostępniania organowi podatkowemu lub organowi kontroli skarbowej z dnia 20 grudnia 2012 r. (Dz.U. z 2012 r. poz. 1528) oraz zasadami wystawiania, przesyłania i przechowywania faktury elektronicznej. Czytaj dalej Zwiń