Klejnot z garażem
Dodaj do porównania
Usuń z porównania
Dodaj do ulubionych
Usuń z ulubionych
Pow. użytkowa:
62.19m2
Pow. zabudowy:
107.02m2
Koszt budowy:
281000zł
Liczba pokoi:
3
Liczba łazienek:
2
Garaż:
1
Rzuty

Lustrzane odbicie
Pobierz rysunki szczegółowe
Zapytaj, co możesz zmienić

Lustrzane odbicie
Pobierz rysunki szczegółowe
Zapytaj, co możesz zmienić
Zamów rysunki szczegółowe
Zapoznaj się ze szczegółowymi rysunkami rzutów kondygnacji w PDF dla tego projektu.
ZAMAWIAM

Elewacje

Frontowa

Ogrodowa

Lewa

Prawa
Specyfikacja techniczna
Główne parametry
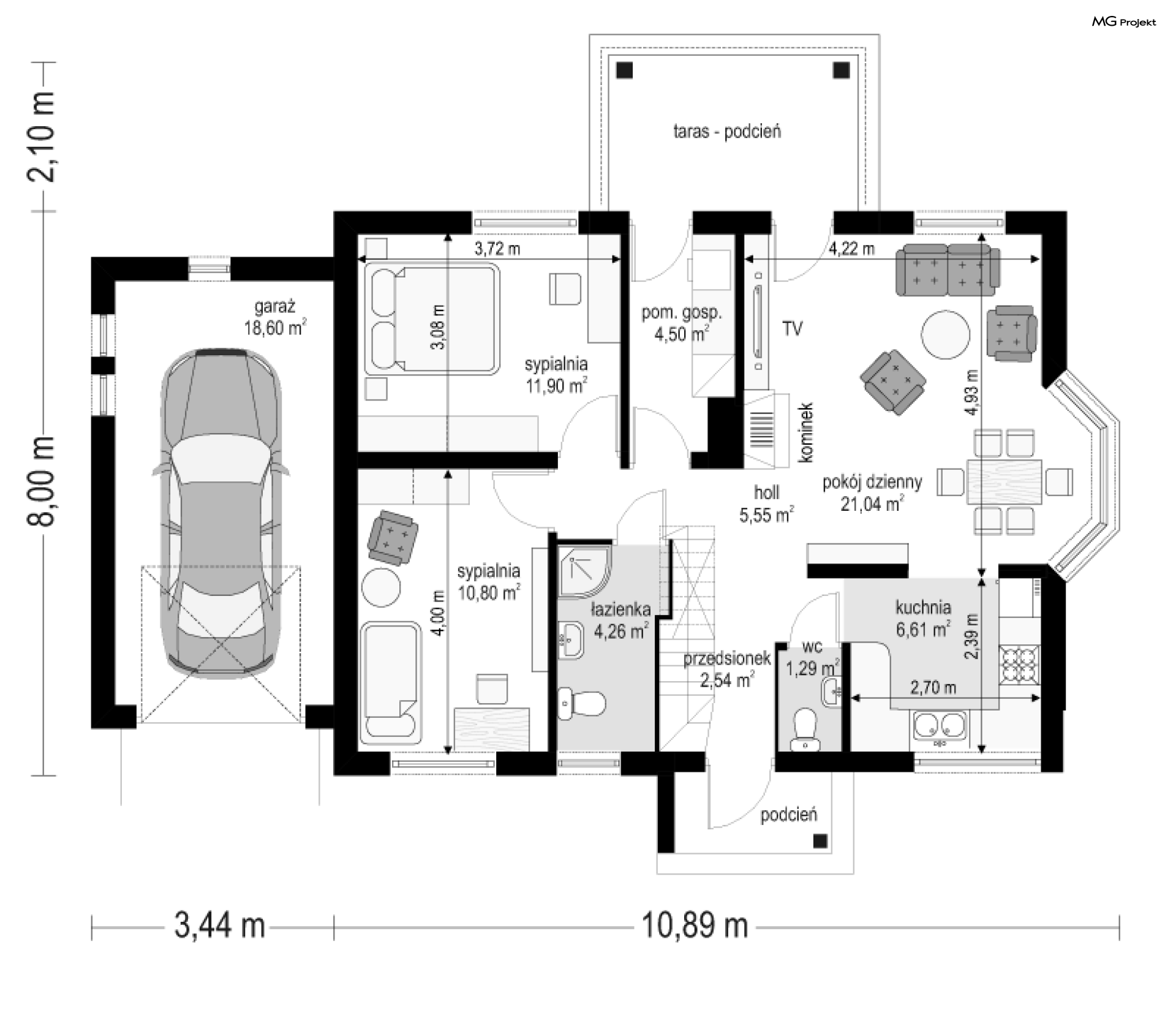
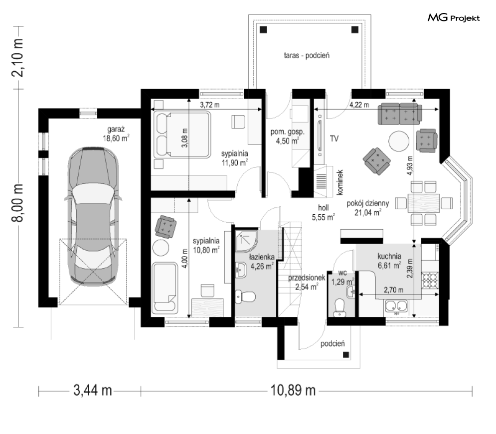
Powierzchnia użytkowa
62,19 m2
Łączna powierzchnia tzw. pomieszczeń użytkowych. Przede wszystkim nie zalicza się do niej powierzchni garażu, nieużytkowego strychu, piwnicy, kotłowni.
Liczba pokoi
3
Liczba łazienek
2
Garaż
1
Powierzchnia zabudowy
107,02 m2
Powierzchnia zajmowana przez budynek na działce. W praktyce tzw. powierzchnia rzutu budynku wyznaczana po obrysie ścian zewnętrznych.
Pełna specyfikacja
Maksymalna wysokość budynku
6,06 m
Wysokość wyznaczona od poziomu terenu do najwyżej położonej części dachu (np. kalenicy), zwykle bez uwzględnienia kominów.
Kąt nachylenia dachu
30,00°
Nachylenie połaci dachu podane w stopniach.
Minimalne wymiary działki (szerokość)
21,33 m
Szerokość działki wyznaczona przy założeniu, że minimalna odległość budynku od granic działki wynosi przynajmniej 3 m w przypadku ścian bez otworów okiennych lub drzwiowych, albo 4 m w przypadku ścian budynku z takimi otworami.
Minimalne wymiary działki (długość)
17,20 m
Długość działki wyznaczona przy założeniu, że minimalna odległość budynku od granic działki wynosi przynajmniej 3 m w przypadku ścian bez otworów okiennych lub drzwiowych, albo 4 m w przypadku ścian budynku z takimi otworami.
Technologia budowy
Murowany
Typ dachu
Wielospadowy
Kształt dachu – płaski, jednospadowy (jedna skośna połać), dwuspadowy (dwie połacie), wielospadowy (w praktyce o przynajmniej czterech połaciach).
Energooszczędność
Standardowy
Energooszczędny – dom o zapotrzebowaniu na tzw. nieodnawialna energię pierwotną (EP) niższym, niż wymagana przepisami maksymalna wartość.
Typ zabudowy
Jednorodzinny
Koszt: Instalacje
70 644 zł
Łączny koszt wykonania wszystkich niezbędnych instalacji wewnętrznych – grzewczej, wentylacyjnej, wodno-kanalizacyjnej, elektrycznej itd.
Koszt: Wykoczńenie
202 570 zł
Powierzchnia garażu
18,60 m2
Powierzchnia netto budynku
66,69 m2
Łączna powierzchnia wszystkich kondygnacjach obliczana z pominięciem elementów
konstrukcyjnych (ściany nośne, słupy itp.) ale wraz z powierzchnią zajmowaną przez ścianki działowe lub inne elementy, które można potencjalnie zdemontować.
Powierzchnia całkowita budynku
107,02 m2
Łączna powierzchnia wszystkich kondygnacjach obliczana po obrysie ścian zewnętrznych, wraz z powierzchnią zajmowaną przez ściany wewnętrzne.
Kubatura budynku
431,00 m3
Objętość budynku, zwykle wraz z elementami konstrukcyjnymi (ścianami, stropami itd.).
Szerokość budynku
14,33 m
Maksymalna szerokość budynku wraz z grubością izolacji cieplnej oraz okładzin ściennych.
Długość budynku
8,00 m
Maksymalna długość budynku wraz z grubością izolacji cieplnej oraz okładzin ściennych.
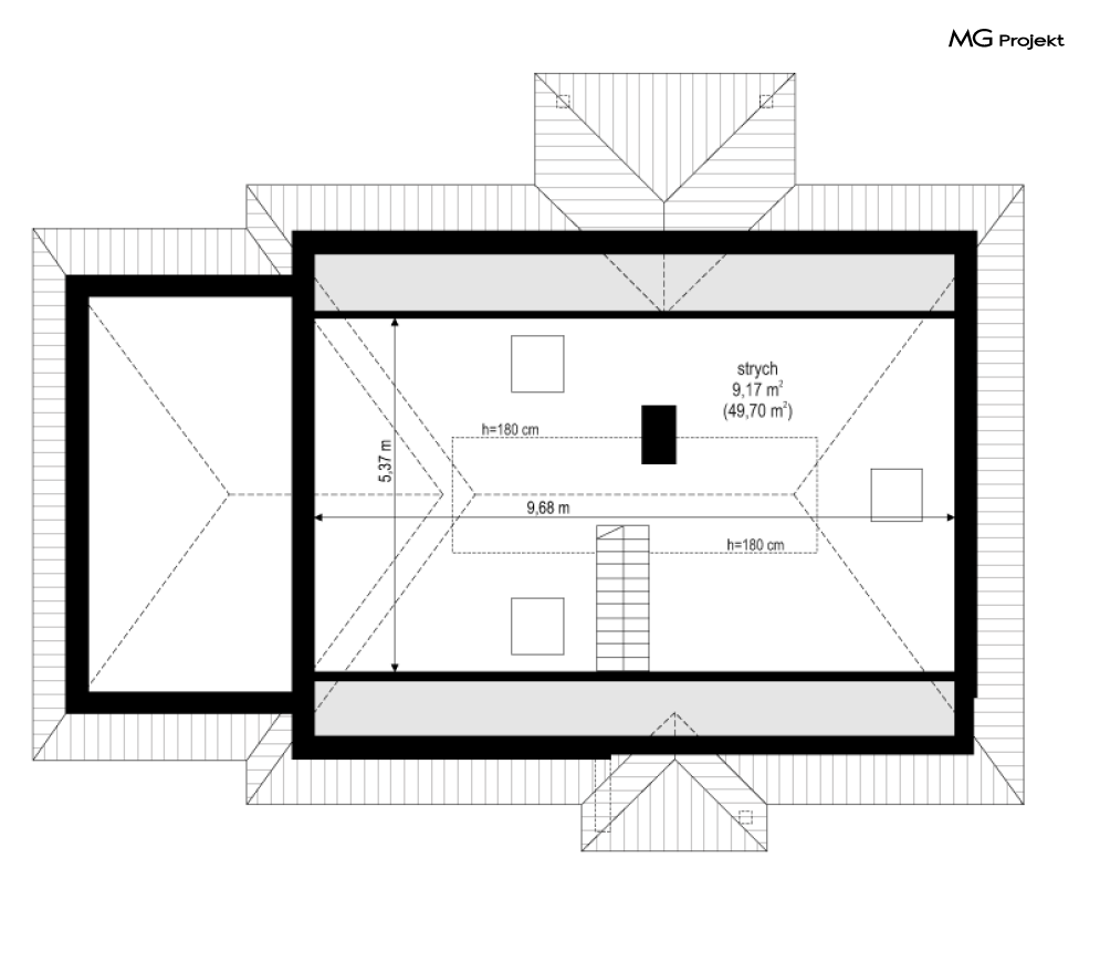
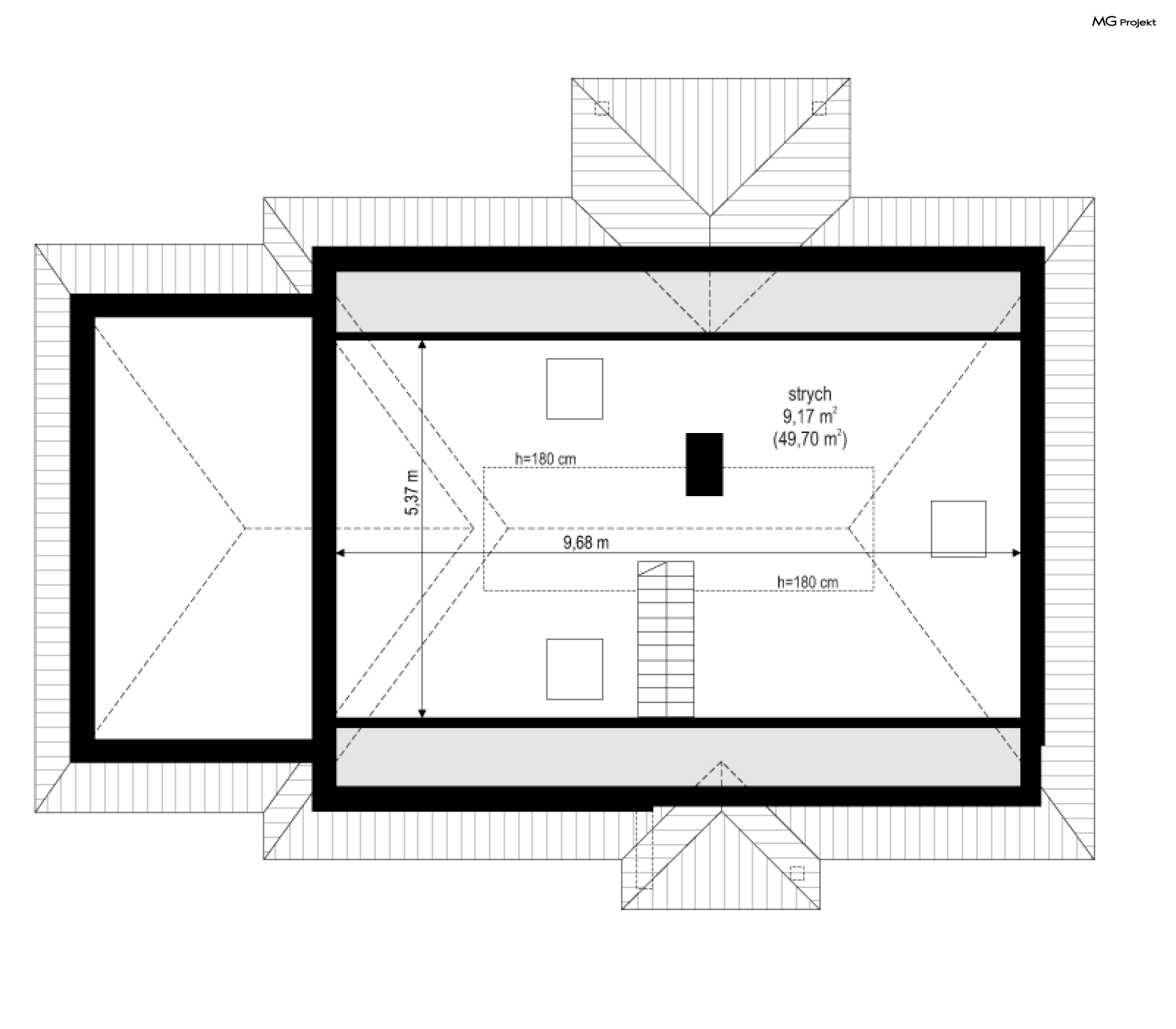
Liczba kondygnacji
Parterowe
Za kondygnacje uznawane są również poddasza użytkowe oraz piwnice. Kondygnacją nie jest natomiast poddasze nieużytkowe ani antresola.
Koszty
Koszty budowy
281 000 zł
Koszt: Stan pod klucz
Obejmuje koszt wszystkich robót stanu surowego, wykonania instalacji wewnętrznych oraz robót wykończeniowych.
169 000 zł
Koszt: Stan surowy zamknięty
Koszt wzniesienia budynku wraz z pokryciem dachu i stolarką zewnętrzną (okna i drzwi). Bez instalacji, ocieplenia i robót wykończeniowych.
Koszty utrzymania
EP = 68,00 kWh/m2 rok
Oznacza ilość energii nieodnawialnej, jaką budynek może pozyskiwać z nieodnawialnych surowców energetycznych, czyli energii zawartej w paliwach i nośnikach takich jak węgiel, gaz czy ropa naftowa.
Opis
Projekt domu Klejnot z garażem to nieduży jednorodzinny dom dla trzyosobowej rodziny lub młodego małżeństwa z małymi dziećmi. Projekt domu w odróżnieniu od wersji podstawowej posiada dobudowany garaż. Budynek może być również użytkowany jako letniskowy. Prosta bryła bez udziwnień umożliwia łatwą i tanią budowę. Dobrane zrównoważone detale architektoniczne sprawiają przy tym, że przyjemnie patrzy sie na domek. Wnętrze zaprojektowano z podziałem na strefy: dzienną i nocną. Projekt domu Klejnot z garażem występuje również w wersji odbicia lustrzanego oraz bez garażu projekt domu Klejnot. Zapraszamy!

Klejnot z garażem
BD42869
Powierzchnia użytkowa
Łączna powierzchnia tzw. pomieszczeń użytkowych. Przede wszystkim nie zalicza się do niej powierzchni garażu, nieużytkowego strychu, piwnicy, kotłowni.
62,19 m2
Liczba pokoi
3
Liczba łazienek
2
Garaż
1
Powierzchnia zabudowy
Powierzchnia zajmowana przez budynek na działce. W praktyce tzw. powierzchnia rzutu budynku wyznaczana po obrysie ścian zewnętrznych.
107,02 m2
Inne wersje projektu
PODOBNE PROJEKTY
