Lugano







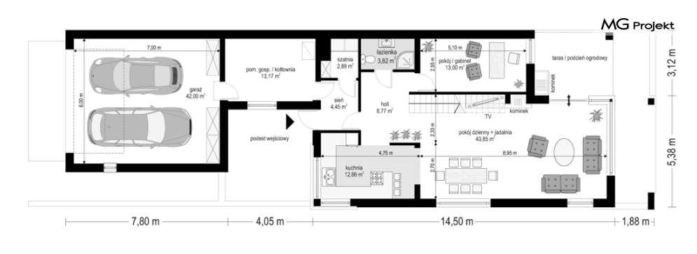
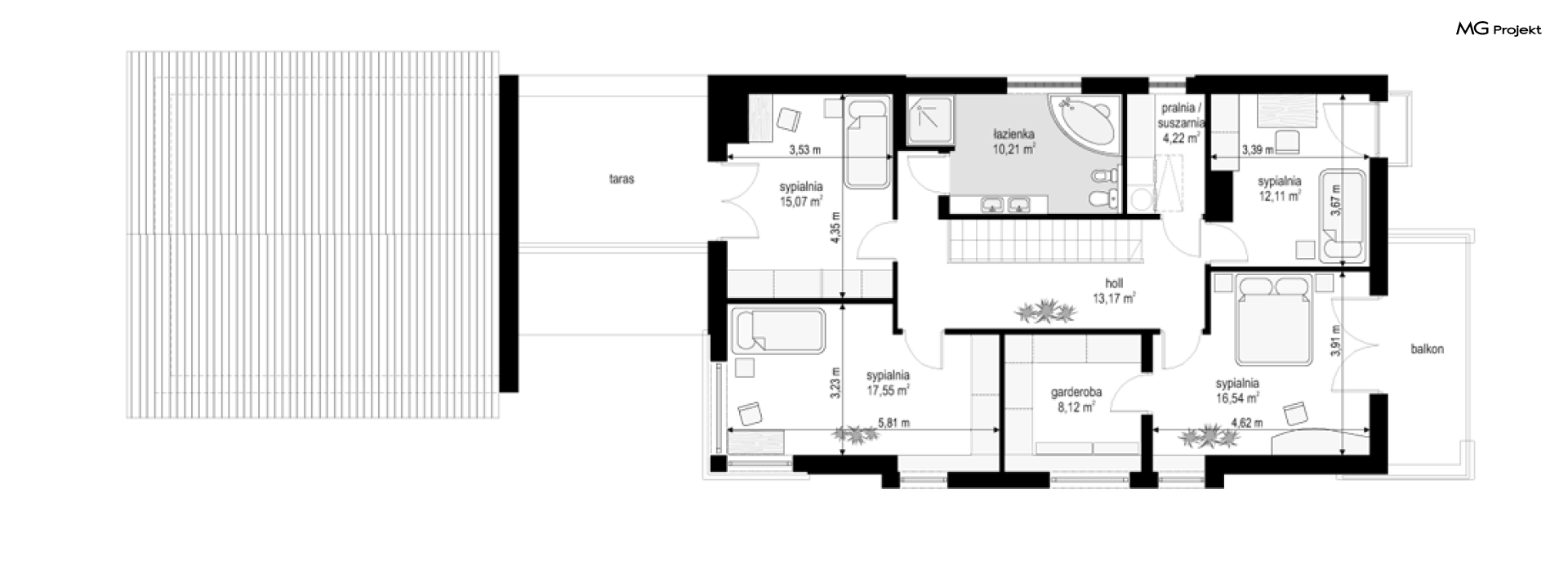
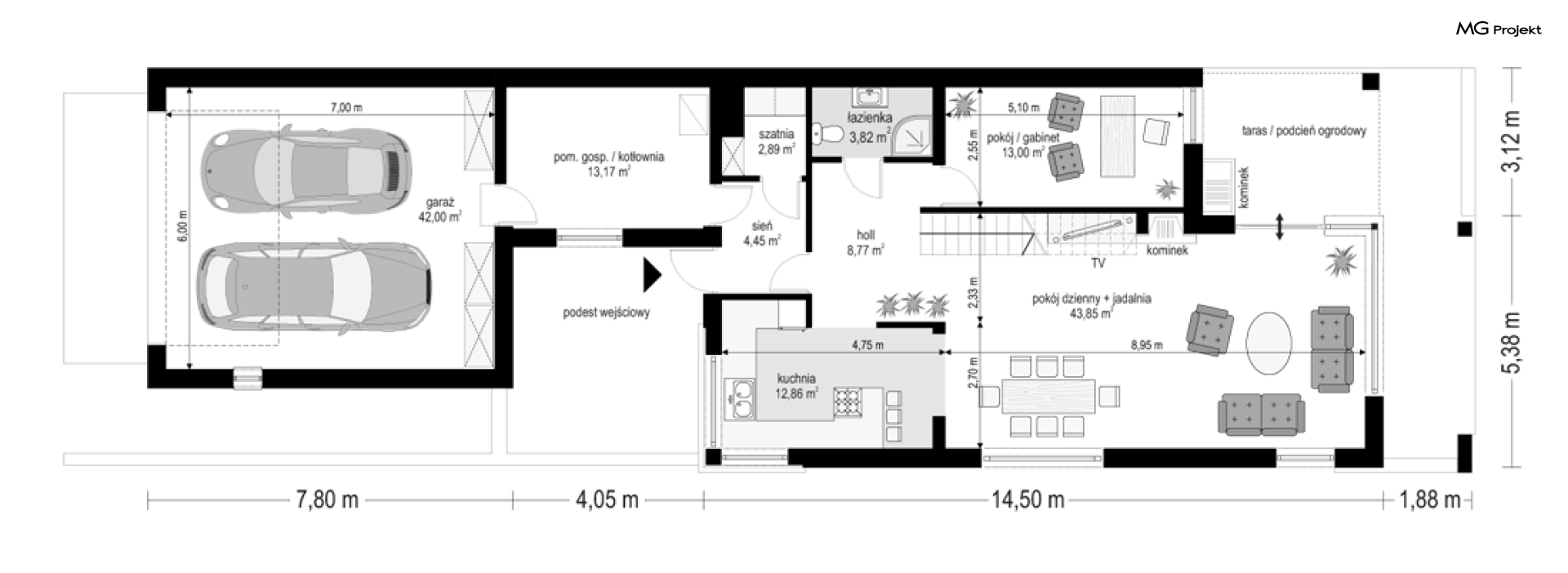
Projekt domu Lugano to willa jednorodzinna dla rodziny cztero-pięcioosobowej. Piętrowy budynek przykryty został dwuspadowym symetrycznym dachem z dachówki ceramicznej. Dom ma nowoczesny charakter, zaprojektowany został z przeznaczeniem dla wąskich działek, na których budynek musi mieć formę długiego wąskiego prostopadłościanu. Część garażowa parterowa została wyciągnięta przed główną bryłę budynku, urozmaicając w ten sposób część frontową. Od strony ogrodu bryłę domu ozdabia narożne okno salonu, podcień i taras piętra na bocznych słupach. Dwuspadowy łagodny dach z dużymi okapami dodaje całemu budynkowi dynamiki. Wnętrze projektu domu Lugano podzielono na jednoprzestrzenną część dzienną na parterze, z ciekawymi, jednobiegowymi schodami, stanowiącymi niewątpliwą ozdobę salonu, oraz część nocną piętra z czterema sypialniami i dużą rodzinną łazienką. Domek pomimo niewielkiej powierzchni jest zaprojektowany funkcjonalnie, a same pomieszczenia są słusznej wielkości. Na parterze obok salonu swoje miejsce znalazł dodatkowy pokój - gabinet lub sypialnia gościnna. Garaż połączono z resztą domu przez duże pomieszczenie techniczne. Z pokoju dziennego można podziwiać ogród przez duże przeszklone otwarcie, połączone z podcieniem z kominkiem zewnętrznym i tarasem. Projekt domu Lugano dostępny jest również w wersji odbicia lustrzanego.

