Luka







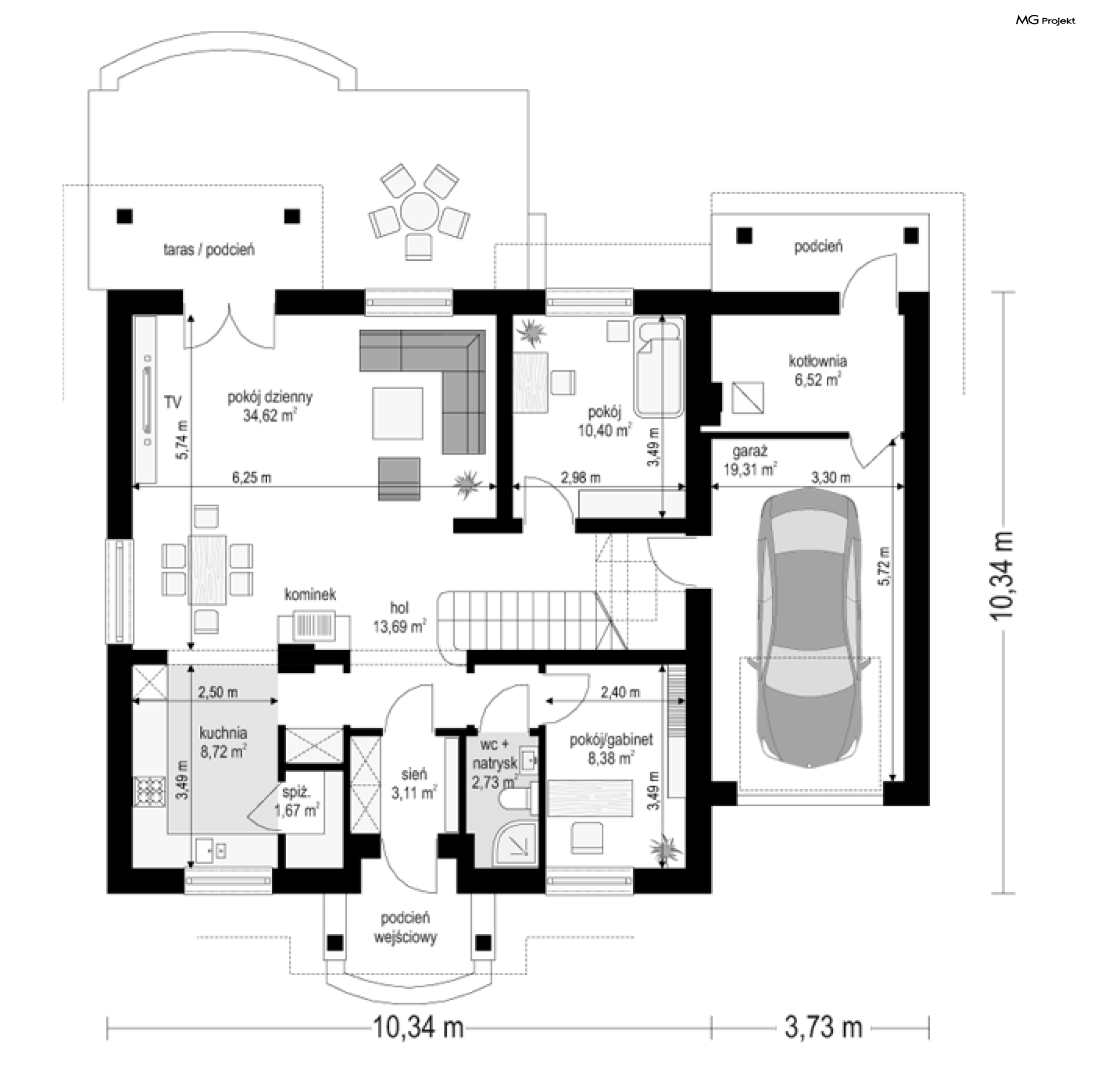
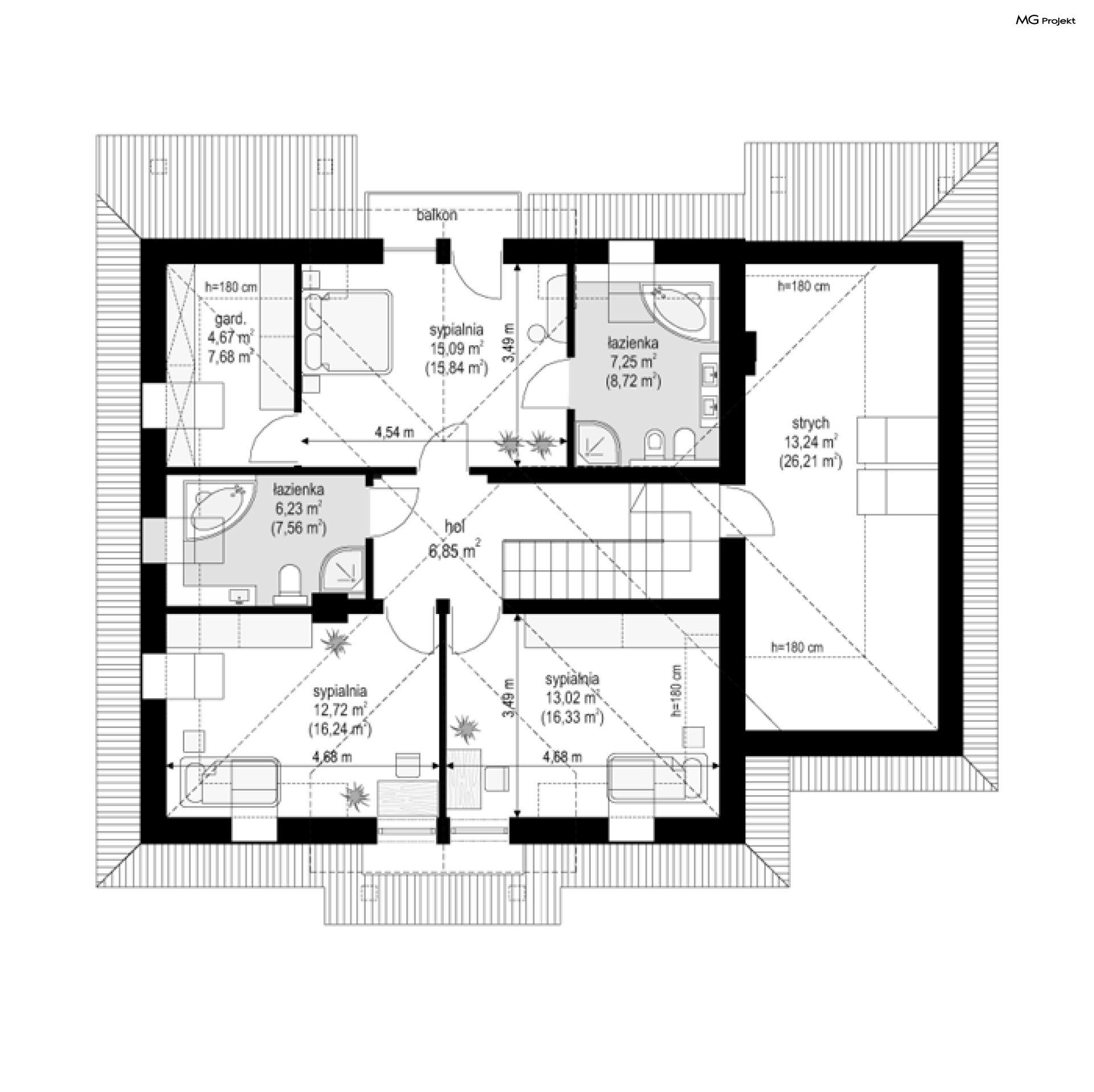
Projekt domu Luka to śliczny domek jednorodzinny dla cztero-sześcioosobowej rodziny, parterowy z poddaszem użytkowym, przekryty kopertowym dachem, z dobudowanym garażem. Bryła została oparta na planie kwadratu, do którego dołączono część garażową. Kopertowy dach urozmaicają lukarny – frontowa z zadaszeniem nad wejściem, wspartym na dwóch kolumnach, oraz ogrodowa z balkonikiem. Od strony ogrodu zaprojektowano dwa dodatkowe zadaszenia: nad częścią tarasu, przekrywające wyjście z salonu do ogrodu, oraz techniczne – przy wyjściu z pomieszczenia gospodarczego do ogrodu. Architektura domu Luka to połączenie tradycji z nowoczesnością. Dom doskonale wpisze się w każde sąsiedztwo. Wnętrze Luki podzielono na część dzienną i gospodarczą na parterze i pokoje sypialne na poddaszu. Salon połączony z holem i częściowo otwartą kuchnią ze spiżarką tworzą jednoprzestrzenne wnętrze dzienne . Na parterze zaprojektowano też dodatkowe dwa pokoje – wyjątek w tej wielkości domach. Pokoje mogę pełnić funkcję gabinetu czy sypialni gościnnej, ale mogą też być pokojem babci. Na dole przewidziano też garaż i sporą kotłownię . Na poddaszu znajdują się trzy sypialnie – dwie dziecięce o tej samej wielkości, ze wspólną łazienką, oraz wygodna sypialnia rodziców z widokiem na ogród, balkonem, garderobą i własną łazienką . Nad częścią garażową znajduje się strych, który można zaadaptować na dodatkowy pokój. Luka to propozycja dla osób lubiących bezpretensjonalną architekturę, nie silącą się na nowoczesność za wszelką ceną, a jednocześnie nie chcących typowego polskiego dworku. To bardzo praktyczny dom, z dużą ilością pokoi, z dużymi możliwościami aranżacji wnętrz, budynek o prostej konstrukcji, energooszczędny, niedrogi w budowie i późniejszej eksploatacji. Pracownia posiada wersję odbicia lustrzanego projektu.
