Miranda








Projekt domu Miranda to nieduży piętrowy domek dla czteroosobowej rodziny. Budynek Miranda charakteryzuje się zwartą, prostą w budowie bryłą i nowoczesną architekturą.
Projekt domu Miranda architektura i wnętrze
Dom Miranda stworzono na planie kwadratu, przekryto go dwuspadowym dachem. Lekko wystający garaż z podcieniem wejściowym, zadaszenie nad tarasem ogrodowym, okładziny naścienne wokół okien - wszystkie te elementy urozmaicają sylwetkę nadając jej atrakcyjny wygląd.
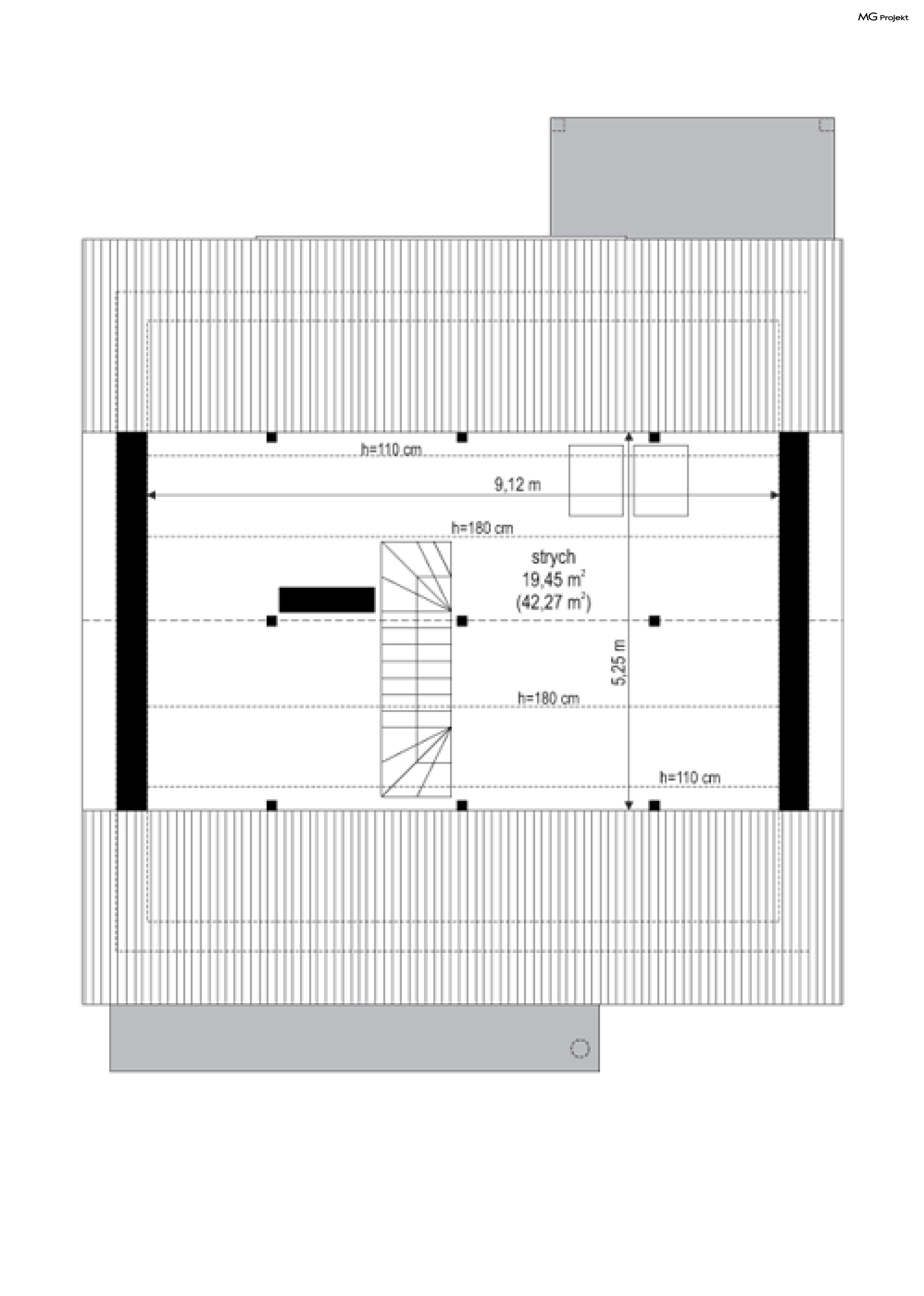
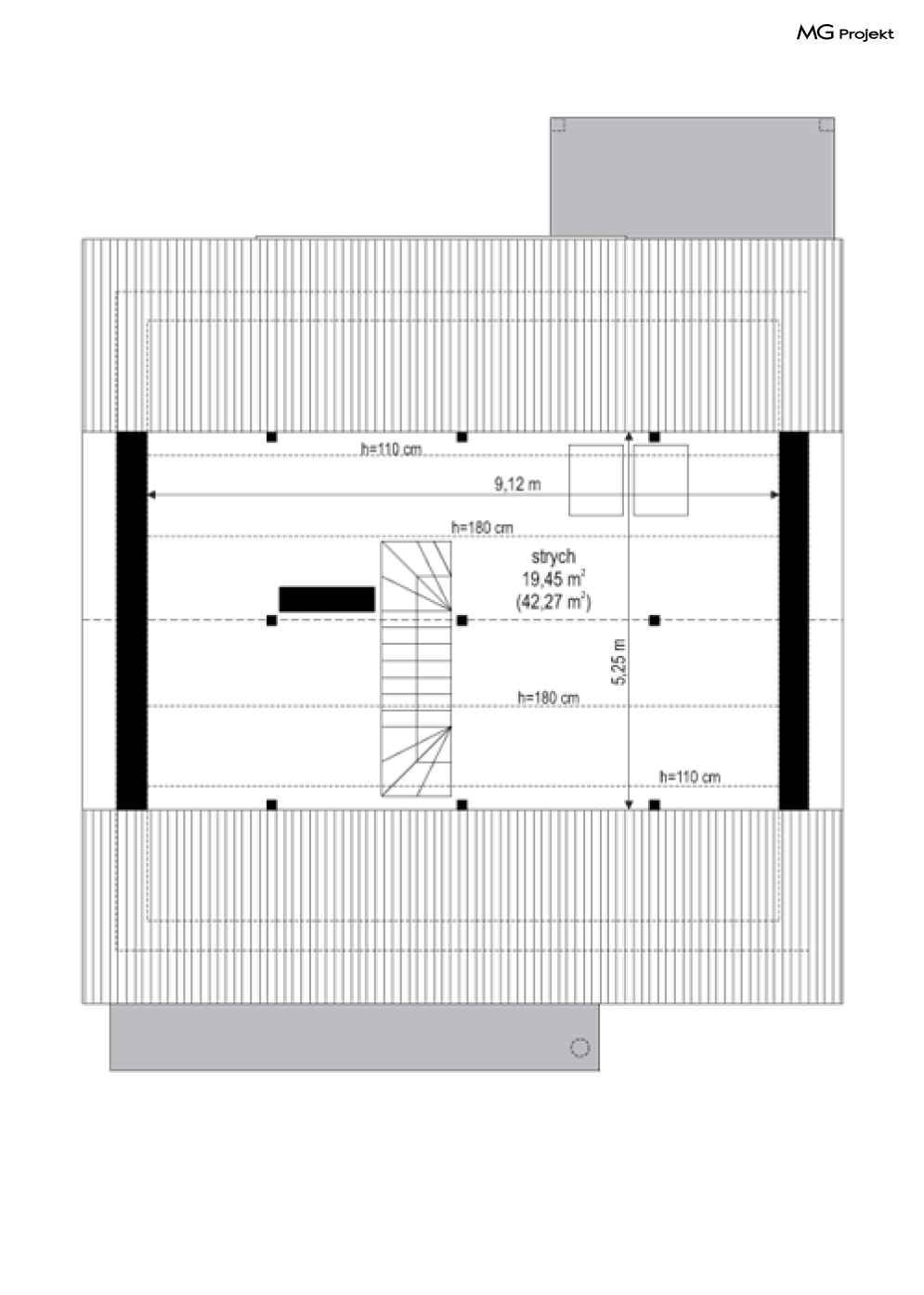
Wnętrze projektu domu Miranda podzielono na część dzienną i gospodarczą na parterze, oraz sypialnie na piętrze. Salon w projekcie domku Miranda połączony został z aneksem jadalnym, holem z wyeksponowanymi schodami i otwartą kuchnią, tworząc w ten sposób jednoprzestrzenne wnętrze dzienne. Garaż dostępny z przedsionka, oraz duża kotłownia stanowią część gospodarczą budynku. Zaprojektowane trzy wygodne sypialnie na piętrze, z garderobą w sypialni rodziców, oraz łazienka z pralnią, to część nocna. Projekt Miranda, choć o niewielkiej powierzchni, mieści w sobie wszystkie potrzebne pomieszczenia. Pokoje są obszerne, a dzięki piętru - nie ma skosów. Nad piętrem znajduje się strych do ewentualnej adaptacji. Pracownia MGProjekt posiada również wersję projektu domu Mirandy w odbiciu lustrzanym.

