Oceanic







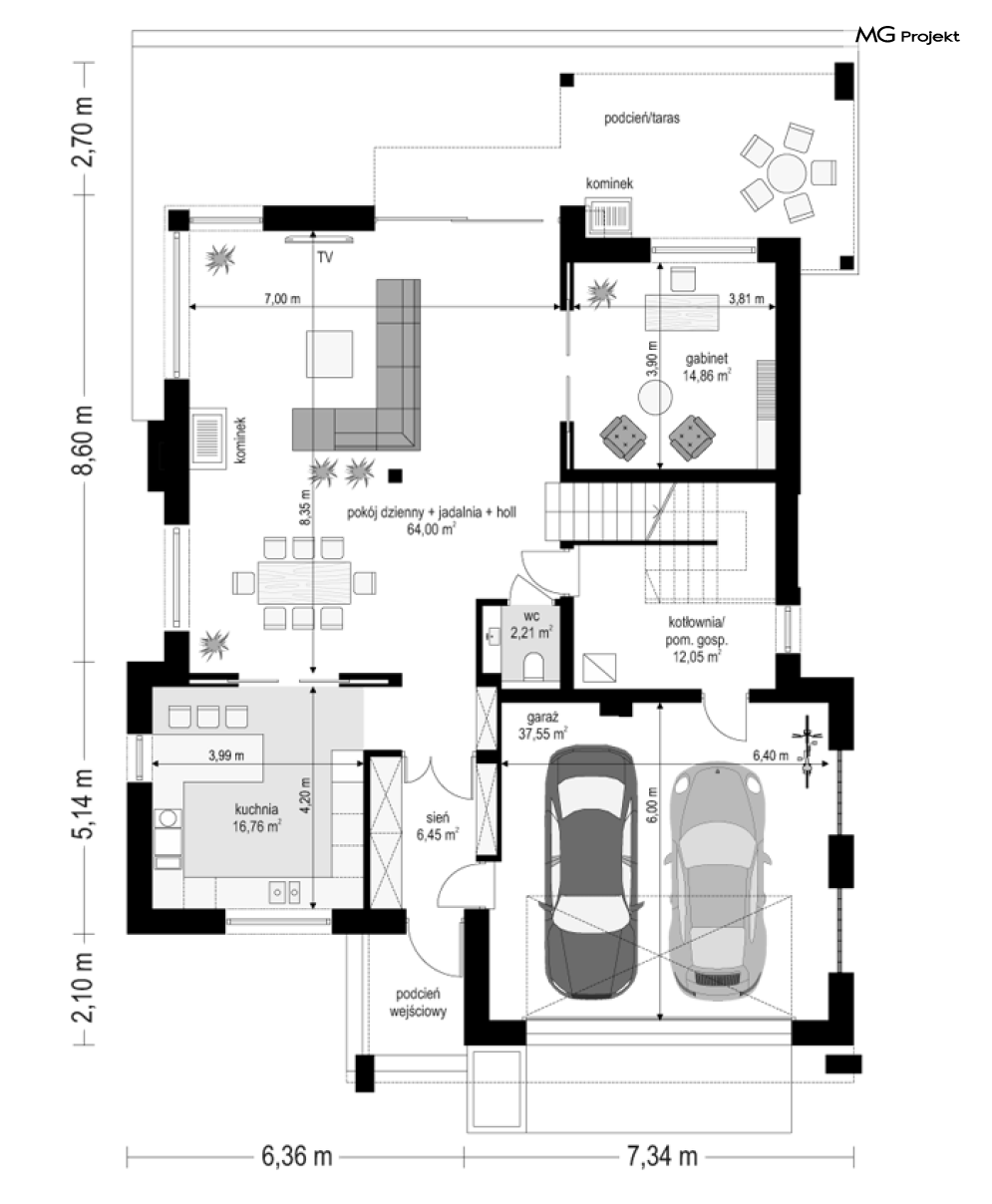
Projekt domu Oceanic to luksusowy piętrowy dom dla cztero-sześciowosobowej rodziny o nowoczesnej zwartej bryle, z ciekawym detalem i materiałami wykończeniowymi. Piętrowa prostokątna sylwetka została tutaj nakryta łagodnym czterospadowym dachem, z szerokimi okapami. Elewacja podzielona została na poziome pasy: na parterze – część murowana i obłożona kamieniem, na piętrze - okładzina drewniana ścian. Dom dzięki dużym przeszkleniom, właściwym proporcjom elewacji, ma w sobie lekkość. Szczególnie elewacja ogrodowa jest bardzo otwarta. Front domu jest nieco bardziej masywny, solidny, z mniejszymi oknami, aby w naturalny sposób swoistą barierę dla wnętrza od ulicy. Wnętrze domu ma maksymalnie prosty program i układ funkcjonalny. Na parterze mieści się duża część dzienna, z salonem, jadalnią, obszerną kuchnią i holem ze schodami. Dodatkowo na parterze mamy ładny podwójny garaż, kotłownię i pokój - gabinet / sypialnię gościnną. Na piętrze natomiast mieści się aż pięć pokoi - bardzo rzadko spotykana rzecz w tej wielkości domach. Pięć pokoi, pralnia suszarnia, dwie łazienki i centralna duża garderoba. Oczywiście podział pomieszczeń można inaczej zaplanować, ale najważniejszy jest fakt, że piętro jest bardzo pojemne. Projekt domu Oceanic to propozycja dla wszystkich tych przyszłych właścicieli domu, którzy cenią sonie nowoczesny wygląd domu, nie lubią poddaszy ze skosami, potrzebują mieć sporo przestrzeni ukrytych w pokojach - poza salonem. Jednocześnie jak na swoją wielkość dom ma na tyle zwartą bryłę i prostą konstrukcję, że koszt jego realizacji nie jest bardzo wysoki. Projekt domu Oceanic został zaprojektowany jako energooszczędny, z dużą ilością dobrych ociepleń, oraz z wentylacją mechaniczną z rekuperacją.
-
Projekt szamba szczelnego0 zł399 zł
-
Charakterystyka energetyczna0 zł200 zł
-
Pakiet energooszczędny0 zł150 zł
-
Dziennik budowy0 zł60 zł
-
Tablica budowy0 zł120 zł
-
Wersja elektroniczna projektu550 zł
-
Pakiet kosztorys inwestorski550 zł
-
Pakiet ogrzewanie podłogowe470 zł
-
Powietrzna pompa ciepła470 zł
-
Pakiet wentylacja mechaniczna i kominek DGP470 zł
-
Dodatkowy egzemplarz projektu500 zł
-
Pakiet kotłownia na paliwo stałe470 zł
-
Pakiet instalacja fotowoltaiczna470 zł
-
Pakiet klimatyzacja w domu470 zł
-
Pakiet gruntowa pompa ciepła470 zł
-
Pakiet odkurzacz centralny470 zł
-
Pakiet płaszcz wodny470 zł
-
Pakiet kominek DGP399 zł
-
Projekty altan i grillów ogrodowych650 zł
-
Pakiet instalacja solarna470 zł

opieką konsultacyjną w trakcie budowy domu
