Pod Dębami







Projekt domu Pod Dębami to uroczy dom jednorodzinny, parterowy, z użytkowym poddaszem, przeznaczony dla 4-5 osobowej rodziny. Dom Pod Dębami został zaprojektowany w taki sposób, aby nadawał się także na działkę o niekorzystnym ułożeniu ogrodu i wjazdu względem stron świata - szczególnie na parcelę z wjazdem od południa. Powierzchnia użytkowa proejktu Pod Dębami to 150,89 m2.
Projekt domu Pod Dębami architektura i wnętrze
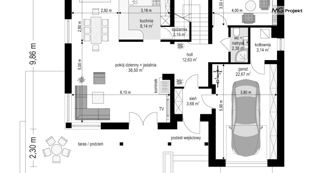
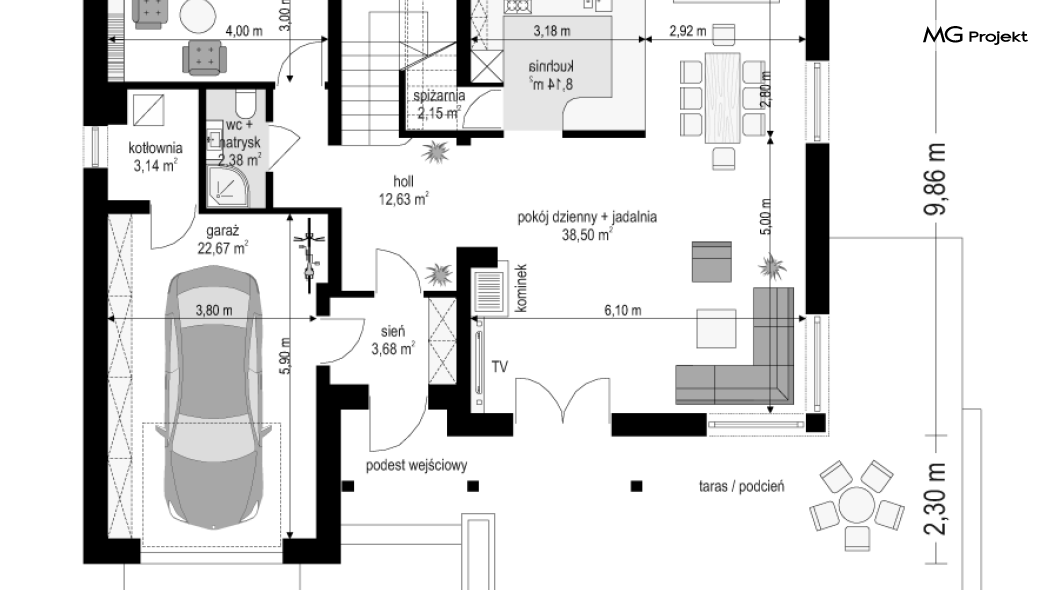
Gotowy projekt domu Pod Dębami to budynek parterowy, z poddaszem użytkowym, przekryty dwuspadowym dachem z lukarnami z przodu i z tyłu. Rzut parteru domu ma formę litery "T", z zasadniczą prostokątną częścią i wystającymi dobudówkami: garażu i dodatkowego pokoju na parterze. Spokojna tradycyjna architektura budynku, z dużą ilością drewnianych elementów, oraz czerwonym dachem z dachówki i okładzinami klinkierowymi, tworzą przytulny nastrój odwołania do przedwojennych willi. Ładne przeszklenia okien i drzwi balkonowych w projekcie Pod Dębami stanowią urozmaicenie elewacji, a zarazem otwierają wnętrze budynku na otaczający ogród. Projekt Pod Dębami, dzięki dość prostej bryle, jest łatwy w budowie, będzie także niedrogi w utrzymaniu. Koszt budowy domu Pod Dębami to 271230 zł za stan surowy zamknięty.
Detale architektoniczne zastosowane w projekcie, jak: lukarny, łukowe okienka, podcień budynku wsparty na drewnianych słupkach – wszystkie te elementy pasują do siebie i tworzą spójną całość. Nie komplikują też zasadniczej konstrukcji budynku.
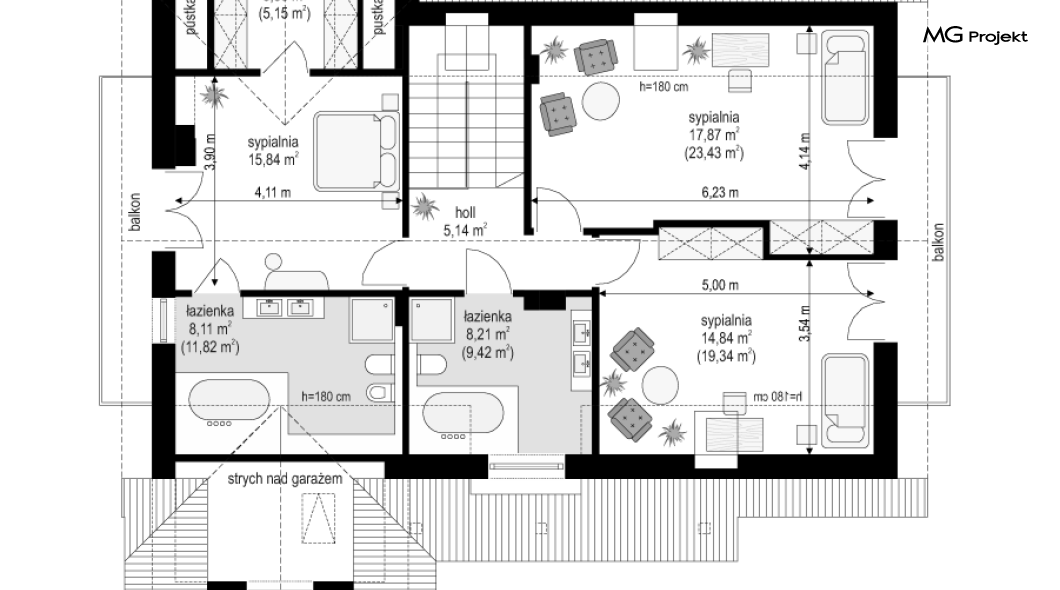
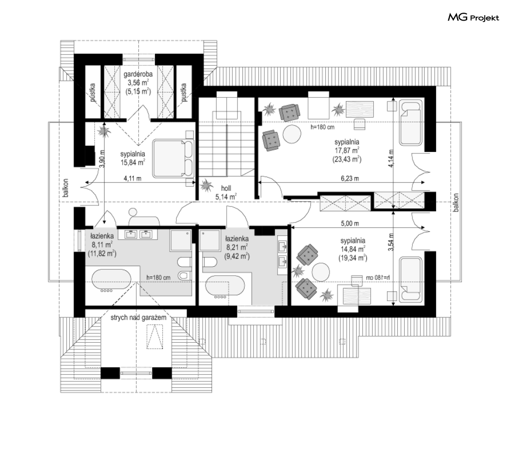
Wnętrze projektu Pod Dębami podzielono na dwie części: na parterze budynku mamy część dzienną, oraz pomieszczenia gospodarcze i garaż, a na poddaszu część z sypialniami i łazienkami. Do projektu Pod Dębami wchodzimy przez wygodny przedsionek, połączony przejściem z garażem i kotłownią. Z holu plan prowadzi nas na boki: do przestrzeni dziennej - z salonem, jadalnią i kuchnią, oraz do dodatkowego pokoju - gabinetu, lub sypialni gościnnej, oraz łazienki. Z salonu drzwiami balkonowymi wydostaniemy się na zadaszony taras, a przez piękne narożne okno możemy podziwiać ogród, znajdujący się przed, lub z boku domu. Reprezentacyjne schody projektu wiodą nas na poddasze, a tam znajdujemy trzy wygodne sypialnie, w tym sypialnię rodziców z osobną łazienką (właściwie pokojem kąpielowym) i garderobą, oraz sypialnie dziecięce z drugą łazienką. Pomieszczenia na poddaszu budynku, mimo skosów są bardzo przestronne i komfortowe.
Pracownia MGProjekt posiada wersję odbicia lustrzanego projektu Pod Dębami.
