Przepiórka







Projekt domu Przepiórka to domek jednorodzinny mogący służyć również jako letniskowy. Niewielki budynek, o prostej konstrukcji jest tani w budowie i ekonomiczny w późniejszej eksploatacji.
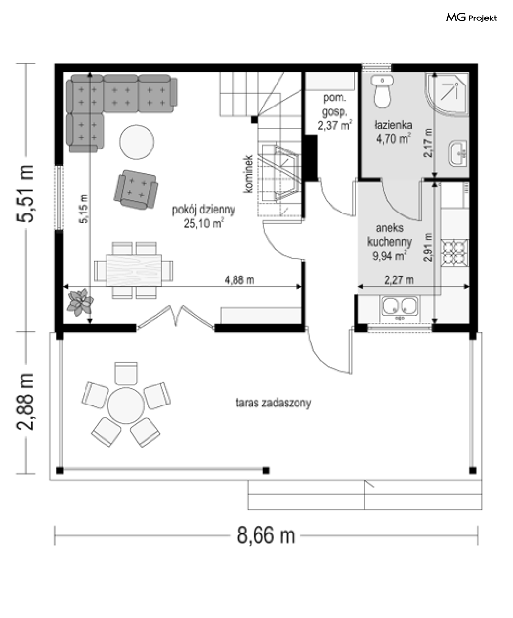
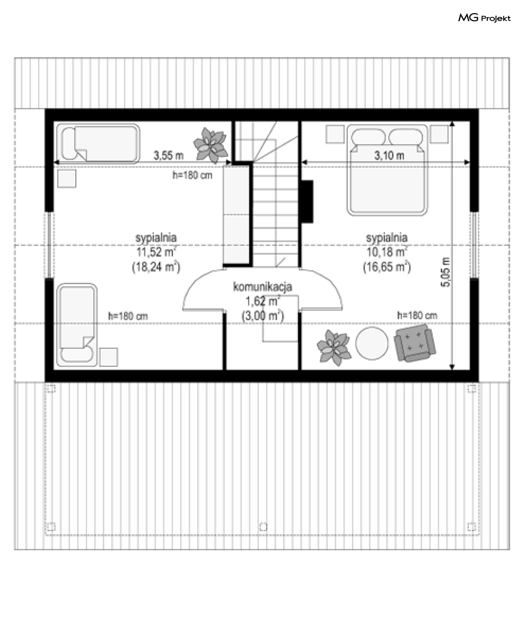
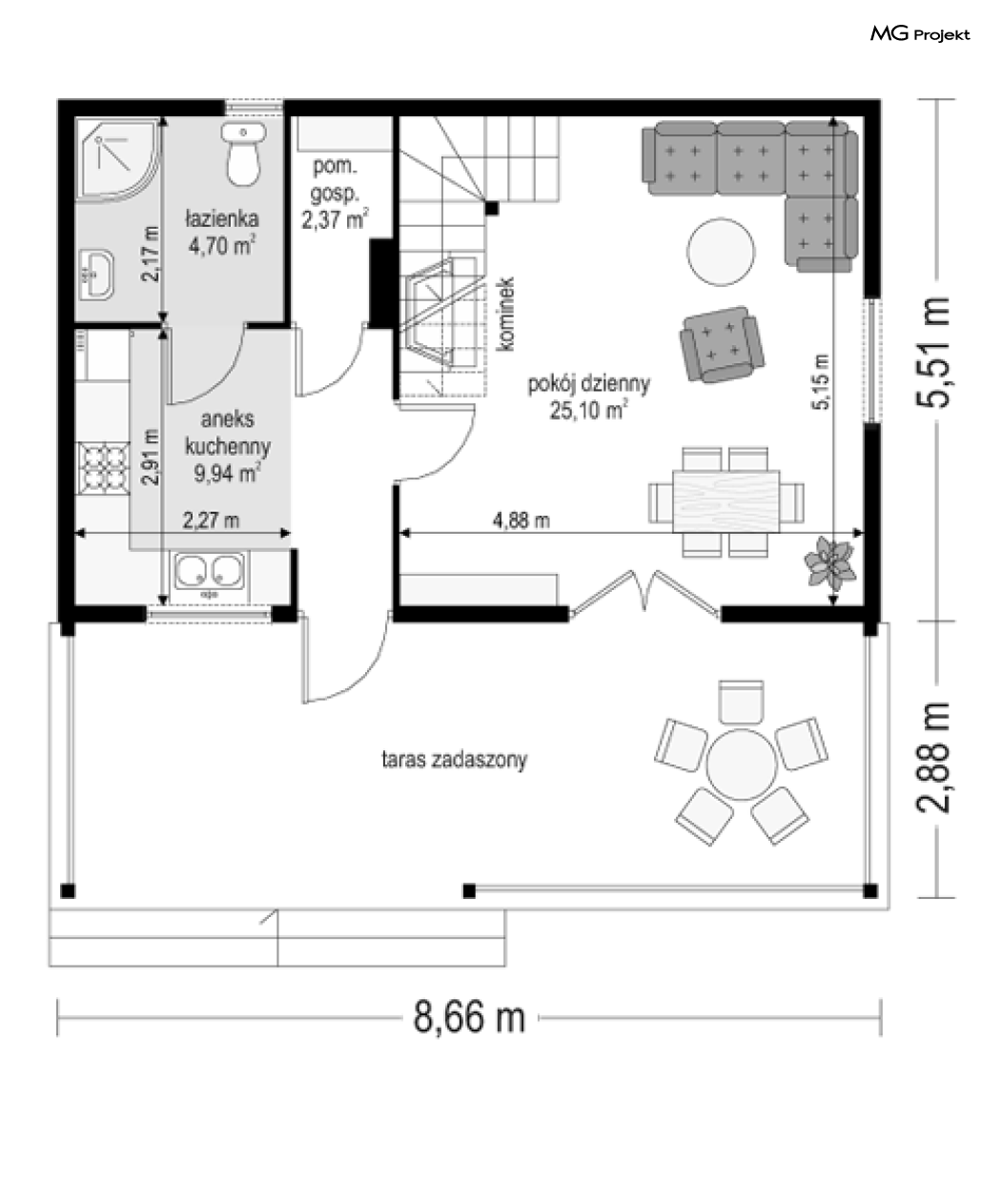
Projekt domu Przepiórka składa się z pokoju dziennego na parterze, oraz łazienki, pomieszczenia gospodarczego i kuchni. Na poddaszu natomiast - z dwóch pokoi sypialnych. Atutem projektu domu Przepiórka jest wielka zadaszona weranda, gdzie można schronić się przed słońcem lub deszczem. Weranda w projekcie domku Przepiórka połączona jest z salonem podwójnymi balkonowymi drzwiami, oraz drzwiami wejściowymi.
Domek Przepiórka został zaprojektowany w konstrukcji drewnianej szkieletowej. Jego murowanym odpowiednikiem jest projekt Sosenka 2 znajdujący się w ofercie autorskiej pracowni architektonicznej MG Projekt. Pracownia dysponuje projektem domu Przepiórka w odbiciu lustrzanym, oraz wersją wariantową (projekt domu Przepiórka Wariant B) ze zmienionym układem pomieszczeń i dodatkowym pokojem na parterze.
-
Projekt szamba szczelnego0 zł399 zł
-
Charakterystyka energetyczna0 zł200 zł
-
Pakiet energooszczędny0 zł150 zł
-
Dziennik budowy0 zł60 zł
-
Tablica budowy0 zł120 zł
-
Wersja elektroniczna projektu550 zł
-
Pakiet kosztorys inwestorski550 zł
-
Pakiet ogrzewanie podłogowe470 zł
-
Powietrzna pompa ciepła470 zł
-
Pakiet wentylacja mechaniczna i kominek DGP470 zł
-
Dodatkowy egzemplarz projektu500 zł
-
Pakiet kotłownia na paliwo stałe470 zł
-
Pakiet instalacja fotowoltaiczna470 zł
-
Pakiet klimatyzacja w domu470 zł
-
Pakiet gruntowa pompa ciepła470 zł
-
Pakiet odkurzacz centralny470 zł
-
Pakiet płaszcz wodny470 zł
-
Pakiet kominek DGP399 zł
-
Projekty altan i grillów ogrodowych650 zł
-
Pakiet instalacja solarna470 zł

opieką konsultacyjną w trakcie budowy domu
