Rezydencja Parkowa 2







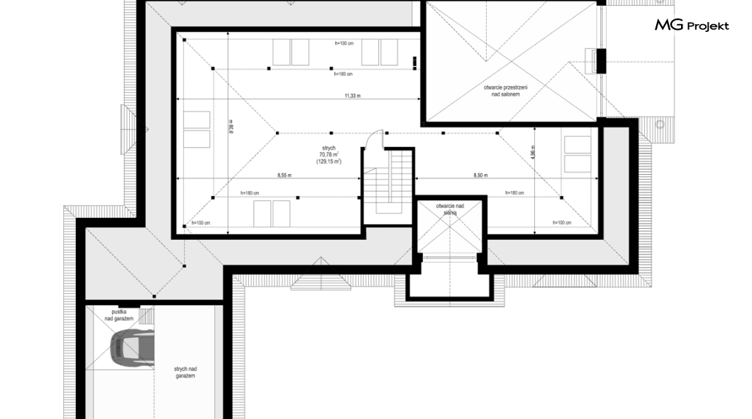
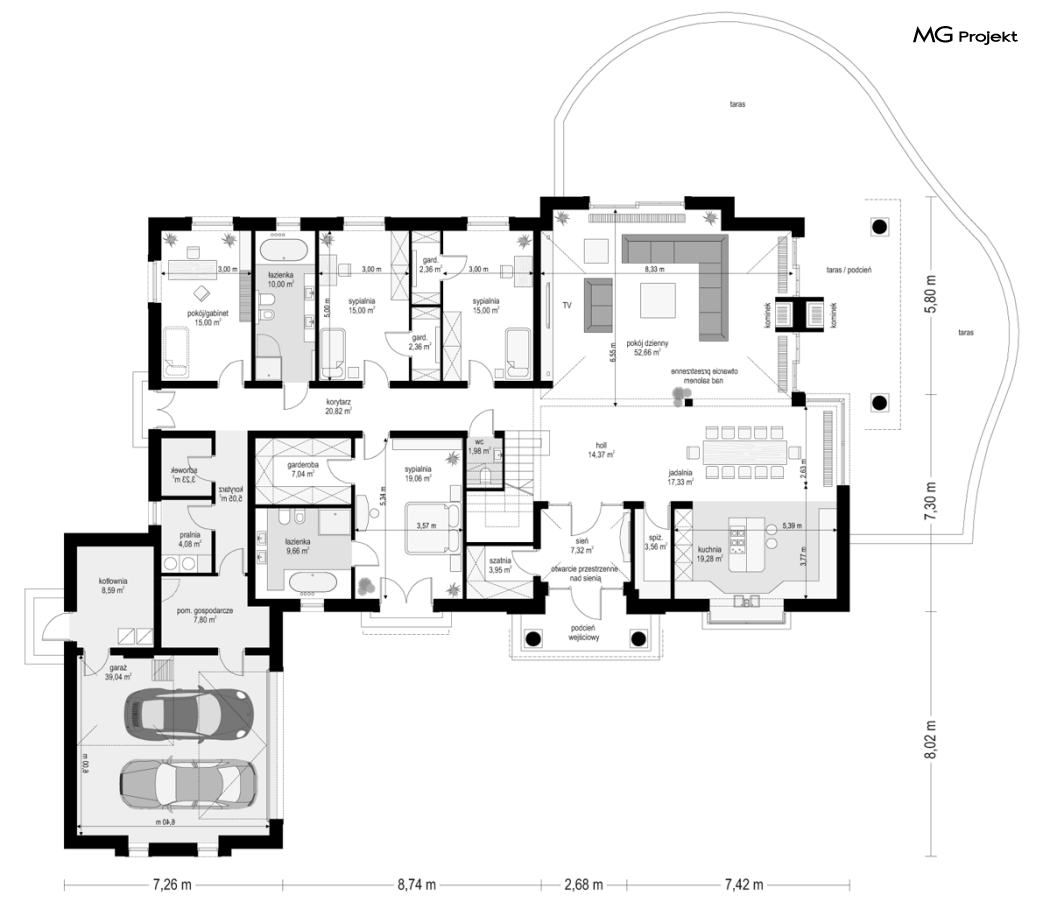
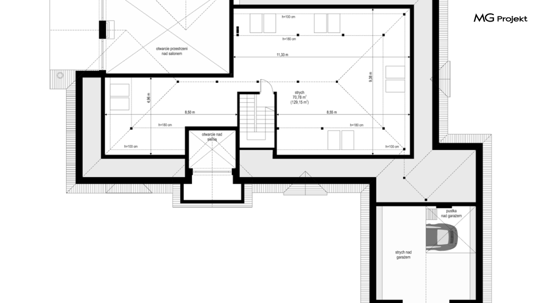
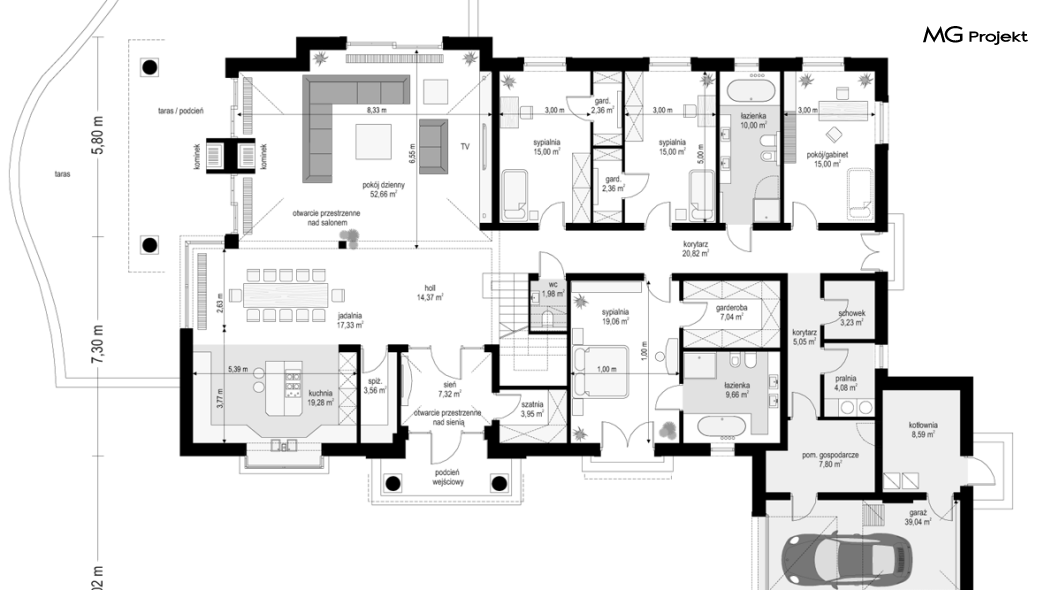
Projekt domu Rezydencja parkowa 2 jest nieco mniejszą wersją popularnego projektu Rezydencja parkowa. Projekt jest odpowiedzią na pragnienie wielu Inwestorów, aby zamieszkać w rozległej parterowej willi, na jednej kondygnacji, blisko otaczającego dom ogrodu. Mieszkanie w parterowym domu daje ogromne poczucie komfortu - nie ma wiecznego biegania po schodach. Dom przeznaczony jest dla 4-6cioosobowej rodziny. Wnętrze Rezydencji parkowej 2 podzielono na trzy części : dzienną - dużą otwartą przestrzeń użytkowaną wspólnie przez domowników, część nocną - z sypialniami, łazienkami i garderobami, oraz część gospodarczą - z pomieszczeniami gospodarczymi i wygodnym garażem. Reprezentacyjny salon, połączony z jadalnią, holem i kuchnią tworzy bardzo atrakcyjne wnętrze. Będzie w nim można urządzać fantastyczne przyjęcia z rodziną i znajomymi. Z salonu wychodzimy do ogrodu - przez obszerny podcień z kominkiem, lub bezpośrednio drzwiami balkonowymi na taras tylni. Wygodna część wejściowa – z dużą sienią, holem i eleganckimi schodami zaprasza wchodzące do domu osoby. W części nocnej umieszczono sypialnie - państwa domu i dzieci. Sypialnia rodziców to osobny apartament – z własną łazienką i dużą garderobą. Zaletą domu Rezydencja parkowa 2 jest niewątpliwie niemała część gospodarczo-techniczna, z podwójnym garażem i pomieszczeniami gospodarczymi. Nad parterem przewidziano dużą przestrzeń strychową, którą można zaadaptować na część użytkową. Wówczas uzyskujemy dodatkowe ca 60 m2 powierzchni wnętrza. Architektura zewnętrzna domu nawiązuje do klimatu polskiego dworku w połączeniu z językiem detali zaczerpniętych z amerykańskich, czy francuskich podmiejskich willi. Taki styl architektoniczny zapewni domowi ponadczasowość - budynek nigdy nie stanie się niemodny, nigdy się nie zestarzeje. Projekt domu Rezydencja parkowa 2 jest praktyczną, nowoczesną, „kompaktową” rezydencją na miarę XXI wieku. Pracownia oferuje też wersję domu w odbiciu lustrzanym, oraz inne weresje serii: (Rezydencja Parkowa), (Rezydencja Parkowa 3), (Rezydencja Parkowa 3C), (Rezydencja Parkowa 3D), (Rezydencja Parkowa 4).
Uwaga do kosztów realizacji:
Wycena zakłada zagospodarowanie strychu na poddasze użytkowe.
Przy pozostawieniu strychu jako nieużytkowego koszt budowy jest niższy - odpowiednio o:
SSO - 9 170 zł / SSZ - 21 267 zł /
RW - 28 400 zł / RDPK - 49 667 zł
-
Projekt szamba szczelnego0 zł399 zł
-
Charakterystyka energetyczna0 zł200 zł
-
Pakiet energooszczędny0 zł150 zł
-
Dziennik budowy0 zł60 zł
-
Tablica budowy0 zł120 zł
-
Wersja elektroniczna projektu550 zł
-
Pakiet kosztorys inwestorski550 zł
-
Pakiet ogrzewanie podłogowe470 zł
-
Powietrzna pompa ciepła470 zł
-
Pakiet wentylacja mechaniczna i kominek DGP470 zł
-
Dodatkowy egzemplarz projektu500 zł
-
Pakiet kotłownia na paliwo stałe470 zł
-
Pakiet instalacja fotowoltaiczna470 zł
-
Pakiet klimatyzacja w domu470 zł
-
Pakiet gruntowa pompa ciepła470 zł
-
Pakiet odkurzacz centralny470 zł
-
Pakiet płaszcz wodny470 zł
-
Pakiet kominek DGP399 zł
-
Projekty altan i grillów ogrodowych650 zł
-
Pakiet instalacja solarna470 zł

opieką konsultacyjną w trakcie budowy domu
