Rozsądny







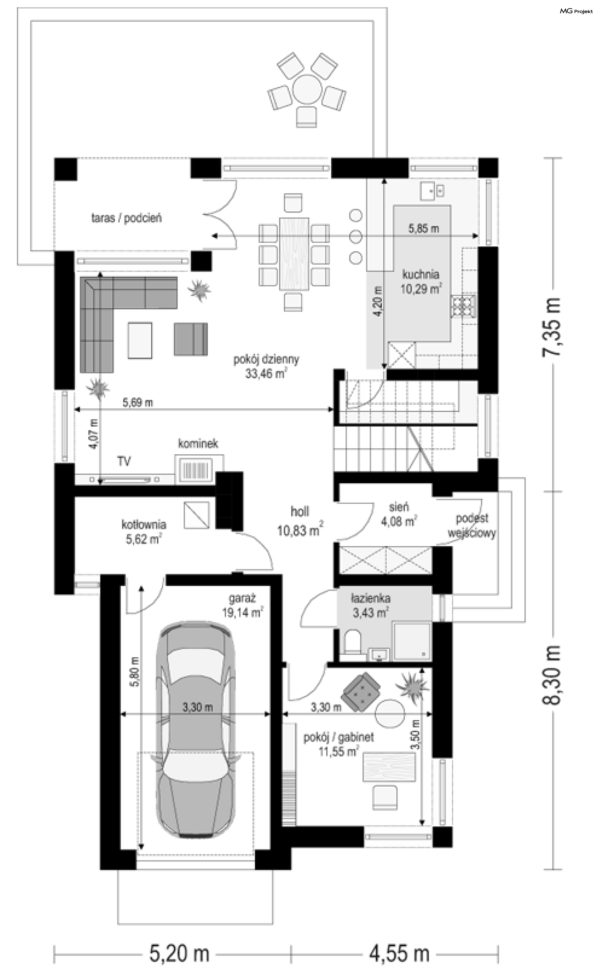
Projekt domu Rozsądny to dom jednorodzinny dla rodziny 4-5 osobowej, z gabinetem na parterze, który może służyć jako firmowe biuro (łatwo jest zapewnić osobne wejście z przedsionka, przesuwając łazienkę). Budynek zaprojektowano jako podłużny prostokąt, przykryty dwuspadowym dachem. Domek Rozsądny, dzięki niedużej szerokości frontu, może być posadowiony na wąskiej działce. Nowoczesna architektura, łączy w sobie prostotę geometrii budynku, z zastosowanymi ciekawymi materiałami i kolorystyką. Właściwe proporcje domu zostały dodatkowo podkreślone oddzieleniem pasa ścian parteru, od ścian szczytowych, kolankowych i samego dachu. Bryła zewnętrzna jest spokojna i uporządkowana. Ma jednocześnie nowoczesny sznyt. Wnętrze domu Rozsądny dzieli się na część dzienną i techniczną na parterze, oraz sypialnie na poddaszu. Na parterze zaprojektowano jednoprzestrzenne wnętrze połączonego salonu, jadalni, holu i kuchni. Wszystkie te pomieszczenia mają – dzięki dużym przeszkleniom - piękną ekspozycję na ogród. Na lewo od wejścia mieszczą się: garaż, kotłownia, oraz gabinet z łazienką. Gabiet może być dostępny z holu, a można go też przystosować jako miejsce prowadzenia domowego biznesu (biuro, gabinet lekarski). Na poddaszu, dzięki wysokim ścianom kolankowym, udało się zmieścić cztery wygodne sypialnie, piękną łazienkę i garderobę. Dwa pokoje nad garażem i gabinetem można łatwo inaczej podzielić – na przykład zaprojektować tam apartament rodziców z dodatkową łazienką i garderobą. Prosta bryła i konstrukcja budynku pozwoli ograniczyć koszty budowy. Dobre materiały izolacyjne z kolei i właściwa proporcja powierzchni do kubatury pomogą zminimalizować wydatki na późniejsze utrzymanie domu. Projekt domu Rozsądny to właściwy projekt dla rozsądnych :) Inwestorów, którzy chcą wycisnąć z wydanych na budowę pieniędzy maksymalnie jak najwięcej pożytku. Pracownia posiada odbicie lustrzane projektu.
