Słoneczny z garażem






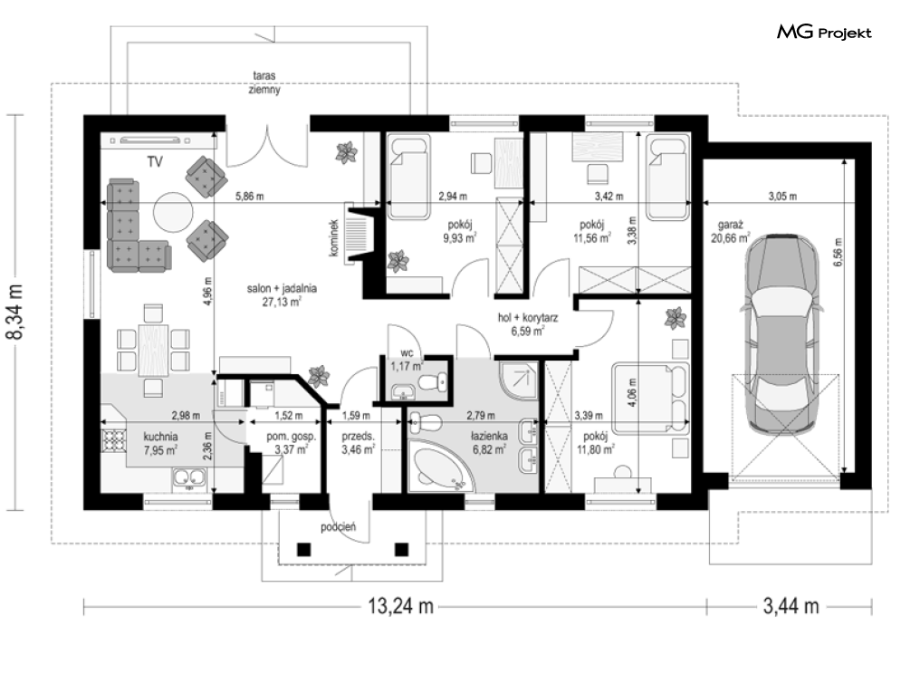
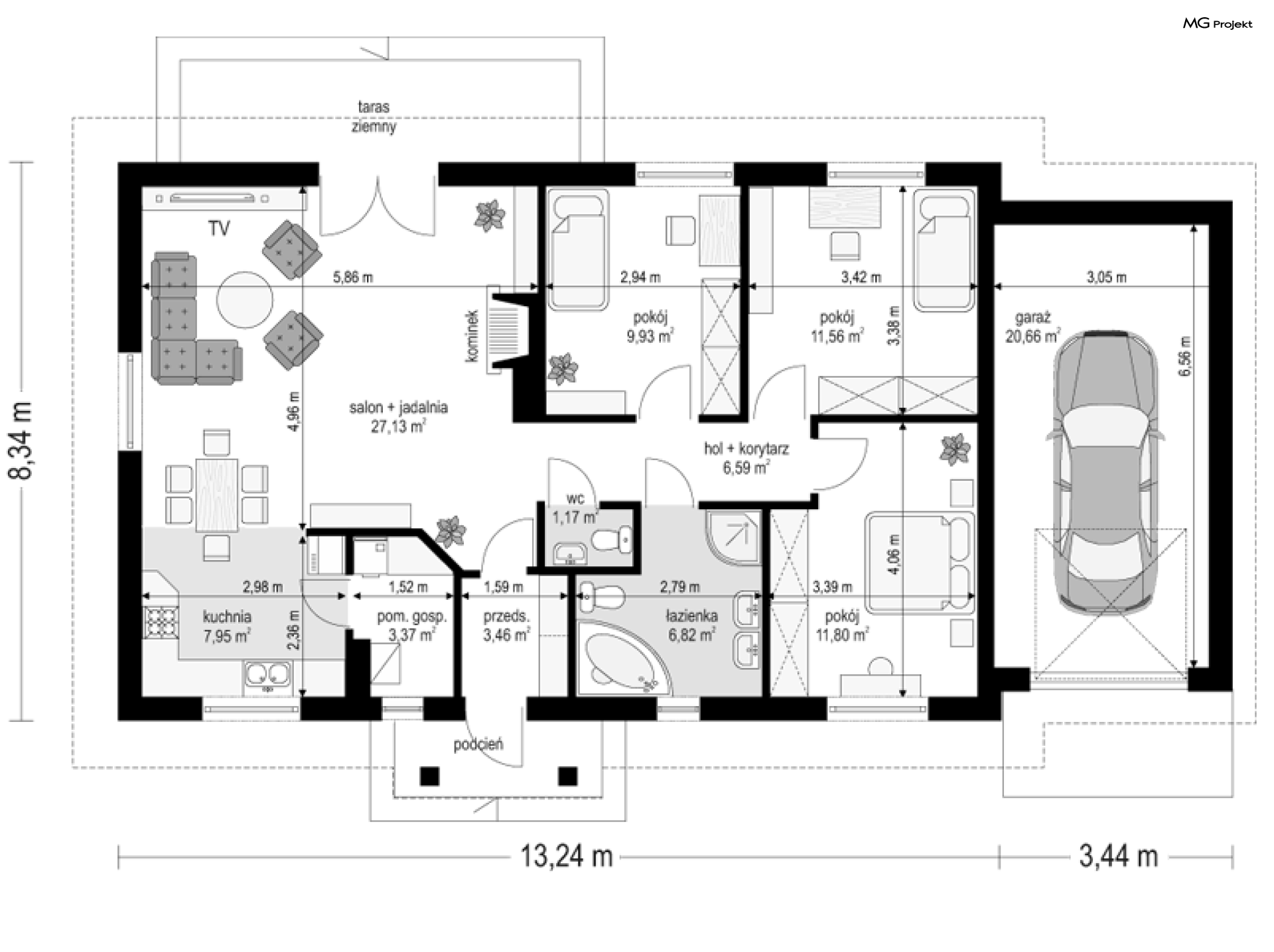
Projekt domu Słoneczny z garażem to budynek o prostej bryle, łatwy i tani w budowie. Dom jednorodzinny zaprojektowany z myślą o potrzebach rodziny czteroosobowej. Na niewielkiej powierzchni udało się zaprojektować wszystkie niezbędne w domu pomieszczenia oraz garaż. Pokój dzienny połączony przestrzennie z holem, aneksem jadalnym i częściowo otwartą kuchnią, tworząc w ten sposób duże jednoprzestrzenne wnętrze. Sypialnie z łazienką i oddzielnym wc tworzą strefę nocną mieszkania. Wygląd zewnętrzny projektu Słoneczny z garażem określają bezpretensjonalny detal i dobrze dobrane proporcje. Dostępne jest odbicie lustrzane projektu Słoneczny z garażem. Pracownia posiada odbicie lustrzane projektu a także inne projekty tej serii: projekt domu Słoneczny, projekt domu Słoneczny z garażem 2, projekt domu Słoneczny z poddaszem.

