Sosenka 2
                
                    Dodaj do porównania
                
                
                    Usuń z porównania
                
            
            
        
                
                    Dodaj do ulubionych
                
                
                    Usuń z ulubionych
                
            
            
        
        Pow. użytkowa:
    
    
        60.47m2
    
        Pow. zabudowy:
    
    
        50.3m2
    
        Koszt budowy:
    
    
        236000zł
    
        Liczba pokoi:
    
    
        3
    
        Liczba łazienek:
    
    
        1
    
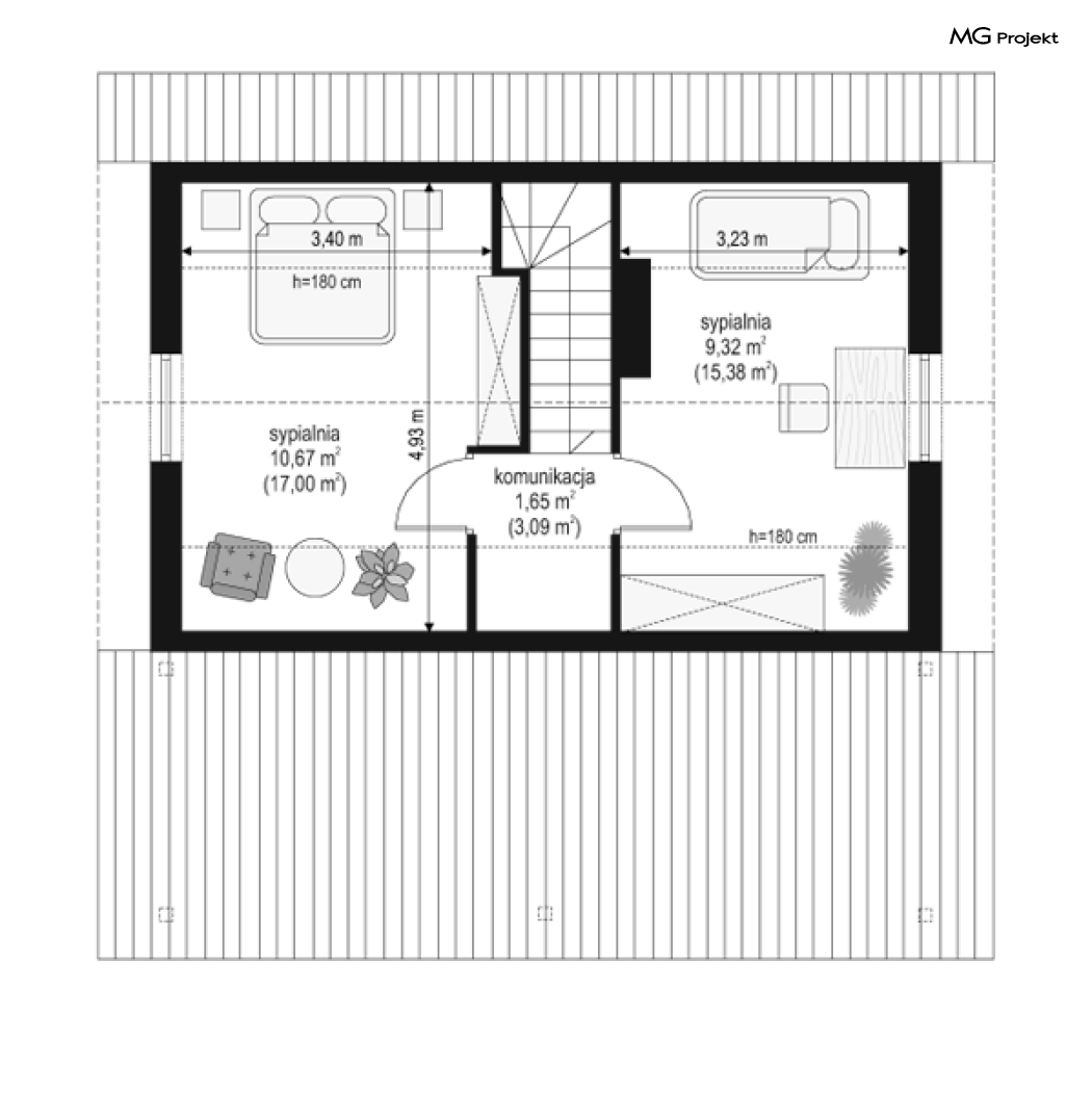
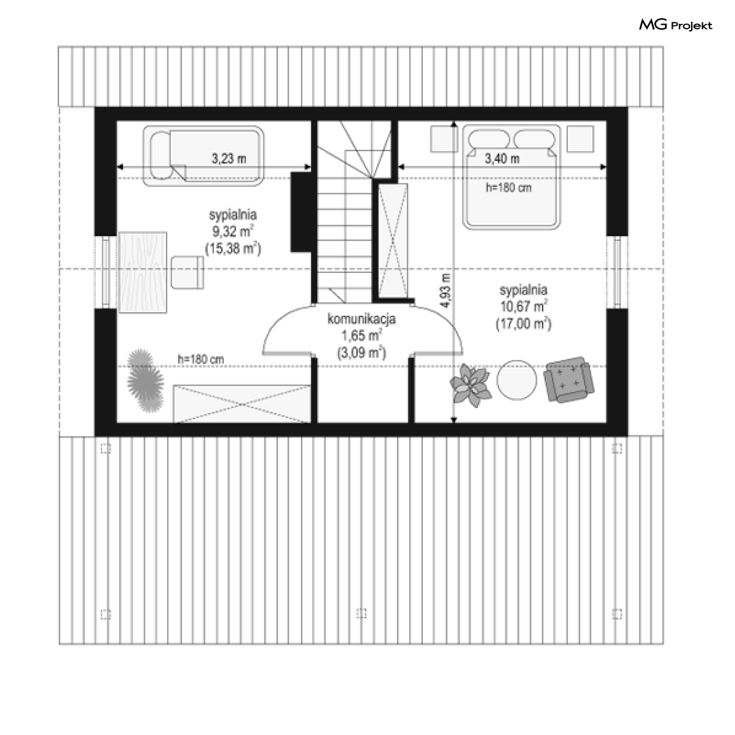
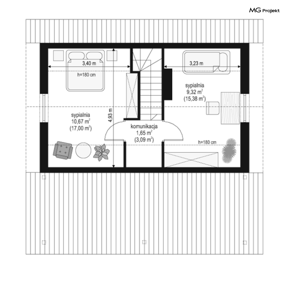
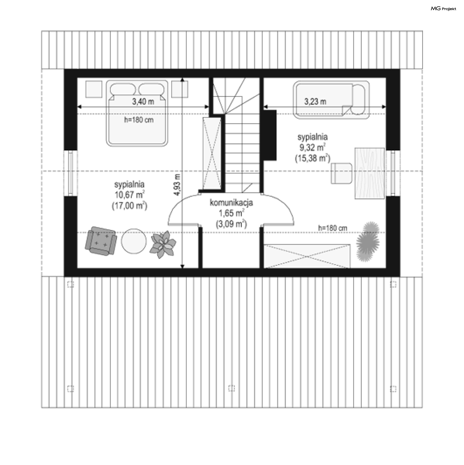
        Rzuty
    
        
                                             
                        
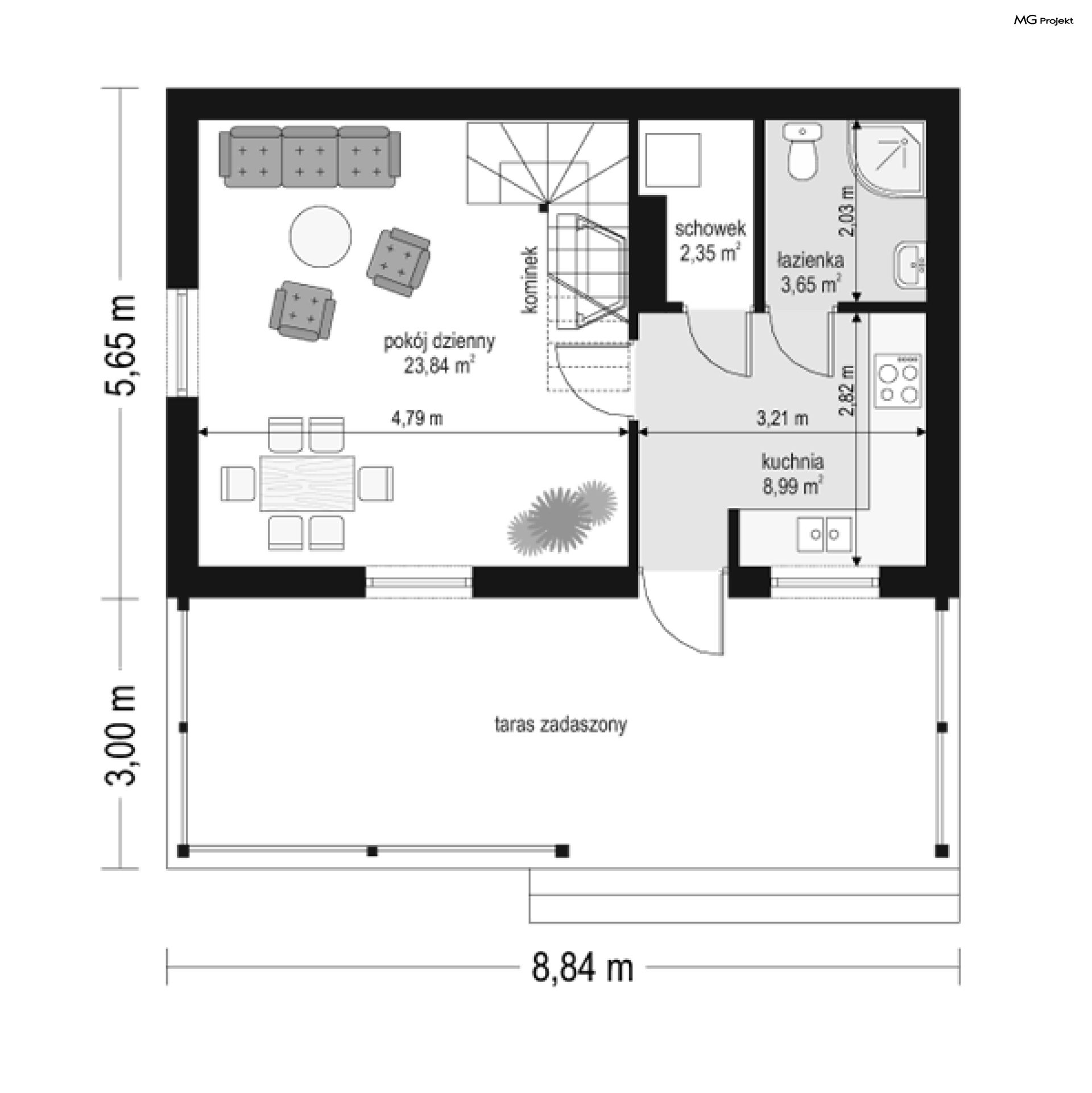
                        Lustrzane odbicie
                    
                    
                            
                            Pobierz rysunki szczegółowe
                        
                        
                            
                            Zapytaj, co możesz zmienić
                        
                     
                        
                        Lustrzane odbicie
                    
                    
                            
                            Pobierz rysunki szczegółowe
                        
                        
                            
                            Zapytaj, co możesz zmienić
                        
                    
            Zamów rysunki szczegółowe
        
        
            Zapoznaj się ze szczegółowymi rysunkami rzutów kondygnacji w PDF dla tego projektu.
        
        
            ZAMAWIAM
        
     
    
                    Elewacje
                
             
                                Frontowa
                            
                                                             
                                Ogrodowa
                            
                                                             
                                Lewa
                            
                                                             
                                Prawa
                            
                                                            
        Specyfikacja techniczna
    
    
        Główne parametry
    
    
                            Powierzchnia użytkowa
                        
                        
                                                            
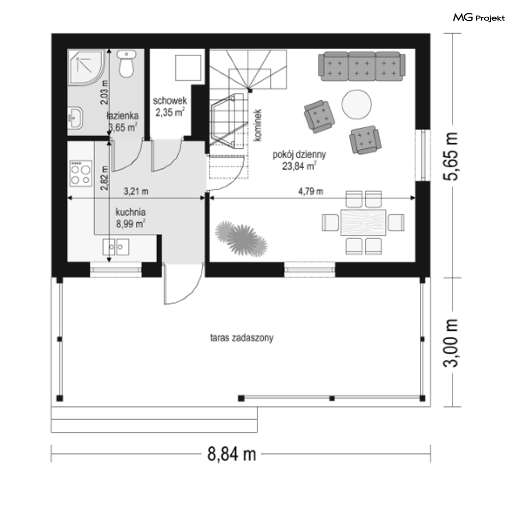
                                                                                                                                                                                        60,47 m2
                                
                                                    
                                                    
                                Łączna powierzchnia tzw. pomieszczeń użytkowych. Przede wszystkim nie zalicza się do niej powierzchni garażu, nieużytkowego strychu, piwnicy, kotłowni.
                            
                                            
                            Liczba pokoi
                        
                        
                                                            
                                                                                                                                                                                        3 
                                
                                                    
                                            
                            Liczba łazienek
                        
                        
                                                            
                                                                                                                                                                                        1 
                                
                                                    
                                            
                            Powierzchnia zabudowy
                        
                        
                                                            
                                                                                                                                                                                        50,30 m2
                                
                                                    
                                                    
                                Powierzchnia zajmowana przez budynek na działce. W praktyce tzw. powierzchnia rzutu budynku wyznaczana po obrysie ścian zewnętrznych.
                            
                                            
        Pełna specyfikacja
    
    
                            Maksymalna wysokość budynku
                        
                        
                                                            
                                                                                                                                                                                        7,06 m
                                
                                                    
                                                    
                                Wysokość wyznaczona od poziomu terenu do najwyżej położonej części dachu (np. kalenicy), zwykle bez uwzględnienia kominów.
                            
                                            
                            Kąt nachylenia dachu
                        
                        
                                                            
                                                                                                                                                                                        45,00°
                                
                                                    
                                                    
                                Nachylenie połaci dachu podane w stopniach.
                            
                                            
                            Minimalne wymiary działki (szerokość)
                        
                        
                                                            
                                                                                                                                                                                        16,84 m
                                
                                                    
                                                    
                                Szerokość działki wyznaczona przy założeniu, że minimalna odległość budynku od granic działki wynosi przynajmniej 3 m w przypadku ścian bez otworów okiennych lub drzwiowych, albo 4 m w przypadku ścian budynku z takimi otworami.
                            
                                            
                            Minimalne wymiary działki (długość)
                        
                        
                                                            
                                                                                                                                                                                        15,55 m
                                
                                                    
                                                    
                                Długość działki wyznaczona przy założeniu, że minimalna odległość budynku od granic działki wynosi przynajmniej 3 m w przypadku ścian bez otworów okiennych lub drzwiowych, albo 4 m w przypadku ścian budynku z takimi otworami.
                            
                                            
                            Z poddaszem użytkowym
                        
                        
                                                            
                                                                            Tak
                                                                    
                                                    
                                            
                            Technologia budowy
                        
                        
                                                            
                                                                            Murowany
                                                                    
                                                    
                                            
                            Typ dachu
                        
                        
                                                            
                                                                            Dwuspadowy
                                                                    
                                                    
                                                    
                                Kształt dachu – płaski, jednospadowy (jedna skośna połać), dwuspadowy (dwie połacie), wielospadowy (w praktyce o przynajmniej czterech połaciach).
                            
                                            
                            Energooszczędność
                        
                        
                                                            
                                                                            Standardowy
                                                                    
                                                    
                                                    
                                Energooszczędny – dom o zapotrzebowaniu na tzw. nieodnawialna energię pierwotną (EP) niższym, niż wymagana przepisami maksymalna wartość.
                            
                                            
                            Typ zabudowy
                        
                        
                                                            
                                                                            Letniskowe
                                                                    
                                                    
                                            
                            Koszt: Instalacje
                        
                        
                                                            
                                                                                                                                                                                                                                                                    47 087 zł
                                
                                                    
                                                    
                                Łączny koszt wykonania wszystkich niezbędnych instalacji wewnętrznych – grzewczej, wentylacyjnej, wodno-kanalizacyjnej, elektrycznej itd.
                            
                                            
                            Koszt: Wykoczńenie
                        
                        
                                                            
                                                                                                                                                                                                                                                                    151 175 zł
                                
                                                    
                                            
                            Powierzchnia netto budynku
                        
                        
                                                            
                                                                                                                                                                                        60,47 m2
                                
                                                    
                                                    
                                Łączna powierzchnia wszystkich kondygnacjach obliczana z pominięciem elementów
konstrukcyjnych (ściany nośne, słupy itp.) ale wraz z powierzchnią zajmowaną przez ścianki działowe lub inne elementy, które można potencjalnie zdemontować.
                            
                                            
                            Powierzchnia całkowita budynku
                        
                        
                                                            
                                                                                                                                                                                        76,91 m2
                                
                                                    
                                                    
                                Łączna powierzchnia wszystkich kondygnacjach obliczana po obrysie ścian zewnętrznych, wraz z powierzchnią zajmowaną przez ściany wewnętrzne.
                            
                                            
                            Kubatura budynku
                        
                        
                                                            
                                                                                                                                                                                        216,00 m3
                                
                                                    
                                                    
                                Objętość budynku, zwykle wraz z elementami konstrukcyjnymi (ścianami, stropami itd.).
                            
                                            
                            Szerokość budynku
                        
                        
                                                            
                                                                                                                                                                                        8,84 m
                                
                                                    
                                                    
                                Maksymalna szerokość budynku wraz z grubością izolacji cieplnej oraz okładzin ściennych.
                            
                                            
                            Długość budynku
                        
                        
                                                            
                                                                                                                                                                                        5,65 m
                                
                                                    
                                                    
                                Maksymalna długość budynku wraz z grubością izolacji cieplnej oraz okładzin ściennych.
                            
                                            
                            Liczba kondygnacji
                        
                        
                                                            
                                                                            Z poddaszem użytkowym
                                                                    
                                                    
                                                    
                                Za kondygnacje uznawane są również poddasza użytkowe oraz piwnice. Kondygnacją nie jest natomiast poddasze nieużytkowe ani antresola.
                            
                                            
                    Koszty
                
            
                            Koszty budowy
                        
                        
                                        236 000 zł
                                    
                                    
                                        Koszt: Stan pod klucz
                                    
                                                                            
                                            Obejmuje koszt wszystkich robót stanu surowego, wykonania instalacji wewnętrznych oraz robót wykończeniowych.
                                        
                                                                    
                                        137 000 zł
                                    
                                                                            
                                            Koszt: Stan surowy zamknięty
                                        
                                                                                                                
                                            Koszt wzniesienia budynku wraz z pokryciem dachu i stolarką zewnętrzną (okna i drzwi). Bez instalacji, ocieplenia i robót wykończeniowych.
                                        
                                                                    
                            Koszty utrzymania
                        
                        
                            EP = 61,20  kWh/m2 rok
                        
                        
                            Oznacza ilość energii nieodnawialnej, jaką budynek może pozyskiwać z nieodnawialnych surowców energetycznych, czyli energii zawartej w paliwach i nośnikach takich jak węgiel, gaz czy ropa naftowa.
                        
                    
            Opis
        
        Projekt domu Sosenka 2 doskonale sprawdzi się jako Państwa letnia „rezydencja”. Dom stanowi wersję wariantową projektu Sosenka. Dzięki dużemu zadaszonemu tarasowi, na którym można przesiadywać w letnie wieczory wnętrze domu Sosenka 2 wydaje się być większe. Budynek może pełnić rolę domuku letniskowego, ale również całorocznego. Posiadamy wiele wersji projektów Sosenka, m.in.: podstawową (projekt domu Sosenka), z pomieszczeniem gospodarczym (projekt domu Sosenka 3), w technologii drewnianej z tarasem i balkonem z boku (projekt domu Sosenka 4), bardzo komfortowa (projekt domu Sosenka 5), powiększona w technologii drewnianej (projekt domu Sosenka drewniana) Projekt Sosenka 2 dostępny jest również w odbiciu lustrzanym.
 
                            Sosenka 2
                        
                        
                            BD43012
                        
                    
                            Powierzchnia użytkowa
                                                            
                                    
                                
                                
                        
                                    Łączna powierzchnia tzw. pomieszczeń użytkowych. Przede wszystkim nie zalicza się do niej powierzchni garażu, nieużytkowego strychu, piwnicy, kotłowni.
                                
                                                    
                            60,47 m2
                        
                    
                            Liczba pokoi
                                                    
                        
                            3 
                        
                    
                            Liczba łazienek
                                                    
                        
                            1 
                        
                    
                            Powierzchnia zabudowy
                                                            
                                    
                                
                                
                        
                                    Powierzchnia zajmowana przez budynek na działce. W praktyce tzw. powierzchnia rzutu budynku wyznaczana po obrysie ścian zewnętrznych.
                                
                                                    
                            50,30 m2
                        
                     
 
 
 
 
 
 
 
 
 
 
 
 
 
 
 
 
 
 
 
 
 
 
 
 
 
 
 
 
 
 
 
 
 
 
 
 
 
 
 
 
 
 
 
 
 
 
 
 
 
 
 
 
 
 
 
 
 
 
 
 
 
 
 
 
 
 
 
 
 
 
 
 
 
 
 
 
 
 
             
 
 
 
 
 
 
 
 
 
 
 
 
 
 
 
 
 
 
 
 
 
 
 
 
 
 
 
 
 
 
 
                                         
 
                                         
                         
                         
                     
                         
                        