Stokrotka







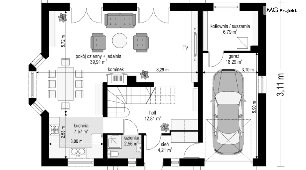
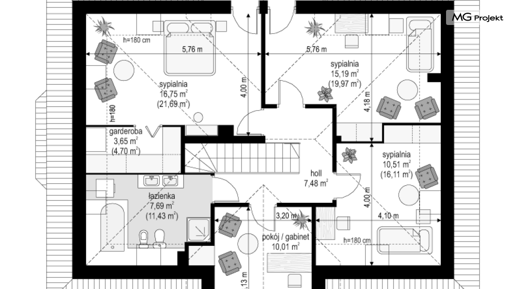
Projekt domu Stokrotka to uroczy budynek o prostej, klarownej bryle. Domek jednorodzinny przeznaczony dla cztero-pięcioosobowej rodziny. Projekt domu Stokrotka zbudowany jest na planie prostokąta. Rzut parteru i poddasza zwieńczony jest czterospadowym dachem z symetrycznie ustawionymi lukarnami od frontu i od strony ogrodu. Frontowa lukarna połączona jest z podcieniem wejściowym na kolumienkach. Od strony ogrodu zaprojektowano częściowe zadaszenie tarasu dużym balkonem. Urok domu to jego prostota i właściwe proporcje, do tego ciekawe detale, oraz funkcjonalnie zaprojektowane, przemyślane wnętrze. Na parterze mieszkania, zaprojektowano obszerny pokój dzienny z centralnie usytuowanym kominkiem, oraz dużymi przeszkleniami na taras i ogród. Salon w Stokrotce łączy się częściowo z półotwartą kuchnią przez aneks jadalny z wykuszem. Bardzo ładny hol z reprezentacyjnymi schodami na poddasze dopełnia wnętrze parteru. Dodatkowo w projekcie, przewidziano jeszcze część gospodarczą z garażem i kotłownią. Na poddaszu zaprojektowano trzy sypialnie z garderobami lub szafami wbudowanymi, łazienkę i dodatkowy pokój - gabinet lub czwartą sypialnię. Pracownia dysponuje wersją odbicia lustrzanego projektu domu Stokrotka.
