Szarejka







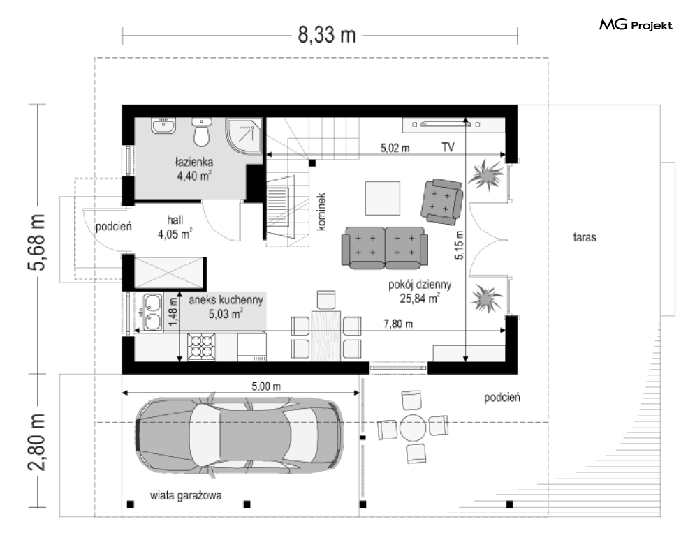
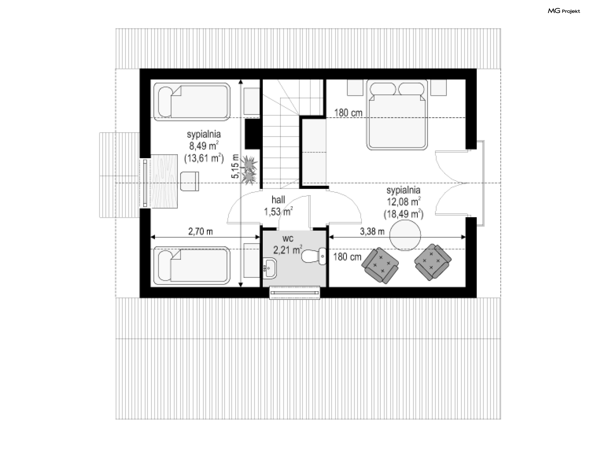
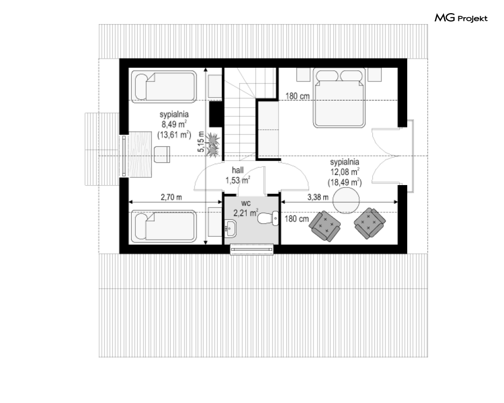
Projekt domu Szarejka to kolejny nieduży domek jednorodzinny z oferty pracowni MG Projekt. Może służyć zarówno jako całoroczny budynek mieszkalny jak i domek letniskowy. Projekt domu Szarejka ma bardzo prostą konstrukcję, zbudowaną na planie prostokąta. Bryła jest przekryta symetrycznym dwuspadowym dachem, z dobudowanym zadaszeniem wiaty garażowej i podcienia tarasu. Prosta bezpretensjonalna forma i detale wykończenia elewacji dają w efekcie ciekawy wygląd domku. Projekt domu Szarejka została zaprojektowana z myślą o maksymalnym otwarciu wnętrza na ogród - stąd duży, częściowo zadaszony taras, do którego dostajemy się z salonu przez szerokie przeszklone drzwi. Taras dopełnia wnętrze - stanowi jego przedłużenie. Będzie można na nim udanie spędzać czas również przy niepogodzie lub przy zbyt ostrym słońcu - dzięki dużemu podcieniowy. Wiata garażowa - bardzo przydatna, nawet jeśli nie będzie służyła dla samochodu, to może stanowić doskonałe schronienie dla drewna do kominka, czy sprzętów ogrodowych. Wnętrze domu to salon z aneksem kuchennym na parterze. W najbardziej wyeksponowanym miejscu salonu znajduje się kominek, oraz drewniane schody na poddasze. Na poddaszu znajdują się dwie sypialnie z dodatkową toaletą (poza łazienką na dole). Dom Szarejka został zaprojektowany w konstrukcji szkieletowej drewnianej. Budynek jest ogrzewany kominkiem i elektrycznymi grzejnikami. Z uwagi na bardzo dobre docieplenie przegród będzie ekonomiczny w późniejszej eksploatacji - nie wymaga dużo energii do ogrzania wnętrza. Pracownia dysponuje też projektem domu Szarejka w wersji odbicia lustrzanego.
-
Projekt szamba szczelnego0 zł399 zł
-
Charakterystyka energetyczna0 zł200 zł
-
Pakiet energooszczędny0 zł150 zł
-
Dziennik budowy0 zł60 zł
-
Tablica budowy0 zł120 zł
-
Wersja elektroniczna projektu550 zł
-
Pakiet kosztorys inwestorski550 zł
-
Pakiet ogrzewanie podłogowe470 zł
-
Powietrzna pompa ciepła470 zł
-
Pakiet wentylacja mechaniczna i kominek DGP470 zł
-
Dodatkowy egzemplarz projektu500 zł
-
Pakiet kotłownia na paliwo stałe470 zł
-
Pakiet instalacja fotowoltaiczna470 zł
-
Pakiet klimatyzacja w domu470 zł
-
Pakiet gruntowa pompa ciepła470 zł
-
Pakiet odkurzacz centralny470 zł
-
Pakiet płaszcz wodny470 zł
-
Pakiet kominek DGP399 zł
-
Projekty altan i grillów ogrodowych650 zł
-
Pakiet instalacja solarna470 zł

opieką konsultacyjną w trakcie budowy domu