Willa z Basenem







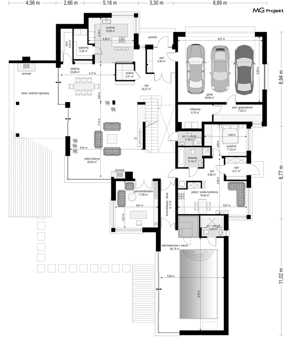
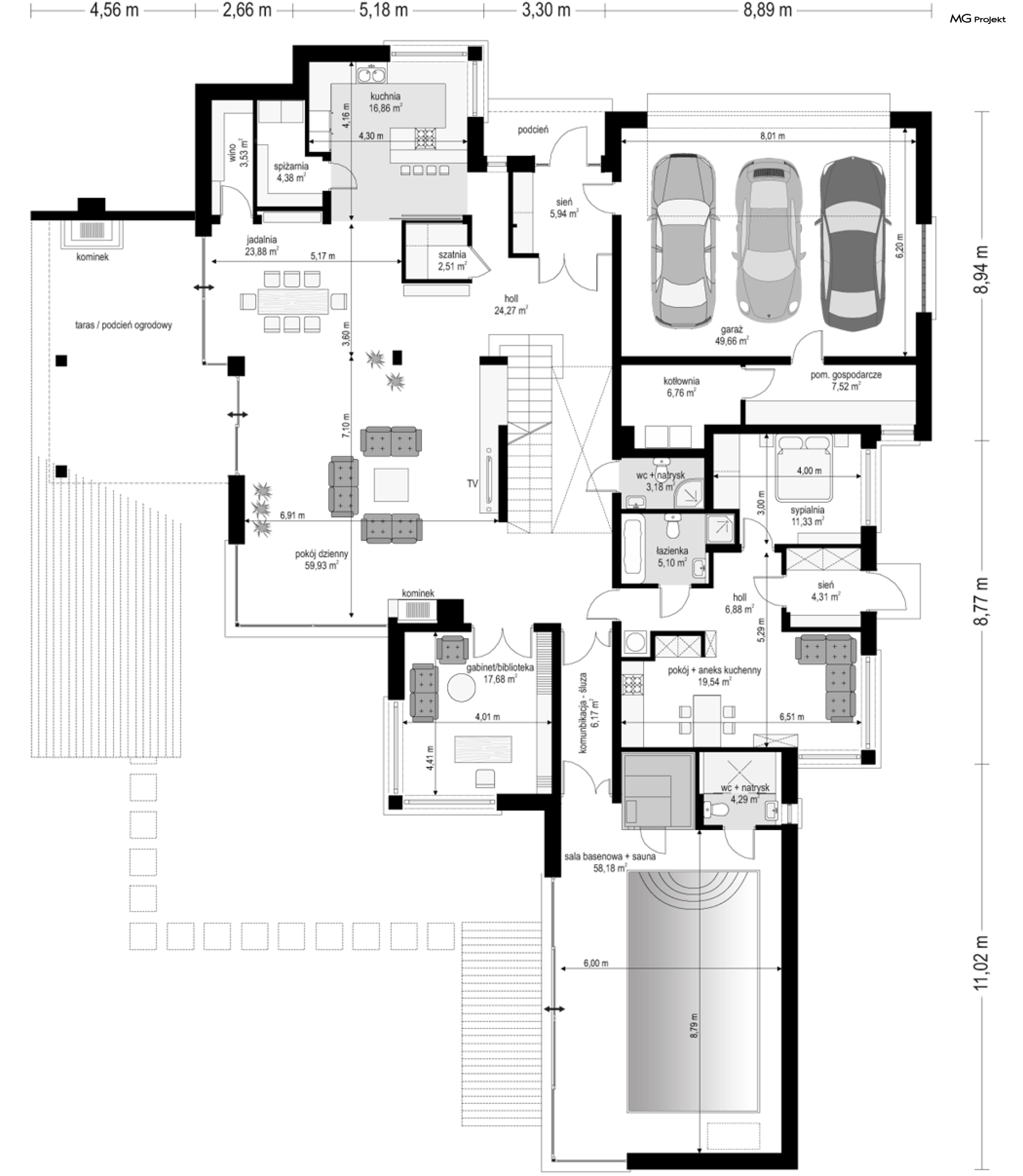
Projekt domu Willa z basenem to obszerna rezydencja dla rodziny cztero-sześcioosobowej. Dom składa się ze zwartej, jednopiętrowej bryły przekrytej czterospadowym dachem, oraz dobudowanych dwóch brył parterowych, przekrytych wielospadowymi dachami. Budynek jest podmiejską willą o nowoczesnej, ale spokojnej architekturze. Ciekawa stylistyka domu z dobudowanym garażem, dużym zadaszonym podcieniem, oraz osobnym pomieszczeniem z tyłu willi, pełniącym funkcję wypoczynkową. Bryła budynku została ciekawie ozdobiona klinkierowymi i drewnianymi okładzinami elewacji, oraz loggiami i podcieniem wejściowym. Masywny ozdobny komin kominka wewnętrznego i zewnętrznego, czy narożne okna - to dodatkowe ozdoby domu. Na parterze przez szerokie przeszklenia z salonu zaplanowano wyjście do dużego podcienia i na taras ogrodowy. W projekcie Willa z Basenem wszystkie elementy elewacji tworzą spójną, spokojną kompozycyjnie całość. Pracownia posiada także wersję projektu Willa z basenem w odbiciu lustrzanym.

