Zuzia







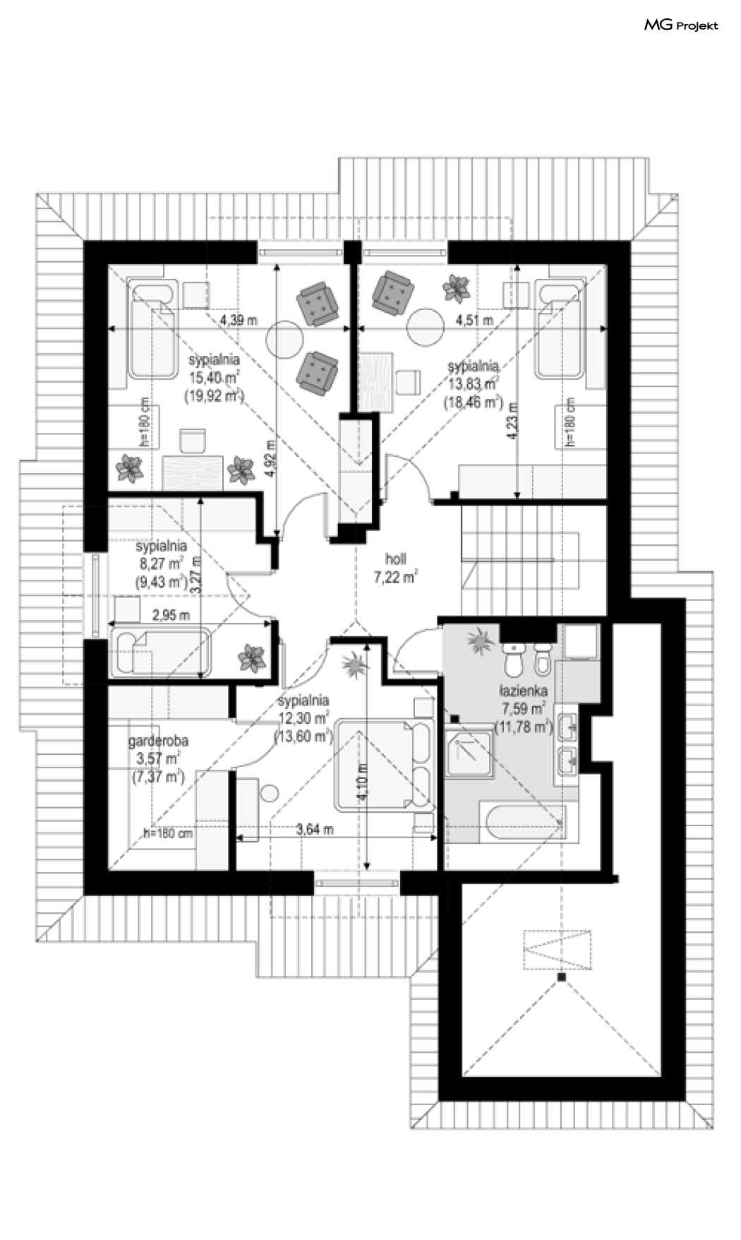
Projekt domu Zuzia, to bardzo praktyczny a zarazem uroczy dom jednorodzinny. W sam raz dla cztero-pięcioosobowej rodziny planującej budowę. Budynek jest parterowy, z poddaszem użytkowym, przekryty czterospadowym dachem, z częściowo wbudowanym w bryłę garażem. Bryła ozdobiona jest dużymi lukarnami poddasza, wejściem z zadaszeniem i kolumną, wykuszem jadalni i podcieniem ogrodowym. Tradycyjna forma polskiego domu została podana w nowoczesnym, świeżym ujęciu. Zastosowane w Zuzi materiały, czy duże przeszklenia otwierające wnętrze na ogród, funkcjonalny układ wnętrz domu - całość podkreśla współczesność rozwiązań. Wnętrze parteru zostało zaprojektowane jako otwarta, jednoprzestrzenna część dzienna, z salonem, holem, aneksem jadalnym, oraz częściowo otwartą kuchnią. Dodatkowo na parterze przewidziano pokój mogący służyć jako gabinet, lub sypialnia, oraz garaż i kotłownię. Na poddaszu umieszczono trzy wygodne sypialnie z garderobami lub szafami wbudowanymi, łazienkę i dodatkowy pokój. W średniej wielkości domu, dzięki funkcjonalnemu układowi wnętrz udało się zmieścić wiele pomieszczeń, tak że dom sprawia wrażenie większego niż jest w rzeczywistości. Pracownia posiada również projekt domu Zuzia w wersji odbicia lustrzanego.
