Rezydencja Parkowa 4







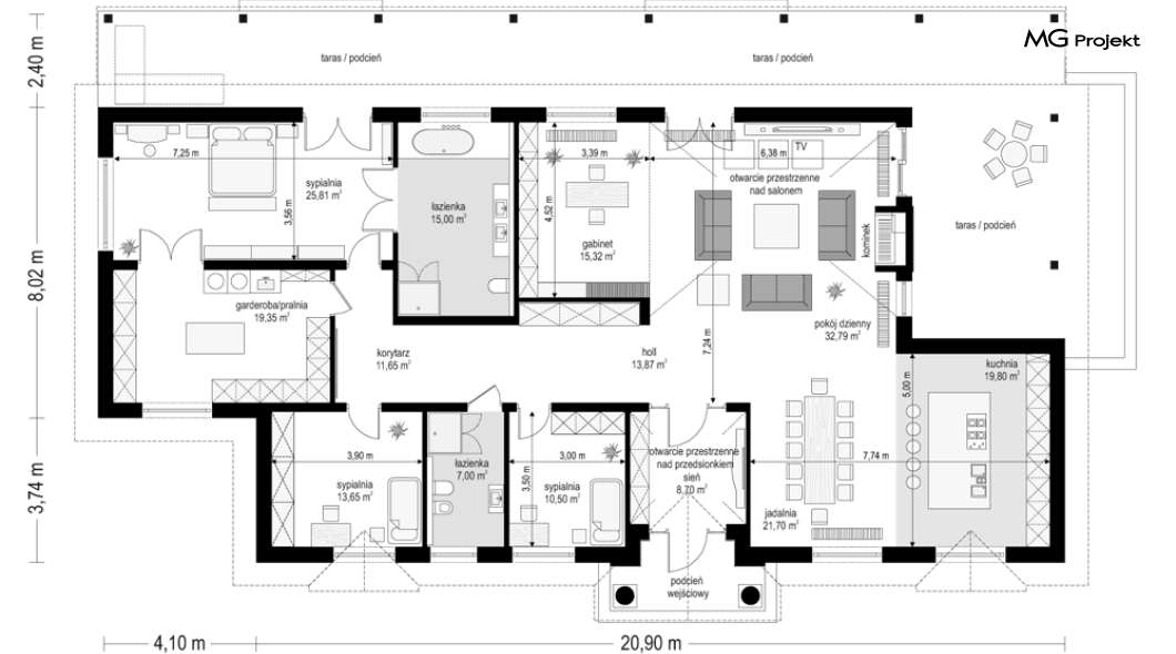
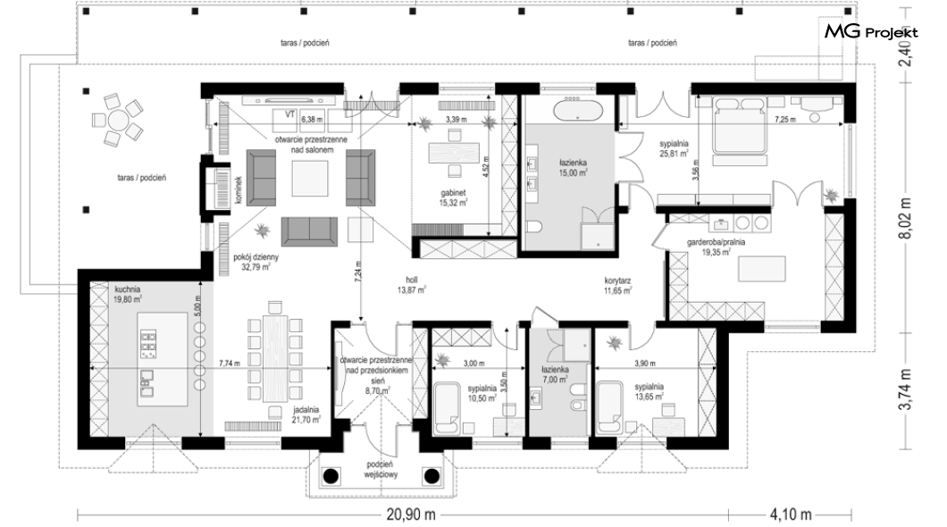
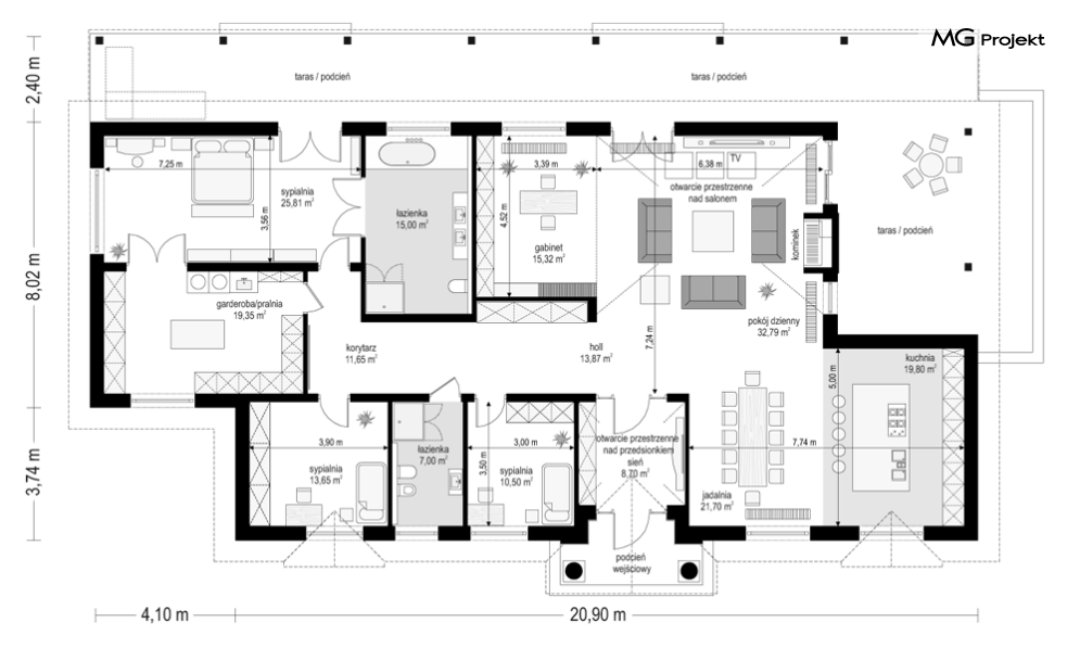
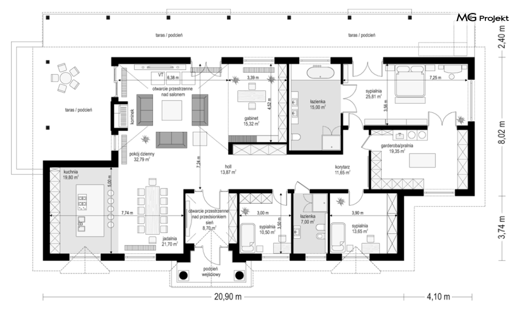
Projekt domu Rezydencja parkowa 4 jest kolejną wersją popularnego projektu Rezydencja Parkowa. Projekt to piękna parterowa willa wiejska, przywołująca szlachecki dworek, albo angielski czy amerykański manor house. Rozłożysta podłużna bryła, zbudowana na planie prostokąta, przykryta jest ładnym czterospadowym dachem. Rezydencja parkowa 4 od frontu zdobi reprezentacyjny wejściowy portyk. Elewacja ogrodowa to wielka podłużna weranda. Tak zadaszony taras jest marzeniem wielu inwestorów. Dom doskonale nadaje się na podmiejską rezydencję, albo na wielski drugi dom dla zamożnego mieszczucha. Albo mieszczucha z fantazją ! Wnętrze domu to bardzo prosty układ pomieszczeń. Przestrzeń bez żadnych kompromisów. Wszystkie ważne dla właścicieli pomieszczenia są duże i ustawne. Wnętrze dzienne to połączenie salonu, jadalni, pięknej kuchni z wyspą, oraz gabinetu- biblioteki. Pozostała przestrzeń to luksusowy buduar właścicieli, z wielką garderoba i łazienką, oraz dodatkowe dwa pokoje z łazienką - dla dzieci, lub dla gości. Projekt domu Rezydencja parkowa 4 docenią osoby, dla których to nie jest pierwsza inwestycja w życiu. Nie ma tutaj całej listy pomieszczeń-klitek. Jest za to nieprzyzwoicie wygodna przestrzeń. Architektura domu jest klasyczna, ponadczasowa. Dom czerpie z dobrych sprawdzonych wzorów i nigdy się nie zestarzeje. Budynek doskonale wkomponuje się w otaczającą przyrodę. Aby nie zachwiać estetyki budynku zdecydowaliśmy się oddzielić budynek gospodarczo –garażowy od głównej bryły rezydencji. Jeśli inwestor dysponuje ładną parcelą, można sobie pozwolić na budowę domu i budynku garażowego. Można też - na mniejszej działce – zbudować sam budynek mieszkalny. Zapraszamy do zapoznania się z pełną ofertą pracowni MG Projekt: (Rezydencja Parkowa), (Rezydencja Parkowa 2), (Rezydencja Parkowa 3), (Rezydencja Parkowa 3C), (Rezydencja Parkowa 3D).
