Viking 4
 
 
 
     
 
 
 
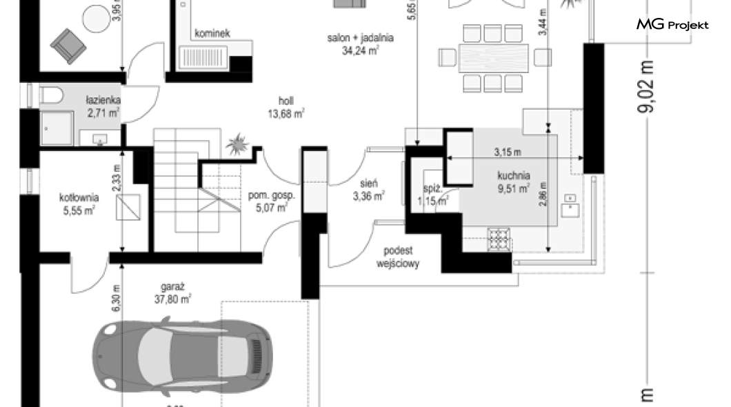
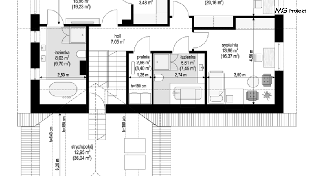
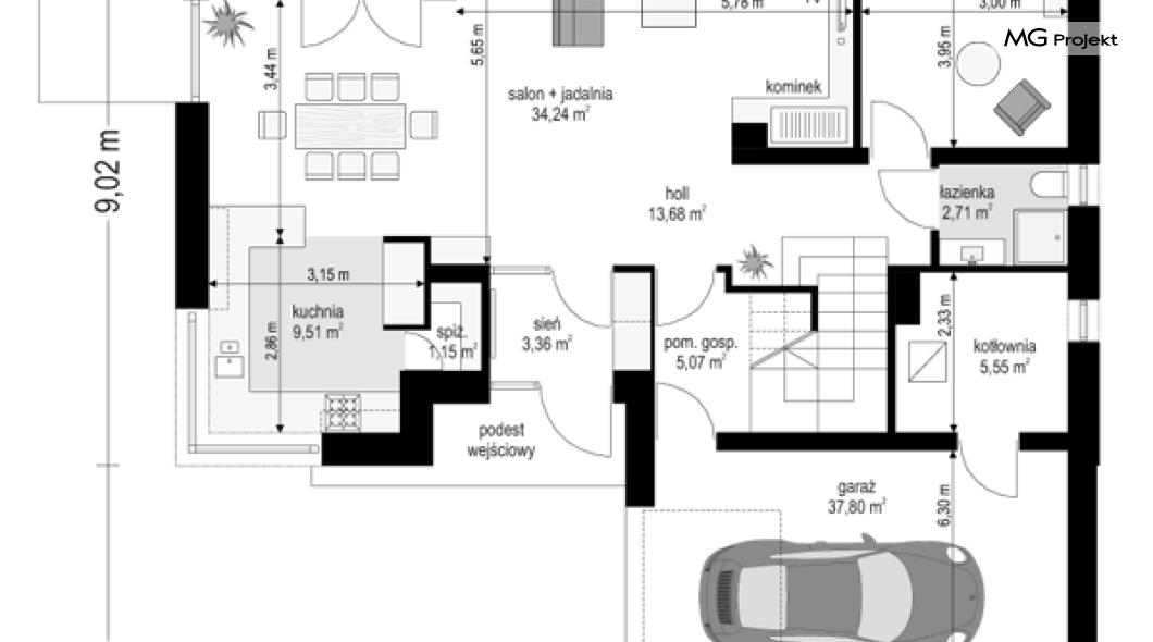
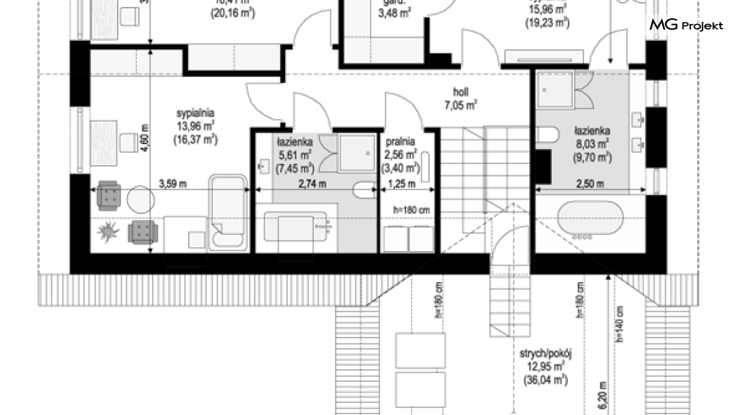
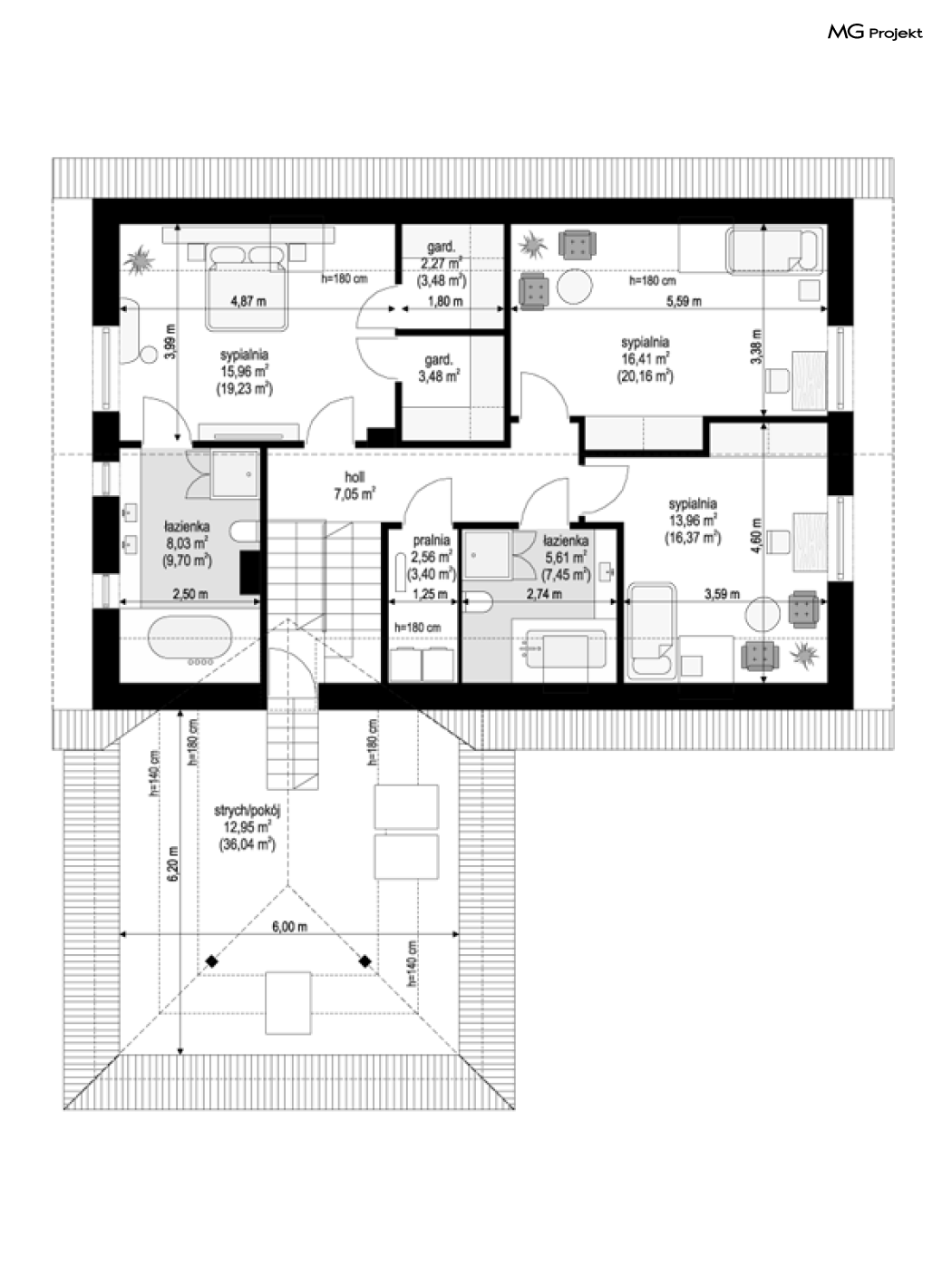
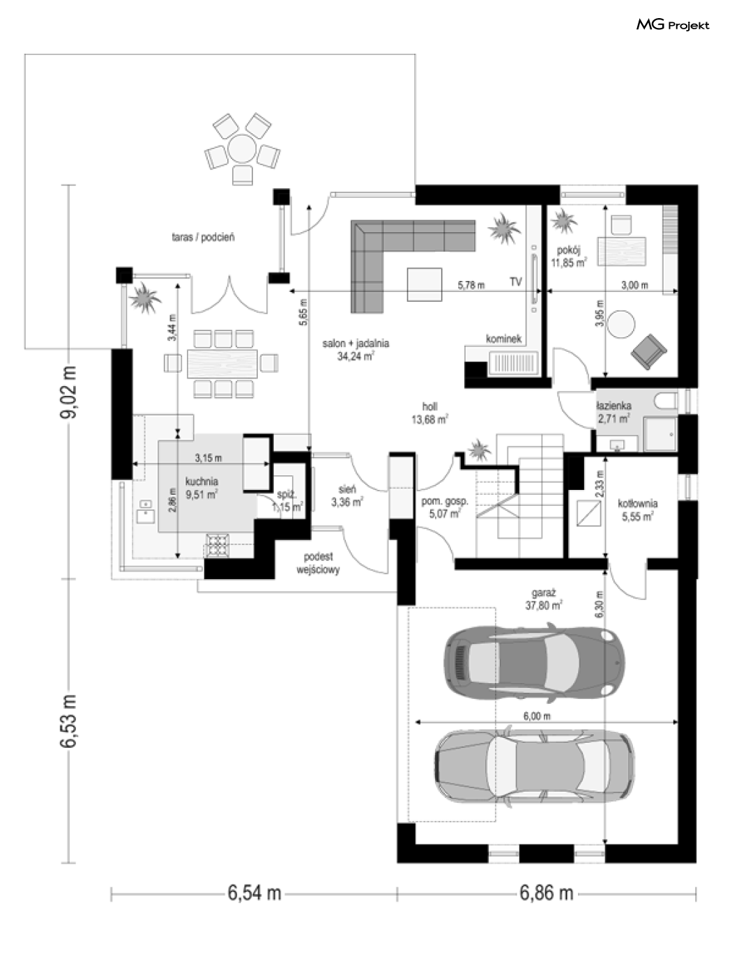
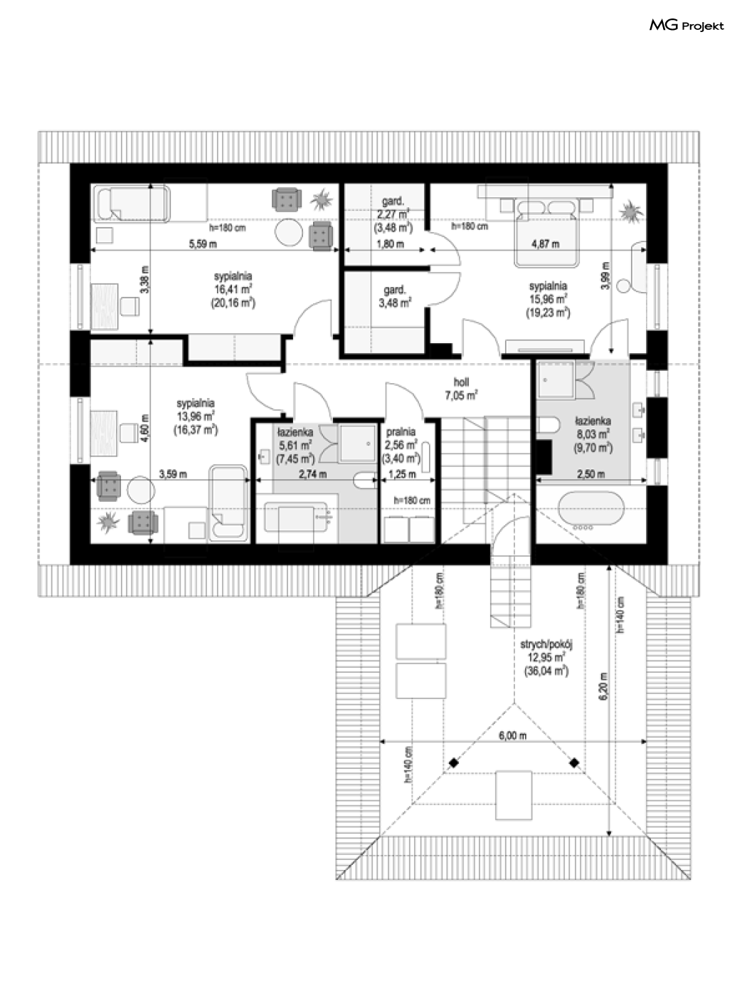
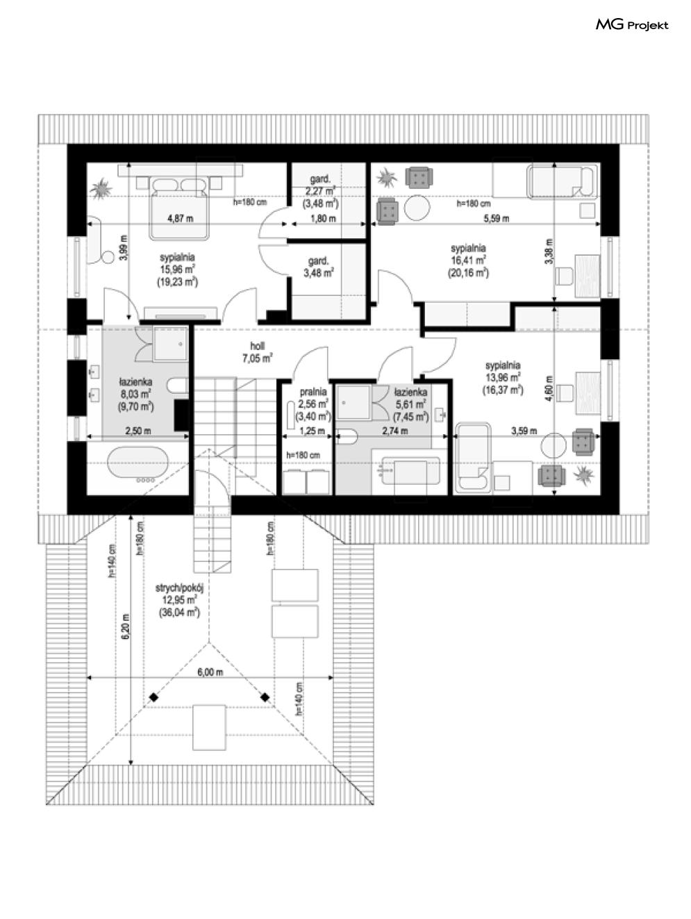
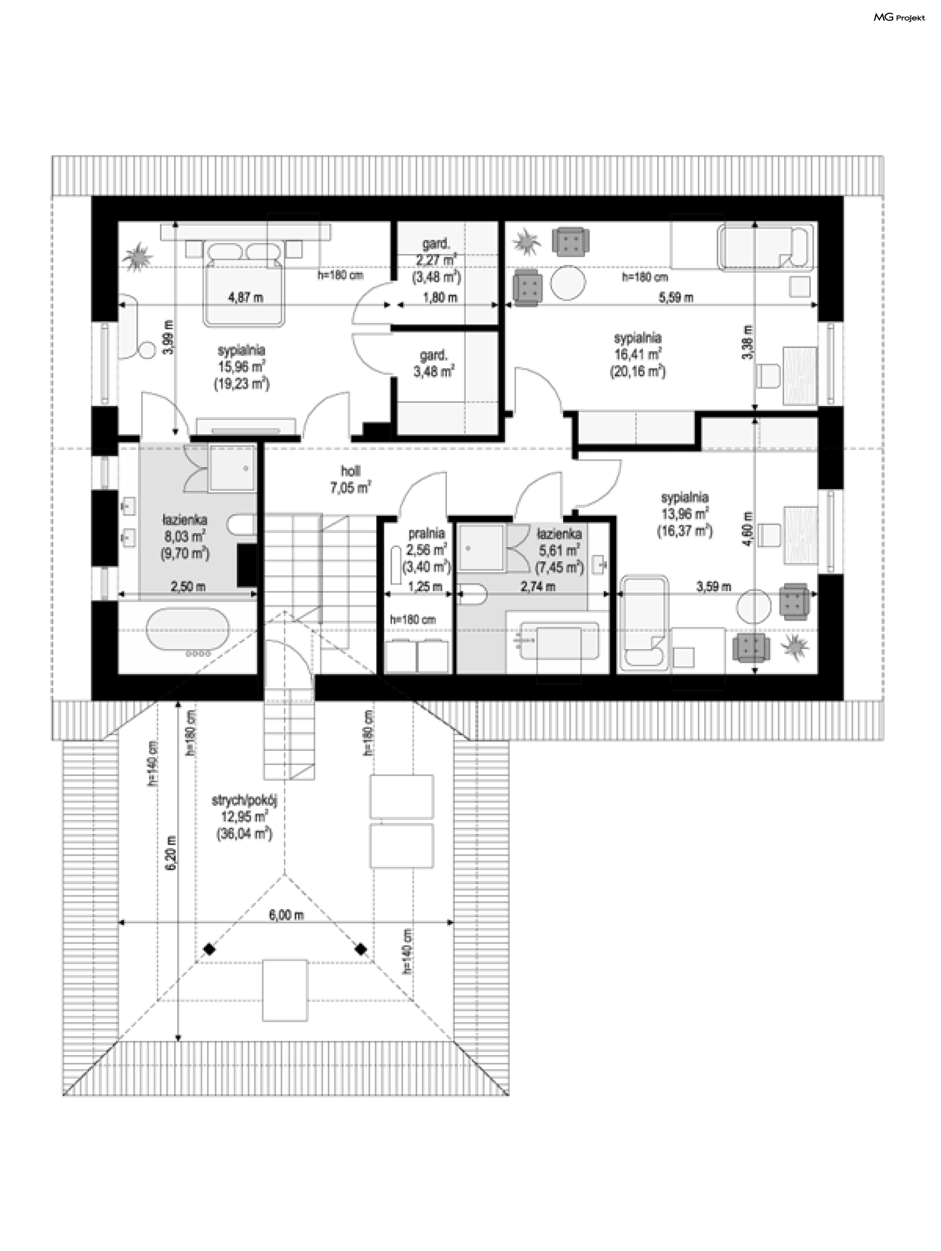
Projekt domu Viking 4 to jeden z naszych domów z kolekcji „Viking” - tym razem nieco powiększony w stosunku do bazowego projektu, z zadaszeniem nad garażem i poszerzoną bryłą. Parterowy dom z poddaszem użytkowym, zbudowany na planie prostokąta przykrytego dwuspadowym dachem, z garażem przykrytym trzyspadowym zadaszeniem. Budynek zaprojektowano jako wygodne miejsce do życia dla 4-6 osobowej rodziny. Nowoczesna architektura domu z atrakcyjną sylwetką idzie tutaj w parze z funkcjonalnym, komfortowym wnętrzem. Bryłę ozdobiono okładzinami ścian z drewna i płyt włóknowo-cementowych i wprowadzono podział na poziome pasy elewacji, co wprowadza ład, porządek i właściwe proporcje. Szerokie przeszklenia otwierają wnętrze domu na ogród i podkreślają nowoczesny design. Front domu zaakcentowano podcieniem wejściowym z szerokimi drzwiami z naświetlem, oraz narożnym oknem kuchennym. Kształt bryły tworzy frontowy reprezentacyjny placyk wjazdowy. Od strony ogrodu mamy piękne przeszklenia salonu i jadalni, oraz wygodny podcień zadaszający częściowo taras. Wnętrze : do domu wchodzimy przeszklonym, otwartym wizualnie przedsionkiem wprost do części dziennej holu, salonu i jadalni. Obok jadalni mieści się ładna kuchnia ze spiżarką. Z drugiej strony na parterze mamy dodatkowy pokój ( gabinet, lub sypialnię gościnną ), łazienkę, schody, oraz przejście do części gospodarczej, a tam z kolei : magazyn, kotłownię i podwójny garaż. Na poddasz domu Viking 4 zaprojektowano trzy przestronne sypialnie, z garderobami i szafami wbudowanymi, dwie łazienki, oraz pralnię. Sypialnia rodziców to oddzielny apartament z garderobami i łazienką. Z podestu schodów wchodzimy na strych nad garażem, mogący pełnić rolę domowego magazynu, albo dodatkowego pokoju. Prosta bryła, dość łatwa w budowie, oraz energooszczędne rozwiązania materiałów i ociepleń dają w rezultacie ekonomiczny budynek – zarówno w budowie jak i późniejszej eksploatacji. Przede wszystkim Projekt domu Viking 4 jest jednak urokliwym, nowoczesnym i komfortowym domem dla swoich przyszłych mieszkańców. W ofercie dostępne są również inne wersje tego projektu: wersja podstawowa (projekt domu Viking), z garażem jednostanowiskowym (projekt domu Viking 2), najmniejsza (projekt domu Viking 3), komfortowa (projekt domu Viking5) Vikinga 4 można łatwo dostosować do standardu NF40. Zapraszamy.
 
 
 
 
 
 
 
 
 
 
 
 
 
 
 
 
 
 
 
 
 
 
 
 
 
 
 
 
 
 
 
 
 
 
 
 
 
 
 
 
 
 
 
 
 
 
 
 
             
 
 
 
 
 
 
 
 
 
 
 
 
 
 
 
                                         
 
                                         
                         
                         
                     
                         
                        