Viking 5







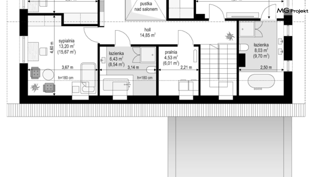
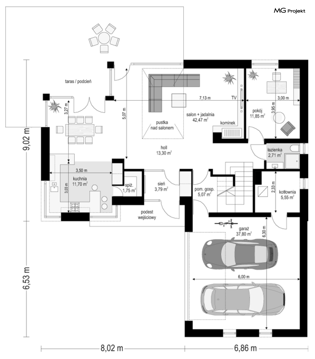
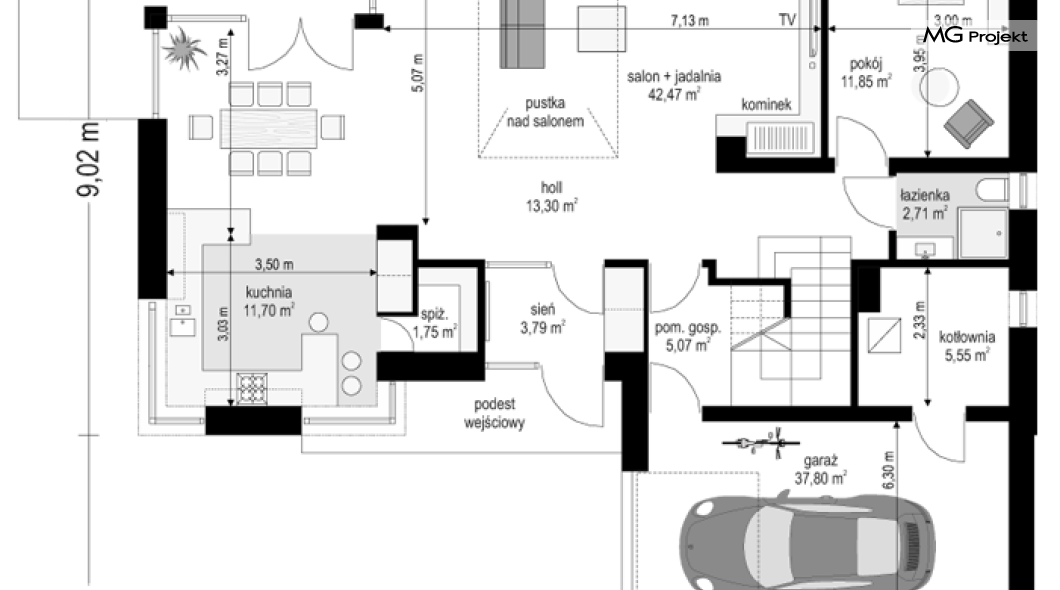
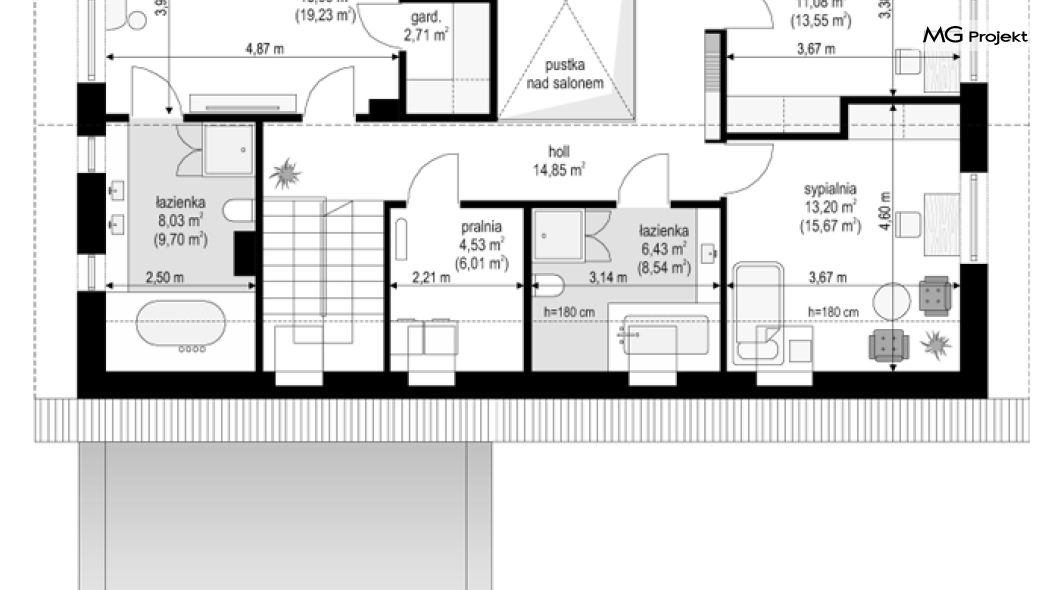
Projekt domu Viking 5 jest powiększoną wersją projektu z serii „Viking”, o wydłużonej bryle głównej, z większym salonem i pustką z antresolą nad częścią dzienną. Jest superkomfortową propozycją domu dla 4-6 osobowej rodziny - nowoczesnego, funkcjonalnego, o bardzo atrakcyjnej sylwetce i wnętrzu. Projekt domu Viking 5 został poszerzony w stosunku do bazowego projektu, przez co wygląda bardziej reprezentacyjnie i okazale. To komfortowa nowoczesna willa, z ciekawymi materiałami i detalami, oraz pięknymi szerokimi przeszkleniami otwierającymi wnętrze na ogród. Zastosowane materiały : pokrycie dachu z blachy na rąbek, okładziny ścian z drewna czy płyt włóknowo-cementowych, oraz podział elewacji na poziome pasy, dają atrakcyjny wygląd zewnętrzny budynku. Wnętrze : do domu wchodzimy przeszklonym otwartym przedsionkiem wprost do pokoju dziennego, łączącego hol, salon i jadalnię. Przed nami, dzięki szerokim oknom otwiera się od razu widok na ogród i taras. Dodatkowo atrakcyjności wnętrza dodaje pustka nad salonem z antresolą na poddaszu. Przy jadalni mamy ładną ustawną kuchnię ze spiżarnią, a z drugiej strony parteru dodatkowy pokój, łazienkę i pomieszczenia gospodarcze z garażem. Na poddaszu zaprojektowano trzy sypialnie : dwie dziecięce - równej wielkości, z szafami wbudowanymi i łazienką, oraz sypialnię rodziców z dwiema garderobami i własną łazienką. Część rodziców oddziela od części dzieci - jak mostem - pustka nad salonem, antresola, oraz pralnia. Dom nie należy do najmniejszych, ale nie jest też kilkusetmetrową rezydencją. Został zaprojektowany dla Inwestorów, którzy chcą mieszkać maksymalnie komfortowo, nowocześnie, ale nie zamierzają stać się niewolnikami swojego przyszłego domu. Wszystko z umiarem. Projekt domu Viking 5 dostarcza luksusowych doznań, spełnia marzenia, ale za rozsądną cenę. Dostaępna jest także wersja domu w odbiciu lustrzanym, wersja podstawowa (projekt domu Viking), pomniejszona z garażem jednostanowiskowym (projekt domu Viking 2), bez garażu (projekt domu Viking 3), z pomieszczeniem nad garażem ( projekt domu Viking 4). Do tego budynek jest energooszczędny i dość łatwy w budowie. Czego chcieć więcej. Vikinga można łatwo dostosować do standardu NF40. Zapraszamy.

