Willa Parkowa







Projekt domu Willa Parkowa to projekt stylowej willi jednorodzinnej, przeznaczonej dla 4-5 osobowej rodziny, parterowej, z niewielkim poddaszem użytkowym.
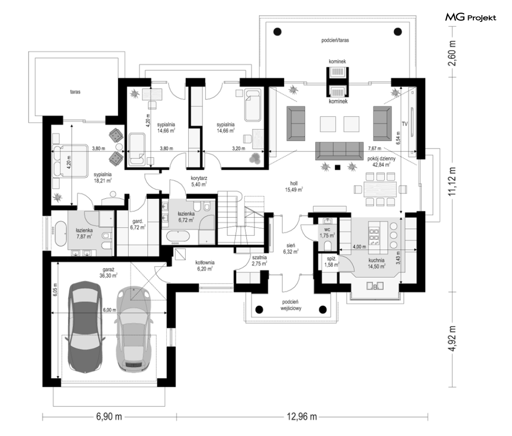
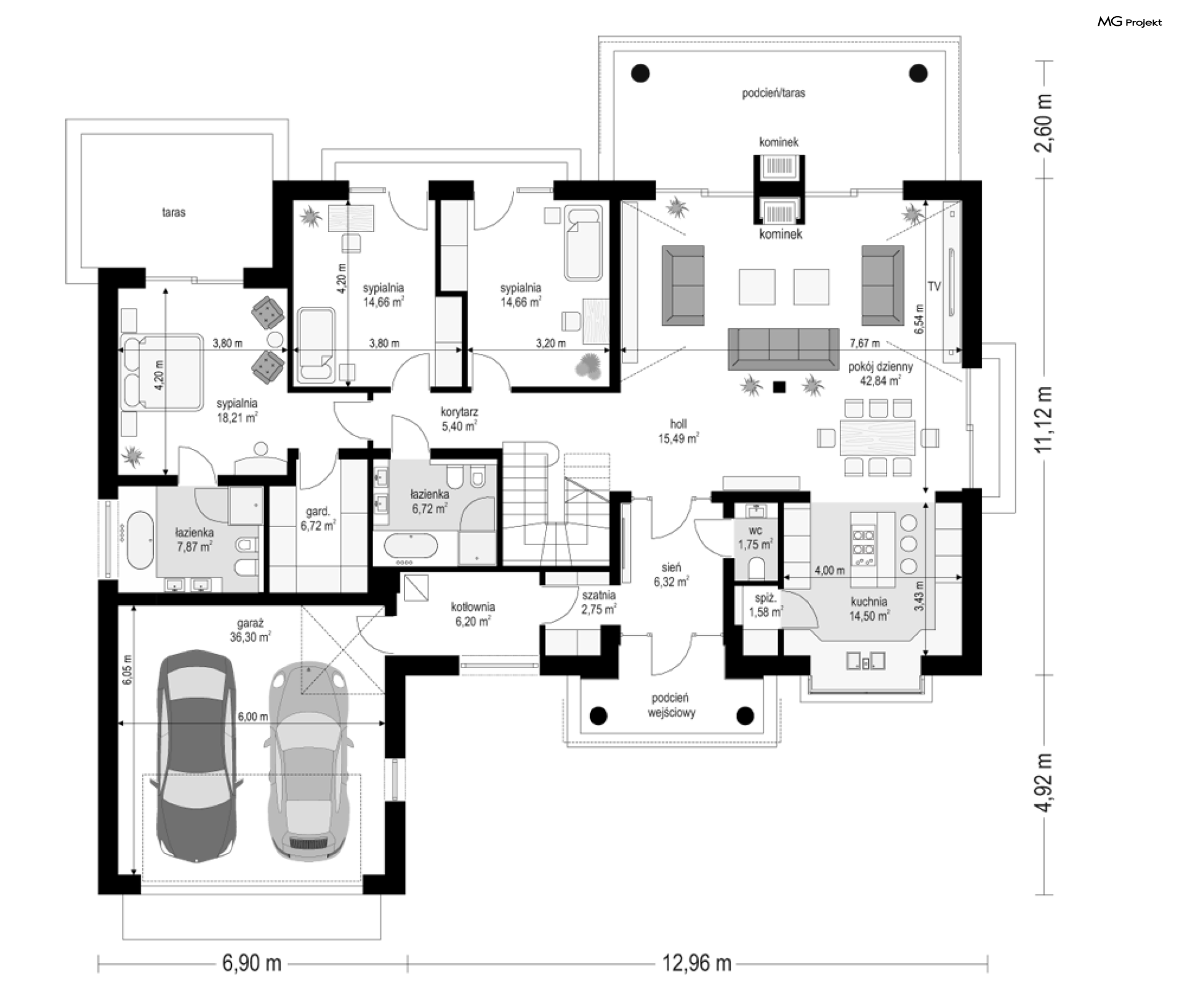
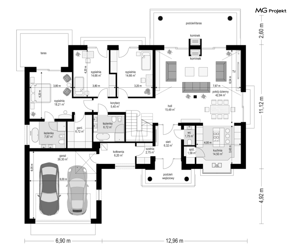
Dom jest kontynuacją projektów domów z serii Rezydencja parkowa, jednak tym razem chociaż projekt Willa Parkowa jest mniejszy - mieści niemal te same funkcje i ilość pomieszczeń, jednak na powierzchni użytkowej parteru 160 m2 plus dwustanowiskowy duży garaż.
Rozłożysta bryła projektu Willa Parkowa przykryta wielospadowym dachem łączy główną bryłę, oraz dobudowany garaż od frontu i duży zadaszony taras od strony ogrodowej.
Elewację frontową domostwa ozdabia reprezentacyjny portyk wejściowy z kolumnami. Projekt parterowego domu jednorodzinnego Willa Parkowa utrzymany jest w stylistyce podmiejskiej rezydencji. Detale architektoniczne podkreślają klasyczny styl projektu domu Willa Parkowa.
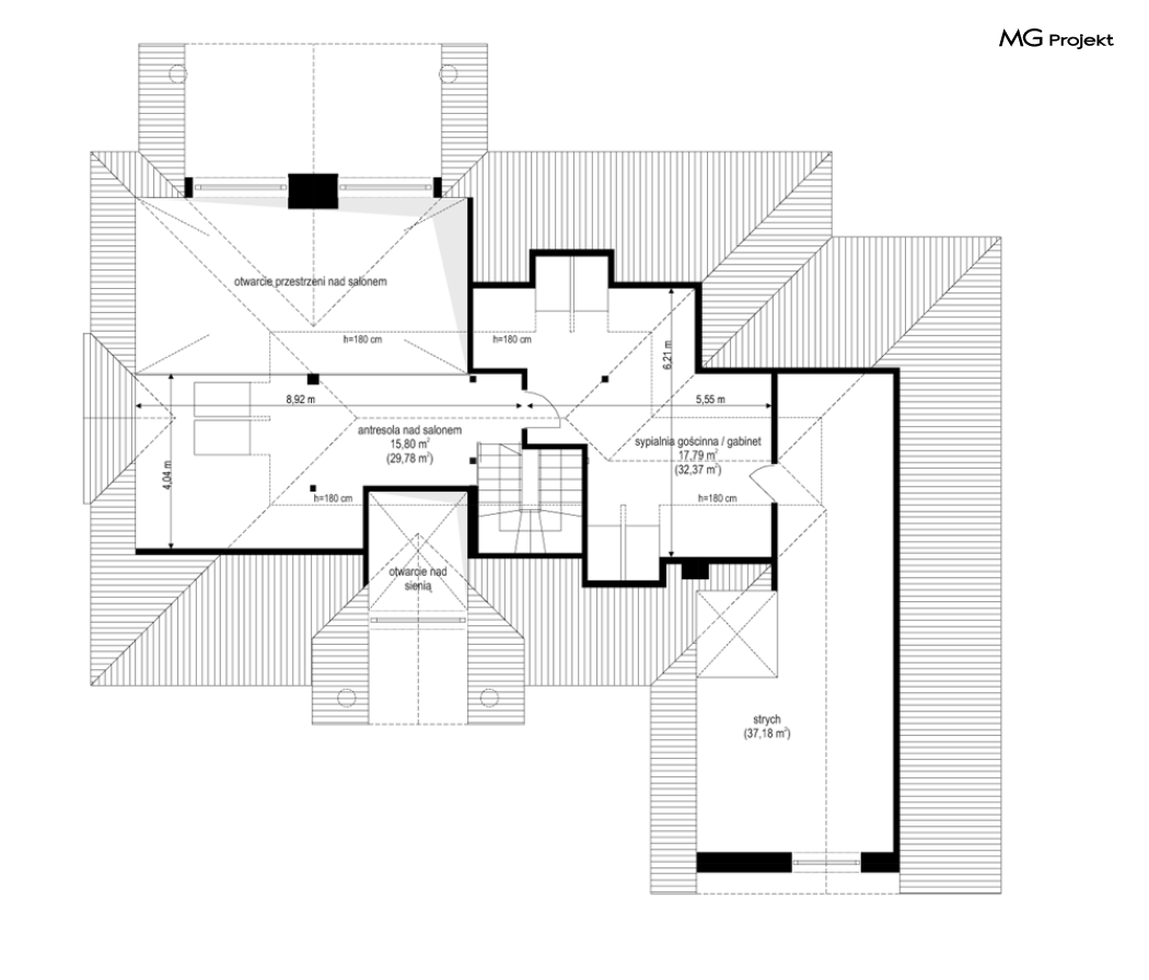
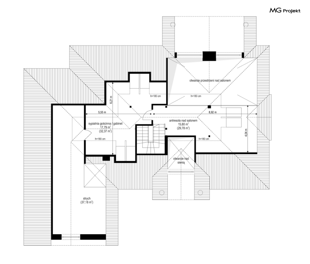
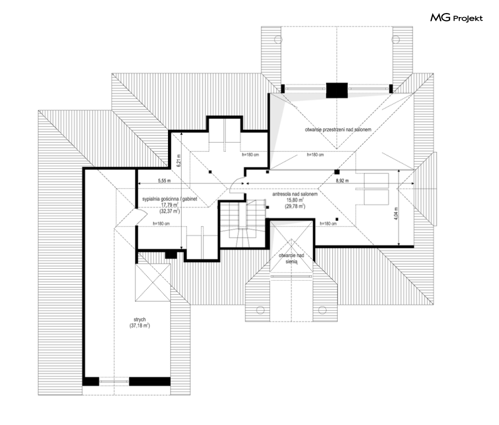
Wnętrze Willi Parkowej zaprojektowano nowocześnie i funkcjonalnie. Część dzienna to jednoprzestrzenna powierzchnia uzytkowa salonu, jadalni, holu i kuchni. Nad częścią salonu zaprojektowano otwarcie przestrzenne - pustkę. W domu Willa Parkowa nad salonem przewidziano antresolę. Z holu i salonu widzimy reprezentacyjne zabiegowe schody na poddasze.
Drugą część budynku w projekcie domu Willa Parkowa zajmują sypialnie, oddzielone od części dziennej.
W tym domu przewidziano również apartament rodziców - z łazienką i garderobą i własnym oddzielnym tarasem, oraz dwie sypialnie dziecięce z łazienką. Na poddaszu zaprojektowano dodatkowy pokój - może to być gabinet, lub jeszcze jedna sypialnia.
W części gospodarczej projektanci MGProjekt zaplanowali kotłownię i dwustanowiskowy garaż. Staraliśmy się oszczędnie gospodarować przestrzenią i "wycisnąć" z niej jak najwięcej. Dzięki temu projekt Willa Parkowa to komfortowy, ale jednocześnie ekonomiczny budynek, z którego przyszli domownicy będą dumni. Willa Parkowa to dom, który nie zrujnuje na całe życie kosztami budowy i utrzymania.
W projekcie domu Willa Parkowa zostały zastosowane energooszczędne rozwiązania, koszty życia w tej mini-rezydencji będą więc kształtowały się na sensownym poziomie.
Zapraszamy do obejrzenia wszystkich projektów domów z serii Willa Parkowa: https://www.mgprojekt.com.pl/willa-parkowa, https://www.mgprojekt.com.pl/willa-parkowa-2, https://www.mgprojekt.com.pl/willa-parkowa-3, https://www.mgprojekt.com.pl/willa-parkowa-4, https://www.mgprojekt.com.pl/willa-parkowa-5, https://www.mgprojekt.com.pl/willa-parkowa-6, https://www.mgprojekt.com.pl/willa-parkowa-6-d, https://www.mgprojekt.com.pl/willa-parkowa-7, https://www.mgprojekt.com.pl/willa-parkowa-8-a, https://www.mgprojekt.com.pl/willa-parkowa-8-b, https://www.mgprojekt.com.pl/willa-parkowa-9, https://www.mgprojekt.com.pl/willa-parkowa-10, https://www.mgprojekt.com.pl/willa-parkowa-b, https://www.mgprojekt.com.pl/willa-parkowa-c, https://www.mgprojekt.com.pl/willa-parkowa-d.

