Doskonały 2 B







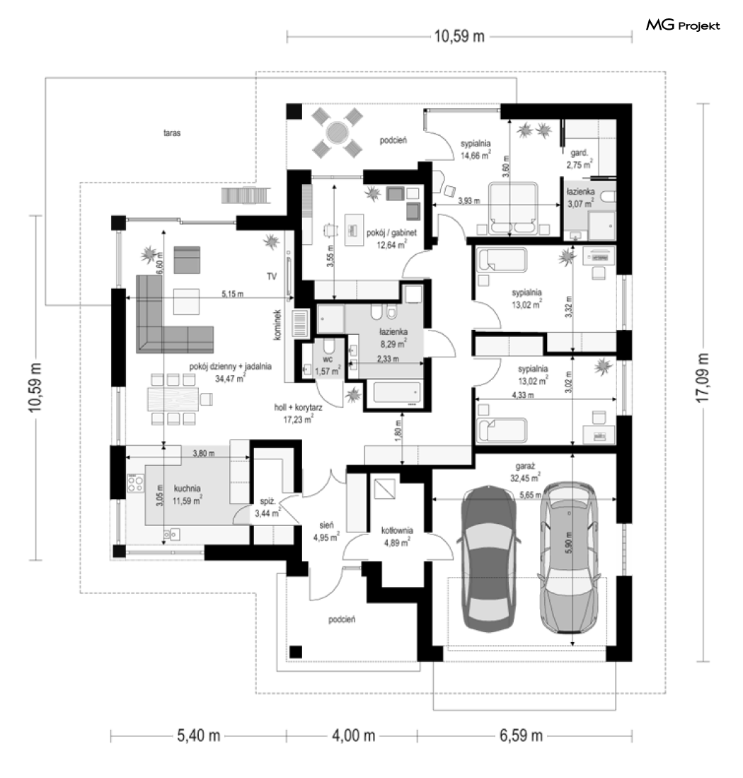
Projekt domu Doskonały 2 B jest wersją wariantową projektu parterowego domku jednorodzinnego z serii „Doskonały”. Projekt przeznaczony jest dla cztero-pięcioosobowej rodziny. Od projektów wersji 1 i 2 różni się wysokością dachu, wyglądem zewnętrznym i częściowo rozwiązaniami funkcjonalnymi wnętrza. Dom to doskonała :) propozycja dla osób pragnących wybudować komfortowy parterowy dom. Bryła budynku zaprojektowana została na planie litery T. Elewację frontową zdobi szeroki podcień wejściowy z reprezentacyjnymi drzwiami z naświetlem. Od strony elewacji ogrodowej dom urozmaicony jest pięknymi przeszkleniami okien, oraz podcieniem przykrywającym część tarasu. Elewacje dzielą trzy poziome pasy : pas dolny - klinkierowy, pas okien i najwyżej nad nadprożami okien biały pas tynku okalający budynek, kontrastujący z drewnianymi podbitkami. Płaska szara dachówka dodaje domowi nowoczesnego wyglądu i przełamuje delikatną rustykalność drewnianych okładzin ścian. Architektura domu to mix nowoczesności z naturalnymi materiałami wykończeniowymi i kolorystyką. Dom doskonale wpasuje się w otaczającą zieleń działki. Wnętrze domu zaprojektowano dzieląc je na część dzienną, gospodarczą i prywatną z sypialniami. W tym wariancie projektu mamy cztery pełnoprawne sypialnie, także dom z powodzeniem nadaje się dla rodziny z trójką dzieci. Część gospodarcza to podwójny garaż i kotłownia, połączone z przedsionkiem. Na prawo od wejścia mamy salon z jadalnią i otwartą ładną kuchnią. W części prywatnej domowników zaprojektowano sypialnię rodziców z niewielką łazienką i garderobą, oraz trzy sypialnie dzieci z dużą łazienką i osobnym wc dostępnym z holu. Nad parterem domu znajduje się strych, który można wykorzystać jako domowy gospodarczy magazyn. Projekt jest świetną propozycją dla osób marzących o parterowym komfortowym domu, ze wszystkimi pomieszczeniami na jednym poziomie, z bliskim kontaktem z otaczającym ogrodem. Zapraszamy do zapoznania się z pełną ofertą pracowni MG Projekt: Doskonały i Doskonały 2.
