Dom na parkowej 2







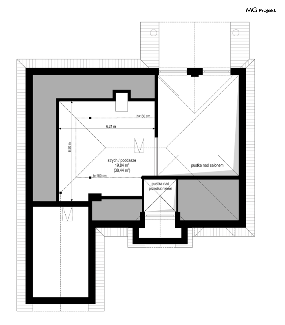
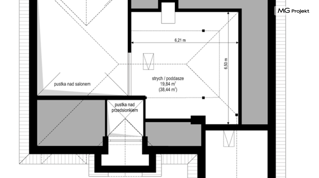
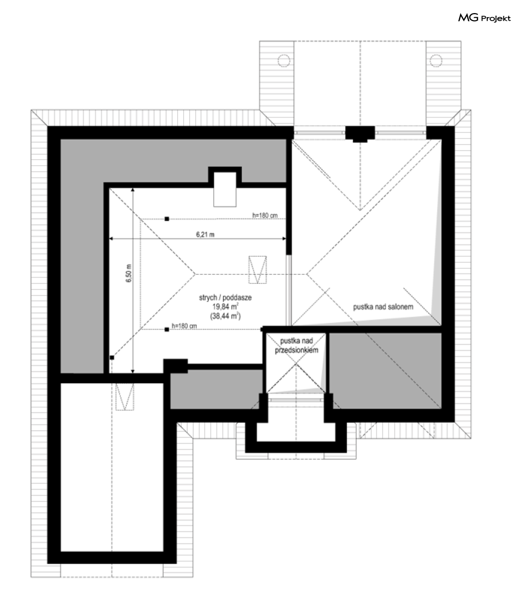
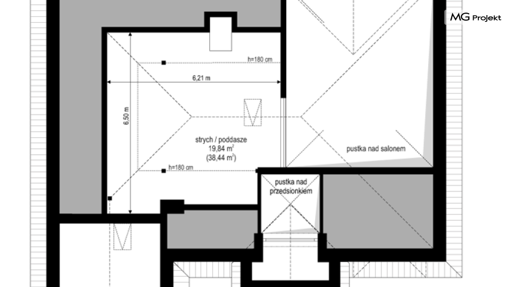
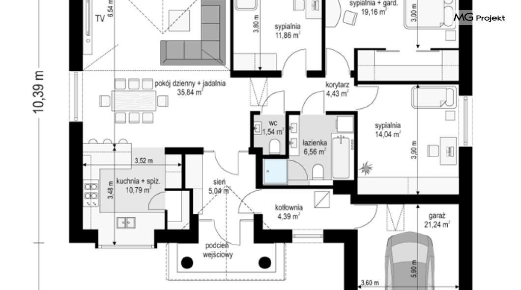
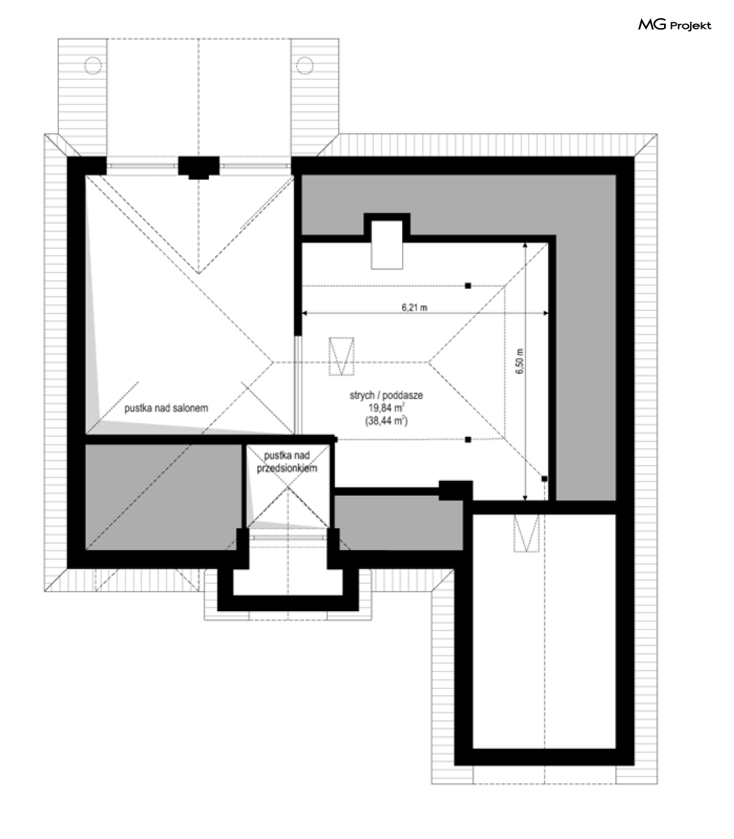
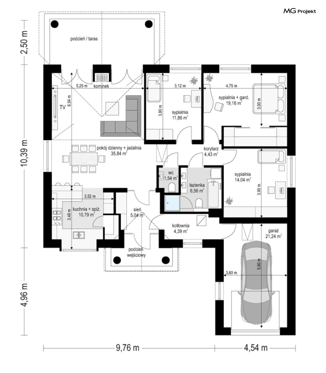
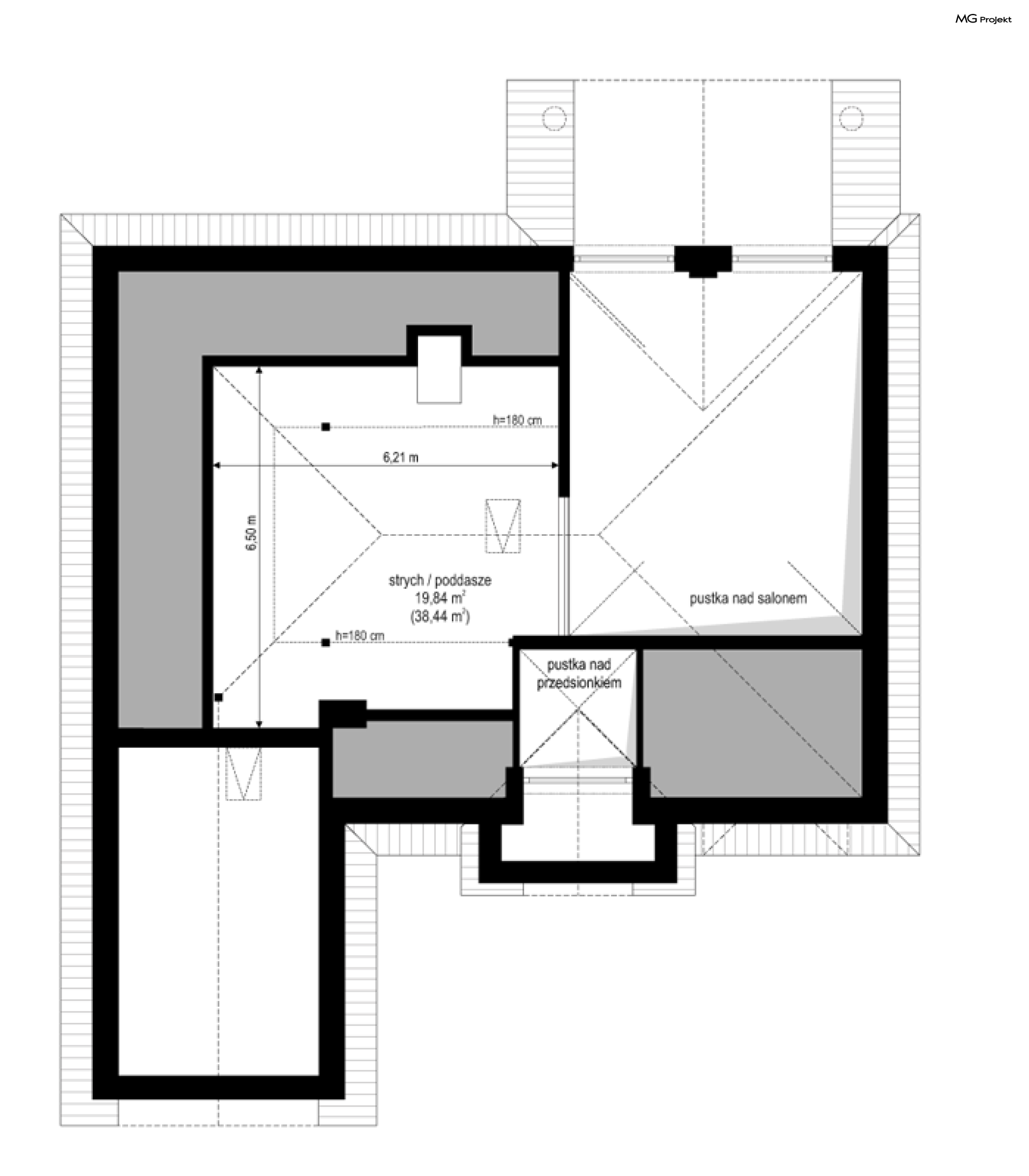
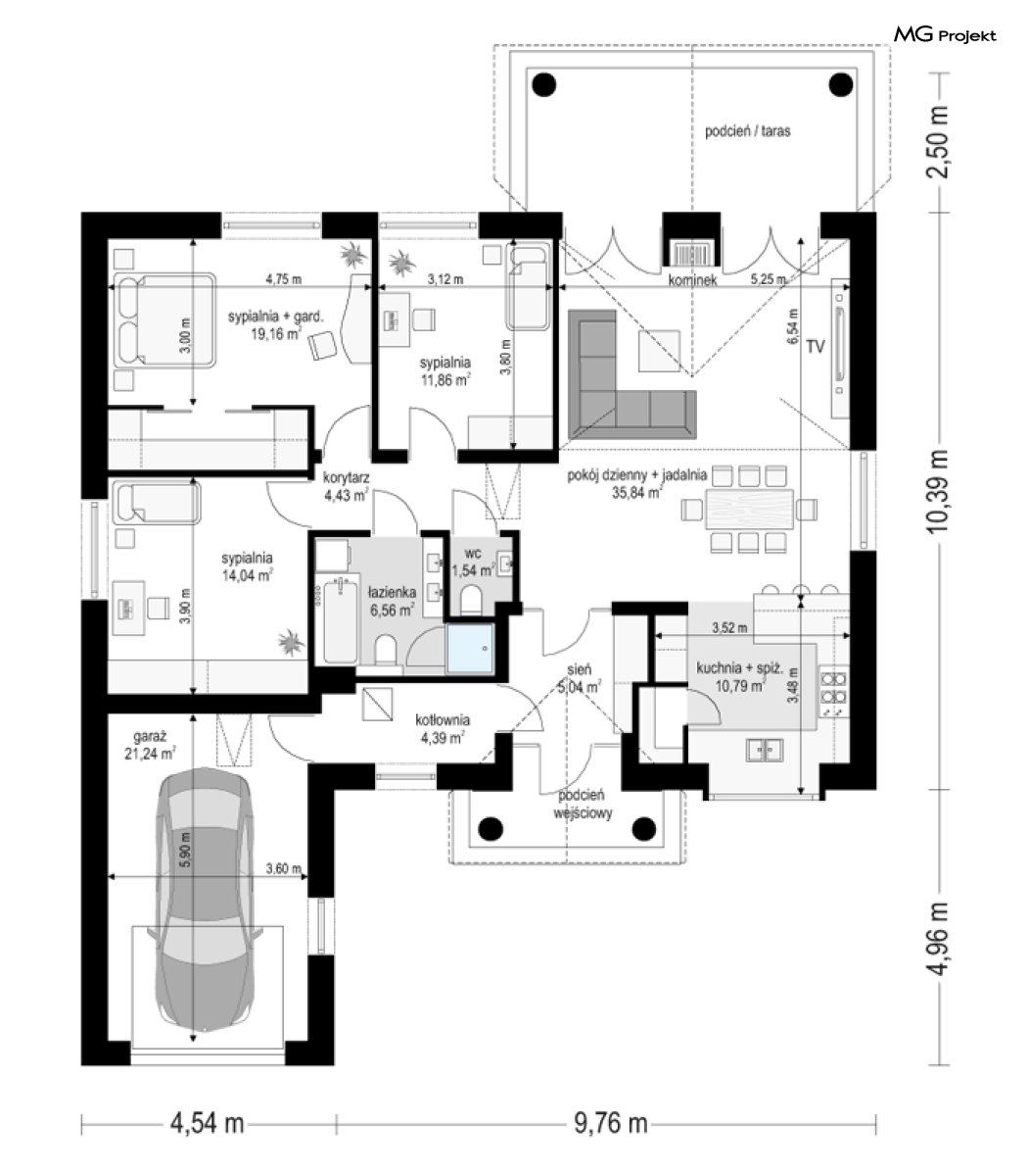
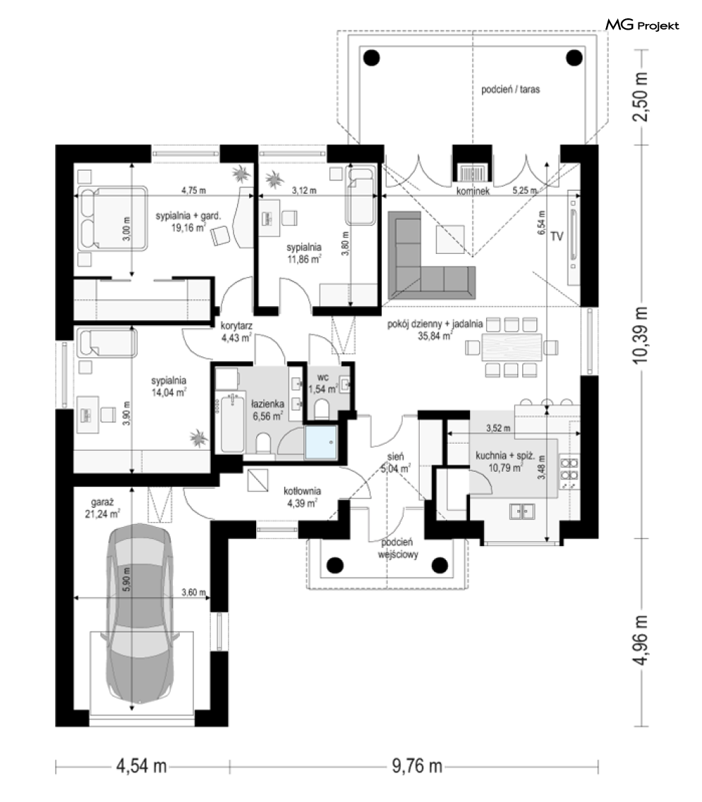
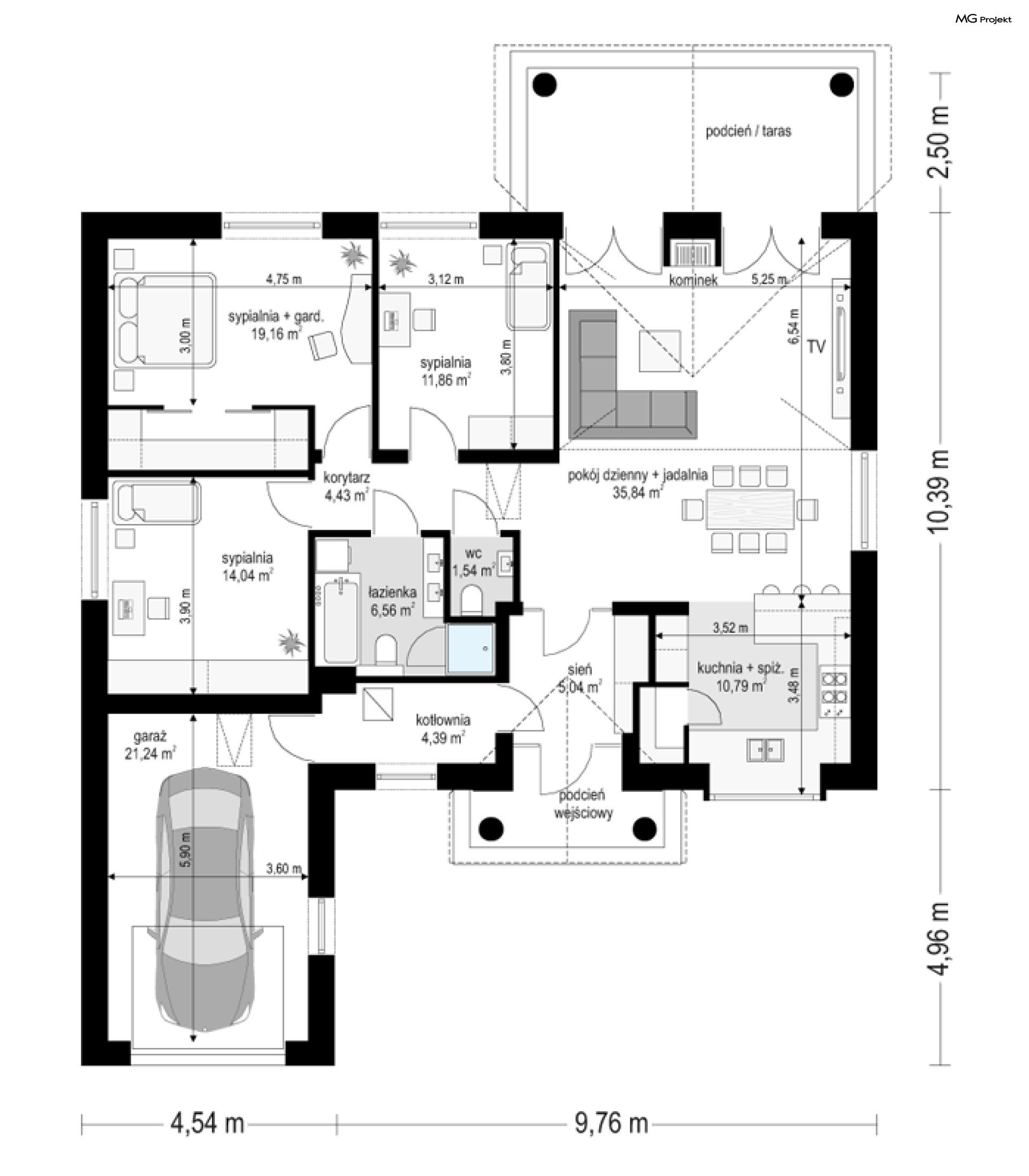
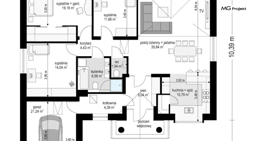
Projekt domu Dom na parkowej 2 jest zdecydowanie najtańszą, najbardziej ekonomiczną wersją projektu z serii Domów na Parkowej. Projekt domu Dom na parkowej 2 jest węższy i mniejszy od wersji bazowej, ma pojedynczy garaż, nie ma zagospodarowanego poddasza (tylko strych z wyciąganymi schodkami drabinkowymi), a strop nad parterem zaprojektowany jest w konstrukcji belkowej drewnianej zamiast płyty monolitycznej - żeby obniżyć nieco koszt realizacji. Przy czym strop zaprojektowano z okładziną z płyt OSB nad okładzinami z płyt g-k po to, żeby uniknąć potencjalnych rys na sufitach. Architektura domu stanowi nawiązanie do amerykańskich podmiejskich willi, oraz po części do polskiego dworku. Wygląd zewnętrzny domu jest klasyczny - jego wnętrze natomiast ma współczesny, funkcjonalny program i układ. Wnętrze podzielono na część dzienną, z ładnym salonem z jadalnią, połączonym z holem i kuchnią, oraz część nocną z trzema sypialniami i łazienką. Sypialnie dziecięce posiadają szafy wbudowane, wnękowe, sypialnia rodziców – garderobę. W wygodnego przedsionka z szafami przedostajemy się też do części gospodarczo –garażowej domu - do kotłowni i garażu. Na strychu pozostawiono wolną przestrzeń magazynową domu, albo po prostu pustkę. Ten w sumie nieduży dom dzięki zwartej prostokątnej bryle i sensownemu wnętrzu, jest bardzo funkcjonalny, a dzięki wbudowanym szafom, spiżarce, garderobie, strychowi, będzie bardzo „pakowny”. Architektura domu jest spokojna, stonowana, operuje nawiązującym do tradycji detalem, ale z zachowaniem dystansu i smaku. Front domu ozdabia reprezentacyjne wejście z szerokimi drzwiami z naświetlami, a od strony elewacji tylnej mamy z kolei duży zadaszony taras z szerokim przeszkleniem otwierającym salon na ogród. Projekt domu Dom na parkowej 2 stanowi świetną propozycję dla osób, które z przyczyn finansowych, lub po prostu praktycznych, wcale nie chcą mieć bardzo dużego domu, ale jednocześnie w ramach ograniczonej powierzchni chcą uzyskać maksimum komfortu, wygody i poczucia luksusu. Mały dom nie musi oznaczać rezygnacji ze spełnienia marzeń. Jednocześnie materiały, izolacje i instalacje zastosowane w projekcie sprawią, że budynek będzie prosty i niedrogi w budowie, oraz tani w późniejszym utrzymaniu. Zapraszamy do zapoznania się z pełną ofertą pracowni MG Projekt: projekt domu Dom na parkowej, projekt domu Dom na parkowej 3, projekt domu Dom na parkowej 4, projekt domu Dom na parkowej 5, projekt domu Dom na parkowej 6, projekt domu Dom na parkowej 7 A, projekt domu Dom na parkowej 7 B.
