Dom na parkowej 5







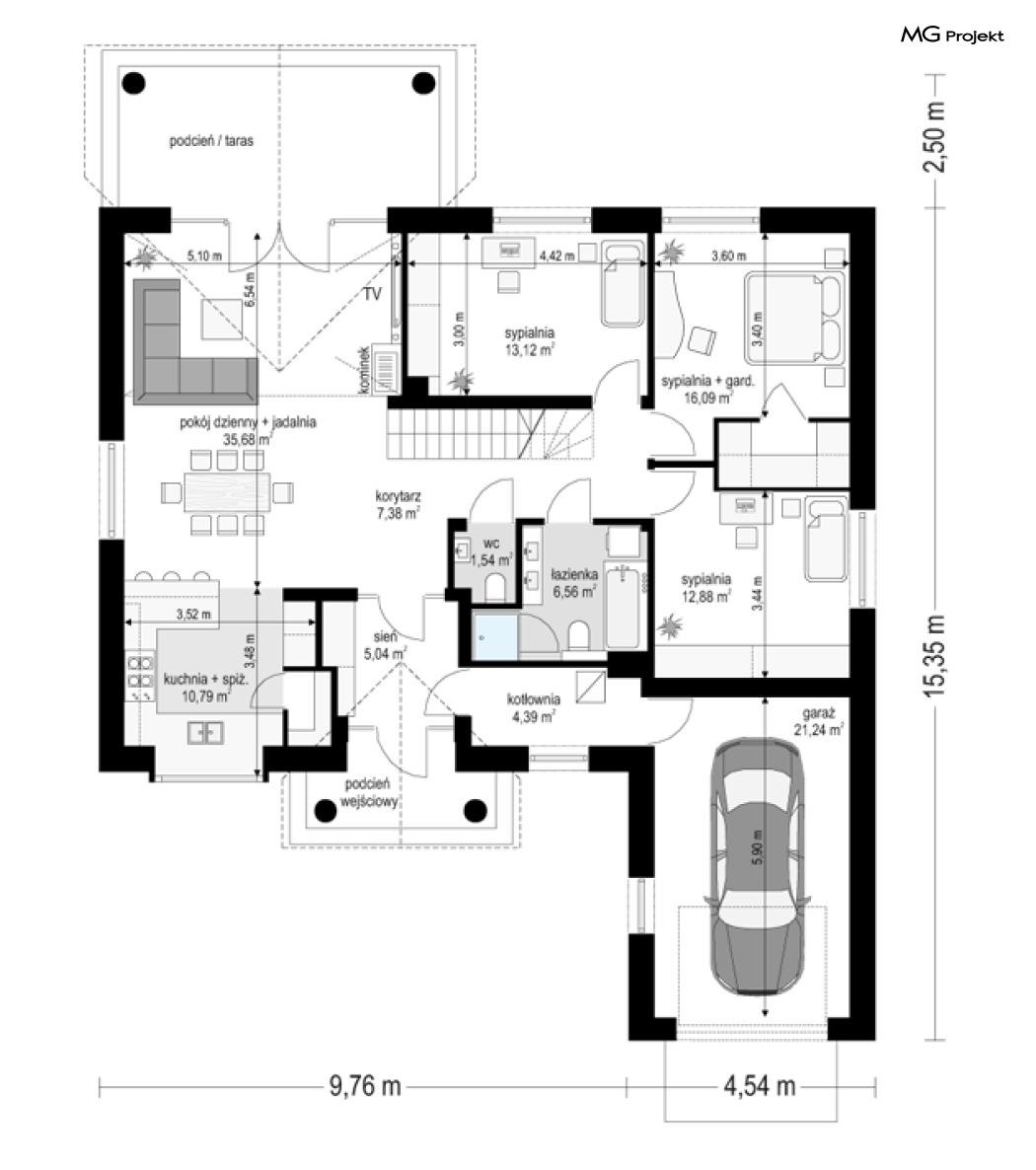
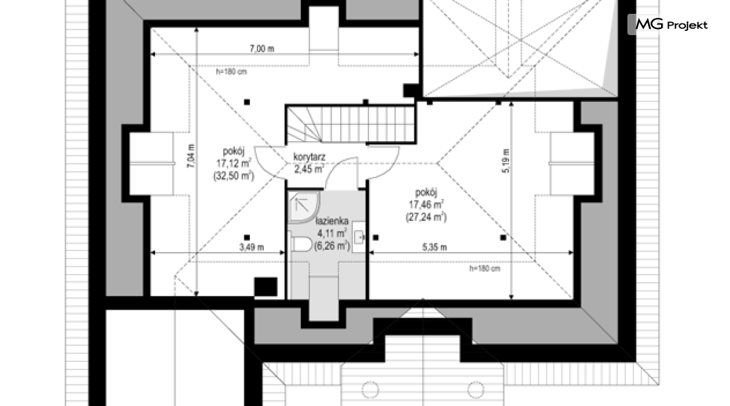
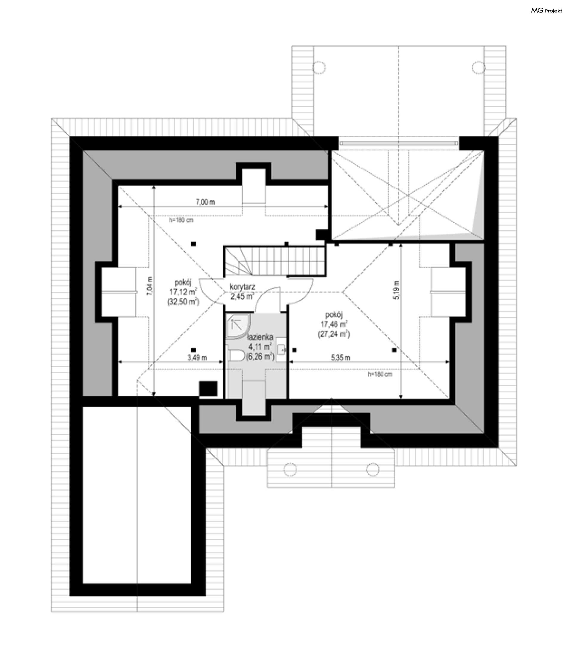
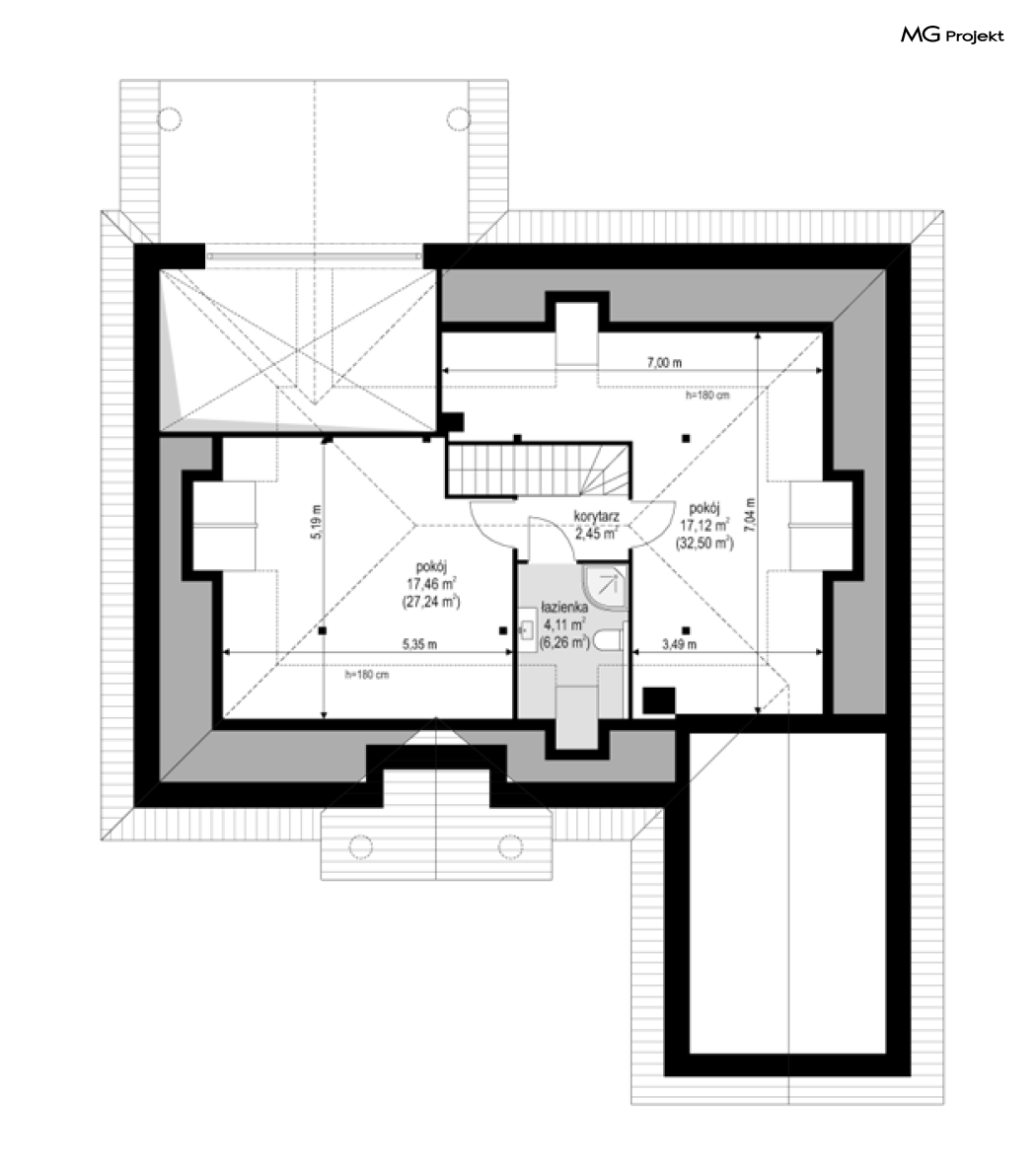
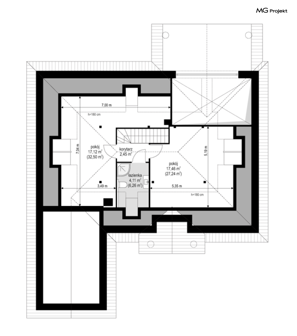
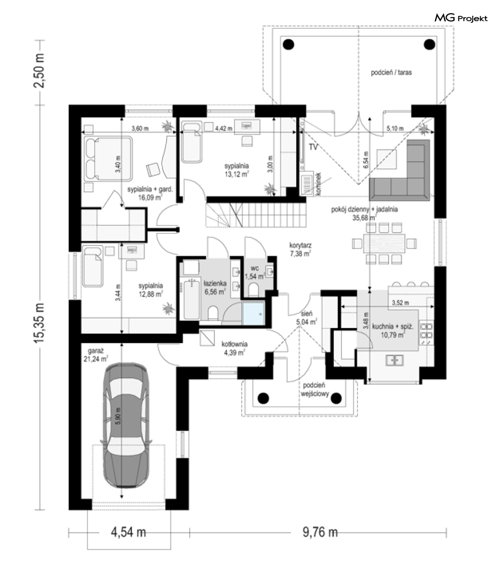
Projekt domu Dom na parkowej 5 jest to kolejny projekt z popularnej serii „Domów na parkowej”, czyli wersja z dachem o większym kącie nachylenia, oraz węższej bryle i pojedynczym garażu. Dom na parkowej 5 jest mniejszy od wersji bazowej i nadaje się na węższą działkę. Dach o kącie 35 stopni z kolei pozwoli sprostać ostrzejszym warunkom zabudowy, a poza tym uzyskujemy nad parterem większe poddasze użytkowe (właściwie strych, który można zaadaptować na poddasze użytkowe jeśli jest taka potrzeba). Architektura domu to nawiązanie do amerykańskich willi z przedmieść, oraz do polskiego dworku, ale w nowocześniejszym ujęciu. Bryła budynku jest prostokątna, przekryta czterospadowym dachem, z dobudowanym wystającym nieco do przodu garażem. W ten sposób przed domem tworzy się większa i bardziej reprezentacyjna część frontowa. Wejście domu zostało podkreślone pięknym frontowym portalem z szerokimi drzwiami z naświetlami po bokach. Od strony ogrodowej mamy z kolei duży zadaszony taras, oraz szerokie przeszklenie łączące salon z tarasem i ogrodem. Wnętrze domu podzielono funkcjonalnie na trzy części: dzienną, nocną i gospodarczo-garażową. Z ładnego przedsionka przechodzimy szerokimi drzwiami na wprost do części dziennej, z salonem, kuchnią i holem. Z części dziennej przechodzimy do sypialni - mamy tutaj trzy sypialnie oraz łazienkę. Sypialnie dzieci mają wbudowane szafy, sypialnia rodziców – garderobę. Z przedsionka możemy też przedostać się do pomieszczenia gospodarczego i garażu. Na strychu mamy miejsce do zaadaptowania na poddasze składające się z dwóch pokoi i łazienki. Projekt domu Dom na parkowej 5 to doskonała propozycja dla osób planujących niewielki dom, ale nie chcących rezygnować z urody, ani godzić się na maksymalne uproszczenie detalu architektonicznego. Projekt domu Dom na parkowej 5 dzięki prostej bryle i konstrukcji będzie niedrogi w realizacji, a dom dzięki zastosowaniu nowoczesnych i energooszczędnych materiałów, oraz instalacji, będzie też tani w późniejszej eksploatacji. Zapraszamy do zapoznania się z pełną ofertą pracowni MG Projekt: projekt domu Dom na parkowej, projekt domu Dom na parkowej 2, projekt domu Dom na parkowej 3, projekt domu Dom na parkowej 4, projekt domu Dom na parkowej 6, projekt domu Dom na parkowej 7 A, projekt domu Dom na parkowej 7 B.

