Magnat 2







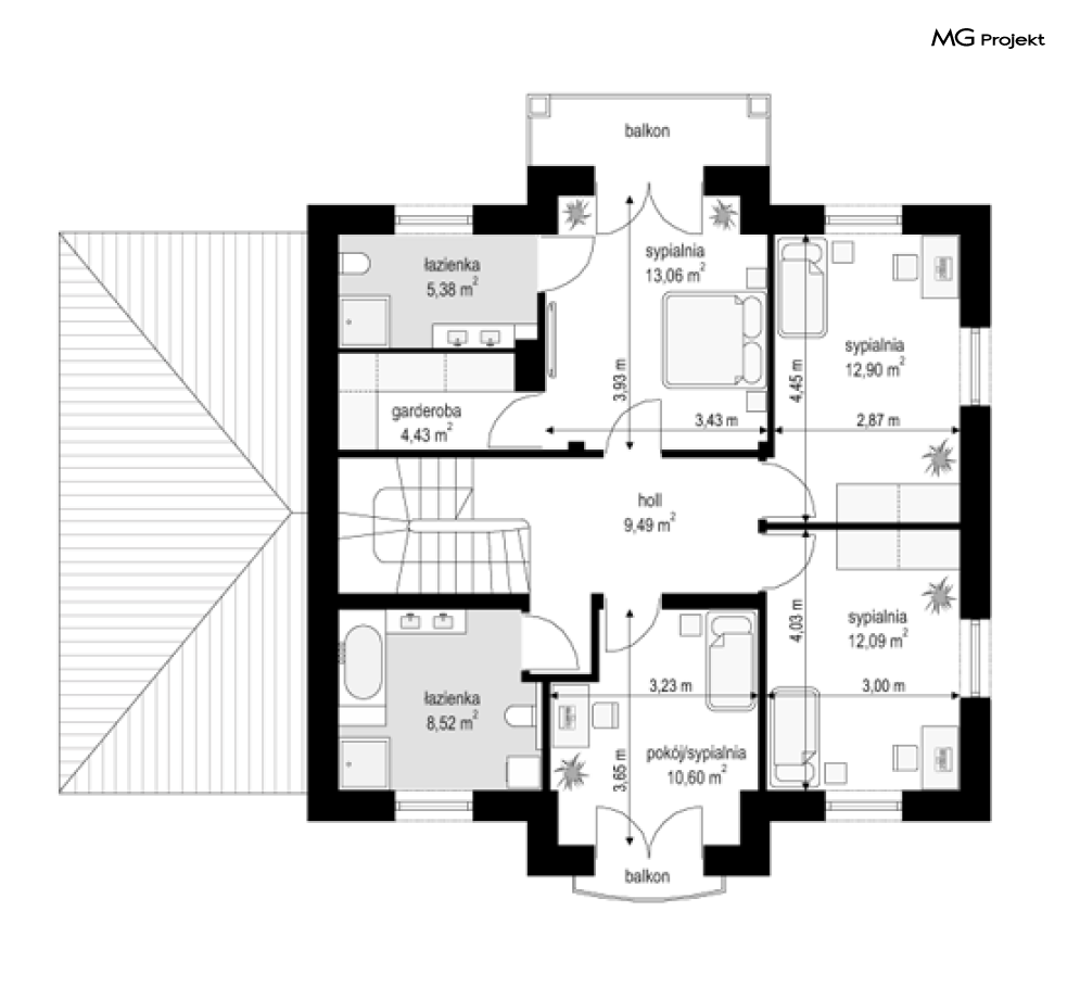
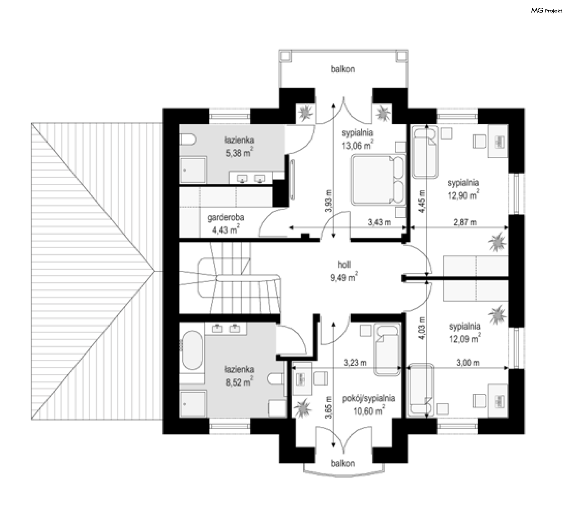
Projekt domu Magnat 2 jest nową wersją popularnego projektu z serii „Magnat” - tym razem dużo mniejszą wersję projektu, o pomniejszonym rzucie, wymiarach zewnętrznych i powierzchni. Projekt domu Magnat 2 to stylowa willa przeznaczona dla 4-5 osobowej rodziny. Dom jest „prawie piętrowy” - choć formalnie ma poddasze użytkowe, to dzięki bardzo wysokiej ścianie poddasza, górna kondygnacja właściwie nie ma skosów i jest równie funkcjonalna jak pełne piętro. Dom zaprojektowano nawiązując do architektury dworkowej lat międzywojennych i przedwojennej architektury rezydencjonalnej Europy. Bryła domu została zbudowana na planie prostokąta, z osią symetrii wyznaczoną reprezentacyjnym wyjściem i eleganckim wejściem do ogrodu. Elewację frontową i ogrodową zdobią piękne okna z podziałami i sztukaterią. Całość bryły przykrywa czterospadowy łagodny dach. Z boku dodana jest bryła garażu. „Magnat 2” to taka mała rezydencja - budynek o normalnej, niewyolbrzymionej skali, ubrany w elegancką stylową formę. Parter domu : z obszernego przedsionka przechodzimy do jednoprzestrzennego wnętrza salonu i jadalni, połączonego z holem, z pięknymi lekko zabiegowymi schodami. Salon łączy się z częściowo otwartą kuchnią ze spiżarnią. Od frontu mamy dodatkowy pokój - gabinet, łazienkę, kotłownię, oraz część gospodarczą z garażem. Na piętrze mieszczą się cztery sypialnie z łazienkami, w tym apartament rodziców z własną łazienką, garderobą i dużym balkonem otwartym na ogród. Dom jest stylową perełką o ponadczasowej architekturze, która przetrwa wszystkie tymczasowe mody. Jednocześnie budynek jest nieduży, dość prosty w budowie, ma praktyczne i funkcjonalne wnętrze. Słowem - projekt domu Magnat 2 to idealna propozycja dla Inwestorów, którzy marzą o stylowym domu, ale nie chcą na niego stracić fortuny. Nowoczesne materiały i technologie zastosowane w projekcie sprawiają, że dom jest energooszczędny i będzie niedrogi w późniejszym utrzymaniu. Zapraszamy do zapoznania się z pełną ofertą pracowni MG Projekt tej serii: Magnat, Magnat 3, Magnat 4. Zapraszamy!
