Zosia 5







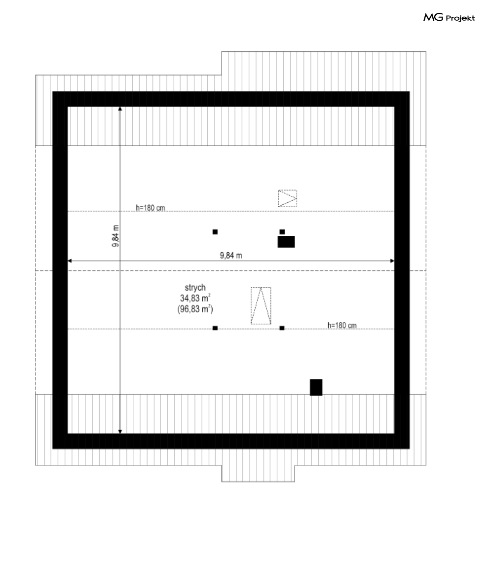
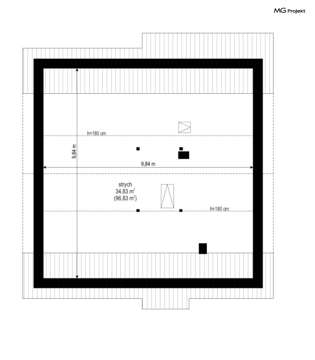
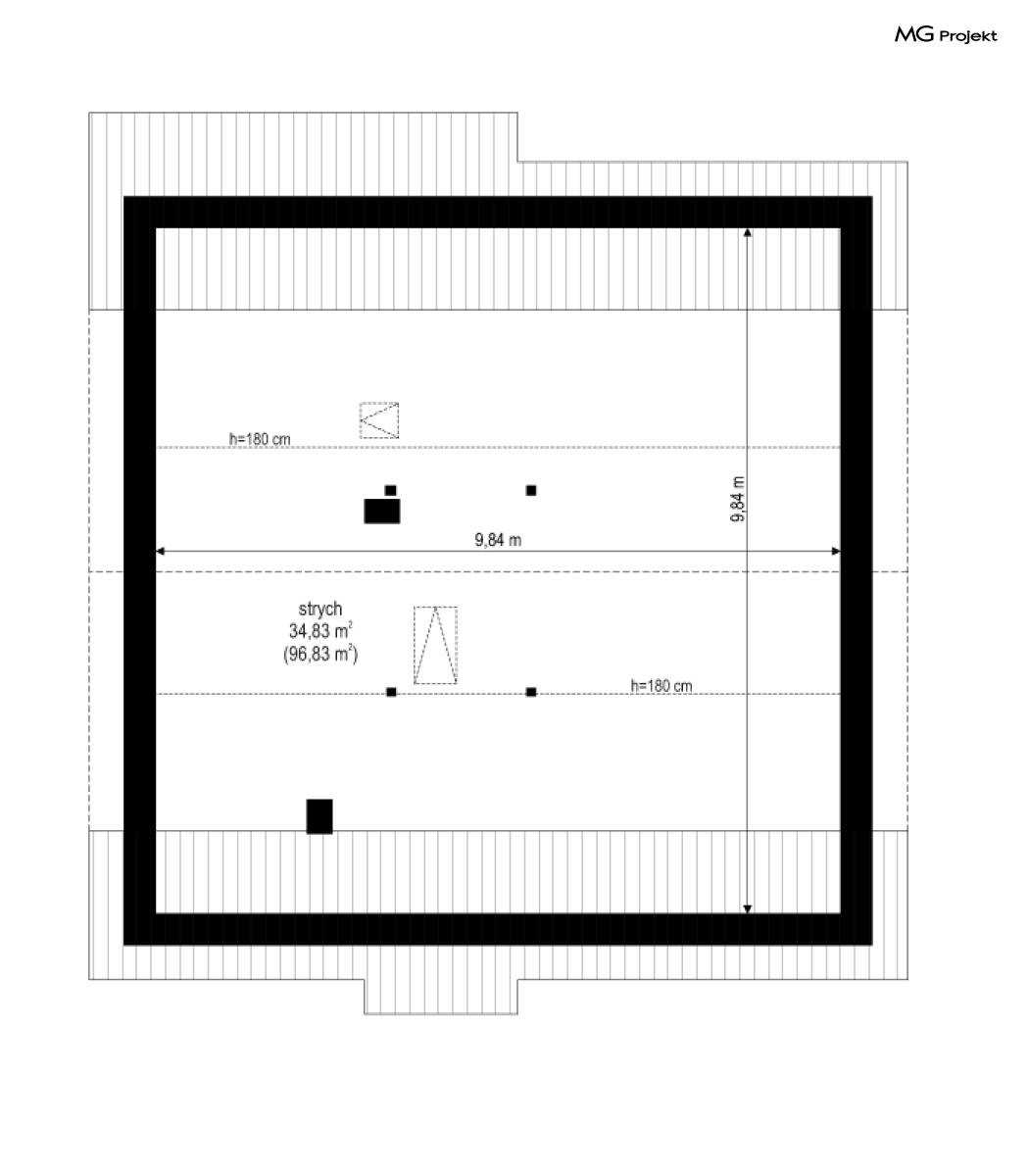
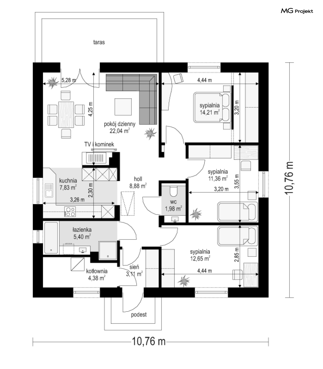
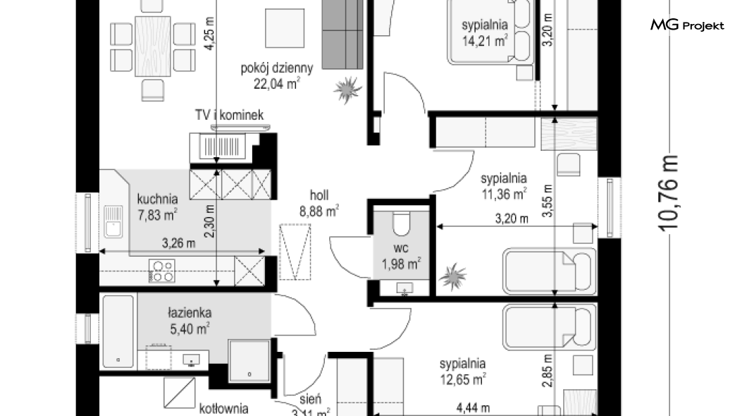
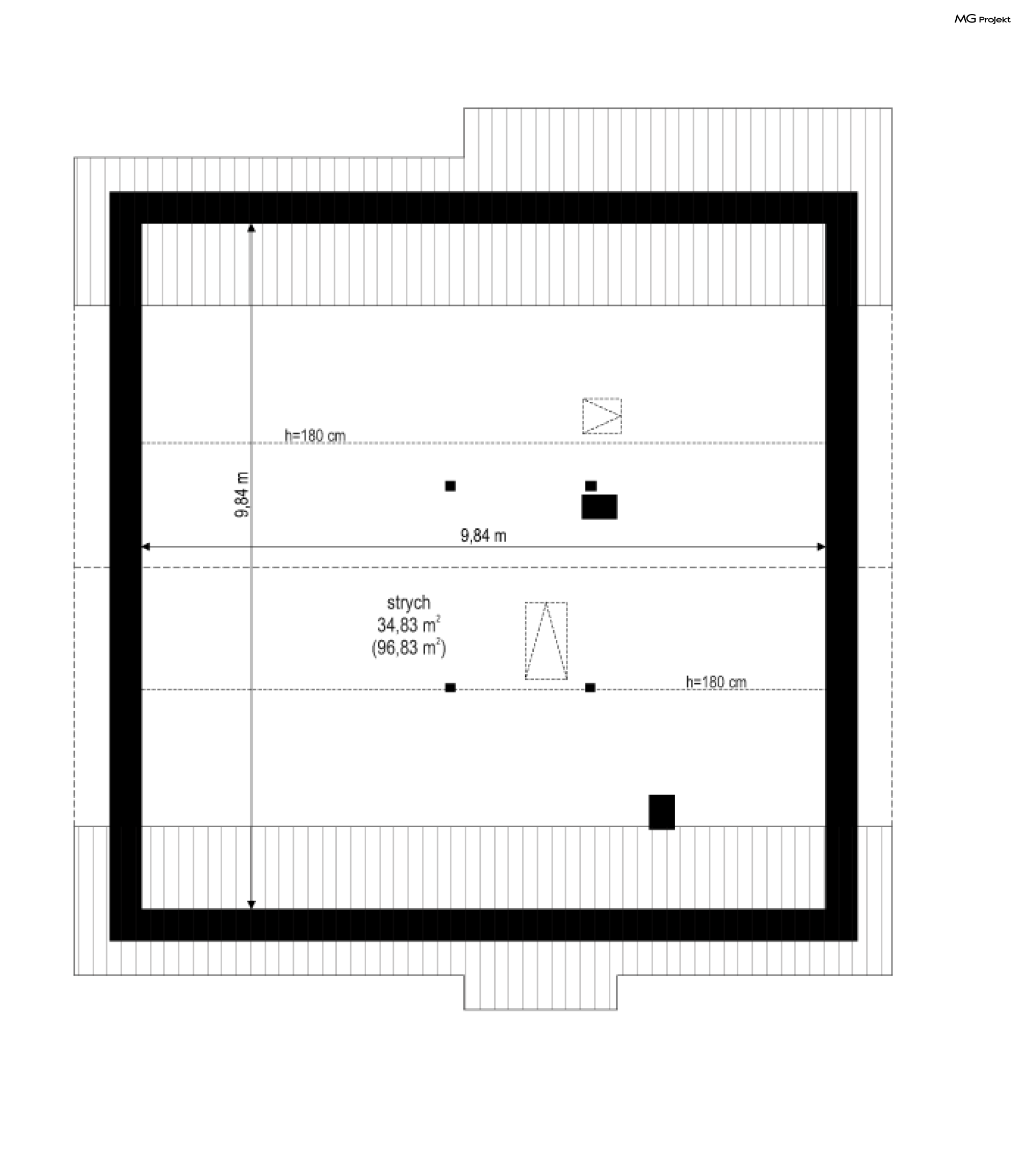
Projekt domu Zosia 5 to kolejna wersja wariantowa z popularnej serii domów „Zosia”. Projekt domu Zosia 5 to nieco większa wersja wariantowa pierwotnego projektu. Jej wymiary zewnętrze to kwadrat : 10,7 x 10,7 metrów. Dzięki temu wnętrze jest bardziej obszerne - wygodniejsze. Dom ma prostą budowę i nieskomplikowaną bryłę. Dzięki oszczędnej formie i swojej prostocie jest łatwy w budowie, a przez to niedrogi. Jednocześnie dzięki funkcjonalnie rozplanowanemu wnętrzu jest wygodny. Zosia 5 nieco większa od projektu bazowego - ma powierzchnię użytkową 87 m2. Dom przykryty jest dwuspadowym dachem o kącie 30 stopni. Nad parterem przewidziano strop drewniany belkowy, oraz krokwiową więźbę dachową. Dzięki temu nad parterem mamy jeszcze sporą przestrzeń magazynową strychu do wykorzystania. Strych można też zaadaptować na dodatkowe poddasze użytkowe modyfikując projekt. Wariantowo zamiast dachu krokwiowego można wykonać konstrukcję dachu z wiązarów kratownicowych. Do domu wchodzimy przez przedsionek z dużą szafą do holu i salonu. Z boku sieni mieści się kotłownia - w projekcie bazowym z kotłem gazowym, ale można ją łatwo zaadaptować na kotłownię na paliwo stałe. Obok kotłowni zaprojektowano łazienkę, po drugiej stronie trzy sypialnie, w tym sypialnię rodziców z garderobą. Od strony ogrodowej mamy przestrzeń dzienną, a salonem z meblami wypoczynkowymi i stołem jadalnym, oraz z kuchnią oddzieloną od pokoju dziennego ścianą kominkowo-telewizyjną. Dom - biorąc pod uwagę niewielką powierzchnię użytkową - jest bardzo funkcjonalny i ma rozbudowany program pomieszczeń. Nie ma tutaj zmarnowanej przestrzeni - wszystko jest zagospodarowane logicznie i praktycznie. Projekt domu Zosia 5 ma bardzo przyjemną i bezpretensjonalną stylistykę. Stylistyka domu jest przyjemna dla oka. Budynek będzie się bardzo dobrze komponował zarówno z otoczeniem zabudowy na przedmieściach, jak i na wsi, wśród luźniej zabudowy. Zdecydowaną zaletą domków z serii „Zosia” jest ich prostota i funkcjonalność, przekładające się na maksymalny efekt inwestycji uzyskany za niewielkie pieniądze. Każdą kolejną wersję domu z tej serii staramy się projektować jeszcze lepiej i sensowniej. Dom jest zaprojektowany jako energooszczędny, bardzo dobrze ocieplony. Będzie dzięki temu tani w późniejszej eksploatacji. Zapraszamy do zapoznania się z pełną ofertą pracowni MG Projekt tej serii: projekt domu Zosia, projekt domu Zosia 2, projekt domu Zosia 3, projekt domu Zosia 4, projekt domu Zosia 6, projekt domu Zosia 7, projekt domu Zosia 7B, projekt domu Zosia 8. Zapraszamy!
