Zosia 6






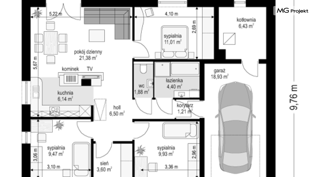
Projekt domu Zosia 6 jest kolejną wersją wariantową popularnego projektu domu jednorodzinnego z serii ”Zosia” - tym razem wersja domu z garażem w bryle budynku i kotłownią za garażem. Projekt domu Zosia 6 to nieco większa wersja wariantowa pierwotnego projektu - jej wymiary zewnętrze to 13 x 9,7 metrów. Dom Zosia 6 ma prostą i nieskomplikowaną bryłę i konstrukcję. Dzięki oszczędnej formie i swojej prostocie jest łatwy w budowie, a przez to niedrogi. Jednocześnie jest funkcjonalny i w stu procentach spełnia wymagania komfortowego mieszkania dla czteroosobowej rodziny. Dom przykryto dwuspadowym dachem o kącie 30 stopni. Nad parterem przewidziano więźbę z wiązarów kratownicowych. Na strychu można przechowywać lekkie przedmioty dostając się na górę schodkami drabinkowymi. Wariantowo można zmodyfikować więźbę dachową na strop drewniany belkowy i więźbę dachową z krokwi i zamienić strych na niewielkie poddasze. Do domu wchodzimy przez przedsionek z dużą szafą do holu i salonu. Po bokach niedaleko wejścia zaprojektowane są sypialnie dziecięce, głębiej mamy przestrzeń dzienną - z kuchnią oddzieloną ścianą kominkowo-telewizyjną, oraz salon z kącikiem na meble wypoczynkowe i miejscem na stół jadalny. Dalej przewidziano nieco wydzieloną od reszty wnętrza sypialnię rodziców. Z holu dostępne są z korytarzyka łazienka i wc, oraz dalej, za podwójnymi drzwiami garaż i kotłownia. Kotłownia w projekcie jest przewidziana jako gazowa, ale można ją w łatwy sposób zamienić na kotłownię na paliwo stałe. Projekt domu Zosia 6 - biorąc pod uwagę niewielką powierzchnię użytkową - jest bardzo funkcjonalny i ma rozbudowany program pomieszczeń. Nie ma tutaj zmarnowanej przestrzeni - wszystko jest zagospodarowane logicznie i praktycznie. Dom ma bezpretensjonalną i przyjemną dla oka stylistykę. Budynek będzie się dobrze komponował zarówno na przedmieściach, jak i na wsi, wśród luźniej zabudowy. Zdecydowaną zaletą domków z serii "Zosia" jest ich prostota i funkcjonalność, przekładające się na maksymalny efekt inwestycji uzyskany za niewielkie pieniądze. Każdą kolejną wersję domu z tej serii staramy się projektować jeszcze lepiej i sensowniej. Dom Zosia 6 jest zaprojektowany jako energooszczędny, bardzo dobrze ocieplony. Będzie dzięki temu tani w późniejszej eksploatacji. Zapraszamy do zapoznania się z pełną ofertą pracowni MG Projekt tej serii: projekt domu Zosia, projekt domu Zosia 2, projekt domu Zosia 3, projekt domu Zosia 4, projekt domu Zosia 5, projekt domu Zosia 7, projekt domu Zosia 7B, projekt domu Zosia 8. Zapraszamy!
