Zosia 7 B







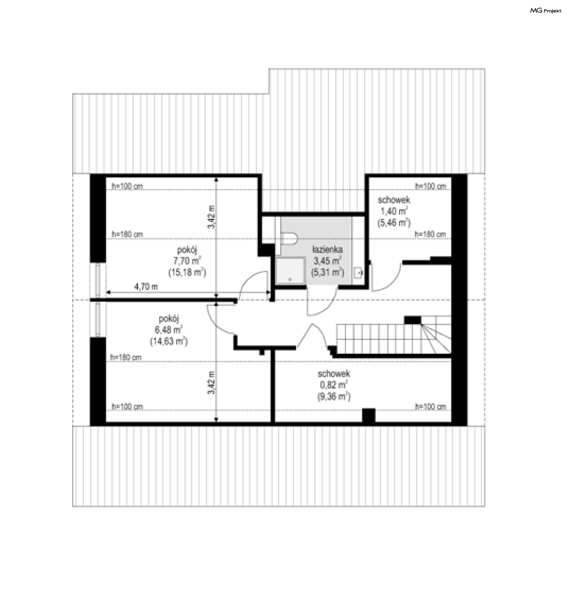
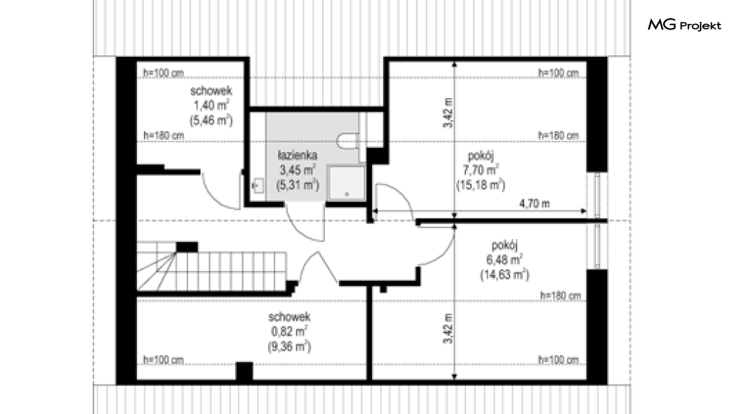
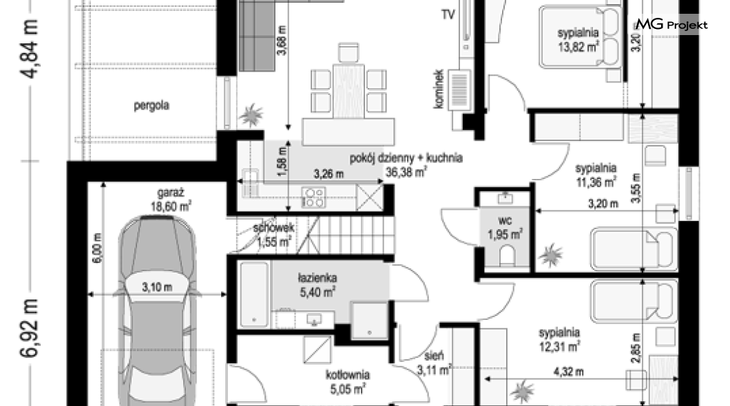
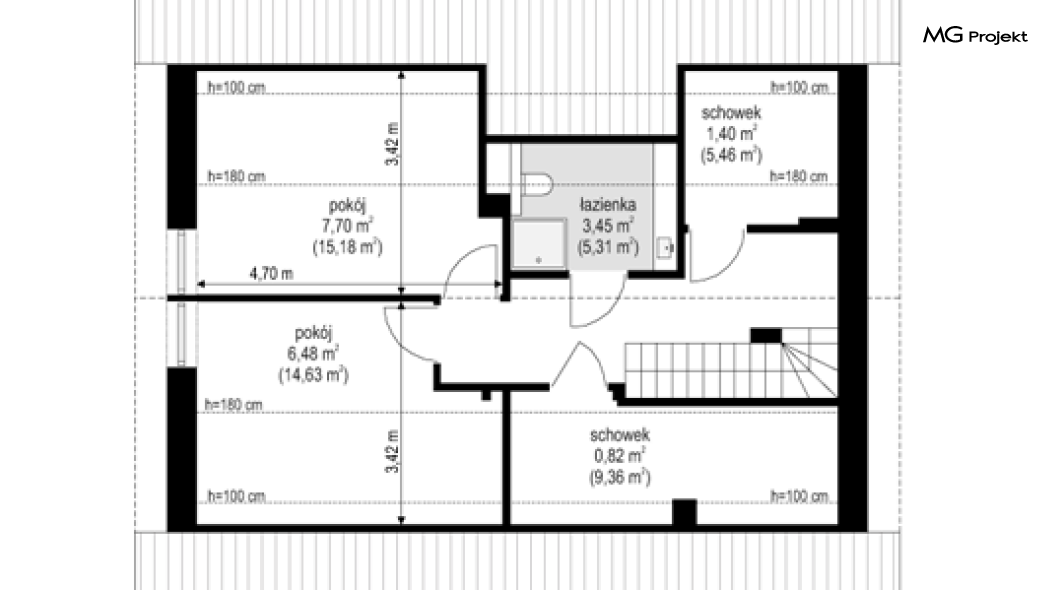
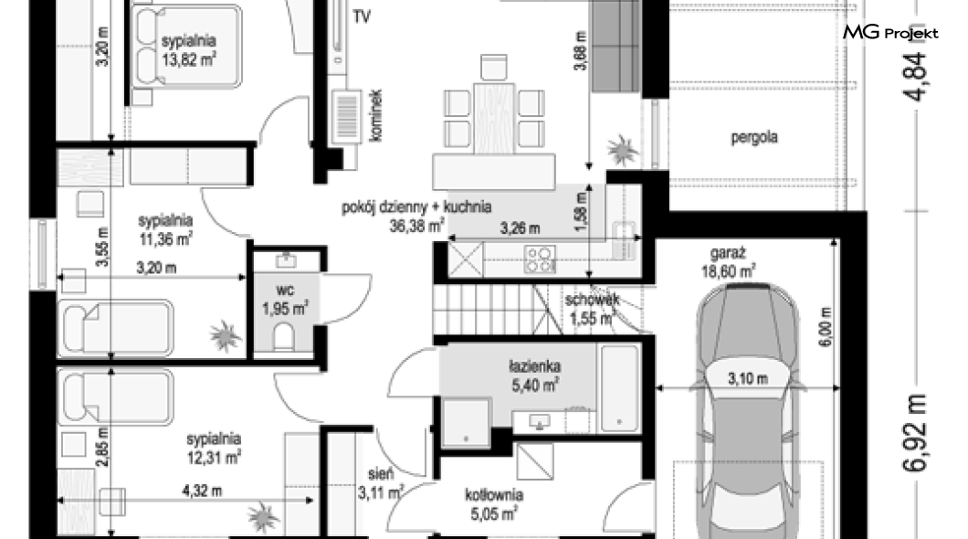
Projekt domu Zosia 7 B to wersja wariantowa projektu „Zosia” - czyli największa, maksymalnie rozbudowana wersja domu z tej serii, o kwadratowym planie o wymiarach 10,7 x 10,7 m, oraz z dobudowanym garażem. Dom ma nadal - tak jak pozostałe projekty z serii „Zosia” - prostą bryłę i konstrukcję, ale zyskał nowoczesny sznyt i jest urozmaicony detalami jak garaż z płaskim dachem, czy komponujące się z garażem zadaszenie drzwi wejściowych, czy wreszcie pergola przykrywająca część tarasu ogrodowego. Projekt domu Zosia 7 B, mimo kilku urozmaiceń, dzięki swojej prostocie jest łatwy w budowie, a przez to niedrogi. Jednocześnie funkcjonalnie w stu procentach spełnia wymagania komfortowego mieszkania dla cztero- czy nawet sześcioosobowej osobowej rodziny. Budynek przykryto dwuspadowym dachem o kącie 30 stopni. Nad parterem przewidziano strop drewniany belkowy i poddasze użytkowe z dwoma pokojami, na które dostajemy się schodami między kuchnią i łazienką. Do domu wchodzimy przez przedsionek z dużą szafą do holu i salonu. Z boku przy wejściu przechodzimy do kotłowni i dalej do garażu. Kotłownia została przewidziana w projekcie jako gazowa, ale łatwo można ją przerobić na kotłownię na paliwo stałe. Dalej mamy łazienkę i schody (pod schodami od strony garażu mieści się praktyczny schowek). Z lewej strony mamy trzy sypialnie, w tym sypialnię rodziców z garderobą. Pozostała część wnętrza to salon z aneksem kuchennym o powierzchni około 35 m2. Z salonu wydostajemy się do ogrodu i na tarasy. Taras o kształcie litery L jest częściowo odkryty, a częściowo przesłonięty pergolą.Na poddaszu zaprojektowano dodatkowe dwa pokoje i łazienkę. Oczywiście poddasze może być pozostawione jako przestrzeń wolna, bez podziałów na pokoje, lub może to być po prostu strych, który w przyszłości zostanie zagospodarowany. Dom jest bardzo funkcjonalny i ma rozbudowany program pomieszczeń. Nie ma tutaj zmarnowanej przestrzeni - wszystko jest praktycznie wykorzystane. Dom ma bezpretensjonalną i przyjemną dla oka stylistykę. Zdecydowaną zaletą domków z serii „Zosia” jest ich prostota i funkcjonalność, przekładające się na maksymalny efekt inwestycji uzyskany za niewielkie pieniądze. Każdą kolejną wersję domu z tej serii staramy się projektować jeszcze lepiej i sensowniej. Dom Zosia 7 B jest zaprojektowany jako energooszczędny, bardzo dobrze ocieplony. Będzie dzięki temu tani w późniejszej eksploatacji. Zachęcamy do zapoznania się z pełną ofertą pracowni MG Projekt tej serii: projekt domu Zosia, projekt domu Zosia 2, projekt domu Zosia 3, projekt domu Zosia 4, projekt domu Zosia 5, projekt domu Zosia 6, projekt domu Zosia 7, projekt domu Zosia 8. Zapraszamy!
