Wymarzony 11







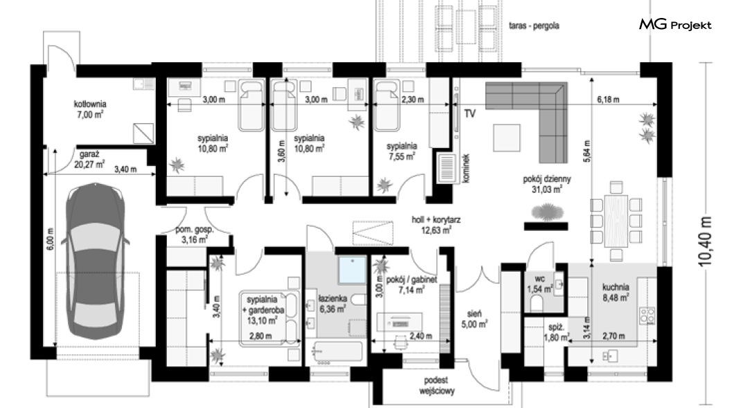
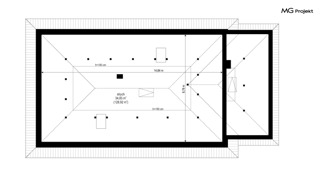
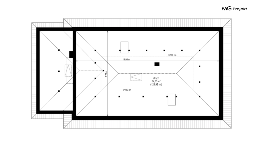
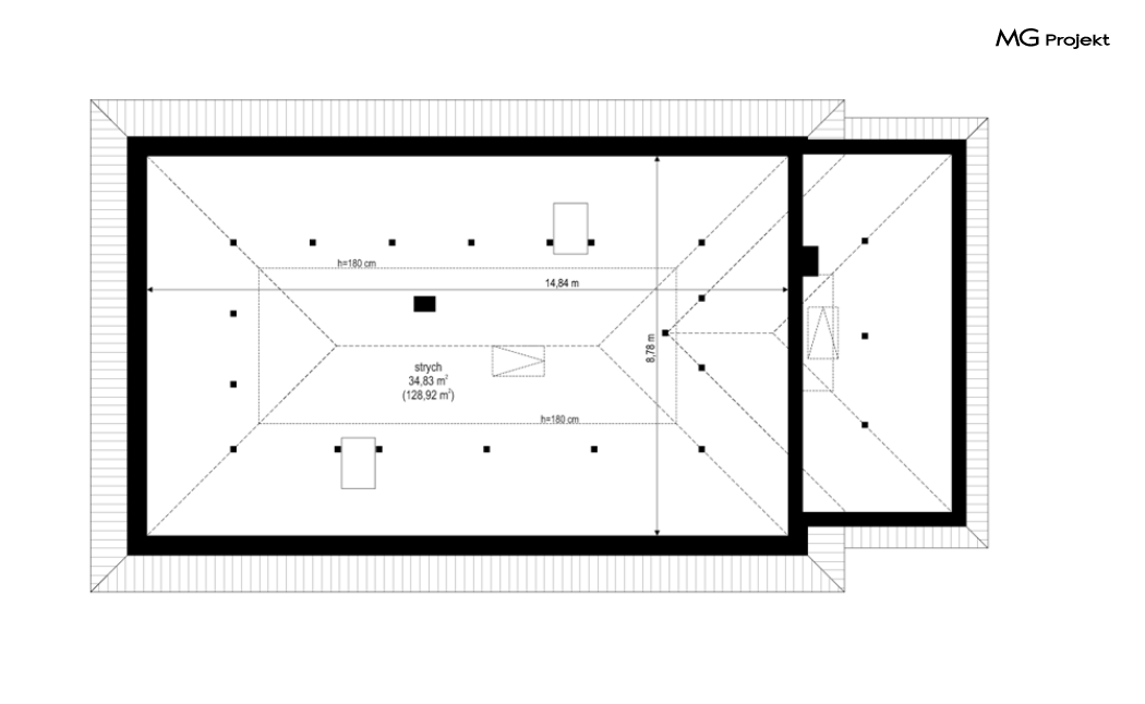
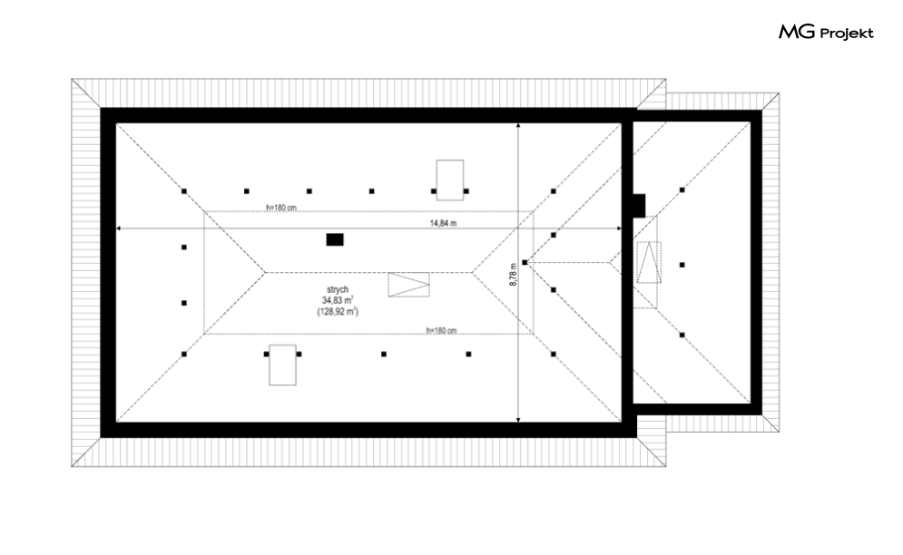
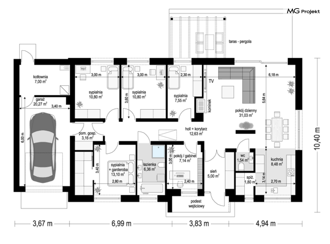
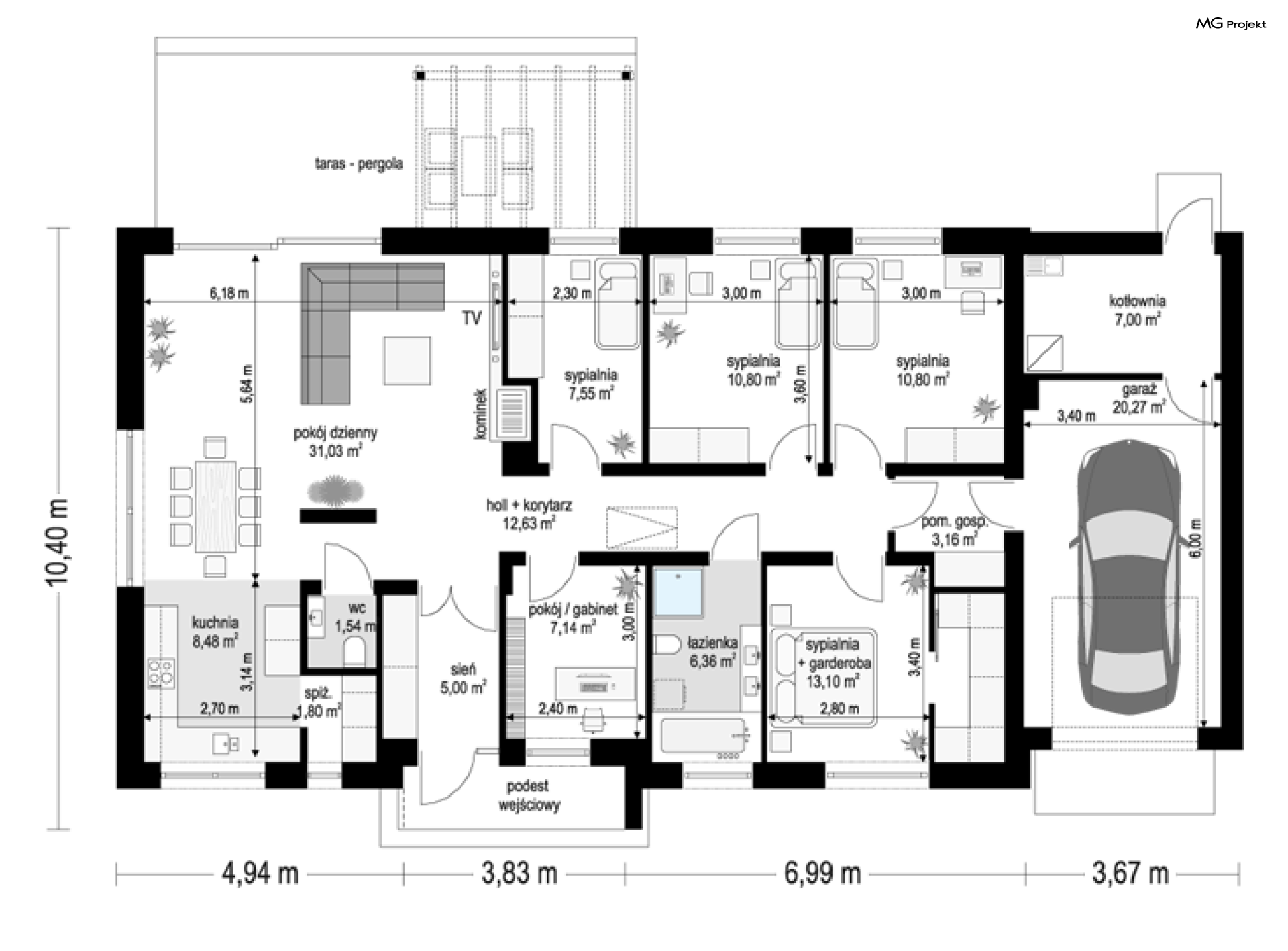
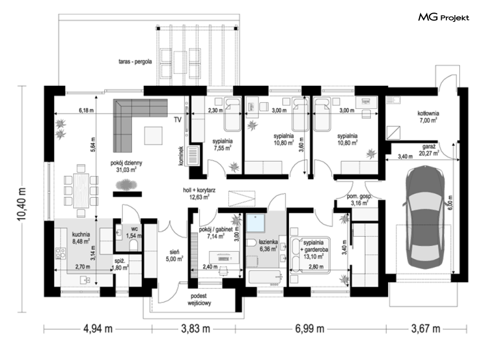
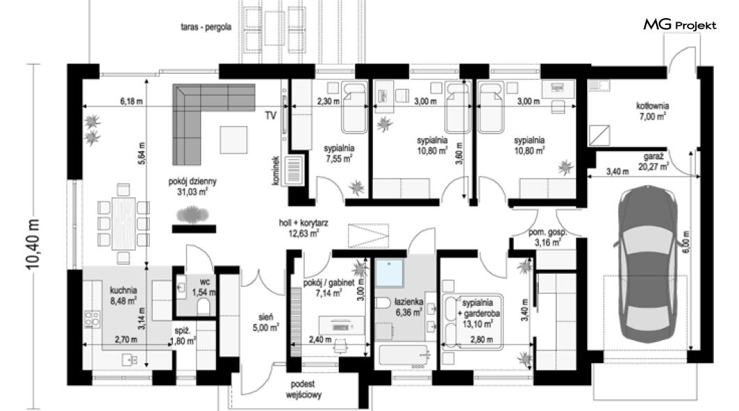
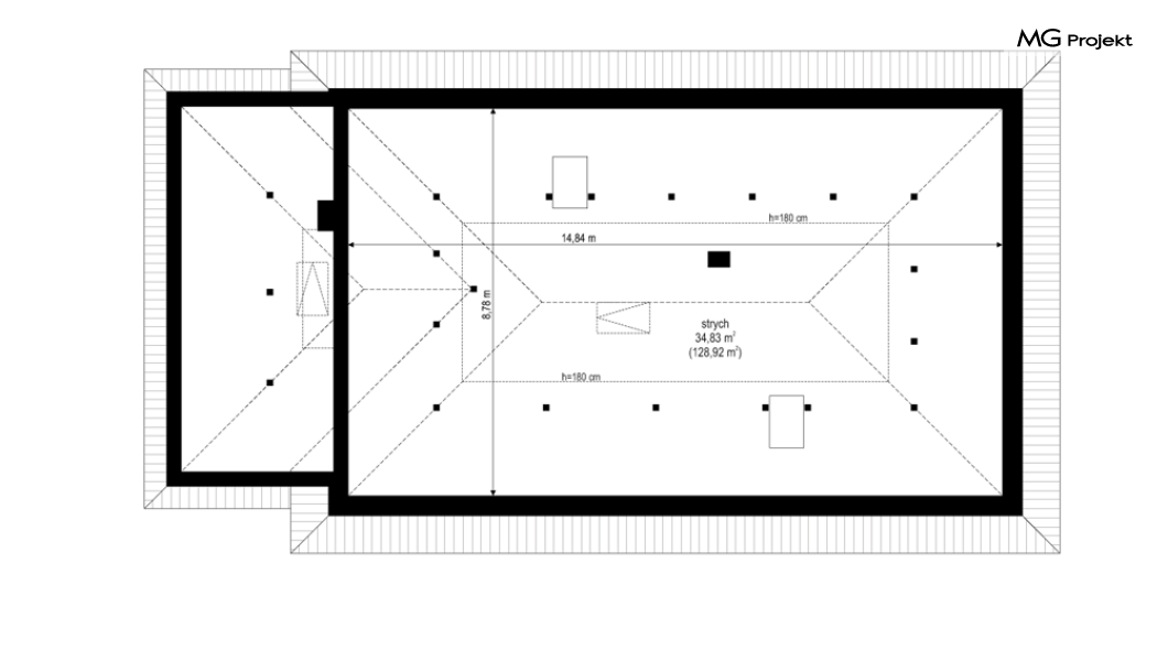
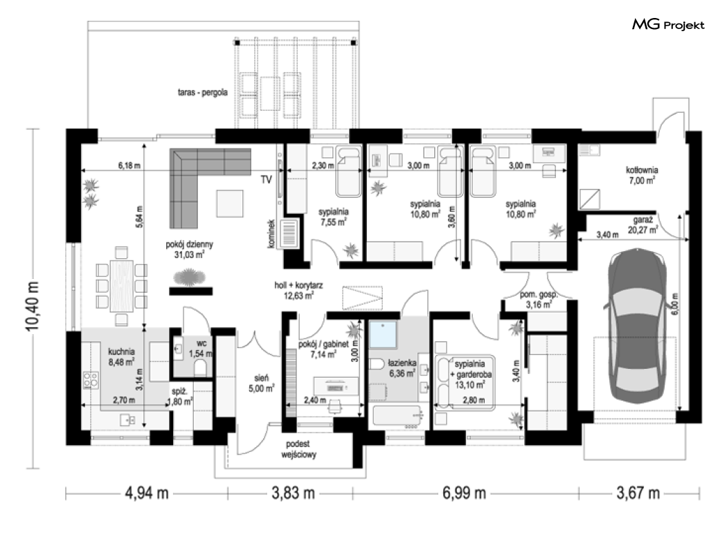
Projekt domu Wymarzony 11 to uroczy dom jednorodzinny z kolekcji naszych projektów „Wymarzonych”. Jest to jedna z najmniej rozbudowanych wersji z projektów tej serii, jednocześnie jedna z najładniejszych i najzgrabniejszych. Prostokątną bryłę z garażem przekryto dwoma dachami czterospadowymi o kącie nachylenia 30 stopni. Projekt domu Wymarzony 11 ma nowoczesną stylistykę i łączy tradycyjną sylwetkę z nowoczesnymi detalami i materiałami wykończeniowymi. Połączenie białych tynkowanych ścian z szarymi dodatkami, szarą dachówką i ramami okien, dają pełen elegancji i sznytu wygląd zewnętrzny budynku. Główne ozdoby elewacji to : wejście z daszkiem w kształcie litery „L” i ładnymi drzwiami frontowymi, oraz strefa tarasowa od strony ogrodu z dużym przeszkleniem z pokoju dziennego i z pergolą. Dom przeznaczony jest na działkę z ogrodem i oświetleniem słonecznym z tyłu lub z boku budynku. Wnętrze domu mieści w sobie wygodną cześć dzienną, oraz aż pięć dodatkowych pokoi, co przy niewielkiej powierzchni domu jest bardzo dobrym wynikiem. Dom Wymarzony 11 może być swobodnie użytkowany nawet przez rodzinę 2 + 4. Pokoje mogą być zagospodarowane jako sypialnie dziecięce. Jeden z pokoi może pozostać domowym biurem / gabinetem. Do wnętrza wchodzimy wygodnym przedsionkiem do części dziennej, z salonem, jadalnią i otwartą kuchnią. W salonie przewidziano ścianę kominkowo – telewizyjną, miejsce na wygodny wypoczynek, a szerokie drzwi balkonowe otwierają pokój dzienny na taras i ogród. Z salonu przez hol- korytarz przedostajemy się do części domu z sypialnią rodziców z garderoba, oraz sypianiami dzieci. Dalej dom łączy się z częścią garażowo-gospodarczą budynku, przez pomieszczenie gospodarcze, z garażem i kotłownią. Strych nad parterem zaprojektowano jako przestrzeń magazynową, na którą dostajemy się schodkami drabinkowymi. Projekt domu Wymarzony 11 to elegancki, komfortowy dom dla cztero-sześcioosobowej rodziny. Jego funkcjonalność i praktyczność zagospodarowania wnętrza łączy się z solidną konstrukcją i prostotą architektury. Budynek jest energooszczędny, ma łatwą w budowie konstrukcję, będzie niedrogi w utrzymaniu. Zapraszamy do zapoznania się z pełną ofertą pracowni MG Projekt tej serii: Wymarzony, Wymarzony 2, Wymarzony 3, Wymarzony 4, Wymarzony 5, Wymarzony 6, Wymarzony 7, Wymarzony 8, Wymarzony 9, Wymarzony 10.
