Rezydencja Floryda 2







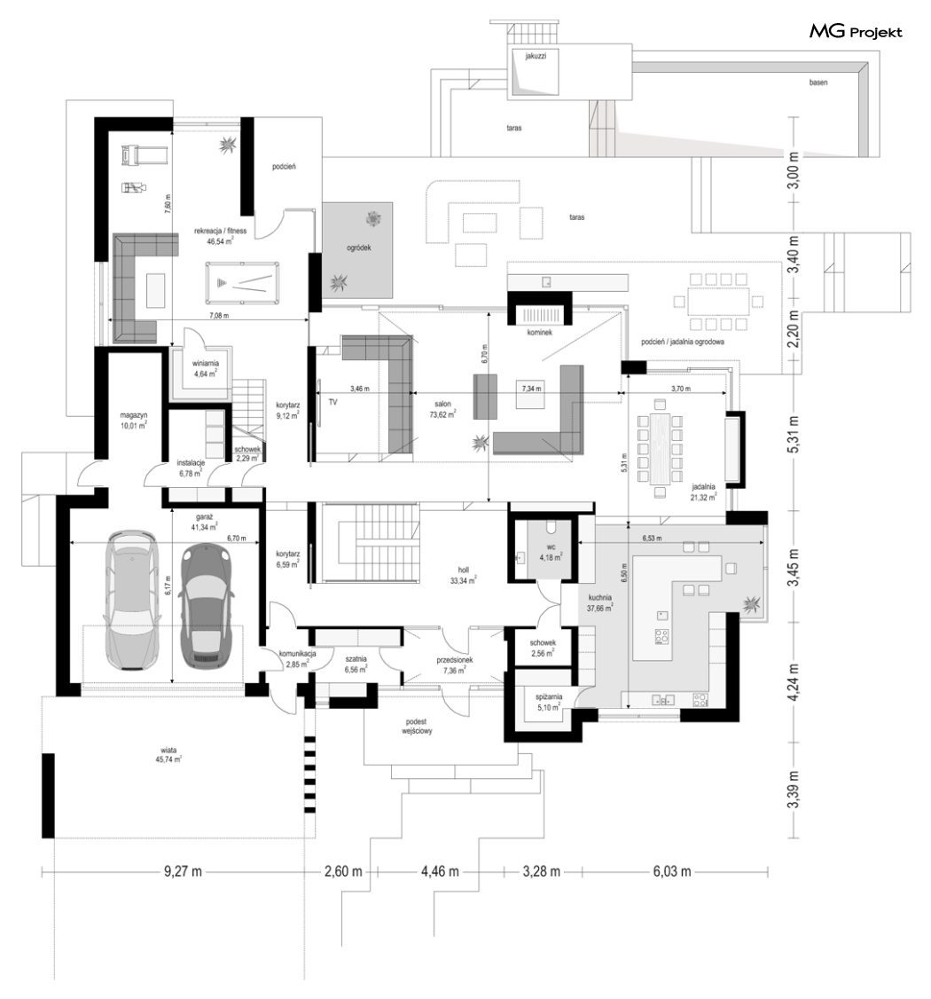
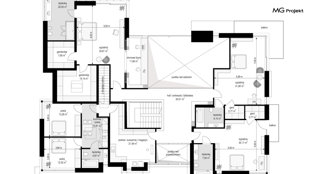
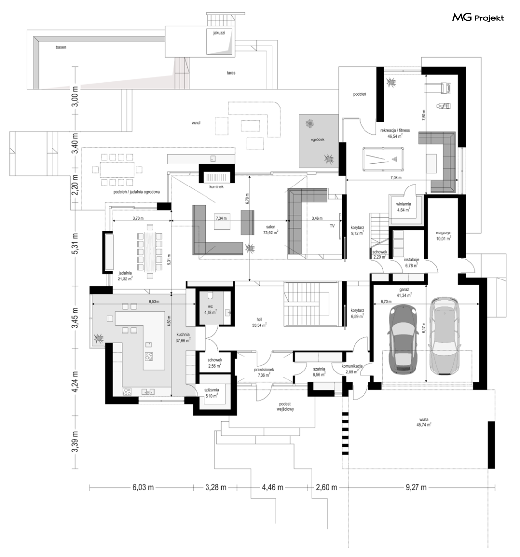
Projekt domu Rezydencja Floryda 2 to kolejny luksusowy dom z serii: Willa i Rezydencja Floryda. Zaprojektowaliśmy superkomfortową willę o nowoczesnej architekturze, z płaskimi dachami i dużymi przeszklonymi ścianami łączącymi reprezentacyjne wnętrze z ogrodem. Ideą przewodnią kształtowania bryły oraz wnętrza budynku jest przenikanie się prostopadłościennych ścian i poziomych płyt z otwarciami i przeszkleniami, tworzące grę świateł i kadrujących się widoków wnętrza i otoczenia. Dzięki takiemu założeniu budynek jest bardziej interesujący, mniej monotonny. Jednocześnie całość architektury zamknięta jest w siatce konsekwentnie powtarzających się detali, nadając całej strukturze odpowiedni rytm i porządek. Rezydencja Floryda 2, choć ma bardzo nowoczesny styl, nie jest przesadnie ekstrawagancki. Architektura budynku może z powodzeniem być dobrym tłem zarówno dla nowoczesnego wnętrzna, jak i bardziej eklektycznego - przełamanego antykami czy aranżacją w stylu glamour. Spokojny i stonowany styl domu z pewnością wytrzyma próbę czasu. Do domu Rezydencja Floryda 2 wchodzimy przez przeszklony dwupiętrowy westybul do holu, nad którym piętro tworzy most – antresolę między dwiema pustkami: salonu i przedsionka, oraz frontową i ogrodową przeszkloną elewacją. Tak ukształtowane wnętrze dzieli budynek na pół dwukondygnacyjnym otwartym wnętrzem dziennym. Z prawej strony na parterze mamy dużą rodzinną kuchnię, oraz jadalnię, a na piętrze sypialnie dziecięce. Z lewej strony rezydencji mamy część gospodarczo-techniczą, oraz rekreacyjno-fitnesową, a na piętrze apartament państwa domu, oraz osobne mieszkanie z oddzielnym kameralnym dostępem - dla obsługi domu, bądź dla gości. Centralny salon willi łączy się z kilkoma innymi wnętrzami na parterze i piętrze, tworząc naprawdę ogromną, swobodną przestrzeń do codziennego życia. Mamy tutaj dwa zestawy mebli wypoczynkowych - przy kominku i przy ściany multimedialnej.Salon łączy się z jadalnią i kuchnią, holem ozdobionym monumentalnymi schodami, opartymi o kamienno – wodną ścianę-wodospad ze zbiornikiem wody u podnóża schodów (ściana wodna i zbiornik są naturalnym klimatyzatorem wnętrza budynku). Salon łączy się również z holem piętra (będący domową biblioteką), oraz z gabinetem - przez imponującą szklaną ścianę. Salon otwiera się również na ogród i zróżnicowane wysokościowo rozbudowane tarasy, a jacuzzi i basenem. Na piętrze apartamenty rodziców i dzieci mają własne łazienki i garderoby. W sypialni master przewidziano garderoby dla niego i dla niej. Rezydencja Floryda 2 to w stu procentach luksusowy dom, spełnienie snu o prawdziwie komfortowym i i wygodnym życiu. Rezydencja Floryda 2 to wizytówka właścicieli potwierdzająca ich wysoki status i dobry smak. Już zazdrościmy i podziwiamy szczęśliwców, którzy mogą sobie pozwolić na budowę tego cacka. Zapraszamy do zapoznania się z pełną ofertą pracowni MG Projekt: Willa Floryda 2, Willa Floryda 3, Willa Floryda 4, Rezydencja Floryda, Willa Floryda.

