Willa rodzinna







Projekt domu Willa Rodzinna to projekt z serii Willi Rodzinnych. Jest to wygodny parterowy dom dla 4-5 osobowej rodziny, z czterema sypialniami.
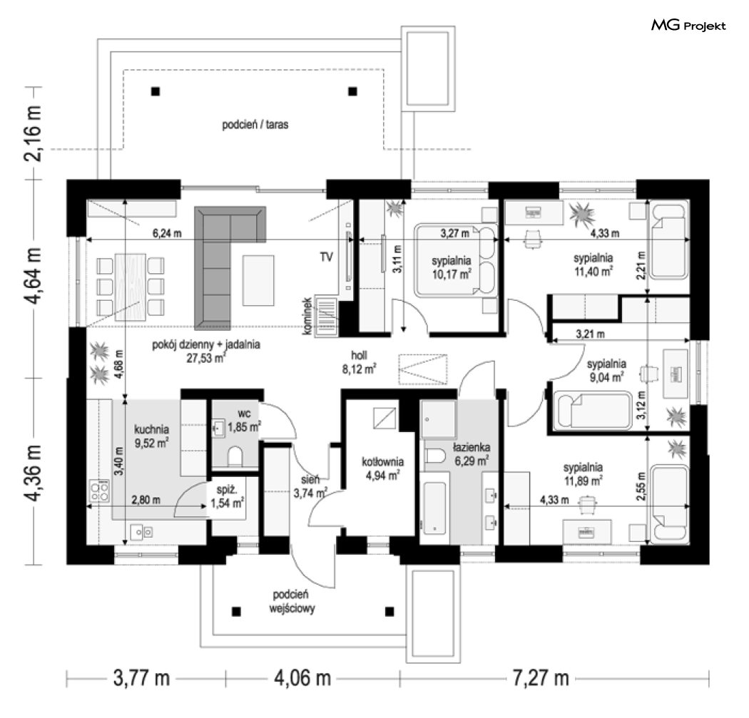
Gotowy projekt domku Willa Rodzinna został zaprojektowany na planie prostokąta, przykryty dwuspadowym dachem i urozmaicony dwoma poprzecznymi zadaszeniami.
Zadaszenie Willi Rodzinnej od frontu to szeroki ganek wejściowy z elegancko rozplanowanymi drzwiami frontowymi i bocznymi naświetlami, rozdzielonymi fragmentami ceglanych ścian. Zadaszenie Willi Rodzinnej od strony ogrodu to oprawa dla szerokich przesuwnych drzwi na taras oraz górnego trójkątnego naświetla pustki nad salonem.
Willa Rodzinna bryła domu
Proporcje bryły, zastosowane materiały i detale dają w efekcie wrażenie solidności, wysokiej jakości architektury i kojarzą się z komfortowym życiem w parterowym domu jednorodzinnym - blisko ogrodu.
Architektura domu Willa Rodzinna jest ponadczasowa, ale niepozbawiona oryginalnych detali, wyróżniających Willę Rodzinną spośród innych domów o podobnym charakterze. Z pewnością na gościach zrobi duże wrażenie zarówno reprezentacyjne wejście Willi Rodzinnej, jak i pustka nad salonem i ogromne przeszklenia otwierające wnętrze pokoju dziennego na ogród.
Willa Rodzinna wnętrze
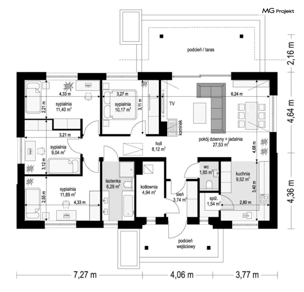
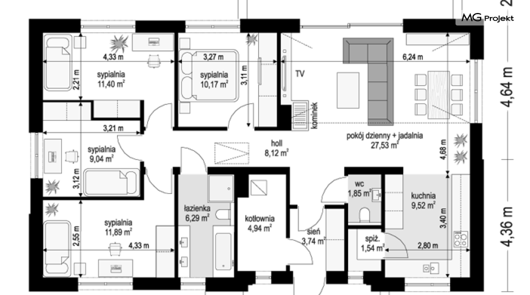
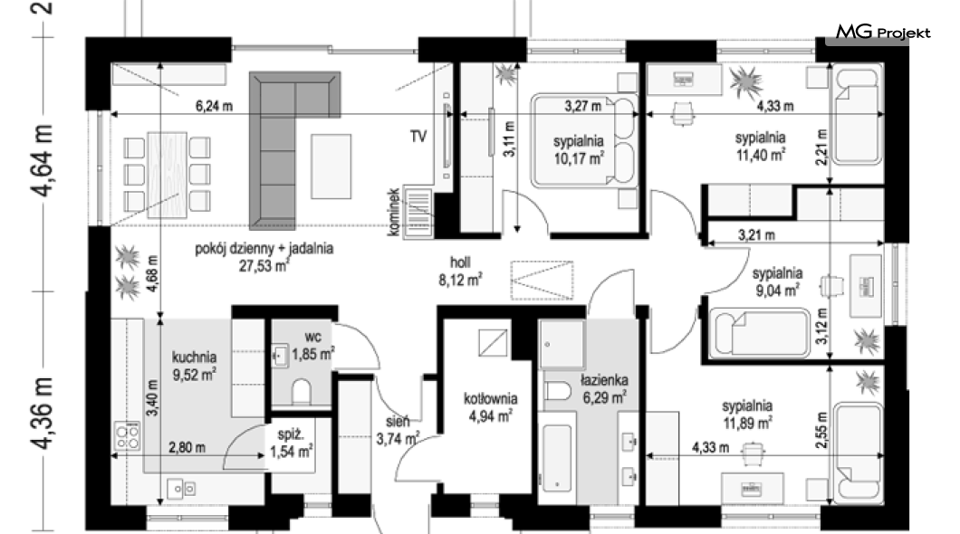
Wnętrze projektu domku Willa Rodzinna podzielono na część dzienną - z salonem, holem i kuchnią, oraz część nocną. W domu Willa Rodzinna przewidziano aż cztery pokoje sypialne – rzadkość w tego rodzaju gotowych projektach. Projekt można oczywiście podzielić inaczej - na przykład na 3 pokoje, lub jeden z nich przeznaczyć na domowe biuro.
Kotłownia w projekcie domku Willa Rodzinna dostępna z przedsionka może być zasilana kotłem gazowym lub pompą ciepła, ale też i kotłem na paliwo stałe – stosownie do wyboru Inwestora. Blisko 40-metrowa przestrzeń dzienna z kuchnią, kącikiem jadalnym i wypoczynkowym ze ścianą telewizyjno-kominkową stanowi centrum domostwa. Otwarty sufit nad salonem Willi Rodzinnej dodaje wrażenie przestrzeni wnętrza i uatrakcyjnia je.
Willa rodzinna to doskonała propozycja dla osób planujących budowę wygodnego i funkcjonalnego parterowego domu, prostego w budowie, oraz taniego i bezproblemowego w późniejszej eksploatacji. Willa Rodzinna to propozycja na projekt domu energooszczędnego, o zwartej bryle, jednocześnie posiadającego swój niepowtarzalny oryginalny styl. Projekt domu Willa Rodzinna można zamówić także w wersji odbicia lustrzanego. Zachęcamy również do zapoznania się z projektym domu Willa Rodzinna 2 autorstwa MGProjekt.
