Willa Eska 3







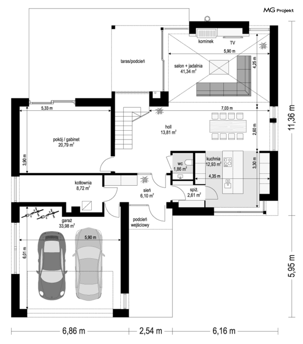
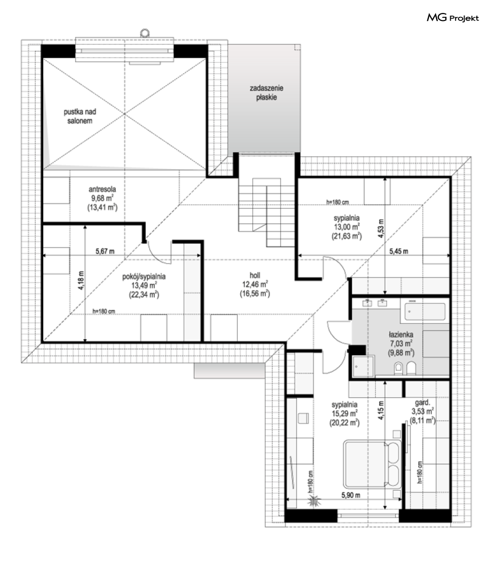
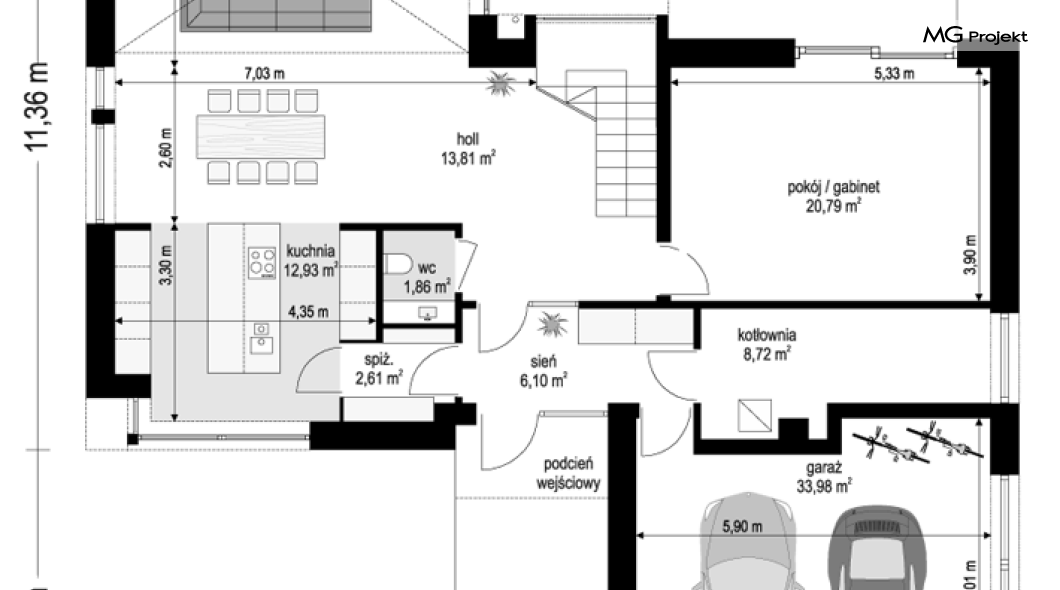
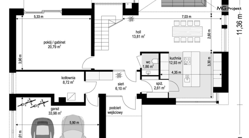
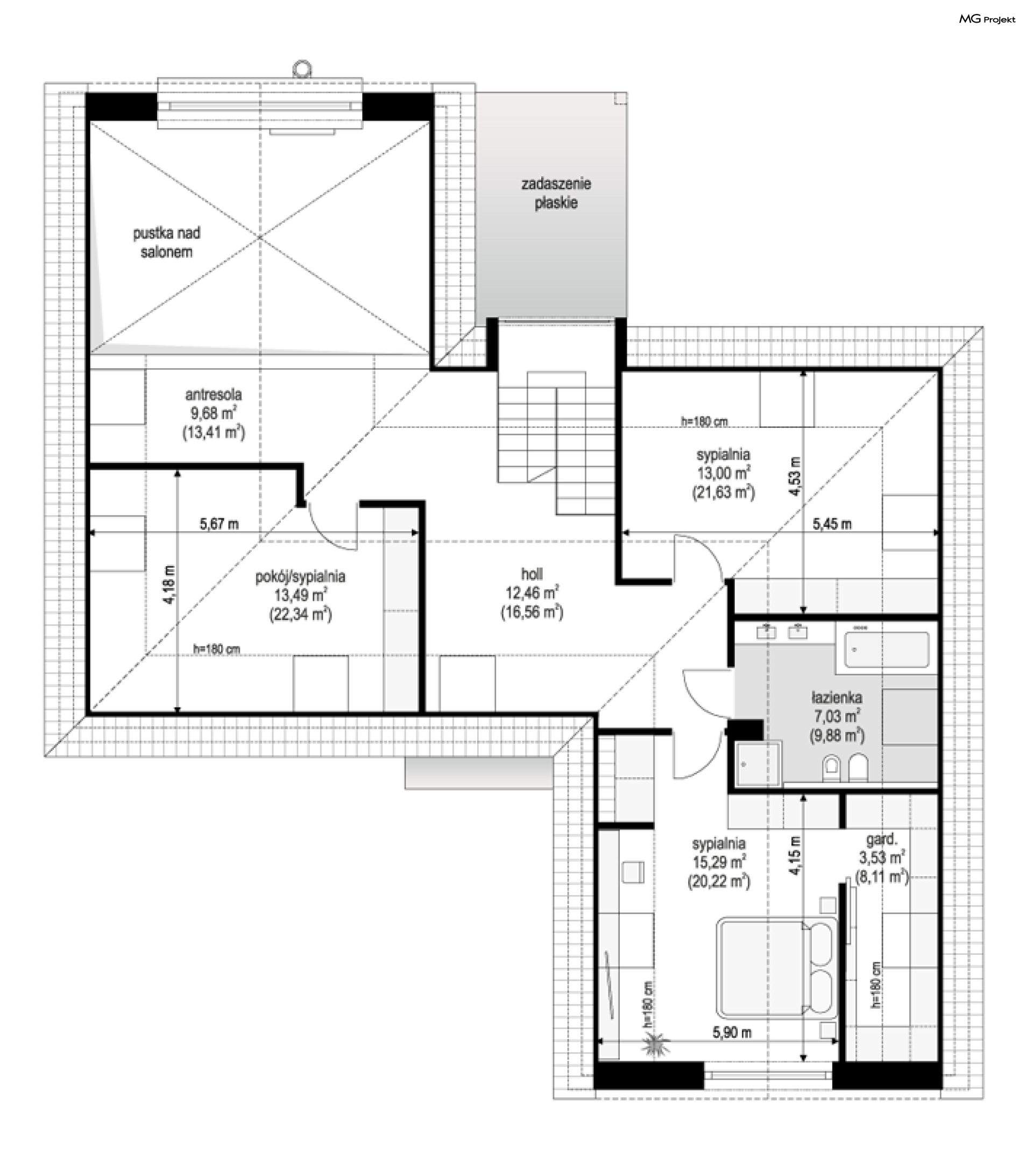
Projekt domu Willa Eska 3 - projekt domu jednorodzinnego z serii projektów o tej samej nazwie. Jest to parterowy domem jednorodzinnym z użytkowym poddaszem, przeznaczonym dla 4-5 osobowej rodziny. Nazwa projektu nawiązuje do kształtu bryły przypominającej literę „S”, tworzącej korzystny funkcjonalnie i wizualnie plan - z dziedzińcem frontowym i z tylnym ogrodowym patio.Ideą projektu było połączenie nowoczesnej architektury, detali i funkcji, z tradycyjnym kształtem budynku z dwuspadowym dachem. Dobrze dobrane proporcje, podziały miedzy przestrzeniami ścian i okien tworzą harmonijną sylwetkę budynku. Dodatkowo ceglana elewacja domu nasuwa skojarzenia z eleganckimi estetycznymi willami północno-zachodniej Europy. Front budynku ozdabia szerokie wejście z naświetlem, zaakcentowane wnęką i daszkiem. Elewację frontową urozmaica narożne okno kuchenne, oraz piękne wysokie okno na poddaszu z sypialni. Od strony ogrodu atrakcyjności elewacji dodają okna salonu, oraz prostopadłościenny przeszklony wykusz klatki schodowej wykończony blachą na rąbek. Udane proporcje domu i gustownie dobrane materiały wykończeniowe, dają spójny atrakcyjny estetycznie efekt. Dodatkową ozdobą są oryginalne gzymsowania okapów dachów.Wnętrze zaprojektowano w podziale na części : dzienną i gospodarczą na parterze, oraz sypialną na poddaszu. Wchodząc do domu przez przeszklony przedsionek dostajemy się do reprezentacyjnego holu z pięknymi schodami z oknem na ogród. Z holu przechodzimy do części dziennej - z salonem, jadalnią i kuchnią. Nad salonem zaprojektowano otwarcie przestrzenne z antresolą. Komfortowa kuchnia z wyspą stanowi przedłużenie pokoju dziennego. Dzięki poprzecznemu ciągowi komunikacyjnemu uzyskano łatwe i praktyczne przejście z garażu, przez przedsionek i spiżarnię do kuchni. Na parterze wydzielono dodatkowy duży pokój – domowe biuro lub dodatkową sypialnię z dostępem do tarasu ogrodowego. Pozostałe pomieszczenia na parterze to dwustanowiskowy garaż i kotłownia. Na poddaszu zaprojektowano dwie sypialnie dziecięce z osobną łazienką, oraz apartament państwa domu z łazienką i garderobą. Spory hol może pełnić dodatkową funkcję bawialni. Na antresoli nad salonem można postawić domową bibliotekę i wygodną kanapę, albo biurko do pracy. Willa Eska to oryginalny, komfortowy dom jednorodzinny o nowoczesnym, loftowym stylu, z wieloma cieszącymi oko detalami architektonicznymi. Dom różniący się od setek sztampowo powtarzalnych budynków. Budynek uwzględnia nowoczesne energooszczędne rozwiązania materiałowe instalacyjne - będzie tani w eksploatacji, a w samej budowie nie powinien być trudny ani drogi. Stanowi doskonałą propozycję do osób ceniących ciekawą architekturę i nietuzinkowe rozwiązania. Zapraszamy !
