Ekonomiczny







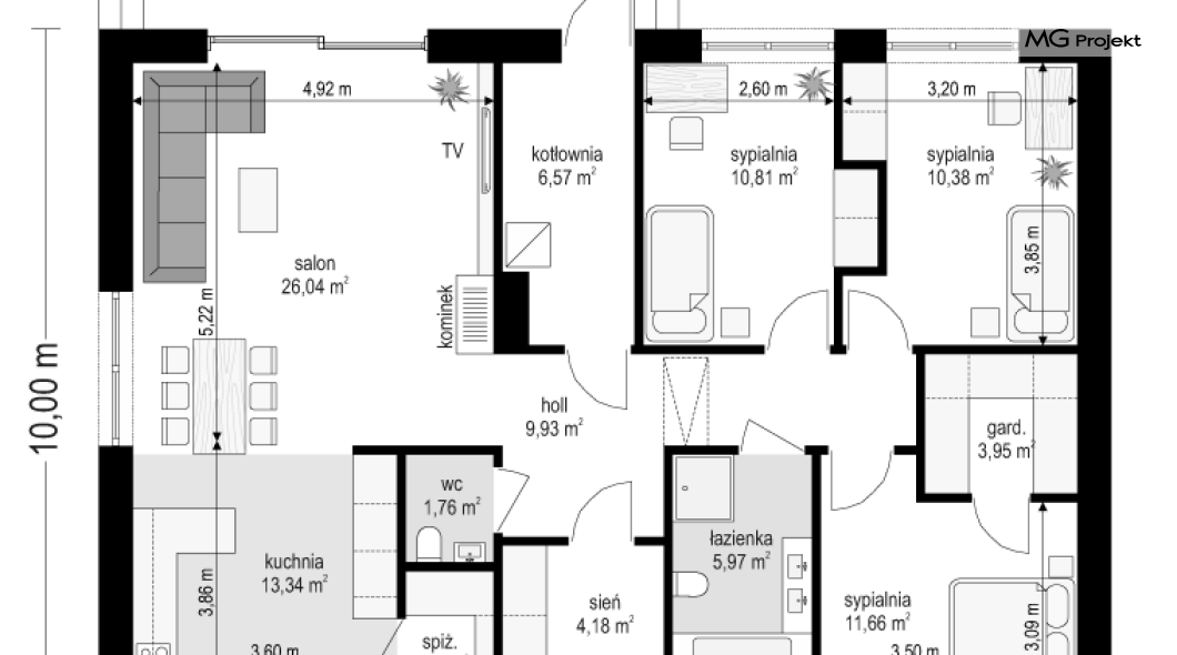
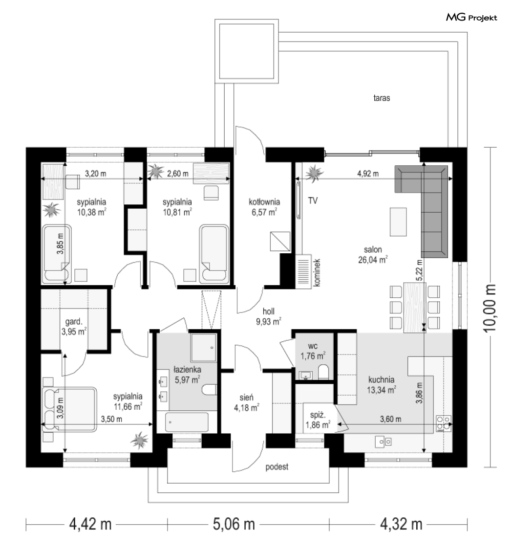
Projekt domu Ekonomiczny jest to projekt niedużego parterowego domu jednorodzinnego dla 3-4 osób. Jest to jeden z projektów z serii domków o tej samej nazwie. Ekonomiczny jest propozycją niewielkiego parterowego budynku, zaprojektowanego na prostokątnym planie, przykrytego dwuspadowym dachem, kryjącym strych do dowolnego wykorzystania. Budynek przy niewielkich wymiarach zewnętrznych rzutu zawiera w sobie bardzo wygodne do mieszkania wnętrze, ze wszystkimi potrzebnymi pomieszczeniami. Mamy tutaj cześć dzienną połączonego salonu i kuchni z półwyspem ( i własną spiżarnią ), oraz po drugiej stronie domu trzy sypialnie, w tym sypialnię master z osobną garderobą, oraz wygodną łazienkę. Dwie części domu rozdzielone są centralnie usytuowanym pomieszczeniem gospodarczym kotłowni z wyjściem na zewnątrz, ze wspólnym zespołem kominowym z kominkiem salonu. Wejście do domu zaakcentowano zadaszonym podcieniem, z reprezentacyjnym szerokim podestem. Elewacja frontowa łączy w sobie tradycyjną formę parterówki z dwuspadowym dachem i symetrycznym podziałem okien, z nowoczesnymi materiałami, z dużymi przeszkleniami, oraz z ciekawą kolorystyką i detalami wykończeniowymi. Patrząc na dom, widzimy porządek, harmonię i wrażenie solidności - i taka była idea projektantów : dom miał być architektonicznie prosty, ale miał mieć w sobie „coś” przyciągające uwagę. Od strony ogrodowej najważniejszymi elementami są : duże okno przesuwne z salonu, otwierające wnętrze na ogród, oraz taras będący przedłużeniem pokoju dziennego. Projektując „Ekonomicznego” przyświecała nam idea jak najbardziej praktycznego podejścia do formy budynku, jego układu funkcjonalnego, oraz rozwiązań materiałowych i technicznych. Staraliśmy się zaprojektować dom maksymalnie logicznie. Konstrukcja budynku jest prosta i niedroga w budowie. Wszystkie prace murarskie i betonowe kończą się na wysokości wieńców nad ścianami parteru. Wyżej mamy układ drewnianych wiązarów dachowych, które są jednocześnie konstrukcją stropu nad parterem jak i więźby dachowej. Taki sposób budowania znacznie upraszcza inwestycję, przyspiesza ją i - co najważniejsze - obniża koszty. W projekcie zastosowano bardzo dobre izolacje i nowoczesne instalacje, dzięki czemu budynek jest energooszczędny i będzie tani w późniejszej eksploatacji. Ekonomiczny to propozycja projektu dla osób podchodzących do budowy zadaniowo, planujących szybką i bezbolesną budowę, która nie zabierze Inwestorowi połowy życia. Z „Ekonomicznym” z pewnością się to uda. Zapraszamy !
