Hanka 3






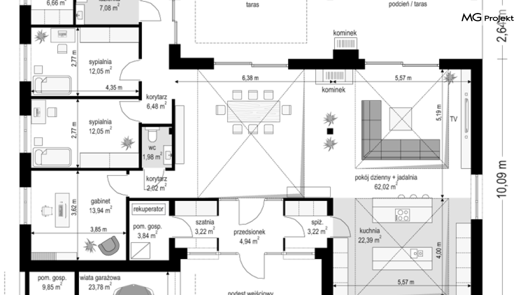
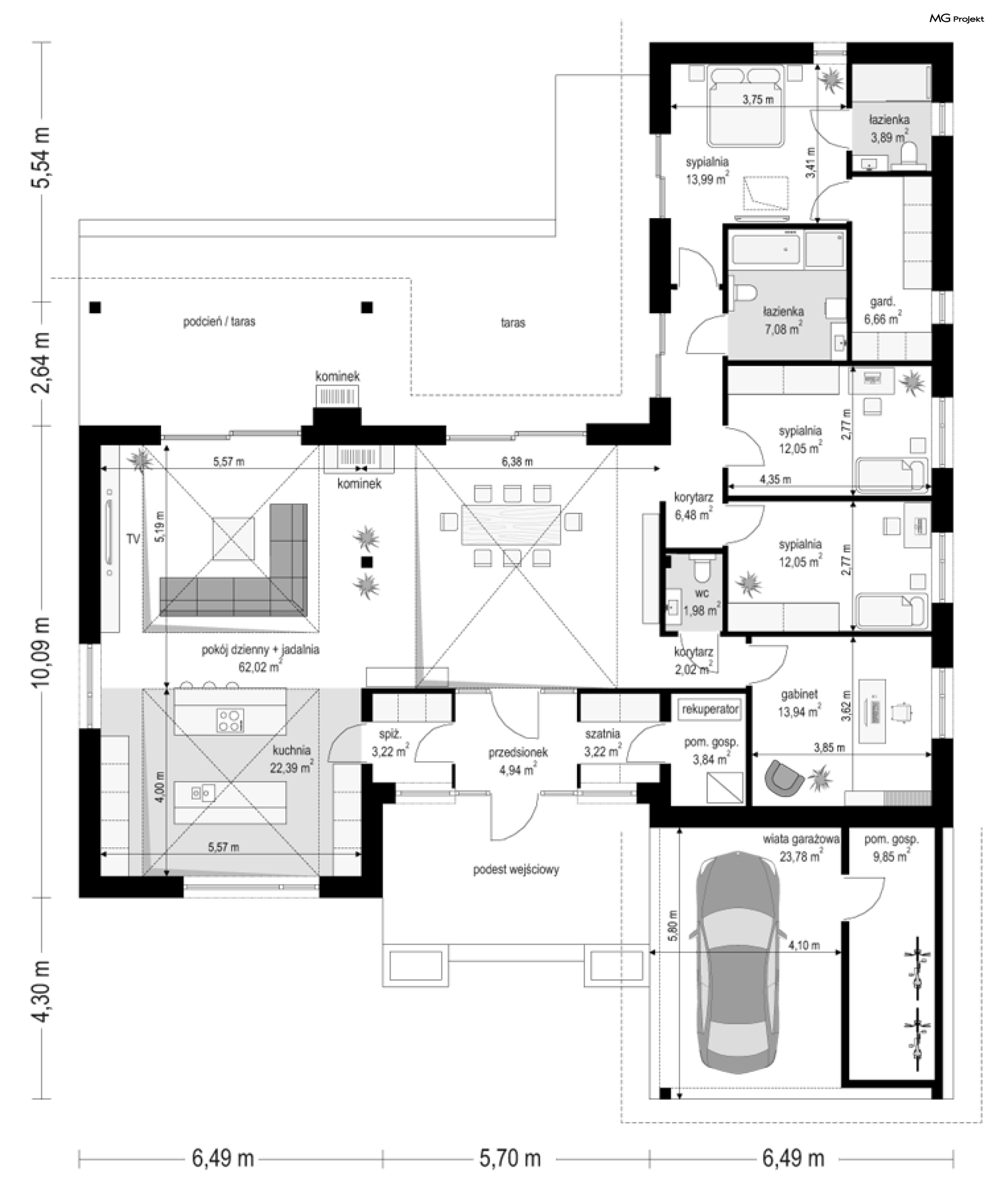
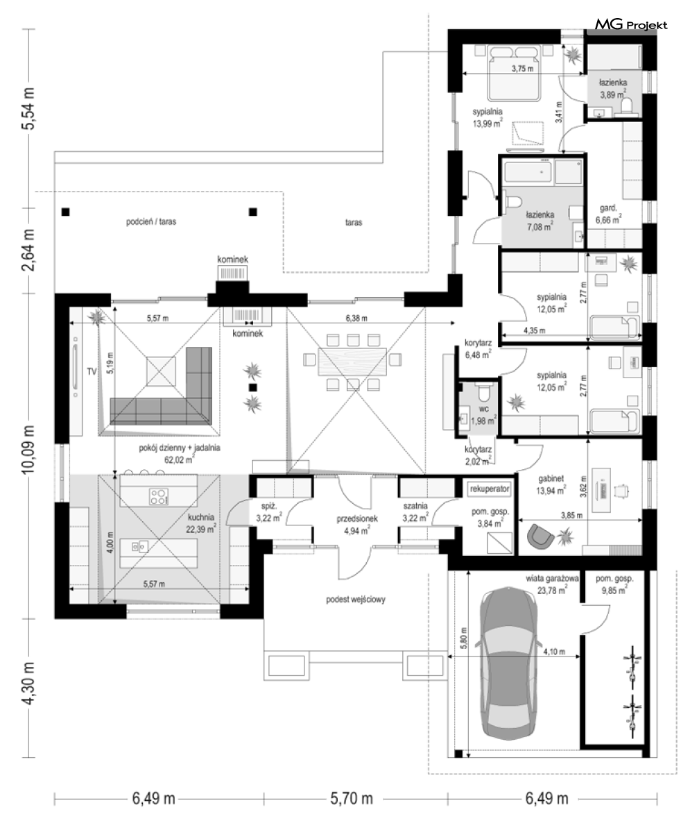
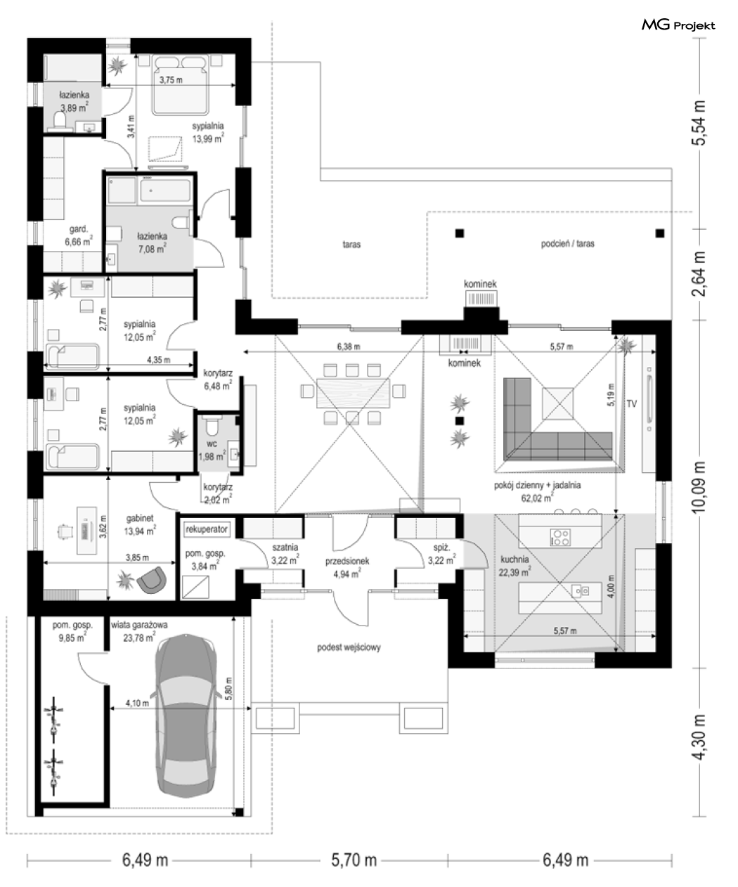
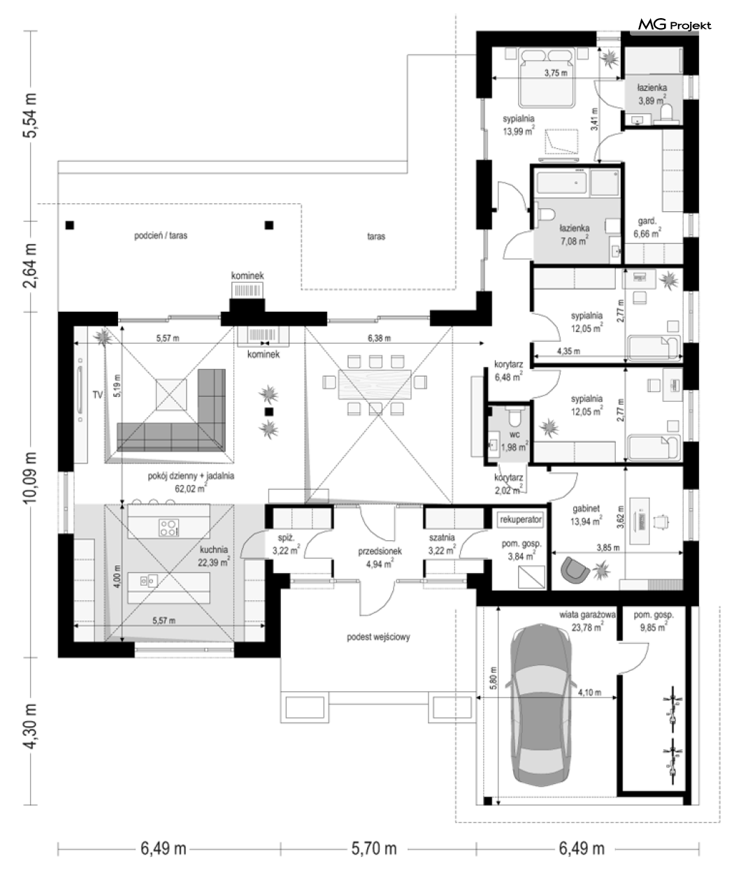
Projekt domu Hanka 3 jest to projekt bardzo ciekawego parterowego domu jednorodzinnego z serii o nazwie ”Hanka”. Dom zaprojektowany został na planie litery „H”, jest przekryty trzema przenikającymi się dachami dwuspadowymi, z programem użytkowym znajdującym się na jednej kondygnacji parteru. Wszystkie elementy domu zostały zaprojektowane tak, aby zapewnić właścicielom maksymalny komfort i wygodę mieszkania - zarówno forma budynku, układ funkcjonalny, jak i rozmieszczenie pomieszczeń. Charakter architektury domu łączy w sobie związki z przyrodą, poszanowanie dla natury z nowoczesną formą i detalami. Dom zaprojektowano blisko ziemi, blisko ogrodu. Wnętrza ściśle połączono z otaczającymi budynek tarasami, podcieniami, wiatami, podestami, rozszerzając wnętrze na działkę Inwestorów. Do domu wchodzimy przez reprezentacyjne drzwi wejściowe z naświetlami bocznymi. Po bokach elewacji frontowej zaprojektowano ogromne okno kuchenne, oraz po przeciwnej stronie wygodną wiatę garażową. Od strony ogrodu głównym elementem kształtującym sylwetkę jest duże zadaszenie tarasu wsparte na słupach, z szerokimi przeszkleniami salonu. Elewacje zdobią kamienne oraz drewniane okładzinę ściany i duże okna.Dachy uformowane w kształt litery „H” urozmaicają bryłę domu i dodają jej uroku. Odpowiednio dobrane detale i materiały wykończeniowe pozwoliły stworzyć w efekcie przyjemną architekturę podmiejskiej komfortowej willi. Wnętrze podzielono na dwie części : jednoprzestrzenną część dzienną, z salonem, jadalnią i kuchnią, oraz cześć z pokojami sypialnymi. Do domu wchodzimy przez obszerny przedsionek wprost do wielkiego holu, który pełni również funkcję pokoju stołowego - jadalni i otwiera się szerokim oknem na taras i otaczający dom ogród. Pomieszczenie ma otwarty do dachu sufit, z dodatkowym doświetleniem oknami połaciowymi. Dalej na lewo przechodzimy do salonu ze ścianą telewizyjną i ścianą z kominkiem, z otwarciem przestrzennym sufitu, oraz szerokim przeszklonym wyjściem na na zadaszony taras. Dopełnieniem wnętrza jest luksusowa piękna kuchnia z aż dwiema wyspami, z dużą ilością blatów roboczych i pełnej zabudowy. Do kuchni możemy dostać się też przez spiżarnię do przedsionka i wygodnego car-portu - wiaty garażowej. Wiata może być pojedyncza z dodatkowym pomieszczeniem gospodarczym, lub podwójna - wedle decyzji Klienta. W części nocnej domu mamy różny układ pokoi w różnych wersjach wariantowych projektu „Hanka”. W Hance 3 mamy : trzy sypialnie dziecięce z wygodną łazienką, oraz apartament rodziców z dużą garderobą, oraz łazienką. Wnętrze jest bardzo komfortowe i zapewni optymalne warunki mieszkania nawet najbardziej wymagającemu Inwestorowi. Dom mimo rozbudowanej bryły ma bardzo prostą konstrukcję, będzie dość łatwy w budowie, a dzięki zastosowanym świetnym izolacjom i nowoczesnym instalacjom budynek będzie energooszczędny i tani w eksploatacji. „Hanka 3” to dom z charakterem, dla Inwestorów szukających oryginalnych nietuzinkowych rozwiązań - marzących o mieszkaniu na parterze blisko ogrodu. Zapraszamy !

