Sielanka 2






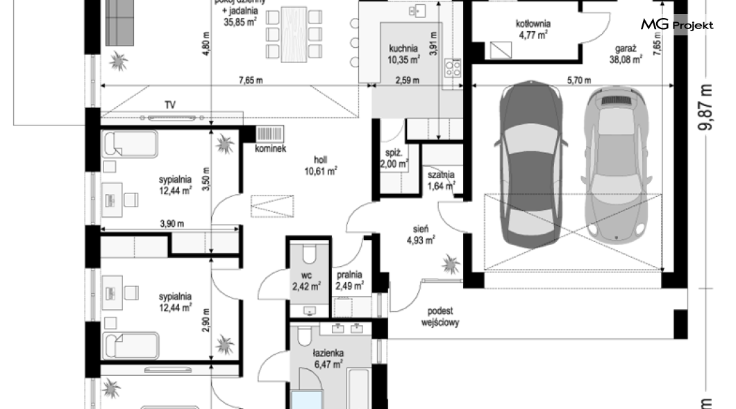
Projekt domu Sielanka 2 jest kolejną wersją projektu z popularnej serii „Sielanek” z MG Projekt. Jest to projekt parterowego budynku, z bryłą w kształcie litery T, przykrytą dwuspadowymi dachami, z cofniętym względem frontu domu dwustanowiskowym garażem -dzięki czemu uzyskujemy duży dziedziniec frontowy, oraz z elewacją ogrodową z przestronnym zadaszonym tarasem będącym przesłużeniem salonu. Budynek został zaprojektowany dla 3-5 osobowej rodziny, która chce wygodnie mieszkać na parterze, cieszyć się kontaktem z ogrodem i nie biegać co chwila po schodach. Dom nadaje się na działki z ogrodem z tyłu, lub od strony elewacji bocznej - z boku. Architektura budynku jest nowoczesna i prosta, przypominająca skandynawskie czy północnoeuropejskie bungalowy. Front domu urozmaicony jest narożnym oknem pokoju i przede wszystkim reprezentacyjnymi drzwiami wejściowymi z naświetlem bocznym pod zadaszeniem podestu wejściowego. Zastosowana ascetyczna kolorystyka jest bardzo nowoczesna i oryginalna. Świetne dopasowanie białych ścian, ram okien, oraz szarości podmurówki i pokrycia dachowego z blachy na rąbek stojący. Wszystkie te elementy dają intersujący i wyróżniający dom efekt. Od strony ogrodu - od elewacji tylnej i bocznej główną rolę odgrywają piękne przeszklenia pokoi, zadaszenie tarasu, oraz same tarasy w kształcie litery L. Dom ma minimalistyczny styl, ale to właśnie go wyróżnia i czyni wyjątkowym. Wnętrze budynku podzielono na trzy strefy : w części środkowej rzutu mamy ogólną przestrzeń dzienną do życia, po lewej stronie część garażowo-gospodarczą, a z prawej strony - pokoje sypialne z zapleczem. Do domu wchodzimy z zadaszonego podestu wejściowego szerokimi doświetlonymi drzwiami do obszernego przedsionka z szatnią i następnie do holu połączonego przestrzennie z salonem i kuchnią. Kuchnia w tym projekcie jest otwarta na salon, oraz na ogród. Salon z pustką nad sufitem aż do kalenicy dachu jest bardzo ładnym pomieszczeniem o dużej kubaturze. Z holu korytarzem przechodzimy do części prywatnej, gdzie znajdziemy 4 pokoje, wśród nich sypialnię master z podwójną garderobą. Całość tej części dopełnia duża łazienka, wc i pomieszczenie na pralkę, suszarkę i kosze do prania. W części gospodarczej znajdziemy duży dwustanowiskowy garaż, z magazynem, oraz kotłownię. Nad przeważającą częścią parteru zaprojektowano przestrzeń strychową - magazyn domowych rzeczy „nadprogramowych”, dostępną ze schodków drabinkowych z holu. Konstrukcyjne dom jest zaprojektowany bardzo prosto. Prace murarskie i betoniarskie kończą się na wieńcach nad ścianami parteru. Następnie pozostała konstrukcja to układ drewnianych wiązarów prefabrykowanych, tworzących strop nad parterem, oraz więźbę dachową. Takie rozwiązanie znakomicie upraszcza budowę, przyspiesza ją - i przede wszystkim obniża koszty. Dom zaprojektowano jako energooszczędny, z dobrymi izolacjami i nowoczesnymi instalacjami. Budynek jest łatwy i szybki w budowie i będzie niedrogi w późniejszej eksploatacji. To doskonała propozycja dla Inwestorów pragnących parterowego, wygodnego i ekonomicznego domu. Zapraszamy do zapoznania się ze wszystkimi projektami z serii Sielanka: https://www.mgprojekt.com.pl/sielanka, https://www.mgprojekt.com.pl/sielanka-2, https://www.mgprojekt.com.pl/sielanka-2-b, https://www.mgprojekt.com.pl/sielanka-3, https://www.mgprojekt.com.pl/sielanka-4.
