Dom na Praktycznej 3






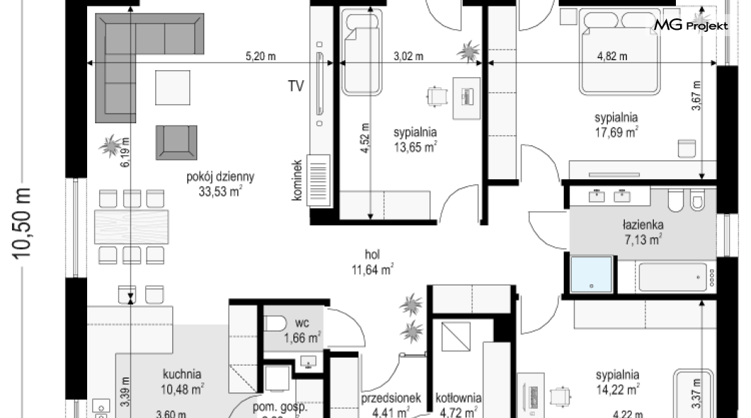
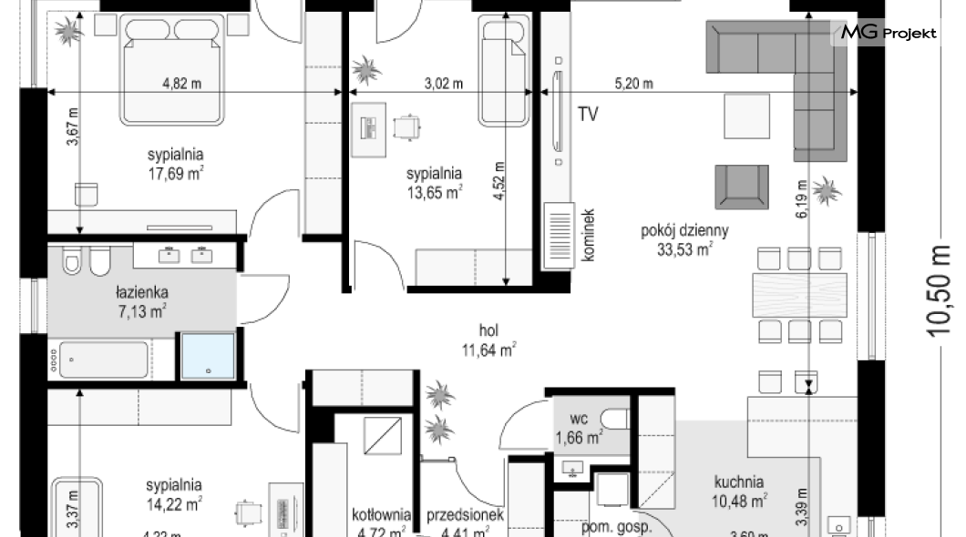
Projekt domu Dom na Praktycznej 3 to projekt parterowego domu jednorodzinnego z serii „Praktycznych”. Projekt wyłamujący się z modnej ostatnio czarno-biało-antracytowej kolorystyki i stylistyki. Zamiast tego mamy domek o ładnej, miłej, przyjemnej dla oka architekturze, z czerwonym dachem i dużą ilością drewnianych wstawek i elementów, tworzących razem pełną wdzięku i ponadczasowej elegancji architekturę. Budynek zaprojektowany jest na planie prostokąta, zwieńczony symetrycznym czterospadowym dachem przykrytym czerwoną dachówką. Nowoczesna forma architektury, połączona z tradycyjną kolorystyką materiałów tworzą udane połączenie. Patrzymy na ten dom i odczuwamy radość i poczucie spełnienia - to realizacja marzenia o własnej przystani, o własnym miejscu na ziemi. Front domu ozdobiony jest szerokimi drzwiami z naświetlem i designeskim zadaszeniem podestu wejściowego. Od strony elewacji ogrodowej główną rolę gra piękne okno salonu otwierające wnętrze na taras, oraz zadaszenie w postaci pergoli ( lub tarasoli ). Wnętrze domu zaprojektowano z zachowaniem podziału na część dzienną i nocną. Do centralnie usytuowanego holu dostajemy się przez duży przedsionek, z którego przechodzimy do części dziennej z salonem i kuchnią, oraz części z sypialniami domowników.
Salon mieści w sobie kącik wypoczynkowy z siedziskami i ścianą kominkowo – telewizyjną, jadalnię z wygodnym stołem i pięknym oknem do podłogi i połączony jest z kuchnią z półwyspem. Część prywatna domowników to trzy wygodne sypialnie z obszernymi zabudowanymi szafami, oraz duża łazienka. Z sypialni rodziców możemy wyjść dodatkowymi drzwiami balkonowymi na taras – na poranną kawkę. Obok przedsionka znajduje się pomieszczenie gospodarcze kotłowni. Całość wnętrza budynku zaprojektowano na jednym poziomie parteru, ale powyżej właściciele mają dodatkowo dostęp do przestrzeni strychowej - domowego magazynu. Konstrukcja domu jest prosta. Rzut parteru wyznaczają cztery ściany zewnętrzne, a całość przykryta jest konstrukcją dachową z wiązarów prefabrykowanych - prosto i efektywnie. Budynek jest zaprojektowany jako energooszczędny - dzięki bardzo dobrym ociepleniom i nowoczesnym instalacjom, koszty utrzymania domu będą minimalne. „Dom na Praktycznej 3 ” to świetna propozycja dla Inwestorów planujących budowę uroczego, niedużego domu jednorodzinnego, który będzie prosty w budowie i niedrogi w późniejszym utrzymaniu. Zapraszamy!
-
Projekt szamba szczelnego0 zł399 zł
-
Charakterystyka energetyczna0 zł200 zł
-
Pakiet energooszczędny0 zł150 zł
-
Dziennik budowy0 zł60 zł
-
Tablica budowy0 zł120 zł
-
Wersja elektroniczna projektu550 zł
-
Pakiet kosztorys inwestorski550 zł
-
Pakiet ogrzewanie podłogowe470 zł
-
Powietrzna pompa ciepła470 zł
-
Pakiet wentylacja mechaniczna i kominek DGP470 zł
-
Dodatkowy egzemplarz projektu500 zł
-
Pakiet kotłownia na paliwo stałe470 zł
-
Pakiet instalacja fotowoltaiczna470 zł
-
Pakiet klimatyzacja w domu470 zł
-
Pakiet gruntowa pompa ciepła470 zł
-
Pakiet odkurzacz centralny470 zł
-
Pakiet płaszcz wodny470 zł
-
Pakiet kominek DGP399 zł
-
Projekty altan i grillów ogrodowych650 zł
-
Pakiet instalacja solarna470 zł

opieką konsultacyjną w trakcie budowy domu