Dom na Praktycznej 3 B







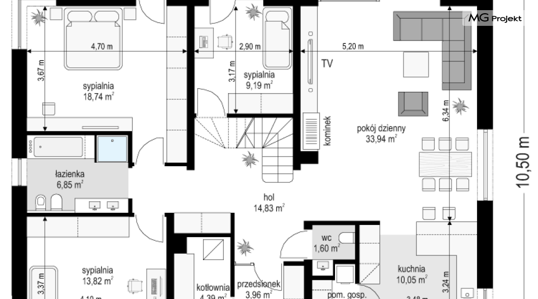
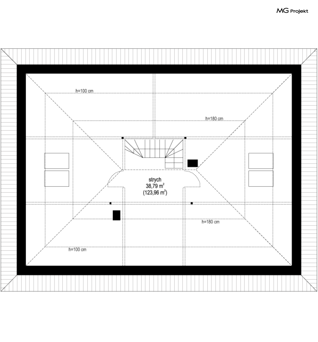
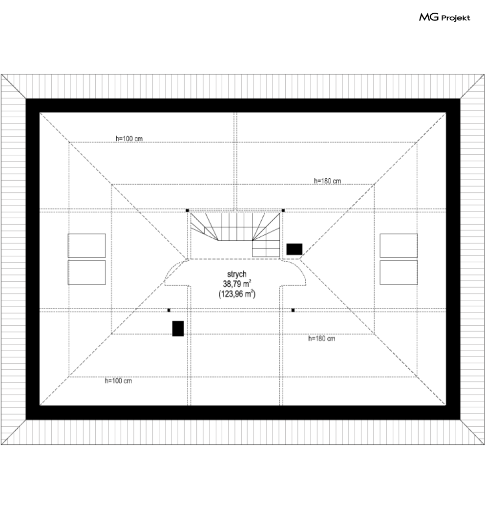
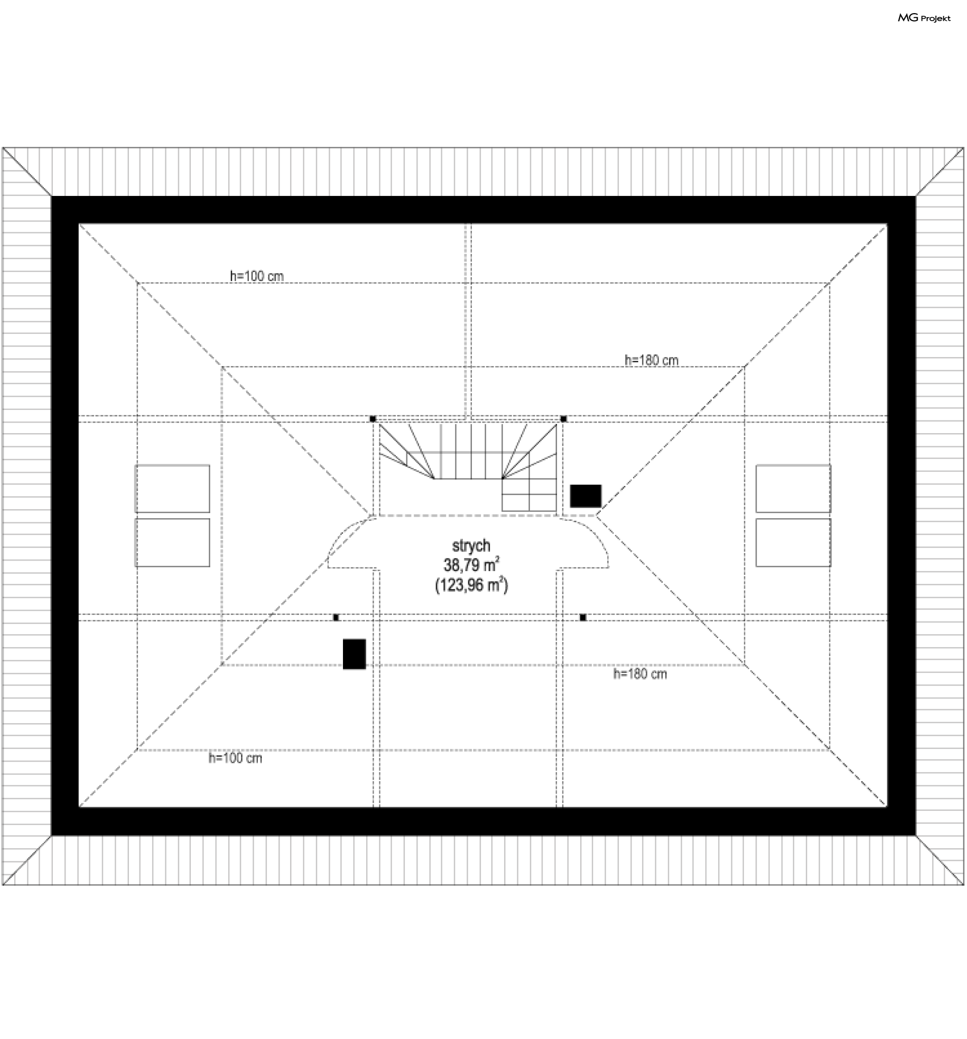
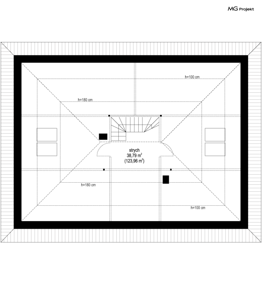
Projekt domu Dom na Praktycznej 3 B to projekt z serii „Dom na Praktycznej ”. Jest to projekt budynku parterowego, z górną przestrzenią do dowolnego zaaranżowania na pełne poddasze użytkowe, lub strych. Dom zaprojektowano ze stropem żelbetowym monolitycznym nad parterem, dzięki czemu uzyskujemy pełnowartościową górną kondygnację. Bryłę budynku zaprojektowano na prostokątnym rzucie przykrytym czterospadowym dachem z nowoczesną płaską dachówką w kolorze grafitowym. Architektura domu jest prosta i elegancka. Elewację frontową zdobi reprezentacyjne wejście, z drzwiami z naświetlem i oryginalnym zadaszeniem. Od strony ogrodu dom urozmaica piękne okno balkonowe salonu i zadaszony pergolą taras. Wnętrze domu zaprojektowano z zachowaniem podziału na część dzienną i nocną. Do centralnie usytuowanego holu ze schodami na poddasze dostajemy się przez duży przedsionek. Z holu przechodzimy do części dziennej - z salonem i kuchnią, oraz do pokoi sypialnych domowników. W salonie wydzielono jadalnię, oraz kącik wypoczynkowy przy oknie otwierającym wnętrze na taras i przy ścianie telewizyjno- kominkowej. Otwarta na wnętrze dzienne kuchnia, oddzielono półwyspem z barkiem. Kuchnia posiada całą ścianę w pełnej zabudowie i spiżarnię. Z przedsionka z kolei przechodzimy dodatkowo do pomieszczenia gospodarczego kotłowni. Pozostałe pokoje na parterze to sypialnia master, dodatkowa druga sypialnia, łazienka i jeszcze jeden pokój, mogący pełnić rolę sypialni lub gabinetu-pokoju do pracy. Na poddaszu bez żadnego problemu uzyskamy dodatkowe dwa duże pokoje z łazienką, a konstrukcja ramowa podpierająca więźbę dachu pozwoli zagospodarować poddasze bez słupków konstrukcyjnych w środku pomieszczeń. Konstrukcja domu jest prosta, choć droższa od pozostałych wariantów „Domów na Praktycznej” - z uwagi na żelbetowy strop monolityczny. Budynek jest zaprojektowany jako energooszczędny - dzięki bardzo dobrym ociepleniom i nowoczesnym instalacjom, koszty utrzymania domu będą minimalne. „Dom na Praktycznej 3 B” to bardzo dobra propozycja dla Inwestorów planujących budowę sensownego, niedużego domu jednorodzinnego, niedrogiego w utrzymaniu, który będzie rósł wraz z rodziną i domownikami i który będzie można dowolnie aranżować i zmieniać korzystając z dodatkowej przestrzeni nad parterem. Zapraszamy!
