Dom na Słonecznej 2







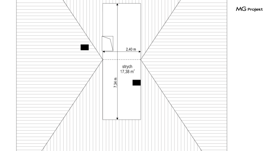
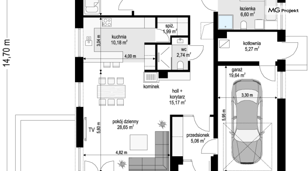
Projekt domu Dom na Słonecznej 2 jest wersją wariantową projektu „Dom na Słonecznej”, o bardziej konserwatywnej architekturze, z dachem przykrytym dachówką ceramiczną i z antracytowymi ramami stolarki okiennej. Budynek zaprojektowano jako parterowy, z przeznaczeniem dla 4-osobowej rodziny. Bryła domu została zaprojektowana na planie prostokąta, przykryta czterospadowym symetrycznym dachem, krytym dachówką. Dom będzie doskonale pasował na działkę z niekorzystnym ustawieniem względem stron świata i nasłonecznienia - z wjazdem od południa lub od wschodu. Dom zaprojektowano w taki sposób aby ogród znajdował się z boku domu lub od frontu. Takich projektów jest zdecydowanie za mało - a przecież połowa dostępnych działek w Polsce ma wjazd od niekorzystnej strony, a to nie powód żeby siedzieć potem całe życie w ciemnym salonie źle dobranego projektu. Tutaj cześć dzienna jest bardzo dobrze doświetlona dużymi przeszkleniami w narożniku budynku. Architektura domu jest skromna, powściągliwa, a zarazem elegancka. Ładne duże okna i kontrastujące fragmenty ścian współgrają z bielą elewacji. Wejście do domu zaakcentowane zostało reprezentacyjnymi drzwiami z naświetlem bocznym, umieszczonymi we wnęce – podcieniu wejściowym. Do wnętrza wchodzimy wygodnym przedsionkiem, wprost do centralnego holu i do przestrzeni dziennej, na którą składa się część wypoczynkowa salonu, jadalnia i kuchnia z półwyspem-barkiem do szybkich posiłków. Część nocna domu dostępna z korytarza, składa się z sypialni master z garderobami, dwóch sypialni dziecięcych i wygodnej łazienki. Całość wnętrza zamyka część gospodarcza z garażem i kotłownią. Dom stosownie do swojej skali i powierzchni jest bardzo funkcjonalny i komfortowy. Dodatkowa przestrzeń jaką można dowolnie wykorzystać znajduje się na strychu nad parterem - można ją zagospodarować jako domowy magazyn-graciernię, albo przestrzeń użytkową - wedle pomysłu Inwestora. Dom na Słonecznej 2 ma prostą konstrukcję, jest łatwy i szybki w budowie. Budynek jest energooszczędny - ma bardzo dobre izolacje i zastosowane nowoczesne instalacje. Koszty utrzymania budynku będą niewygórowane. Dom na Słonecznej 2 to doskonała propozycja dla Inwestorów planujących budowę normalnego domu o prostej i ponadczasowej architekturze, o sensownej wielkości i skali, dzięki czemu właściciele będą mogli się cieszyć swoim domem nie będąc jego niewolnikami. Zapraszamy też do zapoznania się z projektem Dom na Słonecznej.
