Dom przy Parkowej 2
Dodaj do porównania
Usuń z porównania
Dodaj do ulubionych
Usuń z ulubionych
Pow. użytkowa:
175m2
Pow. zabudowy:
291.43m2
Koszt budowy:
929000zł
Liczba pokoi:
5
Liczba łazienek:
2
Garaż:
2
Rzuty

Lustrzane odbicie
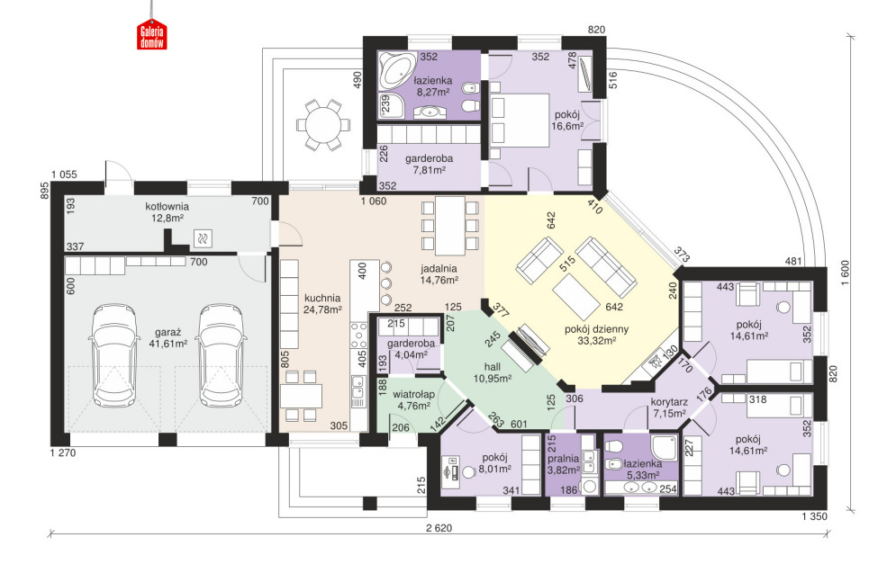
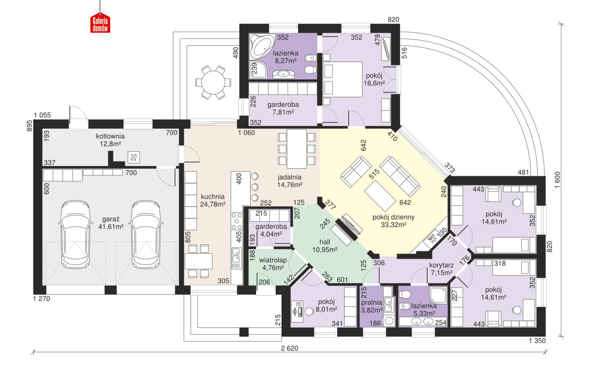
Rzut parteru
233.23 m2
wiatrołap
4.76 m2
hall
10.95 m2
garderoba
4.04 m2
jadalnia
14.76 m2
kuchnia
24.78 m2
garaż
41.61 m2
kotłownia
12.8 m2
garderoba
7.81 m2
łazienka
8.27 m2
pokój
16.6 m2
pokój dzienny
33.32 m2
pokój
14.61 m2
pokój
14.61 m2
łazienka
5.33 m2
korytarz
7.15 m2
pralnia
3.82 m2
pokój
8.01 m2
Pobierz rysunki szczegółowe
Zapytaj, co możesz zmienić

Lustrzane odbicie
Pobierz rysunki szczegółowe
Zapytaj, co możesz zmienić
Zamów rysunki szczegółowe
Zapoznaj się ze szczegółowymi rysunkami rzutów kondygnacji w PDF dla tego projektu.
ZAMAWIAM

Elewacje

Frontowa

Ogrodowa

Lewa

Prawa
Specyfikacja techniczna
Główne parametry
Powierzchnia użytkowa
175,00 m2
Łączna powierzchnia tzw. pomieszczeń użytkowych. Przede wszystkim nie zalicza się do niej powierzchni garażu, nieużytkowego strychu, piwnicy, kotłowni.
Liczba pokoi
5
Liczba łazienek
2
Garaż
2
Powierzchnia zabudowy
291,43 m2
Powierzchnia zajmowana przez budynek na działce. W praktyce tzw. powierzchnia rzutu budynku wyznaczana po obrysie ścian zewnętrznych.
Pełna specyfikacja
Maksymalna wysokość budynku
7,27 m
Wysokość wyznaczona od poziomu terenu do najwyżej położonej części dachu (np. kalenicy), zwykle bez uwzględnienia kominów.
Kąt nachylenia dachu
35,00°
Nachylenie połaci dachu podane w stopniach.
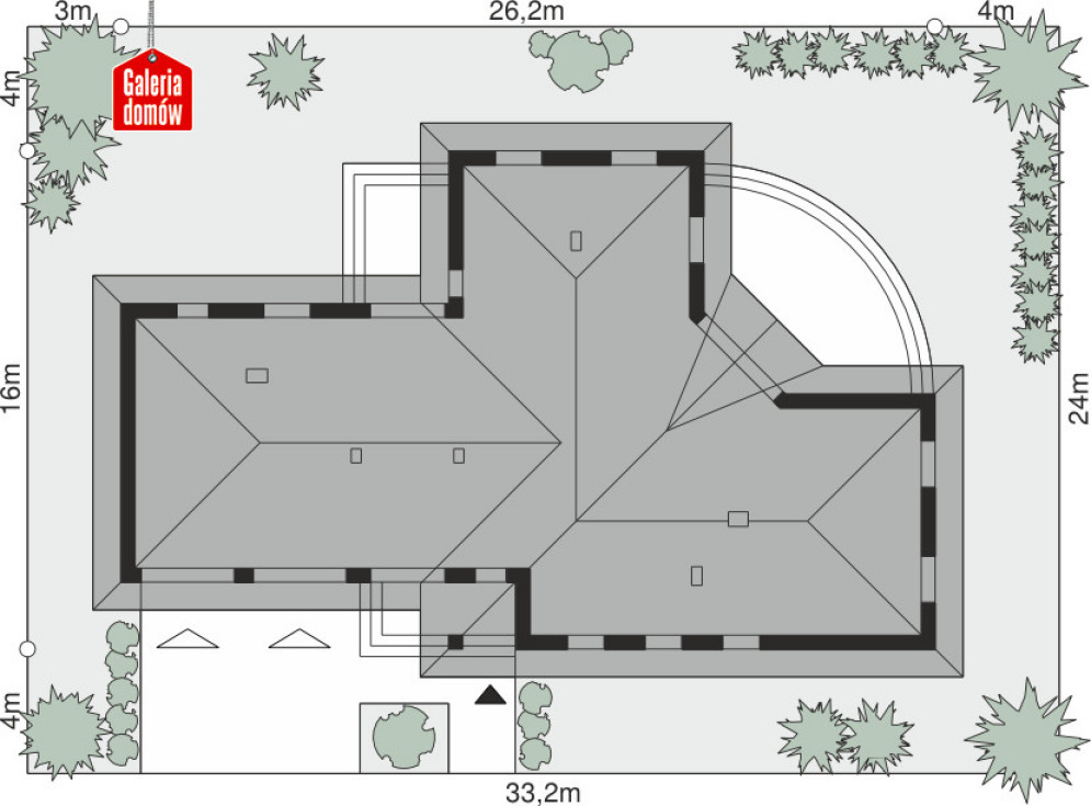
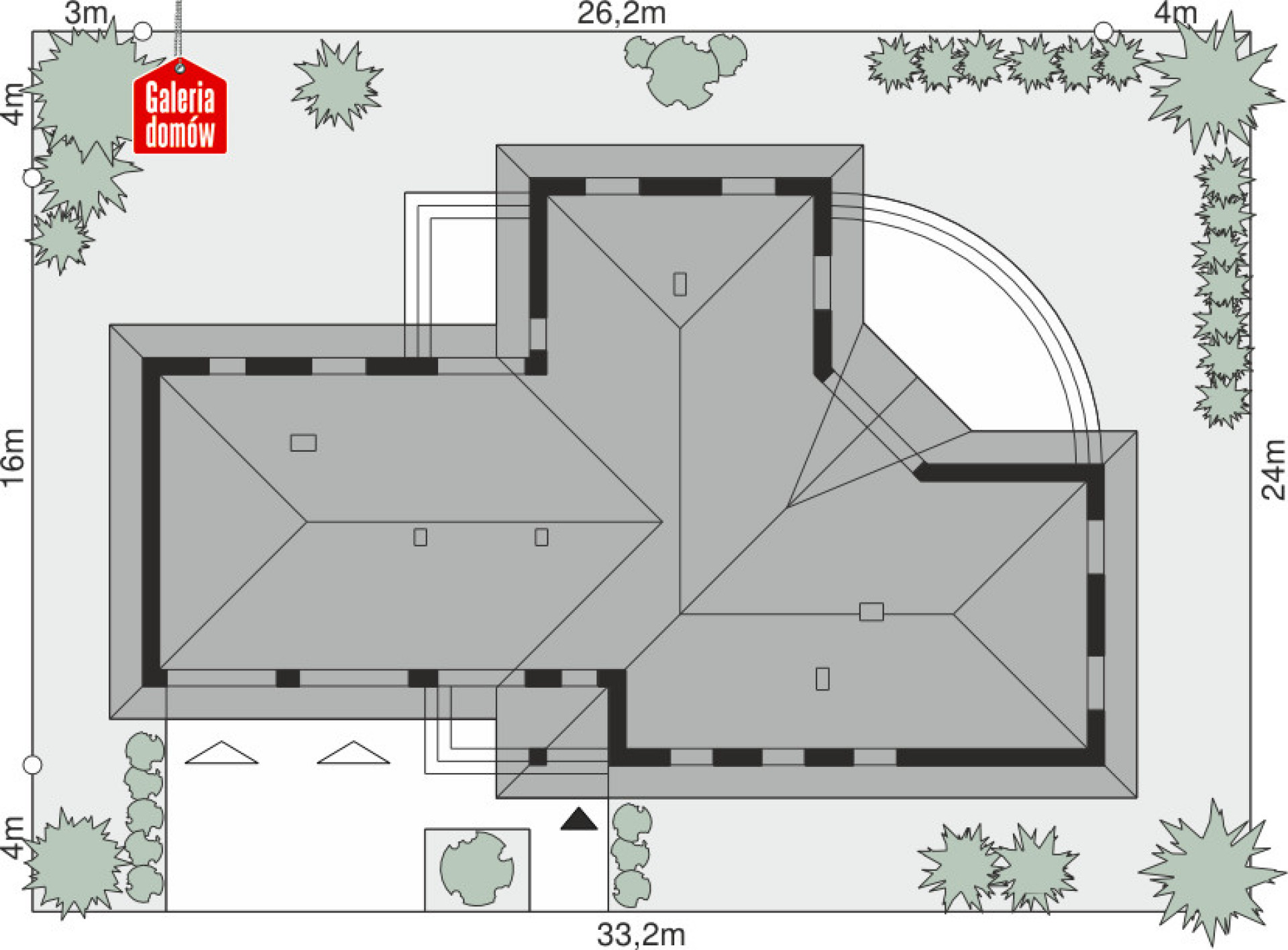
Minimalne wymiary działki (szerokość)
24,00 m
Szerokość działki wyznaczona przy założeniu, że minimalna odległość budynku od granic działki wynosi przynajmniej 3 m w przypadku ścian bez otworów okiennych lub drzwiowych, albo 4 m w przypadku ścian budynku z takimi otworami.
Minimalne wymiary działki (długość)
33,20 m
Długość działki wyznaczona przy założeniu, że minimalna odległość budynku od granic działki wynosi przynajmniej 3 m w przypadku ścian bez otworów okiennych lub drzwiowych, albo 4 m w przypadku ścian budynku z takimi otworami.
Typ dachu
Wielospadowy
Kształt dachu – płaski, jednospadowy (jedna skośna połać), dwuspadowy (dwie połacie), wielospadowy (w praktyce o przynajmniej czterech połaciach).
Energooszczędność
Energooszczędny
Energooszczędny – dom o zapotrzebowaniu na tzw. nieodnawialna energię pierwotną (EP) niższym, niż wymagana przepisami maksymalna wartość.
Przystosowany pod instalacje
paneli PV
Typ zabudowy
Jednorodzinny
Powierzchnia garażu
41,61 m2
Kubatura budynku
1 087,01 m3
Objętość budynku, zwykle wraz z elementami konstrukcyjnymi (ścianami, stropami itd.).
Ściany zewnętrzne (materiały)
pustak 25 cm, styropian 20 cm
Pokrycie dachu
dachówka ceramiczna lub betonowa
Sposób ogrzewania
gazowe lub pompa ciepła lub paliwo stałe
W stylu
Nowoczesnym
Liczba kondygnacji
Parterowe
Za kondygnacje uznawane są również poddasza użytkowe oraz piwnice. Kondygnacją nie jest natomiast poddasze nieużytkowe ani antresola.
Koszty
Koszty budowy
929 000 zł
Koszt: Stan pod klucz
Obejmuje koszt wszystkich robót stanu surowego, wykonania instalacji wewnętrznych oraz robót wykończeniowych.
609 000 zł
Koszt: Stan surowy zamknięty
Koszt wzniesienia budynku wraz z pokryciem dachu i stolarką zewnętrzną (okna i drzwi). Bez instalacji, ocieplenia i robót wykończeniowych.
Opis
Parterowa willa rodzinna z czterema niezależnymi pokojami, eleganckim salonem, ergonomiczną kuchnią i podwójnym garażem. Parkowa 2 należy do grupy domów energooszczędnych. Projekt zawiera schemat instalacji mechanicznej z rekuperacją oraz system solarny. Ogrzewanie gazowe sprawia, iż dom nie tylko dba o oszczędność energii, ale jest również ekologiczny. Układ funkcjonalny zaplanowano tak, aby każdy z domowników miał komfortowy dostęp zarówno do części wspólnych, jak i łazienki. Zaplecze gospodarcze tego okazałego domu stanowi duża kotłownia, pralnia, garderoba i podwójny garaż. Z zieloną częścią ogrodu łączą budynek dwa tarasy, poranny – od kuchni i wypoczynkowy, ulokowany przy słonecznym salonie. Stylistyka wykończenia zewnętrznego nawiązuje do najmodniejszych trendów architektonicznych i czyni dom nowoczesnym, a zarazem eleganckim.
CZYTAJ WIĘCEJ

Dom przy Parkowej 2
BD43405
Powierzchnia użytkowa
Łączna powierzchnia tzw. pomieszczeń użytkowych. Przede wszystkim nie zalicza się do niej powierzchni garażu, nieużytkowego strychu, piwnicy, kotłowni.
175,00 m2
Liczba pokoi
5
Liczba łazienek
2
Garaż
2
Powierzchnia zabudowy
Powierzchnia zajmowana przez budynek na działce. W praktyce tzw. powierzchnia rzutu budynku wyznaczana po obrysie ścian zewnętrznych.
291,43 m2