Dom przy Przyjemnej 28 bis
Dodaj do porównania
Usuń z porównania
Dodaj do ulubionych
Usuń z ulubionych
Pow. użytkowa:
125.33m2
Pow. zabudowy:
206.86m2
Koszt budowy:
621000zł
Liczba pokoi:
4
Liczba łazienek:
2
Garaż:
2
Rzuty

Lustrzane odbicie
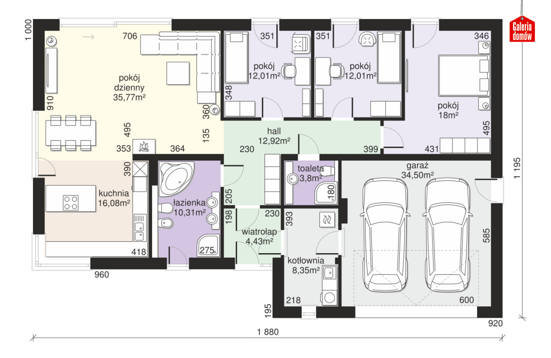
Rzut parteru
168.18 m2
wiatrołap
4.43 m2
hall
12.92 m2
łazienka
10.31 m2
kuchnia
16.08 m2
pokój dzienny
35.77 m2
pokój
12.01 m2
pokój
12.01 m2
pokój
18 m2
garaż
34.5 m2
toaleta
3.8 m2
kotłownia
8.35 m2
Pobierz rysunki szczegółowe
Zapytaj, co możesz zmienić

Lustrzane odbicie
Pobierz rysunki szczegółowe
Zapytaj, co możesz zmienić
Zamów rysunki szczegółowe
Zapoznaj się ze szczegółowymi rysunkami rzutów kondygnacji w PDF dla tego projektu.
ZAMAWIAM

Elewacje

Frontowa

Ogrodowa

Lewa

Prawa
Specyfikacja techniczna
Główne parametry
Powierzchnia użytkowa
125,33 m2
Łączna powierzchnia tzw. pomieszczeń użytkowych. Przede wszystkim nie zalicza się do niej powierzchni garażu, nieużytkowego strychu, piwnicy, kotłowni.
Liczba pokoi
4
Liczba łazienek
2
Garaż
2
Powierzchnia zabudowy
206,86 m2
Powierzchnia zajmowana przez budynek na działce. W praktyce tzw. powierzchnia rzutu budynku wyznaczana po obrysie ścian zewnętrznych.
Pełna specyfikacja
Maksymalna wysokość budynku
7,06 m
Wysokość wyznaczona od poziomu terenu do najwyżej położonej części dachu (np. kalenicy), zwykle bez uwzględnienia kominów.
Kąt nachylenia dachu
30,00°
Nachylenie połaci dachu podane w stopniach.
Minimalne wymiary działki (szerokość)
19,95 m
Szerokość działki wyznaczona przy założeniu, że minimalna odległość budynku od granic działki wynosi przynajmniej 3 m w przypadku ścian bez otworów okiennych lub drzwiowych, albo 4 m w przypadku ścian budynku z takimi otworami.
Minimalne wymiary działki (długość)
26,80 m
Długość działki wyznaczona przy założeniu, że minimalna odległość budynku od granic działki wynosi przynajmniej 3 m w przypadku ścian bez otworów okiennych lub drzwiowych, albo 4 m w przypadku ścian budynku z takimi otworami.
Typ dachu
Dwuspadowy
Kształt dachu – płaski, jednospadowy (jedna skośna połać), dwuspadowy (dwie połacie), wielospadowy (w praktyce o przynajmniej czterech połaciach).
Energooszczędność
Energooszczędny
Energooszczędny – dom o zapotrzebowaniu na tzw. nieodnawialna energię pierwotną (EP) niższym, niż wymagana przepisami maksymalna wartość.
Przystosowany pod instalacje
paneli PV
Typ zabudowy
Jednorodzinny
Powierzchnia garażu
34,50 m2
Kubatura budynku
732,28 m3
Objętość budynku, zwykle wraz z elementami konstrukcyjnymi (ścianami, stropami itd.).
Ściany zewnętrzne (materiały)
pustak 25 cm, styropian 20 cm
Pokrycie dachu
dachówka ceramiczna lub betonowa
Sposób ogrzewania
gazowe lub pompa ciepła lub paliwo stałe
W stylu
Nowoczesnym
Liczba kondygnacji
Parterowe
Za kondygnacje uznawane są również poddasza użytkowe oraz piwnice. Kondygnacją nie jest natomiast poddasze nieużytkowe ani antresola.
Koszty
Koszty budowy
621 000 zł
Koszt: Stan pod klucz
Obejmuje koszt wszystkich robót stanu surowego, wykonania instalacji wewnętrznych oraz robót wykończeniowych.
364 000 zł
Koszt: Stan surowy zamknięty
Koszt wzniesienia budynku wraz z pokryciem dachu i stolarką zewnętrzną (okna i drzwi). Bez instalacji, ocieplenia i robót wykończeniowych.
Opis
Projekt domu parterowego z dachem dwuspadowym i podwójnym garażem w bryle budynku. Powierzchnia użytkowa wynosi 125.33 m². Dom energooszczędny, prosty w budowie i ekonomiczny w realizacji. Wnętrze zawiera 3 pokoje, otwarta kuchnię, salon oraz 2 łazienki, kotłownię i garaż na dwa samochody. Przestrzeń parteru jest doskonale doświetlona dzięki licznym przeszkleniom. W kuchni przewidziano narożne okno panoramiczne, a w salonie przesuwne drzwi tarasowe. Wokół tarasu przewidziano nowoczesna pergolę, która można w ciekawy sposób zaaranżować. Dom ma nowoczesny wygląd o czym decydują użyte do wykończenia materiały. Drewno, stolarka w kolorach stalowych, ciemna dachówka i biała elewacja, dają stylowy wygląd. Dom przy Przyjemnej 28 bis stanie się ozdobą każdej działki. Doskonała propozycja dla nowoczesnej rodziny.
CZYTAJ WIĘCEJ

Dom przy Przyjemnej 28 bis
BD43593
Powierzchnia użytkowa
Łączna powierzchnia tzw. pomieszczeń użytkowych. Przede wszystkim nie zalicza się do niej powierzchni garażu, nieużytkowego strychu, piwnicy, kotłowni.
125,33 m2
Liczba pokoi
4
Liczba łazienek
2
Garaż
2
Powierzchnia zabudowy
Powierzchnia zajmowana przez budynek na działce. W praktyce tzw. powierzchnia rzutu budynku wyznaczana po obrysie ścian zewnętrznych.
206,86 m2