Dom przy Alabastrowej 57
                
                    Dodaj do porównania
                
                
                    Usuń z porównania
                
            
            
        
                
                    Dodaj do ulubionych
                
                
                    Usuń z ulubionych
                
            
            
        
        Pow. użytkowa:
    
    
        117.67m2
    
        Pow. zabudowy:
    
    
        113.13m2
    
        Koszt budowy:
    
    
        584000zł
    
        Liczba pokoi:
    
    
        5
    
        Liczba łazienek:
    
    
        2
    
        Garaż:
    
    
        1
    
        Rzuty
    
                    
                                                        
                        
                        Lustrzane odbicie
                    
                    
                                    Rzut parteru
                                
                                
                                    81.29 m2
                                
                            
                                            Wiatrołap
                                        
                                        
                                            4.93 m2
                                        
                                    
                                            Hall
                                        
                                        
                                            4.51 m2
                                        
                                    
                                            Łazienka
                                        
                                        
                                            4.12 m2
                                        
                                    
                                            Pom. Gosp.
                                        
                                        
                                            1.57 m2
                                        
                                    
                                            Kuchnia
                                        
                                        
                                            7.69 m2
                                        
                                    
                                            Pokój dzienny
                                        
                                        
                                            21.46 m2
                                        
                                    
                                            Pokój
                                        
                                        
                                            10.14 m2
                                        
                                    
                                            Kotłownia
                                        
                                        
                                            5.31 m2
                                        
                                    
                                            Garaż
                                        
                                        
                                            21.56 m2
                                        
                                    
                            
                            Pobierz rysunki szczegółowe
                        
                        
                            
                            Zapytaj, co możesz zmienić
                        
                    
                        
                        Lustrzane odbicie
                    
                    
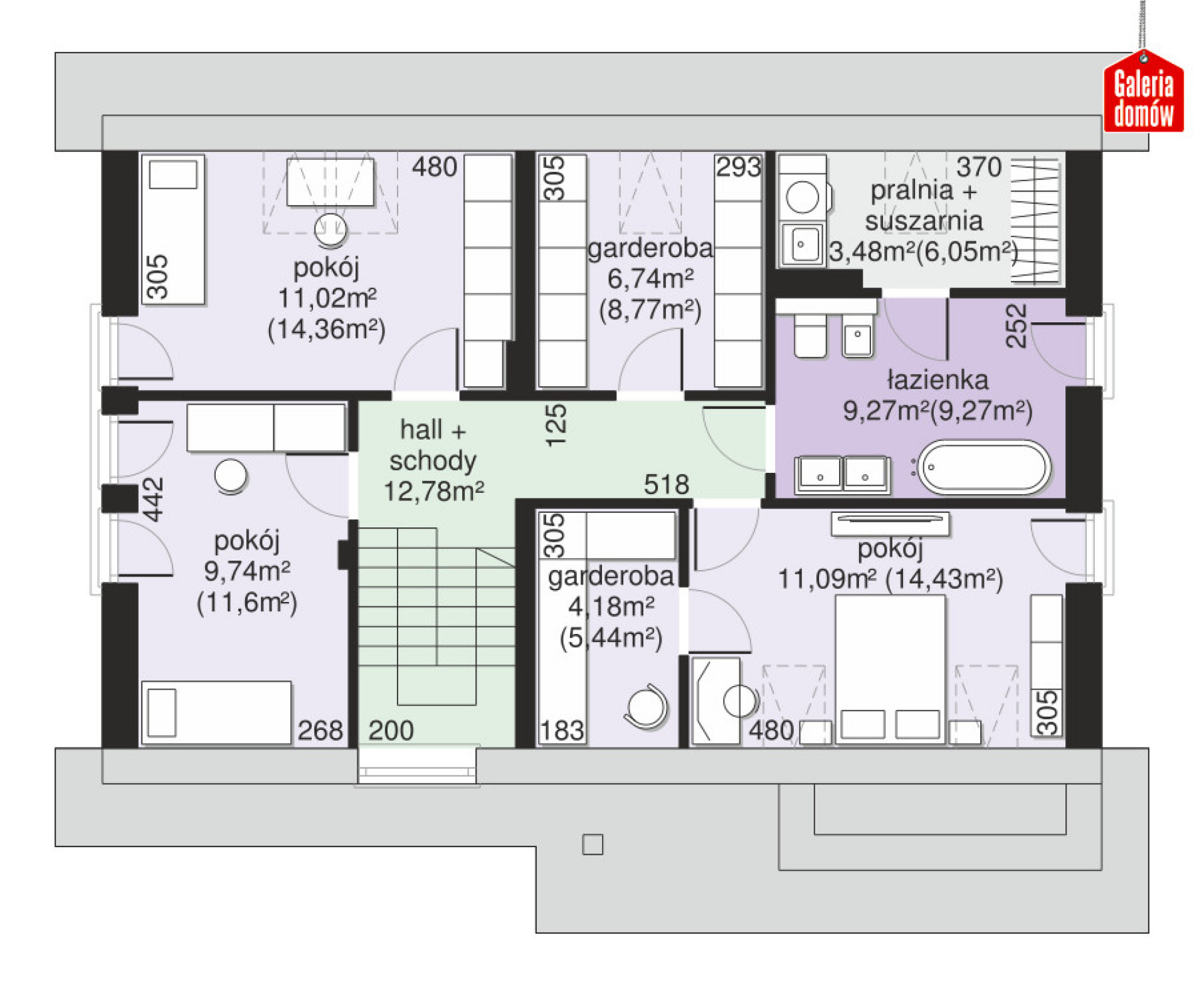
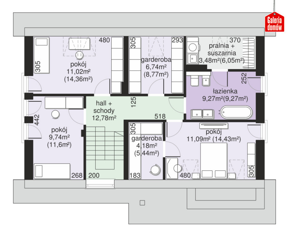
                                    Rzut I piętra
                                
                                
                                    68.3 m2
                                
                            
                                            Hall + schody
                                        
                                        
                                            12.78 m2
                                        
                                    
                                            Pokój
                                        
                                        
                                            9.74 m2
                                        
                                    
                                            Pokój
                                        
                                        
                                            11.02 m2
                                        
                                    
                                            Garderoba
                                        
                                        
                                            6.74 m2
                                        
                                    
                                            Pralnia + suszarnia
                                        
                                        
                                            3.48 m2
                                        
                                    
                                            Łazienka
                                        
                                        
                                            9.27 m2
                                        
                                    
                                            Pokój
                                        
                                        
                                            11.09 m2
                                        
                                    
                                            Garderoba
                                        
                                        
                                            4.18 m2
                                        
                                    
                            
                            Pobierz rysunki szczegółowe
                        
                        
                            
                            Zapytaj, co możesz zmienić
                        
                    
                        
                        Lustrzane odbicie
                    
                    
                            
                            Pobierz rysunki szczegółowe
                        
                        
                            
                            Zapytaj, co możesz zmienić
                        
                    
            Zamów rysunki szczegółowe
        
        
            Zapoznaj się ze szczegółowymi rysunkami rzutów kondygnacji w PDF dla tego projektu.
        
        
            ZAMAWIAM
        
    
    
                    Elewacje
                
            
                                Frontowa
                            
                                                            
                                Ogrodowa
                            
                                                            
                                Lewa
                            
                                                            
                                Prawa
                            
                                                            
        Specyfikacja techniczna
    
    
        Główne parametry
    
    
                            Powierzchnia użytkowa
                        
                        
                                                            
                                                                                                                                                                                        117,67 m2
                                
                                                    
                                                    
                                Łączna powierzchnia tzw. pomieszczeń użytkowych. Przede wszystkim nie zalicza się do niej powierzchni garażu, nieużytkowego strychu, piwnicy, kotłowni.
                            
                                            
                            Liczba pokoi
                        
                        
                                                            
                                                                                                                                                                                        5 
                                
                                                    
                                            
                            Liczba łazienek
                        
                        
                                                            
                                                                                                                                                                                        2 
                                
                                                    
                                            
                            Garaż
                        
                        
                                                            
                                                                                                                                                                                        1 
                                
                                                    
                                            
                            Powierzchnia zabudowy
                        
                        
                                                            
                                                                                                                                                                                        113,13 m2
                                
                                                    
                                                    
                                Powierzchnia zajmowana przez budynek na działce. W praktyce tzw. powierzchnia rzutu budynku wyznaczana po obrysie ścian zewnętrznych.
                            
                                            
        Pełna specyfikacja
    
    
                            Maksymalna wysokość budynku
                        
                        
                                                            
                                                                                                                                                                                        8,26 m
                                
                                                    
                                                    
                                Wysokość wyznaczona od poziomu terenu do najwyżej położonej części dachu (np. kalenicy), zwykle bez uwzględnienia kominów.
                            
                                            
                            Kąt nachylenia dachu
                        
                        
                                                            
                                                                                                                                                                                        40,00°
                                
                                                    
                                                    
                                Nachylenie połaci dachu podane w stopniach.
                            
                                            
                            Minimalne wymiary działki (szerokość)
                        
                        
                                                            
                                                                                                                                                                                        17,50 m
                                
                                                    
                                                    
                                Szerokość działki wyznaczona przy założeniu, że minimalna odległość budynku od granic działki wynosi przynajmniej 3 m w przypadku ścian bez otworów okiennych lub drzwiowych, albo 4 m w przypadku ścian budynku z takimi otworami.
                            
                                            
                            Minimalne wymiary działki (długość)
                        
                        
                                                            
                                                                                                                                                                                        20,70 m
                                
                                                    
                                                    
                                Długość działki wyznaczona przy założeniu, że minimalna odległość budynku od granic działki wynosi przynajmniej 3 m w przypadku ścian bez otworów okiennych lub drzwiowych, albo 4 m w przypadku ścian budynku z takimi otworami.
                            
                                            
                            Z poddaszem użytkowym
                        
                        
                                                            
                                                                            Tak
                                                                    
                                                    
                                            
                            Typ dachu
                        
                        
                                                            
                                                                            Dwuspadowy
                                                                    
                                                    
                                                    
                                Kształt dachu – płaski, jednospadowy (jedna skośna połać), dwuspadowy (dwie połacie), wielospadowy (w praktyce o przynajmniej czterech połaciach).
                            
                                            
                            Energooszczędność
                        
                        
                                                            
                                                                            Energooszczędny
                                                                    
                                                    
                                                    
                                Energooszczędny – dom o zapotrzebowaniu na tzw. nieodnawialna energię pierwotną (EP) niższym, niż wymagana przepisami maksymalna wartość.
                            
                                            
                            Przystosowany pod instalacje
                        
                        
                                                            
                                                                            paneli PV
                                                                    
                                                    
                                            
                            Typ zabudowy
                        
                        
                                                            
                                                                            Jednorodzinny
                                                                    
                                                    
                                            
                            Powierzchnia garażu
                        
                        
                                                            
                                                                                                                                                                                        21,56 m2
                                
                                                    
                                            
                            Kubatura budynku
                        
                        
                                                            
                                                                                                                                                                                        639,33 m3
                                
                                                    
                                                    
                                Objętość budynku, zwykle wraz z elementami konstrukcyjnymi (ścianami, stropami itd.).
                            
                                            
                            Ściany zewnętrzne (materiały)
                        
                        
                                                            
                                                                                                                                                                                        pustak 25 cm, styropian 20 cm 
                                
                                                    
                                            
                            Pokrycie dachu
                        
                        
                                                            
                                                                                                                                                                                        dachówka ceramiczna lub betonowa 
                                
                                                    
                                            
                            Sposób ogrzewania
                        
                        
                                                            
                                                                                                                                                                                        gazowe lub pompa ciepła lub paliwo stałe 
                                
                                                    
                                            
                            W stylu
                        
                        
                                                            
                                                                            Nowoczesnym
                                                                    
                                                    
                                            
                            Liczba kondygnacji
                        
                        
                                                            
                                                                            Z poddaszem użytkowym
                                                                    
                                                    
                                                    
                                Za kondygnacje uznawane są również poddasza użytkowe oraz piwnice. Kondygnacją nie jest natomiast poddasze nieużytkowe ani antresola.
                            
                                            
                    Koszty
                
            
                            Koszty budowy
                        
                        
                                        584 000 zł
                                    
                                    
                                        Koszt: Stan pod klucz
                                    
                                                                            
                                            Obejmuje koszt wszystkich robót stanu surowego, wykonania instalacji wewnętrznych oraz robót wykończeniowych.
                                        
                                                                    
                                        342 000 zł
                                    
                                                                            
                                            Koszt: Stan surowy zamknięty
                                        
                                                                                                                
                                            Koszt wzniesienia budynku wraz z pokryciem dachu i stolarką zewnętrzną (okna i drzwi). Bez instalacji, ocieplenia i robót wykończeniowych.
                                        
                                                                    
            Opis
        
        
            Dom przy Alabastrowej 57 to gotowy projekt domu z użytkowym poddaszem. Prosty dwuspadowy dach i zwarta bryła sprawia, iż wybudujemy go szybko i sprawnie. Budynek należy do kategorii domów energooszczędnych. Posiada dodatkowe projekty wentylacji mechanicznej z rekuperacją oraz instalacji solarnej. 
Wnętrze przewiduje, na parterze; otwartą kuchnię, salon, łazienkę, dodatkowy pokój i pomieszczenie gospodarcze, na poddaszu; 3 sypialnie (w tym jedną z garderobą), łazienkę, z wydzieloną częścią na pralnię i suszarnię oraz dodatkową garderobę. 
Każdy z pokoi na poddaszu posiada niewielki balkon. Dom przy Alabastrowej 57 ma zadaszone wejście i ciekawie zaprojektowany taras, który otacza drewniana pergola. Wyjścia tarasowe znajdują się z boku i na tyłach domu, co sprawia, iż wnętrze jest otwarte i doskonale doświetlone. Nowoczesny dom o średniej wielkości – doskonały wybór dla 4-5 osobowej rodziny.
        
                            
                CZYTAJ WIĘCEJ
                
            
            
                            Dom przy Alabastrowej 57
                        
                        
                            BD43607
                        
                    
                            Powierzchnia użytkowa
                                                            
                                    
                                
                                
                        
                                    Łączna powierzchnia tzw. pomieszczeń użytkowych. Przede wszystkim nie zalicza się do niej powierzchni garażu, nieużytkowego strychu, piwnicy, kotłowni.
                                
                                                    
                            117,67 m2
                        
                    
                            Liczba pokoi
                                                    
                        
                            5 
                        
                    
                            Liczba łazienek
                                                    
                        
                            2 
                        
                    
                            Garaż
                                                    
                        
                            1 
                        
                    
                            Powierzchnia zabudowy
                                                            
                                    
                                
                                
                        
                                    Powierzchnia zajmowana przez budynek na działce. W praktyce tzw. powierzchnia rzutu budynku wyznaczana po obrysie ścian zewnętrznych.
                                
                                                    
                            113,13 m2