Hiacynt 7 B







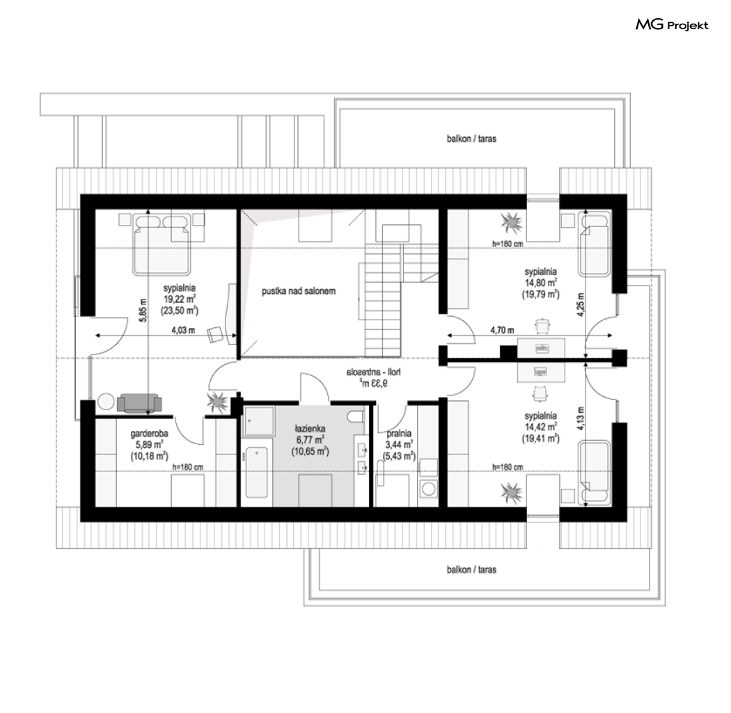
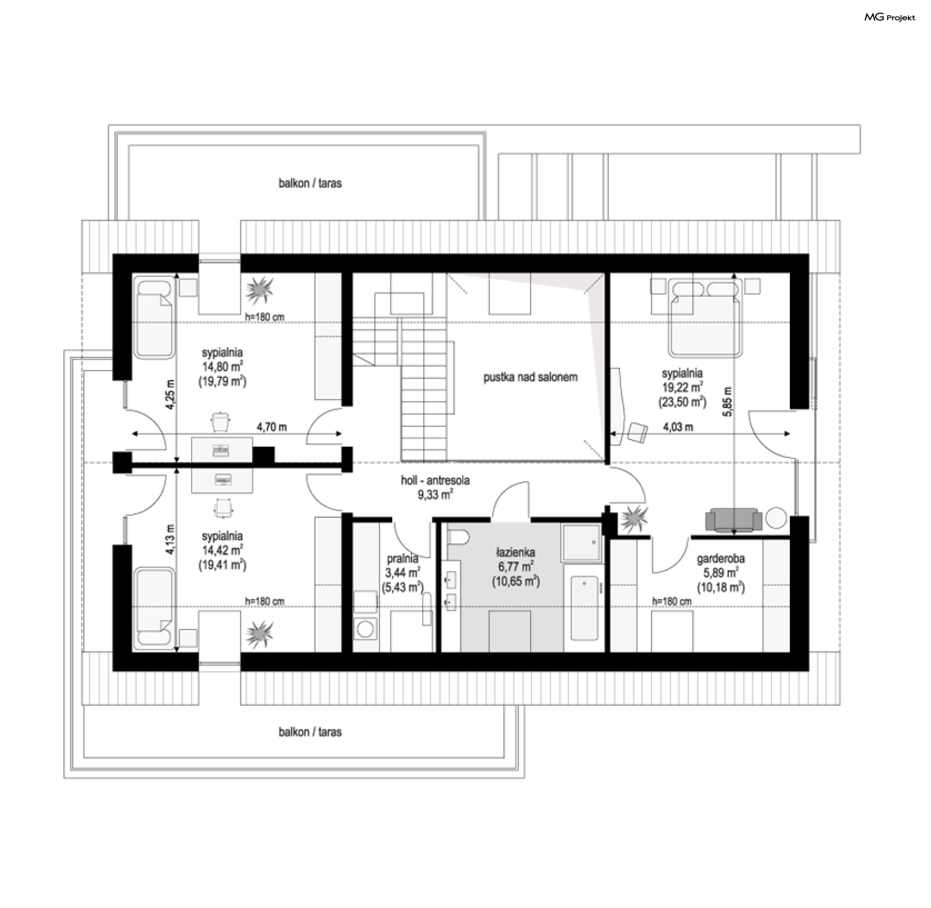
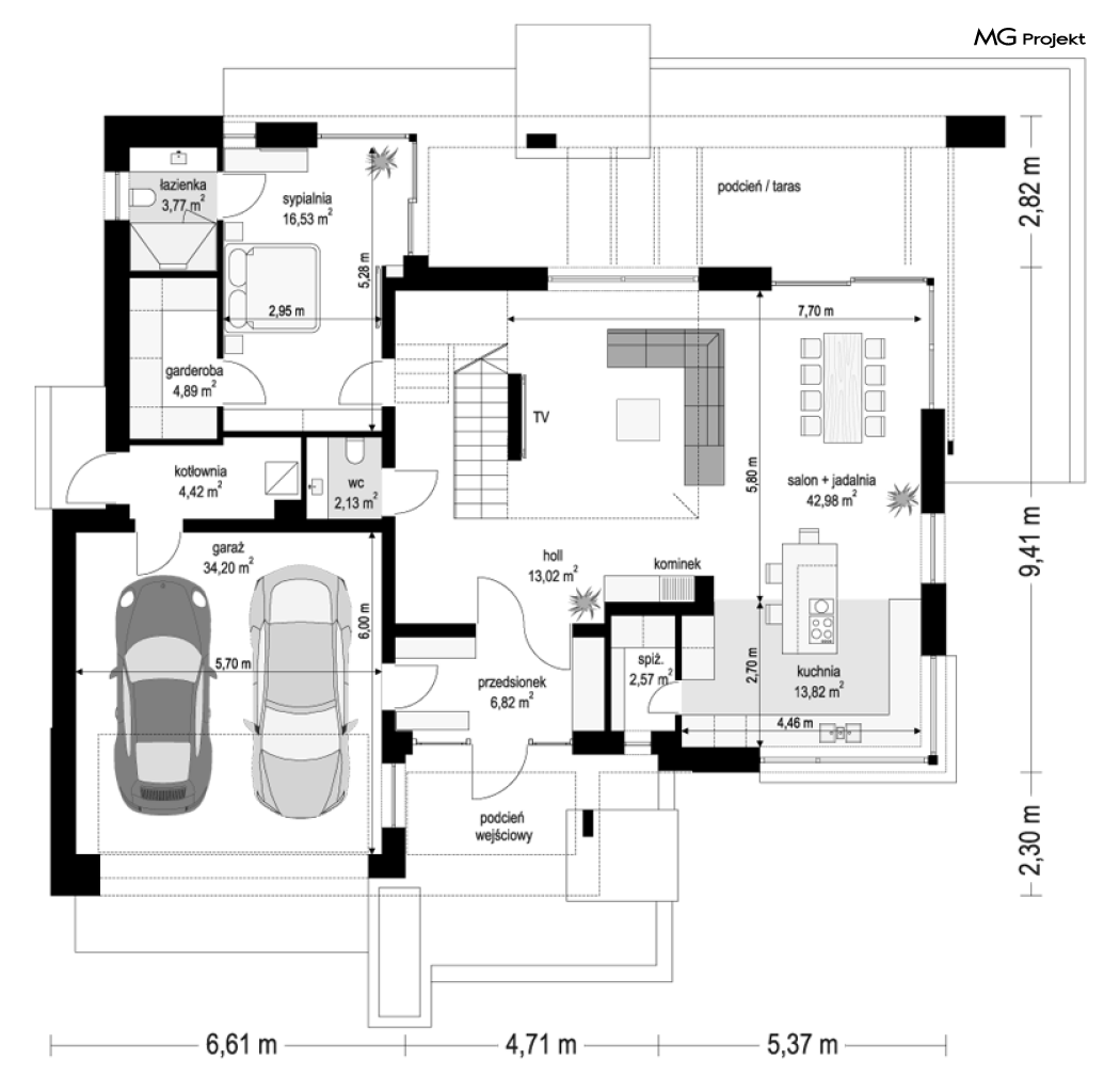
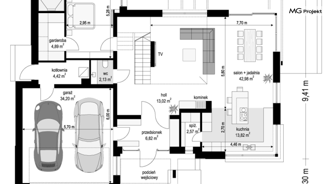
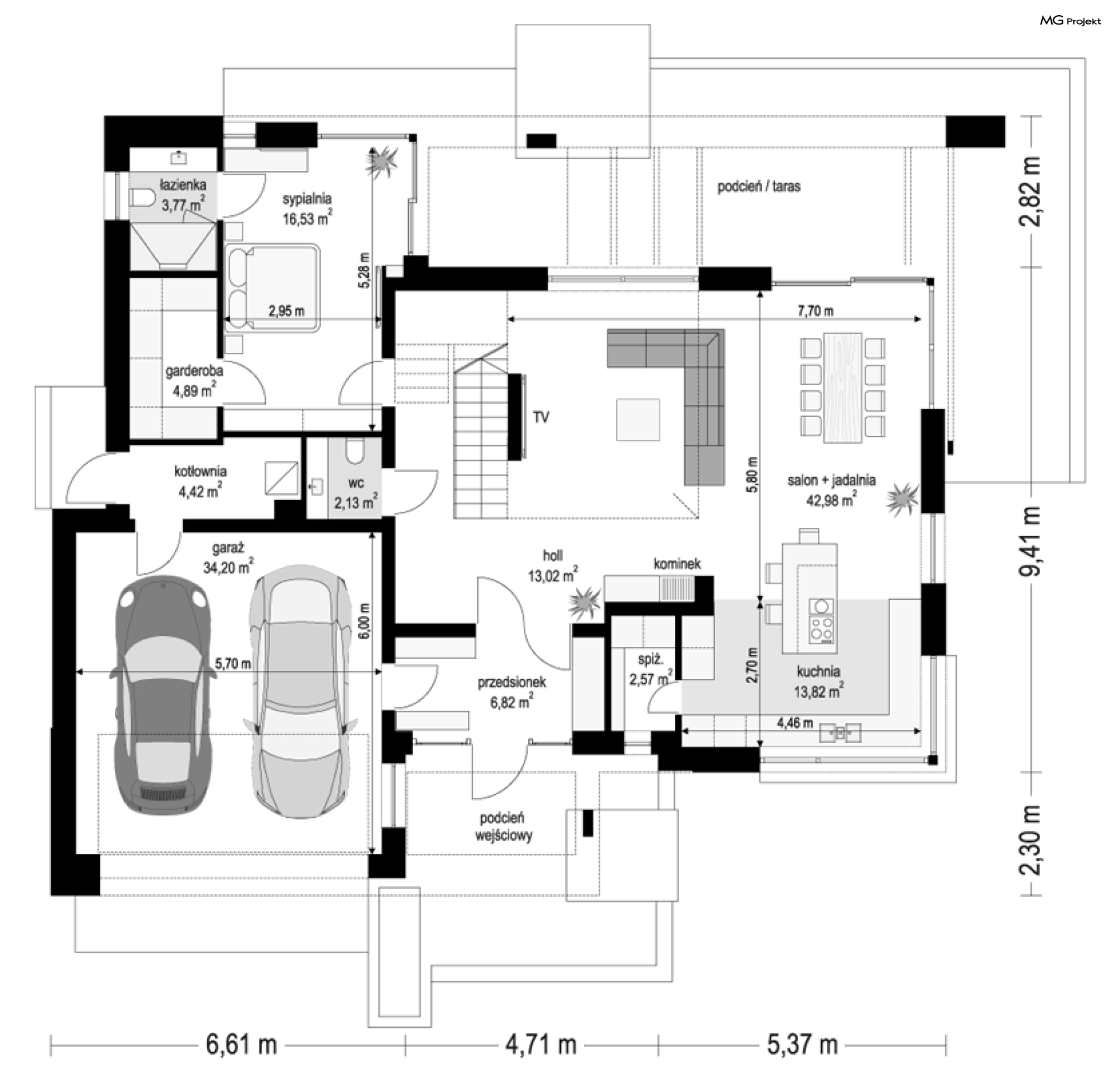
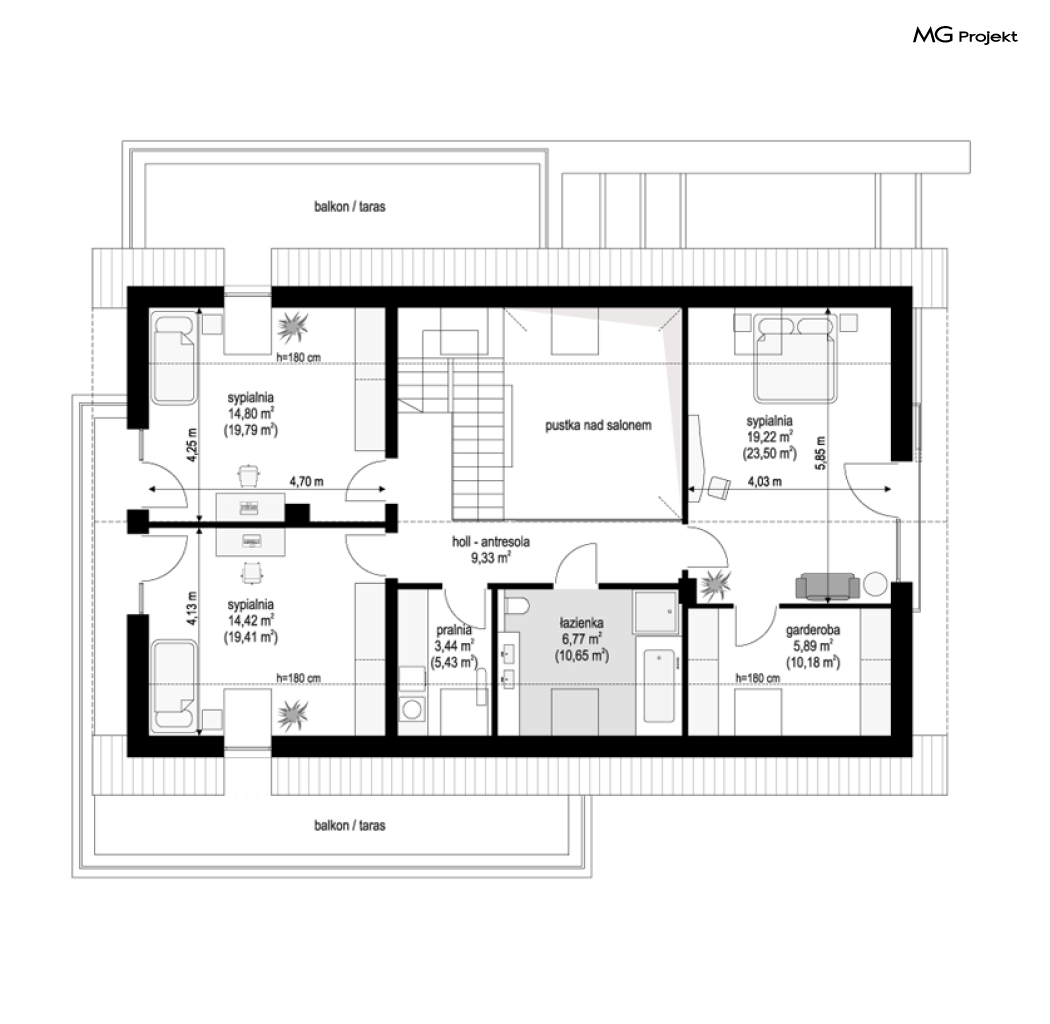
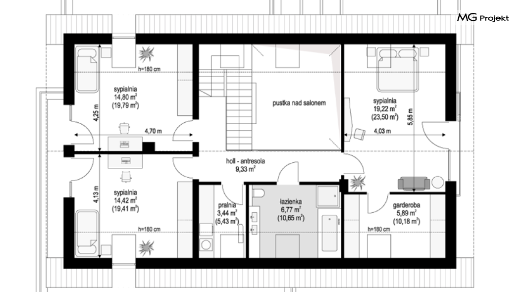
Projekt domu Hiacynt 7 B jest wersją wariantową domu z popularnej serii „Hiacyntów”. Parterowy dom z poddaszem użytkowym, do wygodnego zamieszkania dla cztero-sześcioosobowej rodziny. Bryłę budynku zaprojektowano na planie litery „T” - podobnie jak w innych wariantach Hiacyntów. Tym razem poddasze przykryto dwuspadowym symetrycznym dachem, pokrytym nowoczesną blachą na rąbek. Parterowe poszerzenie bryły od frontu i od tyłu domu zwieńczone zostały tarasami dostępnymi z górnego piętra. Hiacynt 7B to dom o nowoczesnej stylistyce. Elewacje budynku dzielą poziome pasy białych podciągów i szerokich przeszkleń okiennych. Reprezentacyjne wejście do domu z drzwiami z bocznymi naświetlami, umieszczono w podcieniu pod długim masywnym podciągiem połączonym z garażem. Od strony elewacji ogrodowej zaprojektowano długą belkę biegnącą przez całą szerokość domu, podpierającą częściowo zadaszone patio tarasu. Hiacynt 7 B dzięki dodatkom urozmaicającymi bryłę ma atrakcyjny i ciekawy wygląd, zachowując przy tym prostotę konstrukcji budynku. Wnętrze domu podzielono funkcjonalnie na części o równym przeznaczeniu. Na parterze zaprojektowano centralną część dzienną, z jednoprzestrzennym wnętrzem salonu z antresolą, wydzieloną jadalnią z przejściem na taras, ładną kuchnią ze spiżarnią i reprezentacyjnym holem. Na parterze przewidziano też apartament państwa domu, z własną łazienką, garderobą i połączeniem z tarasem. Całość parteru uzupełniona jest częścią garażowo- gospodarczą domu. Na poddaszu zaprojektowane zostały trzy pokoje sypialne, z łazienką pralnią, garderobą i antresolą z widokiem na pokój dzienny na parterze. Na poddaszu można bez kłopotu wykroić również 4 pokoje. Hiacynt 7B w stosunku do pozostałych wariantów tego projektu ma uproszczoną konstrukcję oraz kształt bryły, co powinno korzystne wpłynąć na łatwość i koszt budowy. Jednocześnie dom nadal zachował atrakcyjny wygląd i stylistykę. Dzięki dobrym izolacjom i nowoczesnym instalacjom, Hiacynt 7B jest budynkiem energooszczędnym i będzie niedrogi w późniejszej eksploatacji. Hiacynt 7 to dobra propozycja dla Inwestorów lubiących projekty z serii „Hiacynt”, ale szukających uproszczonych rozwiązań na przyszłą budowę.To dom dla osób chcących wybudować ładny, nie za duży dom jednorodzinny, o atrakcyjnej nowoczesnej architekturze i funkcjonalnym wnętrzu. Zapraszamy do zapoznania się z innymi projektami: projekt domu Hiacynt, projekt domu Hiacynt 2, projekt domu Hiacynt 3, projekt domu Hiacynt 4, projekt domu Hiacynt 5, projekt domu Hiacynt 6, projekt domu Hiacynt 7, projekt domu Hiacynt 8. Projekty dostępne są w odbiciu lustrzanym.
